新楼盘:
第一种:在当地住建官网查询项目审批情况,搜索是否有相关地块的审批公示!
第二种:向当地教育局咨询或者针对XX分校的主校区进行咨询。
第三种:对于已交付并开学的学校咨询下往届招生情况,年级学位满的话还是得调剂到其他学校。
第四种:如果没落实出具体的可以咨询有经验的房产中介人员(从业时间长的)协助落实。
注意:新楼盘必须交房并提供购房合同才能上学,也有的是需要落上户口才行。
二手房:
第一种:了解政策:每年的招生都是分批次的,如:第一批次为有房有户口的,第二批次有房无户口的,第三批次有户口无房的,其他批次的是:无房无户口/在本辖区从商的。并不是所有的小学都有无房无户口的名额,缴纳社保的时间决定孩子能不能上或者是上哪所学校!!!!!
第二种:切记的事情:重点学区有六年之内只能有一次上学的记录,即:若卖方孩子已经上三年级了,买方买后孩子只能等三年后才可以报名上学。
第三种:咨询学校招生要求或者咨询所属区教育局。
注意:不论重不重点的学校,购买时一定要落实房子上是否有户口,因为房子户口具有唯一性,法院都没有权力要求将其户口迁出。但可以通过当地派出所对其户口空挂到社区。
不论新房还是二手房,还有个情况就是大社区的,比如中海国际/鲁能领秀城/王官庄,这三个社区学校有,而且不止一个,每个区对应的小学也不一样,千万要注意!!!!!!!!!!!!!
小学对应的初中
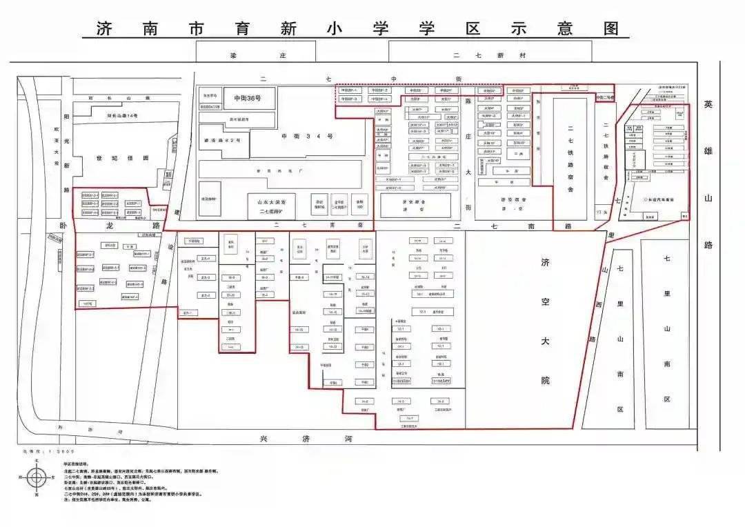
学区示意图
结语:关于学区问题可随时私信沟通!多多转发+点赞+关注!非常感谢!
老刘在济南从事房产十余年
有任何关于房产的问题,均可私信沟通,包括但不限于
购房资格/贷款条件
合同签约/过户缴税
非住宅缴税(写字间/车位/公寓/商铺/厂房等)等等!
版权声明:我们致力于保护作者版权,注重分享,被刊用文章【济南市小学学区划分(市中区70所小学学区划分)】因无法核实真实出处,未能及时与作者取得联系,或有版权异议的,请联系管理员,我们会立即处理! 部分文章是来自自研大数据AI进行生成,内容摘自(百度百科,百度知道,头条百科,中国民法典,刑法,牛津词典,新华词典,汉语词典,国家院校,科普平台)等数据,内容仅供学习参考,不准确地方联系删除处理!;
工作时间:8:00-18:00
客服电话
电子邮件
beimuxi@protonmail.com
扫码二维码
获取最新动态
