项目亮点
1.超高性价比,综改区品牌开发商价格最低。
2.紧邻1000亩的中央公园。
3.位于汾东商务区核心区域。
4.项目东面为1000亩的物联网产业园区,已经全部落成,未来太原一半的省直单位都将搬迁至此。
5.保利品质保证,汾东大街一线,距离地铁首站一公里。
区域价值
山西综改区是国家第九个综改区,它的全称是山西经济转型综合改革示范区,整体占地600平方公里,承载了山西经济发展和产业转型双重使命,它是由国务院亲自批复的国家级的新区,也是唯一一个经由国务院新闻办亲自举办新闻发布会公布设立的国家级新区。省政府为其成立了独立的领导班子,辖区内享有很多更为开放和优惠的特殊政策。山西综改区也是山西省第一个国家级的新区,直接归属山西省省委管理。
项目位于汾东大街和地铁二号线十字黄金轴位置,区位处于目前发展前景很好的综改区,西侧为整个综改区的商务办公区---汾东创新城、东侧为山西综改区产业核心区域,南侧是综改区的主战场潇河产业园区,北侧紧邻的中央公园,12公里滨水长廊汾河景观带环绕,占据政府红利及区域地理优势,未来发展潜力无限。
配套价值
【教育配套】:内部――规划12班制幼儿园、18班制小学;外部――太原市高新双语小学、实验小学、清华大学附属中学(规划中)
【医疗配套】:区域内1.8公里内中心医院;
【交通配套】:滨河东路、汾东大街(太原市第4条以大街命名的主街)、通达桥、晋阳桥、太茅路、直武路、地铁2号线、Z3磁悬浮(规划中)
【绿化配套】:北侧300米紧邻千亩的中央公园、12公里滨水长廊汾河景观带
【商业配套】:社区商业、盛华森商城、旺角时尚购物中心、德奥商城、华景天地购物中心
楼栋分析
项目整体规划百万方大盘,目前已拿地3个地块,占地面积约150亩,总建面40万平方米,总占地8.9万方,含1所幼儿园及1所小学。一期开发共8栋,1#、2#、3#、4#、5#层高为34F,7#、8#层高为30F。
户型分析
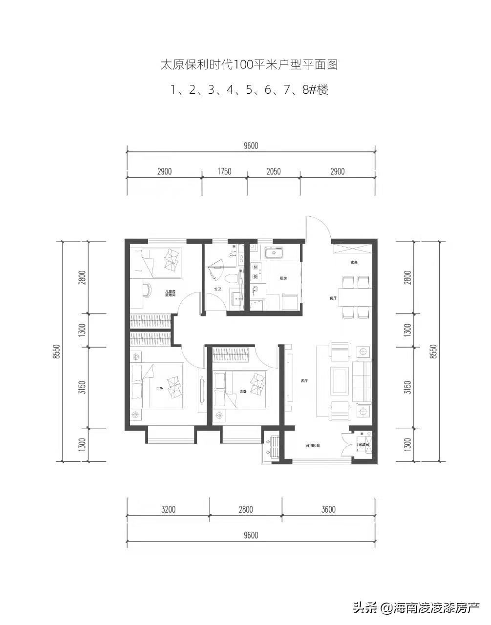
建面约100㎡三室两厅一卫
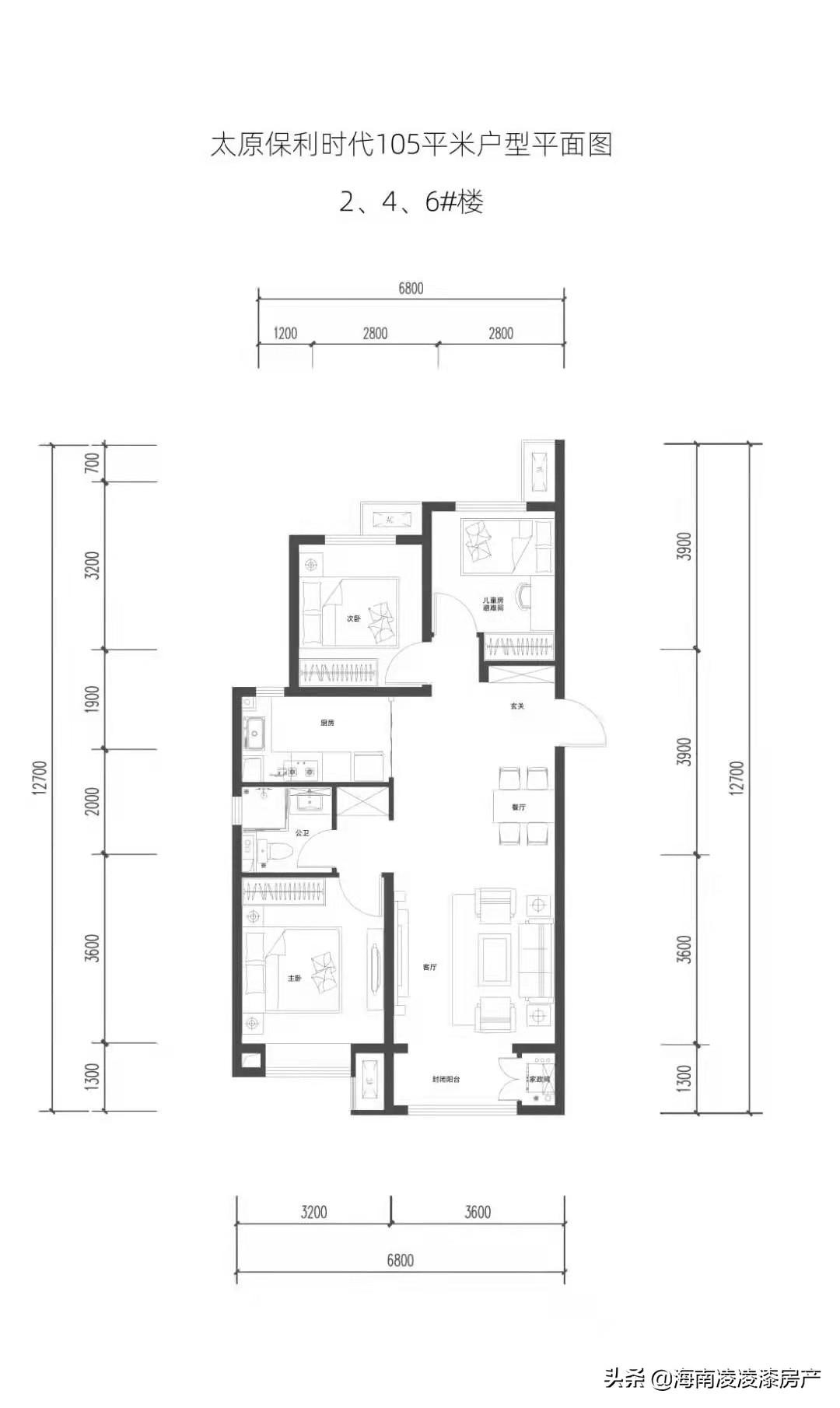
建面约105㎡三室两厅一卫,餐客阳台一体,主客卧独立,全明通透
建面约117㎡三室两厅两卫
建面约125㎡宝室两厅两卫,餐客一体通厅格局,通体大阳台,南北通透,墅级主卧
版权声明:我们致力于保护作者版权,注重分享,被刊用文章【太原高新双语小学校(太原保利时代)】因无法核实真实出处,未能及时与作者取得联系,或有版权异议的,请联系管理员,我们会立即处理! 部分文章是来自自研大数据AI进行生成,内容摘自(百度百科,百度知道,头条百科,中国民法典,刑法,牛津词典,新华词典,汉语词典,国家院校,科普平台)等数据,内容仅供学习参考,不准确地方联系删除处理!;
工作时间:8:00-18:00
客服电话
电子邮件
beimuxi@protonmail.com
扫码二维码
获取最新动态
