装修风格:新古典
装修套餐:基础装修
小区面积:180平方
套餐造价:30万
个性造价:300000元
工程造价:60万
设计师:陈勇
本案是一位父亲为儿子准备的婚房叠墅,采用新古典的装饰风格,为这个家庭营造一种温馨典雅的浪漫氛围。儿子今年25岁了,马上就要有属于自己的家庭,作为父亲,为儿子准备了新家的生活环境,真的是操碎了心。整体要求功能性完善,富有典雅浪漫的情调,设计师进行的设计,用新古典的设计风格,为业主呈现了精美典雅的居室布局,休闲室的设计,也更有生活浪漫情调。
客厅全景
客厅
餐厅
电视背景墙
沙发背景墙
吧台
楼梯
卧室
卧室
公主房
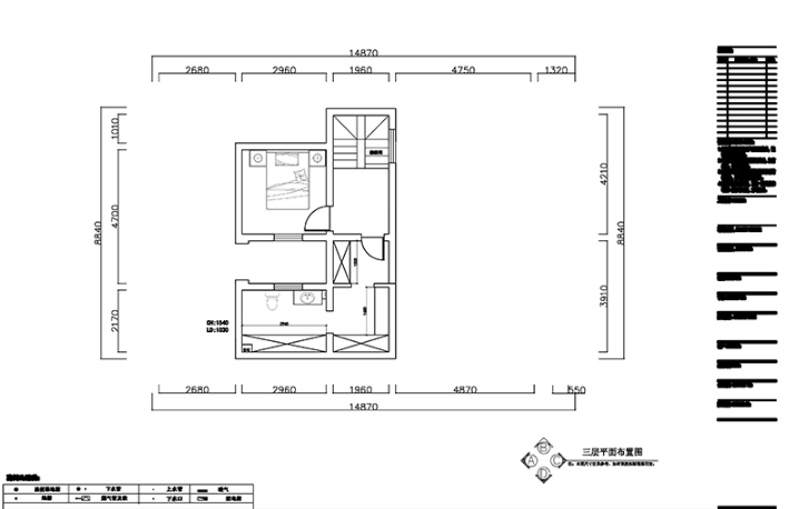
平面户型图
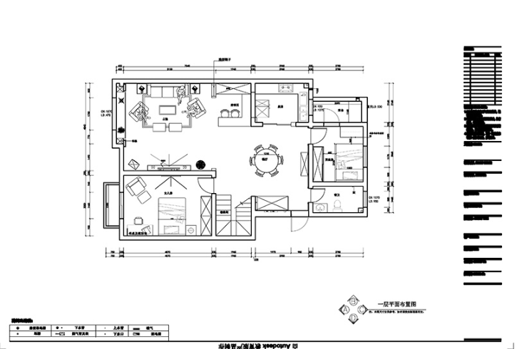
平面户型图
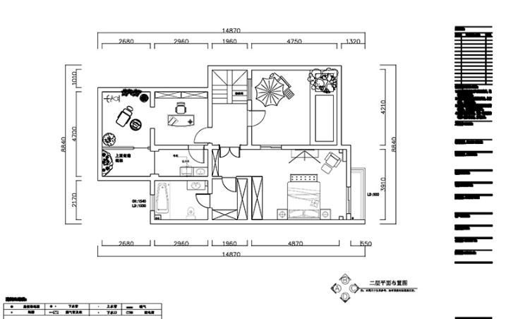
平面户型图
书房
阳台
装修服务城市:河南(郑州 新乡 安阳 洛阳 南阳 濮阳 鹤壁 焦作 许昌 驻马店)合肥 济南 江门
版权声明:我们致力于保护作者版权,注重分享,被刊用文章【郑州室内设计培训学校(老爸为儿子打造180平叠墅婚房)】因无法核实真实出处,未能及时与作者取得联系,或有版权异议的,请联系管理员,我们会立即处理! 部分文章是来自自研大数据AI进行生成,内容摘自(百度百科,百度知道,头条百科,中国民法典,刑法,牛津词典,新华词典,汉语词典,国家院校,科普平台)等数据,内容仅供学习参考,不准确地方联系删除处理!;
工作时间:8:00-18:00
客服电话
电子邮件
beimuxi@protonmail.com
扫码二维码
获取最新动态
