“刚需有刚需的纠结,改善有改善的烦恼。”
佛山改善的烦恼,无非是买城市优势地段并牺牲掉一定的居住品质,还是为了居住品质在非核心地段置业。
南海的狮山有这样一个新房项目,项目名为时代领峰。
今天,我就来和各位聊一聊这个项目:时代领峰,你会是佛山改善客的答案吗?
点击卡片查看详情:
大品牌房企,楼盘质量相对更有保障。
劣势从现状来看,项目的中小学配套较为缺乏,有入学需求的家长需要谨慎考察该板块的学校引进规划。
项目距离已建成的大型购物商场有一定距离,购物逛街不便。
产品单价并非刚需友好。
适合客群户型比较刚需友好,适合不愿意住到偏僻地带的单身贵族或小型家庭。
时代领峰位于南海,近一年来,狮山的(二手房)楼市行情及其价格情况如下:
平均成交总价(参考价):141.0万 平均成交单价(参考价):12181.7元/㎡ 成交套数(参考套数):2458套 商业资源周边尚无较大规模的商业配套。
教育资源从现状来看,楼盘周边较为缺乏已建成的中小学,还有待规划落地。楼盘周边比较缺乏现成的幼儿园配套,宝爸宝妈需要谨慎考察规划和落地情况。
医疗资源项目5公里内有南海经济开发区人民医院、南海经济开发区人民医院小塘分院,医疗资源丰富。
时代领峰属于普通住宅。
由时代地产开发。属于品牌房企,楼盘质量相对更有保障。
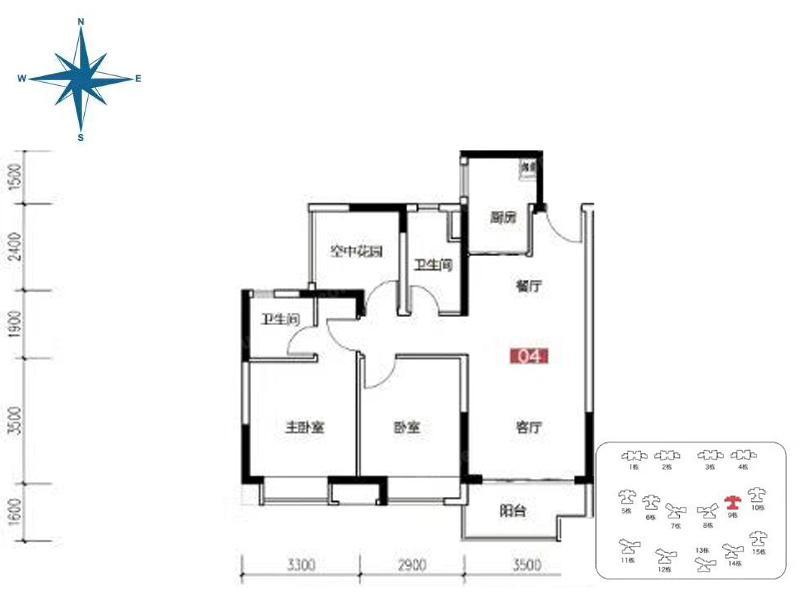
时代领峰精装交付。该项目有多种户型可供选择:
户型1:宽敞大两居(2卫)
面积:103平
2室2厅2卫
户型2:大两居(2卫)
面积:92平
2室2厅2卫
户型3:宽敞四居室(2卫)
面积:128平
4室2厅2卫
户型4:宽敞大三居(2卫)
面积:114平
3室2厅2卫
户型5:宽敞大两居(2卫)
面积:103平
2室2厅2卫
户型6:宽敞四居室(2卫)
面积:140平
4室2厅2卫
户型7:宽敞四居室(2卫)
面积:128平
4室2厅2卫
户型8:紧凑小三居(2卫)
面积:95平
3室2厅2卫
户型9:紧凑小三居(2卫)
面积:95平
3室2厅2卫
户型10:宽敞大三居(2卫)
面积:114平
3室2厅2卫
户型11:大两居(2卫)
面积:92平
2室2厅2卫
户型12:紧凑小两居
面积:74平
2室2厅2卫
户型13:宽敞四居室(2卫)
面积:140平
4室2厅2卫
从主力户型来看,该项目可作为入手狮山的上车盘。3室2卫的户型空间紧凑,功能性强。和3室1卫的户型相比,更加适合追求居住私密性的购房者;但相对来说,可能会牺牲掉一些次卧的空间。
怪不得有人说,25岁买房,最纠结的莫过于:90平三居到底要两个卫生间还是要更大的次卧。较大的户型能够一步到位,满足三代同堂的需求,比较适合改善购房者的需求。
最后,让我们进入比价环节。
狮山近一年来二手房成交均价(参考价)为12181.7元/㎡。可见,本项目单价还是明显高出同板块的二手房单价水平的。
以下为狮山的几个主要的二手房小区的相关情况:
新城璟城(建筑年代:2019;均价:12908.8元/㎡) 绿地丽雅香榭花城(建筑年代:2018;均价:13730.7元/㎡) 中恒海晖城(建筑年代:2017;均价:13486.2元/㎡) 佛山恒大城(建筑年代:2017;均价:12780.1元/㎡) 依云曦城(建筑年代:2017;均价:17701.2元/㎡) 狮山其他新房楼盘:目前狮山的在售新盘,还有恒福天悦、保利茉莉公馆、中恒海晖城、新城璟城、上林苑,那么这几个项目究竟谁更胜一筹?点击以下楼盘卡片查看项目详情。
目前佛山的在售新盘,还有若干个与本项目单价水平相似的项目,那么这几个项目哪个更适合你?点击以下楼盘卡片查看项目详情。
以上即为幸福里对时代领峰的测评内容。楼盘具体信息及折扣情况请以项目实际公布信息为准,或点击以下卡片联系置业助手获取。
延伸阅读:
【武大等名校高材生投身房产中介!客户一听是浙大学历,打开话题后顺利卖掉了房】“穿西装的不一定是霸道总裁,还可能是房产中介。要知道,在旁人眼中,分别毕业于浙江大学和武汉大学的他们是不折不扣的“别人家的孩子”,他们理所应当有一份“体面”的工作,出入高档甲级写字楼。根据链家提供的数据,截至2020年4月底,链家北京地区的在职人员中,统招本科生超过1万人,占比超过45.5%,上海链家的在职人员中,统招本科占比则超过了59%。他们相信,房产经纪行业高学历化已经成为趋势,毕竟这是一个需要不断学习新知识的领域,高学历往往就意味着具备更强的学习能力,这也是他们能够胜任这份工作的基础之一。来自手机和讯网,点击阅读原文
版权声明:我们致力于保护作者版权,注重分享,被刊用文章【佛山贵族学校(1)】因无法核实真实出处,未能及时与作者取得联系,或有版权异议的,请联系管理员,我们会立即处理! 部分文章是来自自研大数据AI进行生成,内容摘自(百度百科,百度知道,头条百科,中国民法典,刑法,牛津词典,新华词典,汉语词典,国家院校,科普平台)等数据,内容仅供学习参考,不准确地方联系删除处理!;
工作时间:8:00-18:00
客服电话
电子邮件
beimuxi@protonmail.com
扫码二维码
获取最新动态
