书是我们时代的生命
——别林斯基
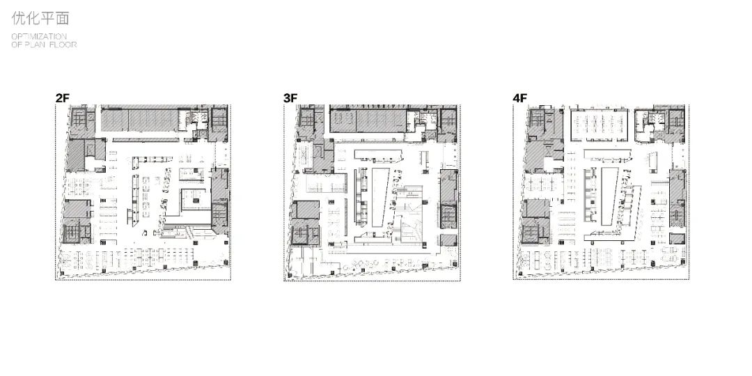
历下图书馆
—— Vantree Design
项目位于山东省济南市历下区,周边文化教育、创意商业资源林立,相互呼应。项目作为历下文体档案中心的八馆之一,占据着整个文体档案中心西南侧的2到4层。
在图书馆体块中,我们对原有的情况进行解析、重构,寻找切入点。在明确了整体的优化方向之后,通过对传统图书馆功能、结构的解析,重新组织、构造了其中的功能、流线关系。同时为了回应“共享”主题,回应时代趋势,我们以人们的观感体验出发,对空间中的视线关系、空间关系进行优化处理,置入空间节点,增设功能空间,重新组织了人们在其中的社交行为,促进“共享知识”的实现。
△ 分析图 Drawing
项目信息
项目名称:历下图书馆
项目地点:山东省济南市
设计公司:Vantree Design
设计总承包单位:中国建筑西南设计研究院有限公司
完工时间:2021年6月
项目面积:共4513.61 m²
主创建筑师:许牧川
设计师:李均杰、蔡敏希、杨尚钊、张仲宁、叶观宝
摄影师:正是文化 毛迪生
维川设计专长于星级酒店以及商业空间的室内装饰设计。公司拥有一批富有经验的高级室内设计师,团队结构年龄层丰富,融合经验与创意、沉稳与活力,总结出具有重要指导价值的酒店设计及执行室内设计体系,并应邀为多个顶级国际酒管品牌担任设计及执行室内设计,属广州最具影响力的执行室内设计团队之一。
维川设计为全国各地客户提供高质素的设计专业服务,项目已遍布全国逾 50 个城市,成立至今囊括多个具有行业形象力的专业奖项。室内设计项目主要包括酒店、商场、综合体、 办公楼、会所、医院及学校等公共空间,对室内设计方案、执行室内设计均有着丰富的实践经验。
马尾船政书局
万境设计
-
百年船政在此沉淀,他们造了一所“船”的书局
在当今的时代背景下,城市的意象需要更多的记忆和文化。福州,作为中国近代史上最为重要的城市之一,它的记忆与文化一定离不开“船政”。
船政书局是福州马尾船政文化的输出点,也是它的落点。通过设计,这个空间可以拥有更完善的文化表达。它不仅是一个书局更是一处精神空间。
——胡之乐
万境设计创始人&设计总监
,时长02:02
自古以来,闽越之地——福州,便因善于造船和用船而闻名遐迩。行舟千年的它,也是中国船政文化的发源地。
1866年,左宗棠创办了中国的第一所海军学校——马尾船政学堂,福州马尾因此成为了近代中国海军的摇篮,船政文化由此萌生。
而如今,位于船政学堂旧址的船政书局以“船舱和书局”,呼应百余年前的“造船与造才”。它尝试用一种新的隐喻,来传承和表达船政文化,并将它的精神内涵融入人们的生活。
船政书局,位于福州市马尾区船政文化广场内,原建筑为当地船厂的仓库。作为该区域文化精神的聚合点,它汇集了船政文化的宣传、教育以及学术研究等多种功能。
它的设计,以“造船”回顾历史,以“营书”望向未来——它通过抽象而现代的语言,在室内构建起船舶;同时也以图书馆式的服务与体验,探索文化传播的新模式。
设计以“船”为元素,将整个书局想象为一艘在文化浪潮中航行的方舟。
借由传统船舶的空间布局,书局中形成了多元而丰富的空间组合。船首、船仓、船尾,都被抽象化为不同的室内空间,而开放的甲板、半开放的舱室等象征性的船舶空间,也以现代化的方式,在这艘方舟上被重新演绎。
建筑构造示意图 © 万境设计
室内功能分析图 © 万境设计
一层室内轴测图 © 万境设计
二层室内轴测图 © 万境设计
浪潮与甲板
更新改造后的书局,由原来的一层空间变为了带夹层的两层空间,通过方舟船首的巨大台阶相连。首层作为阅读与展示的区域,以书为主,似是文化浪潮,引人进入知识的海洋。二层则作为休闲与活动的区域,被设计为甲板,邀人登上船首,继而可以在一个开放性的空间中停留与思考。而两层之间的大台阶,不仅成为了连贯上下的通道,也将船首变为了一处阶梯状的活动空间,丰富了室内的使用功能。
精神的船舱
方舟中部的中庭,是整个书局的核心。设计以船舱为喻,将它营造为了一处让人沉浸其中的精神空间。中庭之下,可移动的书架提供了灵活的空间布局,构建出了一个满足阅读、展示等多种使用场景的复合型图书室。而中庭之上,巨大的船舶骨架高悬,回溯着船政的历史。顶面的黑色镜面像水面一般,将一切倒映其中,仿佛时空在此映射,时间在此沉淀。
中庭 © 张锡
可变的复合型图书室 © 万境设计
可变的复合型图书室 © 万境设计
阅读的船室
方舟的船尾还呈现出了另一种形态的舱室。这个圆形的阅览区,呼应着船舶中较为封闭的船室,因而被设计为了书局中更加安静与独立的一处阅读空间。
圆形阅读空间 © 张锡
船舶的零件
除了对船舶抽象的空间表达外,设计还将造船的零件作为装饰元素,为许多细节赋予了船的意象。船舶上的栏杆、钢梯以及货箱,都以现代化的手法被重现。新的设计语言、新的材料,与旧的空间、旧的形制,在对比中融为一体。新旧结合,呈现出了书局文化内容的时间跨度,而这些碎片化的设计,也将船政文化的精神渗透进了空间的每一个角落。
项目信息
项目名称:马尾船政书局
项目地点:福州市马尾区
竣工时间:2021
项目类型:复合空间改造
项目面积:1200m2
业主:阳光城集团
业主人员:张伟 Wei Zhang、熊晴星Qingxing Xiong、袁建榕 Jianrong Yuan
设计单位 :万境设计 WJ STUDIO
主创设计:胡之乐 Leo Hu
设计团队:徐业友 、苏白雪 、张永慧
灯光设计:方方 ,易宗辉
软装:深圳市布鲁盟室内设计有限公司
摄影:田方方 、张锡
视频:张锡
WJ STUDIO万境设计注重建筑内、外空间的延续性和创造性思考,从理解建筑、周边环境以及产品核心内容出发,探索空间、人与自然的联结,为使用者创造实用性、互动性、个性化的室内、外空间。WJ STUDIO万境设计擅于整体性设计服务,运用规划、建筑、景观专业资源和经验,在商业、房产、办公、酒店及特殊探索型项目上具有丰富的实践经验。
“我相信有情感的建筑,“建筑”的生命就是它的美,这对人类是很重要的。对一个问题如果有许多解决方法,其中的那种给使用者传达美和情感的就是建筑。”
——路易斯·巴拉干
我们的附近正在消失,但无论身在何处,我们对家的向往是不会变的。或许空间变得模糊,人与人之间的距离才会更加清晰。
绚烂的霓虹街道、复古文艺打卡地、明亮的商场,无一不都是属于年轻人的狂欢。我们需要这样一个模糊的空间,哪怕是一家书店,或许正是成为拉近家人距离的一种可能。
人生的车站
Station of life
耘林阅府开在生命公寓的公区,走进大厅就是复古会堂般的圆顶,星光散落其中。老式车站的墨绿色与胡桃木色将人的思绪拉到了年轻时踏上列车去远方奋斗的日子。看似复古却在空间格调的映衬下带来更具调性的优雅与别致。
生活的Siri
人们会走进书店,大都希望从现实生活中暂时抽离,像Siri一样陪伴身边,提供真实、安心的物理空间。
我们需要这样一个模糊的空间,哪怕是一家书店,或许正是成为拉近家人距离的一种可能。阶梯设计旋转而上,象征着人们对文化、艺术的追求。沿着走廊往前,那里有舒适的座椅,斜靠着吧台点一杯冰咖,生活在别处。
我们希望通过色彩、空间、业态组合引导人们向美好靠拢,用一个略带诗意且陌生的空间讲述有熟悉感的生活。
书店、花艺工坊、时装、咖啡甜品、亲子阅读、潮流等功能性空间赋予人们多元化思考方式,橙色旋转楼梯与上层美术馆相连,色彩上的跳跃使空间产生鲜明的视觉对比。
童真的乐园
从孩子的视角步入大厅,便会把眼前的事物与童话联系起来:大厅里巨大的橙色滑梯上有精灵在飞,穿过宫殿的城门就是一片梯田,仙女教母让云朵降落,天上的月亮才露出全貌。
橙色滑梯的顶端,是星星在夜空眨眼,是向日葵在微笑,是少年吹着肥皂泡般的舒适与闲逸。
城市的会客厅
耘林阅府-生活美学体验空间于10月在无锡耘林生命公寓中落成。我们用设计讲述了生活中每一个关于家的温馨时刻。
耘林阅府作为生活共享空间,将热门养老业态与家庭需求融合在一起。这里丰富、多彩,没有数字壁垒,不把惊喜、意外、多元隔开,记录由家人陪伴的美好时光。
这里有专为老人设计的阅读车厢,在方正安静中轴对称的私密阅读间里选一本好书,回忆的列车就让它驶向远方吧。
设计细节
擦肩
Pass by
你还记得大学时在图书馆偶遇的女孩吗?在狭长的过道,一次擦肩足以心动。
我们希望耘林阅府是温暖而有人情味的,为了营造这种亲密感,我们将走道面积分走了一部分,在视觉上不会局促、闭塞的同时拉进人与人的距离。
迷宫
maze
生活就像一座迷宫,总有要回头的时刻。在动线设计上,我们没有替顾客安排好一条完整的路线;在以书架为主轴的路上,有许多路口,你可以随意去你喜欢的区域探索,在不断发现、阅览、折返中产生惊喜和机遇。
结语
Concluding remarks
生活美学的践行者
Practitioner of life aesthetics
完成整个空间策划后,仿佛看见未来的一个周末。孩子去挑选新的故事书,妻子选了一本杂志去共享空间点了一份下午茶,父母坐在胡桃木色的沙发上静享此刻。
颠覆传统设计,构造一座生活美学体验馆,从生活出发,以向往的情感为基准,打造一处欢乐、分享、温情体验的多元空间。
一个好的空间是让时间不断沉淀的结果。在设计初期,我们自然会向着网红打卡和流量考虑,流量运营变化很快,但生活需求变化远不及科技发展要求我们做的变化。
关注客户自身内容,充分发挥设计审美优势和人文关怀,用美好的空间吸引美好的人,发生美好的事,让美好自然发生。
项目信息
项目名称 | 耘林阅府
项目地址 | 江苏 无锡
项目面积 | 1330㎡
完工时间 | 2021.10
设计机构 | 花生联盟(HDU²³ )
创意总监 | 陆亚昕
设计团队 | 祁正龙、蒋心怡、杨敏宇
灯光设计 | 米未照明
项目摄影 | 陈铭
主要材料 | 木饰面、铝板、不锈钢、艺术漆
版权声明:我们致力于保护作者版权,注重分享,被刊用文章【学校大厅设计图片(图书馆)】因无法核实真实出处,未能及时与作者取得联系,或有版权异议的,请联系管理员,我们会立即处理! 部分文章是来自自研大数据AI进行生成,内容摘自(百度百科,百度知道,头条百科,中国民法典,刑法,牛津词典,新华词典,汉语词典,国家院校,科普平台)等数据,内容仅供学习参考,不准确地方联系删除处理!;
工作时间:8:00-18:00
客服电话
电子邮件
beimuxi@protonmail.com
扫码二维码
获取最新动态
