号外!号外!你们心心念念的福利来了~
更多室内设计学习文章,资料,教程,软件,插件,方案,施工工艺材料等可以关注私信小编,不懂的地方,欢迎大家留意交流
本资料为[徐州]泰国P49-苏宁凯悦酒店大堂丨全日制餐厅CAD施工图+高清效果图+设计说明(附建筑幕墙施工图),酒店室内设计出自全球知名的设计公司P49之手,曾经为Six Sense、四季等奢华酒店及Indigo、万丽等生活方式品牌打造出多家在业界口碑俱佳的酒店。P49深谙酒店与当地文化的融合之道,让凯悦酒店与徐州这座城市有了更多连接点。徐州是一个历史古城,拥有深厚的文化积淀,P49则通过将独具特色的中式文化元素和艺术作品,以简约、现代和独特的手法融入酒店设计之中。酒店内部的设计是以国际化的时尚风格为主,并将一些可以反映中国文化的艺术作品和手工艺品点缀其间,既确保了奢华舒适,又与凯悦全新的品牌理念永恒、令人惊喜不谋而合。资料内容包含:高清效果图、CAD+PDF施工图、建筑幕墙PDF施工图、设计简介等
部分效果图:
理想的室内空间只有在精确的施工图纸的指导下,才能得以完美的实现。好的施工图纸详细、完整、严谨,清晰直观,每一步都有矩可行,便于施工方了解项目情况,顺利展开施工。
施工图是确保设计方案完美落地的强有力保障,而符合客观事实的概念方案会推动施工的顺利进行。所以,施工与方案的沟通不容忽视,沟通的优劣决定设计方案能够完美正确的转换为施工图。只有两者密切配合,才能带给人们既美观又实用的空间体验。
一张好的施工图纸,会告诉设计师采用何种材料更经济,何种工艺更利于施工,把握各种尺度以满足客户的使用要求,以较低的工程成本达到较高的艺术效果。
用严格专业的态度面对设计,用耐心细致的服务面对客户,是每一个艺鼎人坚持不懈的追求!艺鼎设计团队愿更多的设计作品在完工后展现出的面貌和最初的设计意图形成高度一致,都能初见惊艳,再见依然。
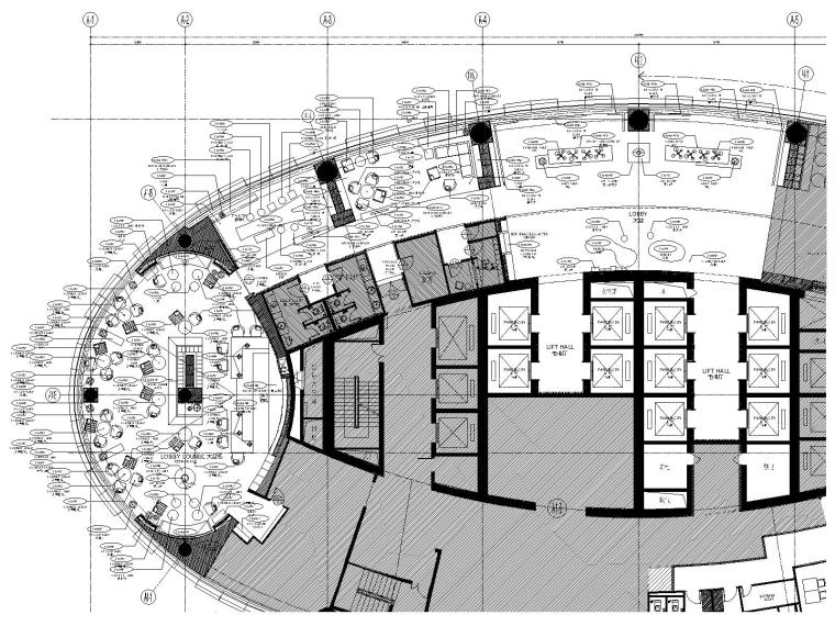
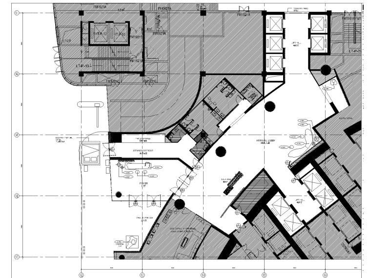
大堂及大堂吧家具布置平面图
到达大堂家具布置平面图
全日餐厅家具布置平面图
大堂及大堂吧天花布置平面图(低天花)
5大堂及大堂吧天花布置平面图(高天花)
大堂及大堂吧电气点位平面图
大堂及大堂吧地坪布置平面图
总缩略图
资料免费领取1.点击右上角关注2.转发或评论:“任意内容”即可获得免费领取权限3.领取方式:私信:“资料”或者“cad插件”即可领取
4.私信方式:点击我头像,进入主页面,右上角有私信功能,在关注的上方~
版权声明:我们致力于保护作者版权,注重分享,被刊用文章【学校食堂平面图(室内设计)】因无法核实真实出处,未能及时与作者取得联系,或有版权异议的,请联系管理员,我们会立即处理! 部分文章是来自自研大数据AI进行生成,内容摘自(百度百科,百度知道,头条百科,中国民法典,刑法,牛津词典,新华词典,汉语词典,国家院校,科普平台)等数据,内容仅供学习参考,不准确地方联系删除处理!;
工作时间:8:00-18:00
客服电话
电子邮件
beimuxi@protonmail.com
扫码二维码
获取最新动态
