作为余杭对外展示形象的窗口,临平新城核心区如今商贾繁荣、高楼林立。
以迎宾路为中心,临平银泰城、西子国际、华元华乐城、崇邦余之城、永安大厦、互联网金融中心、余杭商会大厦等众多商务楼宇一座接一座,同时已经投入使用的余杭大剧院、余杭区一院、余杭高铁站等完善的大型配套的也充分展示了临平现代都市的形象。
▲临平新城核心区
不过也因为临平新城核心区域一直以来更加偏向商业商务建筑的开发,打造城市形象,所以在住宅建设方面相对临平其他区域速度要慢很多。
过去的两年,除了老盘东海水景城六期外,整个临平新城核心区几乎无任何住宅新盘入市,而现有住宅也较为分散,没有形成大型的居住区。
也因此,临平新城核心区域也常常会被小小的抱怨:虽然配套高大上,但却因人少而使得居住氛围略微单薄。
现状很快就将改变!
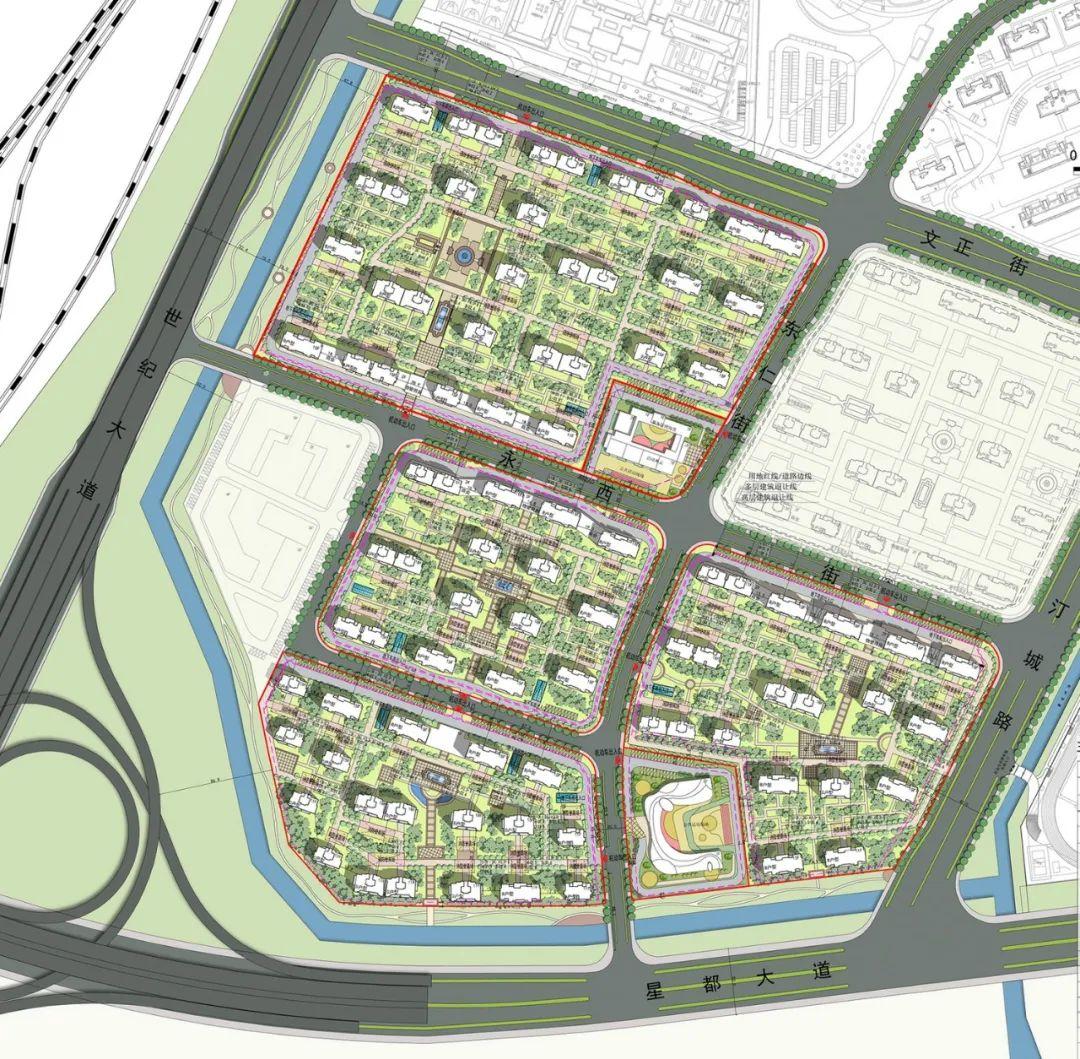
近日,临平新城核心区良熟区块多个地块选址公示,一座大型的居住区正在成型!
此次论证地块东面紧邻临平重要产业中心艺尚小镇及沪杭高铁余杭站,西面为临平新城通往杭州主城区的要道——世纪大道。规划地块北至文正街、东至东仁街/汀城路、南至星都大道、西至世纪大道。
规划A-2-01地块用地面积13.83公顷(约207.53亩),拆分为3个住宅地块(地块编号分别为A-2-07~ A-2-09)、18班幼儿园1所(地块编号为A-2-10),其中住宅地块用地面积分别为3.62公顷、3.6公顷、4.52公顷和0.90公顷,新增道路用地面积1.19公顷;
A-2-02地块用地面积8.06公顷(约120.91亩),其中住宅用地面积7.46公顷,配建12班幼儿园(地块编号为A-5-10)用地面积0.6公顷。
根据选址论证报告暨控规局部调整,此次住宅地块开发指标容积率2.0-2.2,建筑密度≤22%,绿地率≥35%,建筑限高≤54米,规划1所12班和18班幼儿园满足幼儿园就学需要;幼儿园开发指标为容积率0.6-1.0,建筑密度≤30%,绿地率≥30%,建筑高度≤15米。
▲选址地块调整后指标(4住宅+2幼儿园)
▲4住宅地块指标
▲2幼儿园地块指标
▲选址地块模拟方案总平图
▲选址地块模拟方案效果图
此次选址论证公示的4宅地+2幼儿园位于临平新城核心区良熟区块的南部,也是整个良熟居住片区仅剩的宅地。
良熟居住区范围主要为望梅高架路-星河南路-星都大道-留石高架路围合区域。
目前已有:良熟新苑、万泰城章、赞成首府、锦良嘉苑一期、锦良嘉苑二期、锦良嘉苑三期、锦良嘉苑四期、景瑞御华府,加上南苑街道的华元花涧堂和水汀人家共10个住宅小区!
配有临平三幼青禾分园、万泰幼儿园、乔司街道幼儿园等3所幼儿园和1所小学:天长世纪小学。
同时,区域内还有首创.禧瑞江南、中交理想.时代芳华、中交.悦美庐、阳光城保亿.翡丽云邸4个住宅项目在建,预计将从4月开始陆续开盘销售。
▲良熟待售楼盘
此外,根据临平新城2020年宅地出让计划,紧邻此次选址论证地块的两宗宅地也将在今年出让。
▲良熟待出让地块
位于良熟区块的上海华师大二附中杭州信达学校也在建设中,规划的良熟九年一贯制学校也即将在今年启动建设。
随着4个在建住宅陆续销售交付、2宗宅地今年出让,以及此次选址的4宗宅地和2所幼儿园的规划出炉,临平新城核心区良熟区块已经基本被填满。
▲良熟区域项目分部
紧邻迎宾路中央商务区,被余杭大剧院、艺尚小镇、东湖公园、体育公园团团围住的良熟区块,未来将拥有 20个住宅区、3所中小学、5个幼儿园,大量人口的入住将更加活跃临平新城的商业氛围,提升临平新城居住成熟度。
临平,
杭州东部宜居之地
欢迎您来!
以上,希望你喜欢
...END...
图片-撰文-编辑 | 威廉
选址公示信息来源 | 杭州.余杭政府门户网站
版权声明:我们致力于保护作者版权,注重分享,被刊用文章【信达学校(临平又一大型居住区成型)】因无法核实真实出处,未能及时与作者取得联系,或有版权异议的,请联系管理员,我们会立即处理! 部分文章是来自自研大数据AI进行生成,内容摘自(百度百科,百度知道,头条百科,中国民法典,刑法,牛津词典,新华词典,汉语词典,国家院校,科普平台)等数据,内容仅供学习参考,不准确地方联系删除处理!;
工作时间:8:00-18:00
客服电话
电子邮件
beimuxi@protonmail.com
扫码二维码
获取最新动态
