根据相关资料显示,2022年9月武汉商品住宅成交6668套,武汉城建华发时光销售969套,超出第二名美联藏龙甲地820多套。
成为武汉市销量冠军,我们来看看这个项目
参考价格:
价格:13500.00元/平方米
物业类别: 普通住宅,住宅底商项目特色: 品牌地产 地铁沿线建筑类别: 板楼装修状况: 毛坯产权年限:普通住宅:70年住宅底商:40年环线位置: 三至四环开发 商: 武汉地华志合房地产开发有限公司楼盘地址: 轻轨1号线三店站旁,东西湖区径河街吴新干线以东、三店南路以南效果图
周边直线3km范围内有6个地铁站(三店、码头潭公园、径河、新城十一路、五环体育中心、东吴大道),轨道交通发达,距离最近的地铁站是三店。
周边直线1km内有14个公交站,距离最近的九通路三店西路北站仅有344m,周边公共交通极为便捷
直线3km范围内有31个幼儿园; 6个小学,如东西湖吴家山第一小学、吴家山第三小学、武汉市东西湖区莲花湖小学、吴家山第一小学(西校区)、吴家山第一小学(东校区)等; 7个中学,如武汉市吴家山中学、武汉市恒大嘉园学校、武汉市三店学校、武汉市吴家山第三中学、武汉市吴家山第二中学等。
楼盘直线3km范围内有1个一级及以上医院。其中东西湖区人民医院距离楼盘1.2km,为医疗需求提供了保障。
楼盘周边3km范围内有3个商场,包括东西湖中心广场等购物中心,商业配套成熟,完全可以满足日常购物需求。
楼盘周边生态环境优越,周边3km范围内有15个公园,距离最近的仅1km,非常方便日常休闲使用。
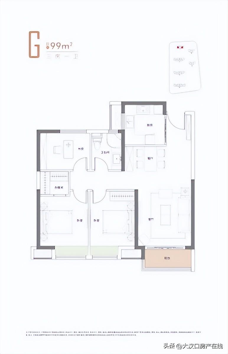
户型鉴赏
99平三室两厅
户型方正动静分离客厅朝南卧室朝南三开间朝南
124平三室两厅两卫
样本间
关注我,了解更多资讯,买房不迷路,买好一套房,胜过十年忙,最新房地产资讯、政策,楼市讯息、学区房等资讯,大汉口房产在线创始人,买房如何避坑,如何买到称心性价比高的房子,新房折扣
版权声明:我们致力于保护作者版权,注重分享,被刊用文章【武汉恒大嘉园学校(9月份武汉市销冠楼盘是什么来头)】因无法核实真实出处,未能及时与作者取得联系,或有版权异议的,请联系管理员,我们会立即处理! 部分文章是来自自研大数据AI进行生成,内容摘自(百度百科,百度知道,头条百科,中国民法典,刑法,牛津词典,新华词典,汉语词典,国家院校,科普平台)等数据,内容仅供学习参考,不准确地方联系删除处理!;
工作时间:8:00-18:00
客服电话
电子邮件
beimuxi@protonmail.com
扫码二维码
获取最新动态
