
北京地处中国北部、华北平原北部,东与天津毗连,与河北相邻。是中华人民共和国首都、省级行政区、直辖市、国家中心城市、超大城市,国务院批复确定的中国政治中心、文化中心、国际交往中心、科技创新中心。

北京工业大学,于1960年始建,坐落于北京市,是一所以工为主,工、理、经、管、文、法、艺术、教育相结合的多科性市属重点大学,也是国家“211工程”建设高校、世界一流学科建设高校。

北京工业大学建筑与城市规划学院于2003年5月成立;下设建筑学系、城市规划系。国家文物局“木结构古建筑安全评估与灾害风险控制”重点科研基地、 北京市历史建筑保护工程技术研究中心等省部级科研平台, 以及全国城市抗震防灾规划审查委员会、 中国城市规划学会城市安全与防灾规划学术委员会、 中国古迹遗址协会防灾减灾委员会等国家级学术组织机构挂靠学院建设运行。
学硕:
研究方向:(01)建筑设计及其理论(02)建筑历史与理论及遗产保护(03)建筑科学技术,2021统考招收人数:5人
专硕:
研究方向:(01)公共建筑及其环境设计(02)建筑历史与理论及遗产保护(03)居住建筑及其环境设计(04)建筑科学技术与设计(05)城市设计
2021统考招收人数:30人(全日制)15人(非全日制)
初试考试科目
0813建筑学学硕:

▲2020北京工业大学建筑学(全日制)学硕招生目录
考试科目:① 101 思想政治理论② 201 英语一③ 355 建筑学基础④ 504 建筑学术快速设计(6小时)
注:北京工业大学建筑学学硕原则上只接收建筑学、城乡规划学专业的考生报考。
0851建筑学专硕:

▲2020北京工业大学建筑学(全日制)专硕招生目录
考试科目:① 101 思想政治理论② 201 英语一③ 355 建筑学基础④ 507 建筑专业快速设计(6小时)
注:北京工业大学建筑学专硕原则上只接收建筑学、城乡规划学专业的考生报考。

▲2020北京工业大学建筑学(非全日制)专硕招生目录
考试科目:① 101 思想政治理论② 201 英语一③ 355 建筑学基础④ 507 建筑专业快速设计(6小时)
注:北京工业大学建筑学专硕原则上只接收建筑学、城乡规划学专业的考生报考。
复试:0813建筑学学硕:

▲2020北京工业大学建筑学学硕复试细则
考试科目:① 建筑快题设计(3小时)② 面试:包括综合素质、专业知识及英语测试
0851建筑学专硕:

▲2020北京工业大学建筑学专硕复试细则
考试科目:① 建筑快题设计(3小时)② 面试:包括综合素质、专业知识及英语测试
加试科目:①设计基础;②美术基础
成绩计算方式:总成绩合成:加权总成绩=[初试成绩总分×1/5×50%]+[复试成绩总分×50%]
历年初试分数线:

▲近五年北京工业大学建筑学硕初试分数线
初试分数线:2016年建筑学硕初试分数线为310分,2017年建筑学硕初试分数线为325分,2018年建筑学硕初试分数线为305分,2019年建筑学硕初试分数线为270分,2020年建筑专硕初试分数线为290分

▲近五年北京工业大学建筑专硕初试分数线
初试分数线:2016年建筑专硕初试分数线为265分,2017年建筑专硕初试分数线为306分,2018年建筑专硕初试分数线为260分,2019年建筑专硕初试分数线为270分,2020年建筑学硕初试分数线为334分
历年录取人数:

▲历年北京工业大学建筑学硕录取人数
历年录取人数:2016年北京工业大学建筑学硕录取5人,2017年北京工业大学建筑学硕录取6人,
2018年北京工业大学建筑学硕录取6人,2019年北京工业大学建筑学硕录取4人,2020年北京工业大学建筑学硕录取9人

▲历年北京工业大学建筑专硕录取人数
历年录取人数:2016年北京工业大学建筑专硕录取30人,2017年北京工业大学建筑专硕录取47人,2018年北京工业大学建筑专硕录取52人,2019年北京工业大学建筑专硕录取50人,2020年北京工业大学建筑专硕录取45人
北京工业大学近十五年建筑快题总结:
2005:大学生之家设计
2006:社区图书馆设计
2007:村民综合中心设计
2008:敬老院设计
2009:游客综合服务中心设计
2010:城市博物馆设计
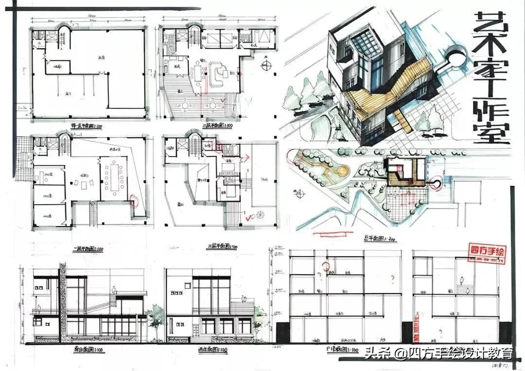
2011:艺术家创作中心设计
2012:国际小学设计
2013:社区健身俱乐部方案设计
2014:老城区市民活动中心设计
2015:老人日间托管中心设计
2016:国际青年旅社设计
2017:大学生创客工坊设计、北京郊区某公园滨水餐厅设计
2018:游客接待中心设计
2019:北方某剧场建筑设计
2020:共享办公设计



▲2017年北京工业大学建筑考研快题真题





▲北京工业大学建筑学专业参考书籍
其他理论参考书:《中国古代建筑史》、《建筑物理》、《建筑结构》、《建筑结构选型》
好了,今天北京工业大学的建筑考研指南就分享到这儿了,下期大家想看哪所院校的专业解析可以私聊或者评论区留言哟。全国各地高校设计类考研真题快题资料等你来拿。
感谢阅读。
版权声明:我们致力于保护作者版权,注重分享,被刊用文章【北京工业大学研究生考试(院校解析丨北京工业大学建筑考研指南)】因无法核实真实出处,未能及时与作者取得联系,或有版权异议的,请联系管理员,我们会立即处理! 部分文章是来自自研大数据AI进行生成,内容摘自(百度百科,百度知道,头条百科,中国民法典,刑法,牛津词典,新华词典,汉语词典,国家院校,科普平台)等数据,内容仅供学习参考,不准确地方联系删除处理!;
工作时间:8:00-18:00
客服电话
电子邮件
beimuxi@protonmail.com
扫码二维码
获取最新动态
