江河单元式、石材、铝板幕墙培训教材!(来源:门窗幕墙联盟吧 )
一、与框架幕墙和铝窗的比较;
二、如何选择幕墙的形式:
一般情况下,业主档次较高时,推荐单元式幕墙,质量较好,工期短,但价格较贵。业主很在乎钱时,则推荐框架幕墙,现场施工精度难保证,工期长,价格较便宜。
海外项目一般采用单元系统,这是因为当地很少幕墙的劳工或劳工较贵。
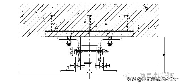
海外或内地较高档次的业主幕墙系统的钢结构支架尽量设计为工厂加工现场螺栓连接,以减少工地焊接工作量。
三、单元式幕墙的防水原理
防水三要素:水、缝隙、压力差;等压腔原理,逐层排水;

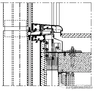
四、细节
1、优先选用铝合金挂系统,即使受力能够通过,铝型材的牌号都选用6061-T6,不要选用6063-T5或T6的铝型材做为铝挂件,为减少工程造价也可采用钢挂件;2、避难层的钢结构一般属于幕墙范围;3、如果幕墙的层间防火要求2小时,则防火棉一般为135mm西斯尔(CSR)品牌;4、幕墙层间位的窗帘不属于幕墙范围,但要用虚线表示清楚,并注明不是我们范围;5、单元幕墙宜优先选用槽式预埋件,板埋或后补埋件很少采用;槽式预埋件距边的要求有要求,一般不小于100mm,如果不够距离,可采用板埋,如图一所示;6、埋件预埋的方式分为平埋和侧埋两种;
图一:平埋 侧埋
7、层间位一般采用中空玻璃及背板,背板与玻璃的空隙大于50mm以上,如图二;

图二
8、为降低工程造价,层间位可选用单片玻璃加背板,缺点是有色差;
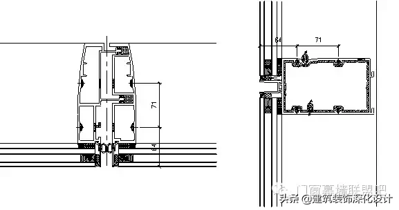
9、幕墙单元板块之间的接缝在12~20mm左右,具体根据计算确定,如图三所示;

图三
10、开启扇凹陷内单元立柱内时,应特别注意层间位置时,需补回一拼料,如图四。

图四
11、开启扇开出去的直线距离不大于300mm(或三十度,先达到那个就以那个为准),且应有限位措施;
12、一般来讲一个标准单元的高度为一个标准楼层高,很少一个楼层采用两个单元的,当避难层层高较高时,则分为两个单元。
13、玻璃的自重不应由结构胶单独承受,如果由铝型材来承受,铝型材厚度不小3mm;
14、背板与玻璃形成的腔体内应设置排水孔和冷凝水(腔体下面)及水蒸汽孔(腔体上面);如图六

图五

图六
15、在单元体的中横料和顶底横料内就打胶并在两侧的立柱开孔用于排除横料腔体的水;
16、单元体竖向装饰条就有保证其垂直度的措施,并应考虑装饰条损坏后的拆换和安装;
17、转角和大面尽量采用同一种料,以减少开模数量;
18、单元体挂码应考虑三维可调和微调,并考虑承受位移的能力及承受地震荷载的能力;

图七 竖向装饰条保证垂直度的措施
19、转角单元体分格有一个水平分格小于750mm,尽量做成一个单元体;
20、水槽料的端码一般为250mm长,去水也尺寸为30mm(高度)x50mm(宽度),排水孔距中心250mm左右,且排水孔位应设置疏通海棉;
21、结构受力时,如装饰条较大,应考虑装饰条受风荷截作用时对立柱产生扭矩的影响;
22、有MFT和ARUP顾问公司的投标项目,外型尺寸不要去修改;
23、窗台盖板需增加100mm的套板,留2mm接缝,如图八
24、单元体竖向立柱与后与水槽位相接(即四个单元板室内相接处应打胶密封),如图八

图八
25、单元体上下插接位,在两单元体之间应设置防漏气海绵,一般为100mm长,如图九;
图九
26、单元体的水槽位应设计成可包手整个立柱的形式;
27、国内一般采用闭口型材,新加坡等风压较小地区可采用开口型材;
28、水槽料的插接和单元体的搭接尺寸需考虑热胀冷缩和施工误差,一般为10~16mm;

图十
29、横梁与立柱的螺丝孔应相对应,且铝立柱局部厚度不应小于螺丝的公称直径,螺丝直径一般为ST5.5x50mm自攻螺丝,单元体的横梁和立柱插接口应相对应,如图十一。

图十一
附:装饰条受风压作用后对立柱产生的扭矩计算过程(以太古汇T1为例)
此处立柱部位外部有装饰条结构,节点如下

立柱除承受水平风荷载作用外,还承受由侧向风荷载产生的扭矩作用。
1、侧向风荷载计算
风荷载标准值
根据招标文件风洞试验报告,风荷载标准值最大为-3.5KN/m2,
2、侧向风荷载对立柱产生的扭矩作用
立柱装饰条悬挑a=300mm。跨度b=4200mm
风荷载作用在装饰条上的力F=w×a×b=3.5×1.4×0.3×4.2=6.17 KN
作用力F中心至公料形心:
L=266mm
作用力F产生的扭矩T=F×L=6.17×0.266=1.64 KN.m
扭矩作用全部作用在公料上

扭矩对公料产生的剪切应力:
τ=

=

=34.82 N/mm2
由水平风荷载对立柱产生的正应力与侧向风荷载对立柱产生的剪切应力组合:
σ=

=

=109.6 N/mm2 < 140 N/mm2
满足要求!
五.其它
一、主要材料要求
1. 石材:
厚度至少25mm,一般为30mm;石材宜选用火成岩即花岗岩,石材吸水率应小于0.8%,如吸水率过大,则采用树脂浸泡,将石材的毛细孔堵住,不易吸水,如广州白云国际会议中心的红砂岩;石材弯曲强度不应小于8.0Mpa;石材六面做防水处理;石材规格一般为800x800,600x1200,其它大过此尺寸及异形需与厂家沟通;石材一般采用四点支撑,如采用六点支撑时需采用SAP2000进行验算;2.钢材:
横梁立柱一般采用钢型材Q235B,壁厚不得小于3.5mm(一般不小于4mm)。立柱一般采用钢通,槽钢,很少采用角钢;横梁一般采用角钢,很少采用钢通;石材龙骨表面镀锌处理,膜厚符合以下要求:注:摘自引自GB/T13912-2002《金属覆盖层钢铁制件热镀锌层技术要求及试验方法》。
二、构造要求
1.石材的胶缝一般为10mm,也可做8mm,12mm;
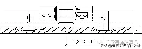
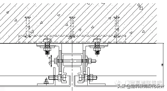
2.立柱应采螺栓与角码连接,并再通过角码与预埋件或钢构件连接。螺栓直径不应小于10mm。

3.通槽支承石板,铝合金挂钩的厚度不应小于4mm,不锈钢的厚度不应小于3mm

4..两短槽边距离石板两端部的距离不应小于石板的厚度的3倍且不应小于85mm,也不应大于180mm;

5.横梁与立柱连接采用螺栓连接(如上图所示)
三、安装顺序
预埋件的安装→主龙骨的安装→横梁的安装→挂件的安装→石材的安装→打胶→清洁
四、石材幕墙的形式
1.钢销式(很少用,基本不用)
2.T型件式(造价较低,经常采用)


3.铝合金挂件式(也不多用,主要是因为造价也不便宜,还不如做背栓)


4.背栓式


花岗岩板块的支承形式常用钢销式、短槽式、通槽式、背栓式四种类型。
五、细部要求
1.石材的倒角一般为2mm;
2.石材开缝时需做等厚度处理,打胶则不需等厚处理。
3.退缝打胶一般为5mm
4.一般采用钢通做为龙骨,如考虑造价因素可采用槽钢,但需在槽钢位加一个垫板
5.如错缝时则采用横向固定;
6.套芯总长度不应不小于400mm,伸缩缝位至少15mm;
7.为降低工程造价,一般石材幕墙背后均为剪力墙,则可设多处埋件。
8.顶部石材就设置一定的坡度
9.转角位石材拼缝时应倒角,防止崩角。
10.背栓式石材幕墙调节螺栓仅在此一个挂件才有调节螺栓;
11.一般工程建议采用铝合金T挂件,这是因为
不锈钢挂件与铝合金挂的比较

不锈钢挂件实物 铝合金挂件实物

铝合金挂件三维图
12.开缝石材需设置背板,背板一般为1.2mm铝板、1.5mm镀锌钢板、EPDM胶皮,或土建直接在混凝土刷涂料。
13.补强石的处理或转角连接件
六.其它
一、主要材料要求
1. 铝板:
直接承受风压的铝板厚度至少2.5mm,一般为3mm;用铝板做为背板时,背板的厚度通常视顾问公司及业主的要求,一般为1.5mm和2mm;铝板厚度及最小能弯折尺寸列表:

错误画法 正确画法
穿孔铝板的计算需采用SAP2000进行验算;2.钢材:(同石材幕墙)
横梁立柱一般采用钢型材Q235B,壁厚不得小于3.5mm立柱一般采用钢通,槽钢,如果采用槽钢时很少采用角钢;横梁一般采用角钢,很少采用钢通;铝板龙骨表面镀锌处理,膜厚符合以下要求:未经离心处理的镀层厚度最小值
注:摘自引自GB/T13912-2002《金属覆盖层钢铁制件热镀锌层技术要求及试验方法》。
二、构造要求
1.铝板的胶缝一般为10mm,也可做8mm,12mm;
2.立柱应采螺栓与角码连接,并再通过角码与预埋件或钢构件连接。螺栓直径不应小于10mm。

三、安装顺序
预埋件的安装→主龙骨的安装→横梁的安装→铝板的安装→打胶→清洁
四、铝板幕墙的形式
1.打胶系统
此种做法为常规做法,标准节点如下:

2.开缝系统(背后防水一般采用主体结构刷防水涂料的做法,也有采用背板防水的做法)
① 采用铝板边做为挂件系统;
② 采用加强筋或是专用铝挂件做为挂接系统,加强筋一般为通长构件;


3.室外看不到胶
③ 采用铝槽的做法也有,此种做法缺点是不易控制施工误差,如下图。

④ 采用专用铝件,但费用较贵;
五、细部要求
1.铝板加强筋布置时的焊钉一般为铝焊钉,规格为M6x15,间距为300mm
2.在有MFT和ARUP为顾问的工程应特别注意,背板就查看技术说明是否需要设置加强筋。
3.铝板的折边一般为20mm;
4.一般采用钢通做为龙骨,如考虑造价因素可采用槽钢,但需在槽钢位加一个垫板
5.如错缝时则采用横向固定;
6.套芯总长度不应不小于400mm,伸缩缝位至少15mm;
7.为降低工程造价,一般铝板幕墙背后均为剪力墙,则可设多处埋件。
8.顶部铝板就设置一定的排水坡度
9.为适应加工误差,铝板加强筋在铝焊钉位一般开长孔;
10.铝板、铝型材一般不宜采用焊接;
10.加强筋布置时应与折边有效连接,并在龙骨位切口避位,如下图


六.其它
七、铝板规格补充(咨询东莞金边金属有限公司)
铝板的板材长度一般可以做到7米以下,主要是看铝板的宽度:
1)通常宽度的规格是1300~1400mm;(因为一般铝厂,如广铝,3003材质的铝板宽度一般只能做到1400mm)
2)1500~1800mm,价格贵三四十块一平米,供货周期45天。3003材质铝板一般要到大型的铝厂定做,如西南铝,所以周期较长。
3)1800~2300mm,供货时间翻番,2、3个月。
如果觉得对你有帮助,欢迎大家分享!
版权声明:我们致力于保护作者版权,注重分享,被刊用文章【装饰设计培训(江河单元式)】因无法核实真实出处,未能及时与作者取得联系,或有版权异议的,请联系管理员,我们会立即处理! 部分文章是来自自研大数据AI进行生成,内容摘自(百度百科,百度知道,头条百科,中国民法典,刑法,牛津词典,新华词典,汉语词典,国家院校,科普平台)等数据,内容仅供学习参考,不准确地方联系删除处理!;
工作时间:8:00-18:00
客服电话
电子邮件
beimuxi@protonmail.com
扫码二维码
获取最新动态
