导 读
7月8日,宝安区城市更新和土地整备局公布招商臻府《建设工程规划许可证》及总平面图的通告。
也就是说,招商地产在宝安布局了一个项目,而此前,招商臻府这个项目在市场上并没有什么消息。
那么这个项目具体位于宝安哪里?又是怎样的一个项目?下面一起来看看。
总建面约15万平
将建5栋住宅塔楼和1栋幼儿园
深圳招商房地产有限公司开发的“招商臻府”项目的宗地号为:A007-0566,位于宝安区新安街道。
2018年10月,深圳市宝安区城市更新局国有土地使用权协议出让公示A108-1168、A007-0566等8个地块。
其中,招商地产以成交价20119.871万元获得位于宝安区新安街道的A007-0566宗地。
土地用途为中低价位、中小套型普通商品住房用地。
《建设工程规划许可证》
根据《建设工程规划许可证》显示,项目名称为“招商臻府”,将建5栋住宅塔楼(其中一栋为保障房)和1栋幼儿园。
楼栋分布示意图
项目绿化覆盖率为40.03%,建筑高度限定为156.4米以下,地上最大层数为43,地下最大层数为3层,停车位为1182个(地上2个,地下1180个)。
项目总建面为151988.74平,其中,住宅建面为95870平(含保障房19174平),商业建面为4000平(含246平物业服务用房),幼儿园建面为2400平,市政设施建面为700平,架空休闲建面为3224.34平,消防避难空间建面为1064.94平,架空公共空间建面为141.3平,公用设备用房建面为5471.49平,公用停车库建面为39116.67平。
值得注意的是备注中显示:项目应与文汇中学扩建用地(03地块,含地下空间)整体同步开发建设。
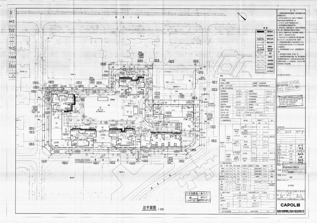
项目总平面图
根据公布的项目总平面图显示:项目住宅共243户(不含3栋保障房),其中户型套内建筑面积小于等于90平的共184户,占比75.75%。
3栋保障房共288户,其中,户型为50平的共64户,户型为65平的共224户。
各栋具体数据如下:
项目1栋A座住宅高度为132.25米,层数为40层,共144套;
项目1栋B座住宅高度为136.85米,层数为42层,共152套;
项目2栋住宅高度为139.95米,层数为43层,共156套;
项目3栋保障房高度为98.05米,层数为34层,共288套;
项目4栋幼儿园高度为12.55米,层数为3层;
项目5栋住宅高度为136.35米,层数为42层,共156套。
深圳文汇学校
交通、商业配套一般
接下来,一起看看项目周边的配套如何。
教育配套 项目位于省一级学校——深圳文汇学校旁,另外,周边还有上合小学,弘雅小学及永联学校,教育资源较为丰富。
因2019深圳中考成绩还未公布,用2018年深圳中考成绩作为参考。
在2018年深圳中考排名中(十大版),深圳文汇学校位于宝安第8位,宝安区近50所初中里属于上游位置;在全市位列60位,在深圳200多所初中里也属于上游位置。
但目前,宝安区采取了共享学区和分享学区入学的方式,项目未来所对应的中小学以宝安区教育局公布信息为准。
交通配套 项目1公里范围内有建安新村,文汇中学,前进天虹商场,弘雅小学,永联学校等多个公交站。
但项目距离地铁较远,步行至地铁5号线灵芝站约1.3公里(百度测距)
中洲购物中心(来源:百度百科)
商业配套 项目周边并无大型购物中心,但项目旁边就是前进天虹商场,而且项目建成后自带约4000平的商业。
另外,项目1公里范围内还有黄金台商业大厦,中洲购物中心,喜利宝购物广场等中小型购物中心,足以满足日常生活所需。
宝安中医院(来源:百度百科)
其它配套 医疗方面,项目1公里范围内有深圳宝生妇儿科医院、深圳市宝安中医院。
自然资源方面,项目1公里范围内有上川社区街心公园、裕安街心公园及流塘公园,远一点还有宝安公园和灵芝公园足以满足日常生活所需。
但项目周边并没有什么文体配套,需要到宝安中心区。
周边新房均价约5.6-6万/平
二手房均价约4-6.6万/平
新房方面,根据深圳中原网数据显示,项目周边在售新房价格在约5.6万—6万/㎡之间。
其中,联建君钰府公寓约5.6万㎡,住宅约6.5万/㎡之间;福城前海新纪元公寓约6万/㎡。
新安片区均价(来源:深圳链家)
新安片区二手房价格(来源:深圳链家)
二手房方面,根据深圳链家数据显示,项目片区均价约6万/㎡,周边在售二手房价格在约4万—6.6万/㎡之间。
其中,紧邻项目的西城品阁挂牌均价约5.8万/㎡,雅然居挂牌均价约5万/㎡,旭仕达名苑挂牌均价约5.8万/㎡。
深圳招商地产
中国最早的房地产公司之一
招商局地产控股股份有限公司(简称“招商地产”)是央企招商局集团三大核心产业之房地产版块的旗舰公司。
其是中国最早的房地产公司之一,国家一级房地产综合开发企业,是具备综合开发能力、物业品类丰富、社区管理完善的大型房地产开发集团,总资产达1300多亿元。
公司总部设于深圳,公司A股、B股在深圳证券交易所上市,B股在新加坡证券交易所第二上市,招商置地(HK.978)在香港联交所新上市。
目前,招商地产在深圳已开发了诸如:蛇口鲸山觐海、海上世界双玺、曦城招商局智慧城、蛇口网谷、南海意库等众多大家耳熟能详的项目。
版权声明:我们致力于保护作者版权,注重分享,被刊用文章【深圳市文汇学校(意外)】因无法核实真实出处,未能及时与作者取得联系,或有版权异议的,请联系管理员,我们会立即处理! 部分文章是来自自研大数据AI进行生成,内容摘自(百度百科,百度知道,头条百科,中国民法典,刑法,牛津词典,新华词典,汉语词典,国家院校,科普平台)等数据,内容仅供学习参考,不准确地方联系删除处理!;
工作时间:8:00-18:00
客服电话
电子邮件
beimuxi@protonmail.com
扫码二维码
获取最新动态
