设计培训石家庄室内设计平面UI.淘宝美工.短视频设计培训影视后期
室内设计课程【开设课程】:高级室内设计培训、室内设计效果图培训、家具设计培训、橱柜设计培训、全屋定制设计培训、软装设计培训、装潢设计培训、装修设计培训、室内手绘效果图培训、平面施工图培训、布局方案设计培训、室内CAD制图培训、CAD立面图设计、 PS后期、VR渲染、3dsmax高级、SU设计培训、3dsmax建模、室内方案设计、3dmax建模培训、3dmax渲染、3dmax设计培训、预算和量规范培训。
二、线性标注:DLI用于标注图形对象的线性距离或长度,包括水平标注、垂直标注和旋转标注3种类型。三、对齐标注:DAL所标注尺寸的尺寸线与两条尺寸界线起始点间的连线平行。四、基线标注:DBA用于产生一系列基于同一尺寸界线的尺寸标注,适用于长度尺寸、角度和坐标标注,在使用基线标注方式之前,必须创建线性、对齐或角度标注
。五、连续标注:DCO连续标注又称为尺寸链标注,它用于产生一系列连续的尺寸标注,适用于长度型尺寸、角度型尺寸和坐标标注。六、直径标注:DDI它是用于圆或圆弧的直径尺寸标注。七、半径标注:DRA它是用于圆或圆弧的半径尺寸标注。
八、角度标注:DAN标注特定的尺寸,比如圆
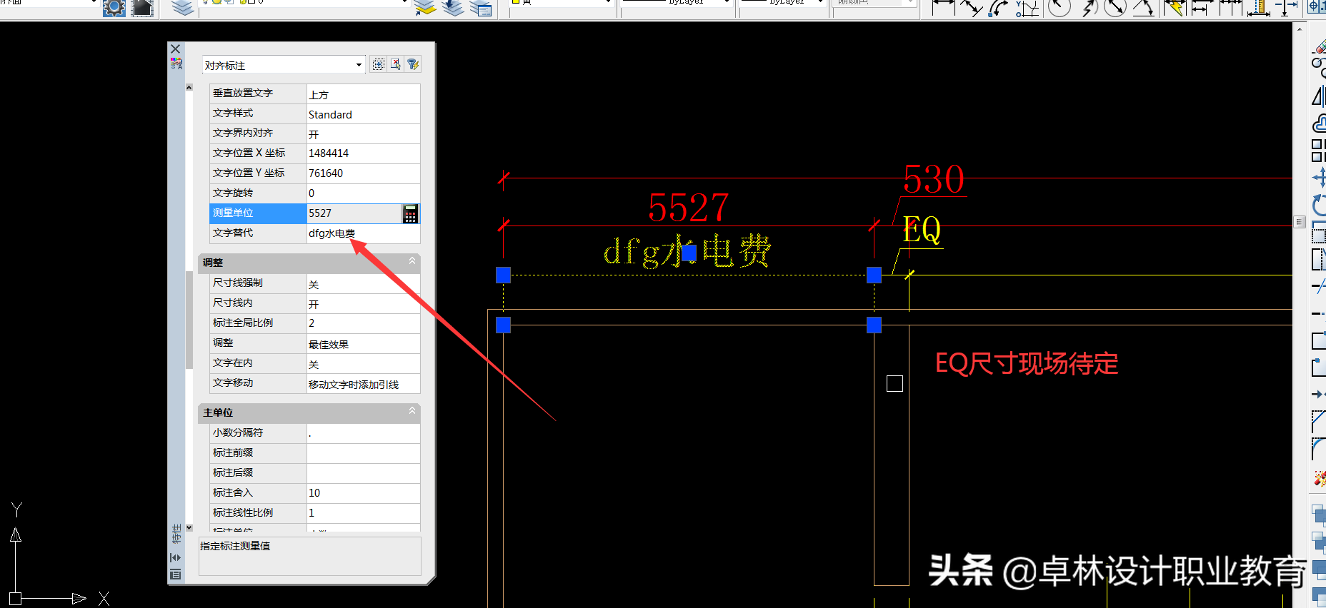
十一:多重引线标注:MLD多重引线可创建为箭头优先、引线基线优先或内容优先快速引线标注好处:快速便捷,随时用随时设置的。引线和文字是分离体可以分别便捷。缺点:每次用不同的的要重新设置,在大规模制图时工作量会增加。多重引线标注好处:系统画功能全,像尺寸标注内样。可以自己设置好标注的样式。用的时候一点就可以了。缺点;在小规模制图中,不是很便捷。显得很笨重。针对以上各种标注情况,如下图所示:
开设课程:学室内设计培训,学平面设计培训,学网页设计培训,学UI设计培训,学淘宝美工培训,学影视后期培训、学PR视频剪辑培训、学C4D二维包装培训、AE培训、视觉设计、logo设计、VI手册设计、品牌设计、学短视频剪辑制作培训,商业插画培训、影视动画培训、cad,ps,3dmax,VR渲染,AE+PR+C4D软件等,制图工具、PS、平面设计UI设计培训
版权声明:我们致力于保护作者版权,注重分享,被刊用文章【影视后期培训班(设计培训石家庄室内设计平面UI)】因无法核实真实出处,未能及时与作者取得联系,或有版权异议的,请联系管理员,我们会立即处理! 部分文章是来自自研大数据AI进行生成,内容摘自(百度百科,百度知道,头条百科,中国民法典,刑法,牛津词典,新华词典,汉语词典,国家院校,科普平台)等数据,内容仅供学习参考,不准确地方联系删除处理!;
工作时间:8:00-18:00
客服电话
电子邮件
beimuxi@protonmail.com
扫码二维码
获取最新动态
