南城省府,地段比较优越,湘府路两厢已非常繁华,基本与主城连成一片,只是目前教育资源不够强大,这样的情况将逐步被改变!
继去年长郡外国语实验中学落地,最近又落实了两所九年制学校,一所为石人学校,品牌待定;另一所命名为仰天湖实验学校,非常令人期待。

根据公开信息,两所九年制学校均为开发商地代建,其中仰天湖实验学校由北辰中央公园代建,石人学校为中建钰和城代建。
这就意味着,北辰中央公园、中建钰和城或将升级为双学区楼盘。
仰天湖实验学校效果图:

另外梦想天悦在拿地的时候,要求投资建设一所小学和一所中学的扩建(大概率为长郡外国语实验中学、长郡外国语第一附小),因此也有可能成为双学区楼盘。(最终请以教育部门公布为准)
长郡外国语实验中学效果图:

梦想天悦地块鸟瞰图:
加上之前的4个,天心区未来或将有7个双学区楼盘,一举赶上雨花区双学区房的数量。具体详见下表:
此外,天心区7大双学区楼盘,有4个是九年制学校(石人学校、仰天湖实验、长郡天心实验、青雅丽发),可以说是一大特色。
根据官网媒体报道,在天心区书香路与黑石铺路交界处,将由天心区与仰天湖教育集团重点打造一所九年一贯制公立学校,即仰天湖实验学校。

学校预计总办学规模为66个班,其中小学48个班,初中18个班。计划于2021年秋季小学部率先开学。

仰天湖教育集团是天心区教育局授牌的三个教育集团之一,正在建设的仰天湖实验学校将成为集团第七所学校。今年6月,根据长沙市自然资源局和规划局的批后公示,将在天心区书香路和黑石路东南角建设天心区新昌学校,与仰天湖实验学校在相同的位置。公示的学校效果图如下:

据悉,新昌学校由天心区教育局和长沙世纪御景房地产开发公司投资建设,该公司是北辰中央公园的开发商,这就意味着,该楼盘可能将拥有仰天湖实验学校的配套入学资格,成为双学区房。(最终请以教育部门公布为准)
北辰中央公园总建筑面积90.6万方,容积率2.01,绿化率40.38%,项目分A、B、C、D四个地块,目前A、B、C组团均有交房,整个项目处于开发尾期。
学校周边的小区还有九峰小区、保利花园、东能华府等项目。但是具体学区划分如何?还要以官方文件为准。
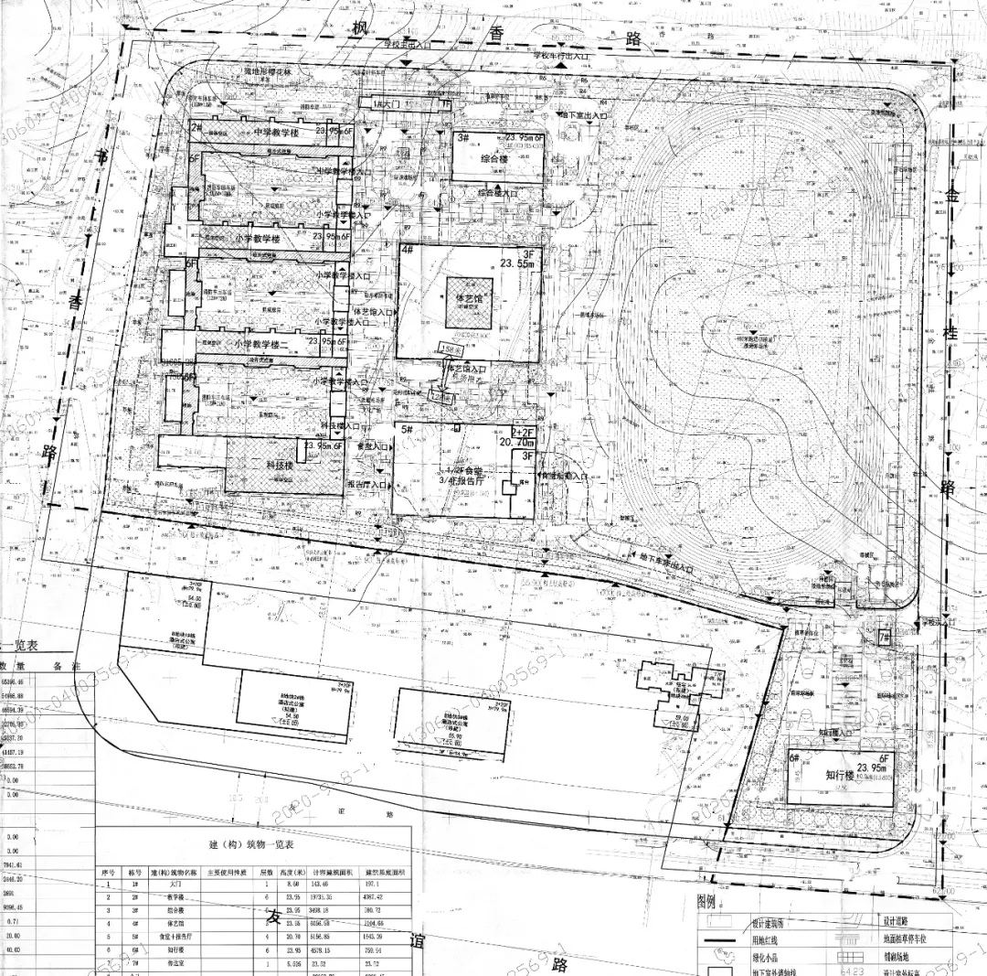
近日, 长沙资规局发布《石人学校项目 批前公示》,石人学校为九年制学校,规划小学36班,初中18班,投资金额2亿元。

学校位于天心区书香路(原石竹路)与枫香路交汇的东南角,总建筑面积约60000平方米,规模为54个班,最大容量60个班。

2018年3月,长沙市规划局发布新姚二号统征地批后公布。将SD02-F20地块改为商业用地,已经引进龙湖天街,西侧规划石人学校。

石人学校目前在建,规划局公布的效果图如下:


根据红网时刻报道,石人学校由天心区教育局和湖南中建信和钰和城置业有限公司投资建设,谁投资谁受益,中建钰和城可能也将拥有石人学校的配套入学资格,成为双学区房。(最终请以教育部门公布为准)
中建钰和城位于木莲路与新姚路交汇处西北角,容积率3.59,总建筑面积约576785.71平方米。石人学校与中建钰和城并与紧邻,距离倒也不远。

中建钰和城为全新盘,预计11月首开,价格待定。你觉得价格监制会在什么价位?欢迎留言探讨!
版权声明:我们致力于保护作者版权,注重分享,被刊用文章【长郡天心实验学校怎么样(爆发)】因无法核实真实出处,未能及时与作者取得联系,或有版权异议的,请联系管理员,我们会立即处理! 部分文章是来自自研大数据AI进行生成,内容摘自(百度百科,百度知道,头条百科,中国民法典,刑法,牛津词典,新华词典,汉语词典,国家院校,科普平台)等数据,内容仅供学习参考,不准确地方联系删除处理!;
工作时间:8:00-18:00
客服电话
电子邮件
beimuxi@protonmail.com
扫码二维码
获取最新动态
