武汉好利来概念店
突破时装与烘焙界限的甜品美学容器
流动、褶皱、拼接、重塑......有形的美学设计语言在空间中被赋予无限的想象空间。在这清新的、惬意的、渐进的时尚烘焙容器里,空间关系与场域秩序被重新定义。在充满韵律的治愈气息中,甜品的时尚美学与渐变的情绪价值一触即发。
形态生成
流动的褶皱,营造出织物吹起轻盈的状态,同样也会引发对甜品制作过程中奶油形态的联想。捕捉时装剪裁和甜品制作过程中发生的形态,将其转化为空间设计元素。在发现与感知美学中,SLT与好利来品牌再度携手,突破时装与烘焙的美学界限,运用材质与色彩的组合变化,制造空间中的温度差;让温暖且具有流动感的线条表达触发店内体验的情绪渐变,收获渐至佳境的HOLILAND SELECT旗舰概念店。
项目外观动态视觉
Holiland Select概念店坐落于武汉万象城一层,是SLT继Holiland Market市集概念店之后全新打造的时尚集合主题的概念店。Holiland Select以流动诠释精选,探寻甜品中的写意之美。以“渐境”为整体概念主题,解构甜品艺术,营造雅致氛围,通过温暖且具有流动感的线条表达拟化出不同层次质感的结构关系与空间秩序,与“未来主义”、“味觉交响”、“麦田意象”三大全新甜品系列一起,建构出专属于好利来的精品烘焙美学容器。
空间概览
整个空间随意一瞥便是经典几何与美学构成的平衡之美,组成了一系列戏剧性的体验焦点“Special point”。中央区域,矩形柜体包裹着大面积有着流动视觉的编程灯膜,与直白的线性空间切割感形成强烈的场景体验,辅以灯光的点状与线条的铺陈,进一步将动态与静态带来的戏剧化冲突在中心强化。
中央区域
中央软点柜
富有肌理感的横向天然石材纹路和气孔还原了甜品烘焙过程中一系列物理和化学变化后形成的天然切面组织层次,保留了面团发酵过程的记忆;流动的形体延展逐步形成空间的边界,唤起打发奶油制作过程中不同形态变化的概念还原。天然纹路与利落的线条交融相生,细腻有型,诉说味觉叙事,克制中带有张力的甜品美学在这里被大胆描绘。
Holiland Select 轴侧分解图
流动的形体延展逐步形成空间的边界
收银
休息区,轻盈明快的色调、舒缓渐变的线条成为重塑时尚体验的美学符号,不同纬度的流动、褶皱的几何语言在整个空间中晕染无限想象。地面特殊树脂材料的使用,将这样清新的奶油质感混合叠加颜色和纹理,再次唤醒顾客探索甜品艺术的欲望与活力。
富有肌理感的横向天然石材纹路
休息区
户外的外摆区作为室内体验的延伸,温和的流线组织和功能划分塑造了室外区域的轮廓,与参与其中的大家一同感知到无形的治愈气息。
外摆
捕捉当代时装剪裁流动的褶皱与织物轻盈的漂浮感。空间中自由舒展的曲线、淡雅轻快的色调,以沉浸式的体验诠释烘焙的多元之美。Holiland Select旗舰概念店成为一个启发性的容器,将人的甜蜜心境映入其中。
展示柜台
内部细节图
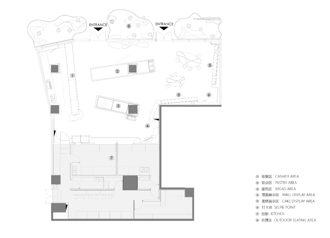
平面图
项目信息
PROJECT INFO
项目名称 | Holiland Select-武汉好利来概念店
项目类型 | 室内设计
设计方 | SLT设计咨询有限公司
公司网站 | https://studiolite.design/
联系邮箱 | contact@studiolite.design
完成年份 | 2022.05
设计团队 | 凌晨,姜姗姗,蔡雅倩、郭莹、唐朝、曹成林、张倩、成希、付雨
项目地址 | 湖北省武汉市江岸区万象城F1
建筑面积 | 286㎡+40㎡户外
空间摄影 | Wen Studio
施工方 | 上海缇琪Tiqi
材料 | 天然洞石、人造石、树脂、金属
品牌 | Holiland好利来
RECOMMENDED
| 内 容 精 选 |
创新店舖研究所 | 新旅居 | 在这儿办公
新商业建筑 | 食空制造 | 环球展览设计
快闪商业精选 | 创意视觉营销设计
未来零售派 | 未来食空制造
场景唤醒实验 · 论坛 · 工坊
版权声明:我们致力于保护作者版权,注重分享,被刊用文章【武汉烘焙学校(武汉好利来概念店)】因无法核实真实出处,未能及时与作者取得联系,或有版权异议的,请联系管理员,我们会立即处理! 部分文章是来自自研大数据AI进行生成,内容摘自(百度百科,百度知道,头条百科,中国民法典,刑法,牛津词典,新华词典,汉语词典,国家院校,科普平台)等数据,内容仅供学习参考,不准确地方联系删除处理!;
工作时间:8:00-18:00
客服电话
电子邮件
beimuxi@protonmail.com
扫码二维码
获取最新动态
