建筑大师
Zvi Hecker
建筑,是用结构来表达思想的科学性艺术。充满艺术性的建筑总能让人眼前一亮。
建筑师 Zvi Hecker 就凭借其富有艺术性的作品成为了以色列最杰出的建筑师。
他于 1931 年 5 月 31 日出生在以色列,五十年代初期开始学习建筑,而后又在阿维尼艺术与设计学院学习了两年绘画,之后便开始了他的建筑师生涯。
他的作品强调几何和不对称性,他将建筑草图作为一种载体,把所有理性或非常规的想法倾注其中。
他的建筑图纸甚至还被作为艺术品展出,难怪 Zvi Hecker 会说自己是艺术家,而建筑只是职业。
文中共挑了 5 个作品,一起来看看吧!
01.
螺旋公寓
Spiral Apartment House
地点丨以色列拉玛特甘
时间丨1984-1989 年
面积丨1115㎡
这个项目是以其高度复杂性著称,30 年后的今天再看还是十分惊艳。
外立面由混凝土、白色灰泥、板岩石以及波纹钢板组成。
感受一下 Zvi 画的草图,红色盘旋向上的线条有没有像一阵龙卷风呢 ▽
△手绘草图
项目在执行时虽遭遇了各种阻力,好在项目本身的难度没有让 Zvi 退缩,才让我们看到了这美妙的建筑体。
△立面图
△柱网图
△透视图
02.
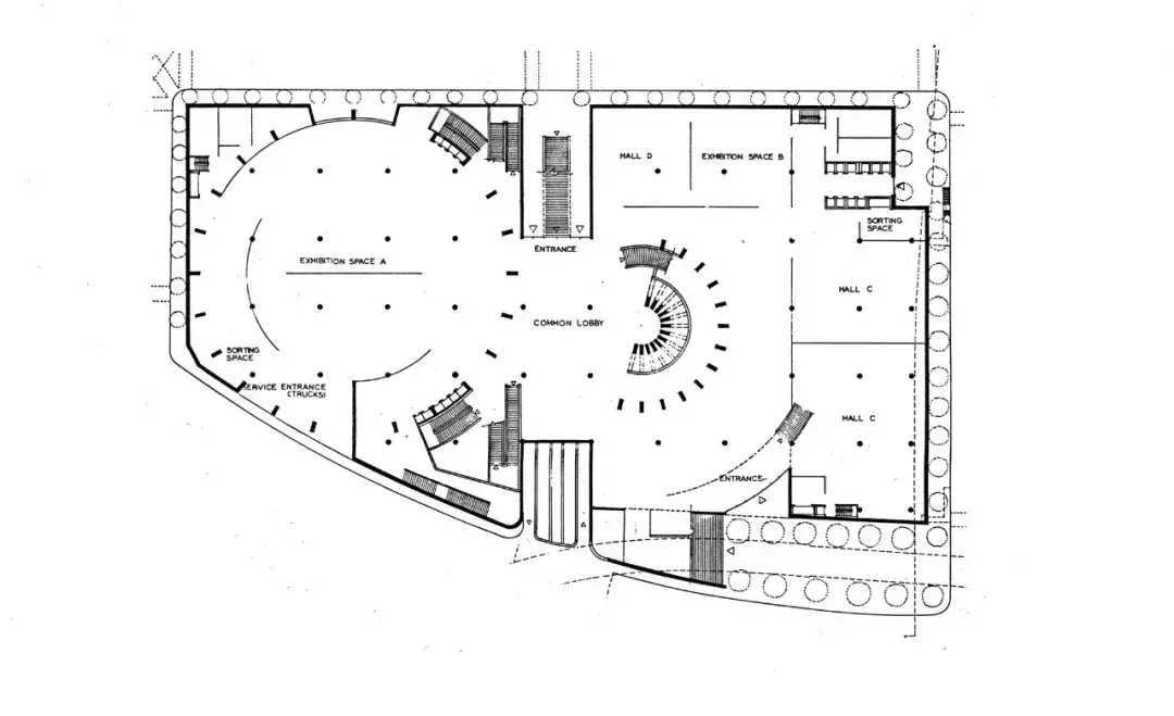
犹太学校
Heinz-Galinski-Schule
地点丨德国柏林
时间丨1991-1995 年
面积丨8000㎡
学校最初的设计灵感来源于向日葵,螺旋状的建筑使每个教室都能照射到太阳光线。
△建筑模型
Zvi 令人惊艳的草图,将几何图案的魅力散发的淋漓尽致 ▽
建成后却不怎么像是向日葵,反而像一本正在翻页的书,螺旋的外观十分富有张力。
△总平面图
△俯视图
蜿蜒的线条连结着各个建筑体,硬朗之中不失柔软的一面。
完全颠覆了我们概念中的学校,在这里上学应该是无比幸福的吧。
03.
犹太文化中心
The Jewish Cultural Centre
地点丨德国杜伊斯堡
时间丨1996-2000 年
面积丨2650㎡
犹太文化中心「简称:JCC」是当地犹太社区进行会议和庆祝活动的场所。它还为公众提供各种额外服务,如儿童和成人的夜间课程、教堂的宗教服务、大型多功能厅的演出和讲座,还有公寓可供住宿。
各种手绘的草图延续了 Zvi 一贯的风格 ▽
△手绘草图
△手绘平面图
△平面图
相互连结的空间,私密性和公共性都兼顾到位,砖、混凝土、木材,这些简单的元素构筑起完美的建筑外观。
04.
教育艺术博物馆
Museum of Education and Art
地点丨美国棕榈泉
时间丨1986 年
棕榈泉的教育和艺术博物馆最初由 Jeremy Smith 教授发起,但最后由于资金问题不能建成。
△手绘草图
拟定的设计以莫比乌斯带为灵感,两个环交叉在一起,这种奇妙的几何建筑若是能建成一定十分惊艳。
05.
东京国际论坛
Tokyo International Forum
地点丨日本东京
时间丨1988 年
面积丨140,000㎡
一个正向的圆锥体与一个倒置的圆锥体并置,靠在主要的矩形建筑物上,蛇形的画廊将两个椎体相连结。
△手绘草图
△立面图
△剖面图
总体十分大气且创意满满,但似乎最后也是因为一些原因而未完成,感到十分惋惜。
△建筑模型
Zvi Hecker 的这些作品不仅展现了他的建筑思维,更让我们看到了他有趣而严谨的灵魂。
建筑大师,当之无愧!
//
负责编辑丨Zoey
本文由一起设计原创撰写
欢迎分享到朋友圈
「一起设计」 专注于设计的新媒体品牌
版权声明:我们致力于保护作者版权,注重分享,被刊用文章【学校平面图手绘(他的建筑把几何元素运用到极致)】因无法核实真实出处,未能及时与作者取得联系,或有版权异议的,请联系管理员,我们会立即处理! 部分文章是来自自研大数据AI进行生成,内容摘自(百度百科,百度知道,头条百科,中国民法典,刑法,牛津词典,新华词典,汉语词典,国家院校,科普平台)等数据,内容仅供学习参考,不准确地方联系删除处理!;
工作时间:8:00-18:00
客服电话
电子邮件
beimuxi@protonmail.com
扫码二维码
获取最新动态
