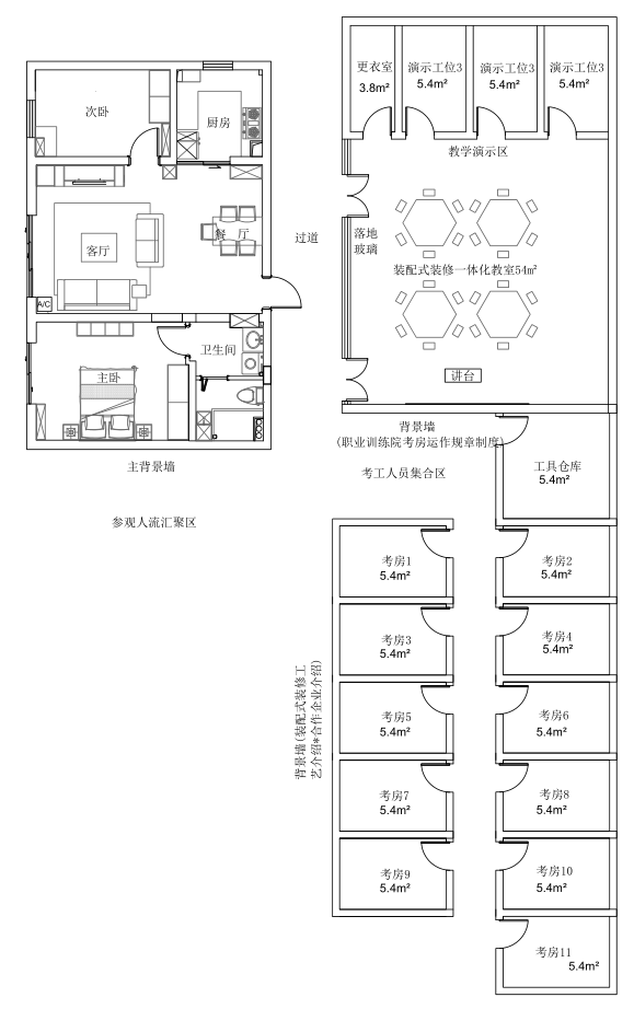
项目名称:浙江建设技师学院
项目面积:装配式教室77㎡、装配式样板间70㎡、考房及工具间85㎡
施工人数:2-6人
硬装周期:10天(含墙、地、顶、隔墙)
项目内容:装配式隔墙,室内外装配式装修,局部传统涂料施工,室内设计,软装提供
教室
舒适的中式风,让人眼前一亮。黄橡木背景墙、柚木地板,与原木书桌椅的搭配,奠定了整个房间淡雅清新的基调。
墙壁上悬挂的书法画和木质复古吊灯,让人印象深刻,为整个教室带来了淡雅、复古的美感体验。
客餐厅
以高端黑、白、灰三种经典色作为主色调,使房间充满了现代气息。
白色木塑吊顶,给房间带来了视觉扩充。隐藏的暖色灯带,搭配灰色布艺软包沙发、浅灰地毯,时尚、年轻、舒适的设计理念,非常符合现代年轻人的审美。
沙发背后悬挂的山水拼接画、黑金色十字吊灯,衬托出房间的高雅气质。
餐桌上方造型别致的射灯,搭配餐桌上精心摆放的高脚杯、西餐具、烛台,为用餐区营造了浪漫氛围。
厨房
使用当下流行的U型布局,具有「空间利用率高、收纳强」的特点,完美地利用墙壁作为屏障,十分适合小户型的选择。
动线设计流畅,从左到右依次是:存、洗、切、炒,功能区域设置合理。地面铺设耐脏、防滑的冰火板,再也不用为油渍的难清洗而烦恼。
橱柜使用原木色,作为餐客厅的视觉延伸。绿色植被的点缀,使整个厨房更为清雅,增添了活力。
主卧
主卧以白、灰、原木色作为主色调。隐藏灯带、米色壁布板、米黄色床品,无一不为房间营造出温馨、舒适的整体氛围。
床头背后,低区墙面选择了耐脏、易擦洗的摩卡色冰火板。高区背景墙使用羊绒亚麻壁纸板,天然环保,配上抽象艺术画,为房间提升高雅品味。
深灰色窗帘,搭配以白色窗帘纱,起到了良好的「调节光线、保护隐私」的作用。
次卧
视觉上,主要以低饱和度浅色为主。银丝灰+米点白组合的壁纸板,简约又耐看。
原木细脚书桌,简约而精致,在节省空间同时,也提升了视觉透视感。黑色窗框,让房间更加沉稳大气。
卫生间
选择中花白、象牙白为主色的卫生间,给人以干净、明亮的整体感。
洗手盆下方的防水储物柜、搭配原木门、暖色灯带,营造出一股温馨、舒适的氛围。
区别于普通的干湿分离,洗手盆装在卫生间门外的干湿分离,是一种更好的布置选择。
这种设计的好处在于:通过把「便区与梳洗区分离」,可以大大提高卫生间的使用效率。
建筑能耗,已经成为我国三大能耗之一!传统建筑的作业方式,已然无法适应“绿色中国”的发展需求。
在国务院、住建部出台的政策文件中,多次提出要大力发展装配式建筑,实现标准化设计、工业化生产、装配化施工、一体化装修、信息化管理、智能化应用。
开装,积极响应国家政策,构建校企合作联动平台,将为推动我国装配式产业的高速发展,不断努力,砥砺前行!
版权声明:我们致力于保护作者版权,注重分享,被刊用文章【浙江建设技师学院(第一个装配式学校美爆了)】因无法核实真实出处,未能及时与作者取得联系,或有版权异议的,请联系管理员,我们会立即处理! 部分文章是来自自研大数据AI进行生成,内容摘自(百度百科,百度知道,头条百科,中国民法典,刑法,牛津词典,新华词典,汉语词典,国家院校,科普平台)等数据,内容仅供学习参考,不准确地方联系删除处理!;
工作时间:8:00-18:00
客服电话
电子邮件
beimuxi@protonmail.com
扫码二维码
获取最新动态
