很多新手设计师在画CAD户型图时,总觉得太难了,一堆的线条,这要画到什么时候?CAD户型图主要绘制了房屋各空间的位置、大小、布局及其使用功能,便于用户可以快速了解房屋的空间布局与路径走向。如果要一笔一画的话,也太低效了!可以试试浩辰CAD建筑软件自带智能高效的工具箱,无需额外安装插件,即可快速完成CAD户型图的绘制。
绘制墙体时,需要先绘制出轴网。打开浩辰CAD建筑软件,点击【绘制轴网】功能来绘制轴网。再使用【绘制墙体】功能来绘制墙体部分,最后将绘制好的轴网进行标注。如下图所示:
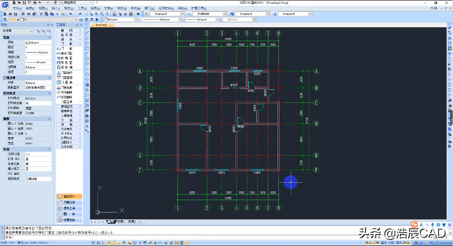
根据户型图,可以在浩辰CAD建筑软件的【门窗】模块中调用【门窗】功能,根据实际需求在图纸中添加门窗。如下图所示:
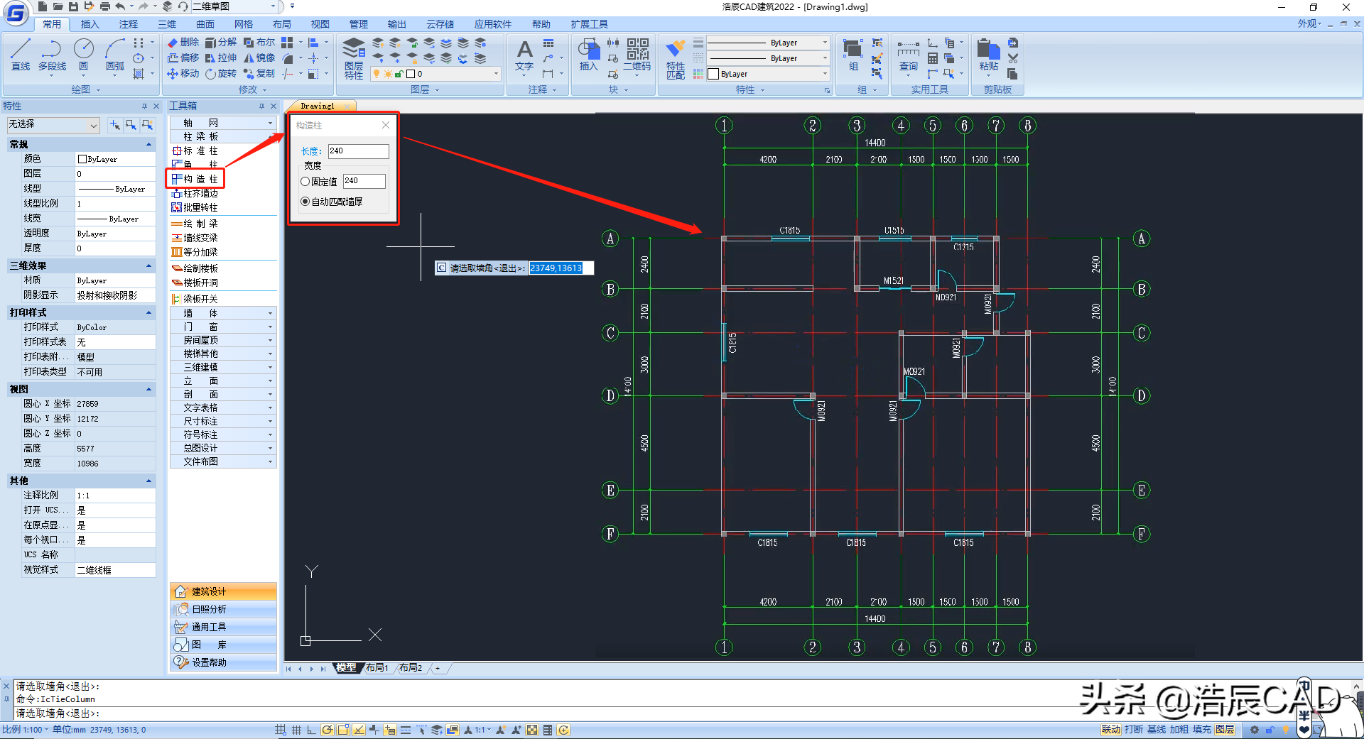
在软件左侧【建筑工具箱】中点击【建筑设计】—【板梁柱】—【构造柱】,在调出的【构造柱】对话框中,根据户型的实际情况设置参数后,在图纸中给墙体添加构造柱。如下图所示:
在浩辰CAD建筑软件中,使用【尺寸标注】功能对户型的门窗进行尺寸标注。再使用【搜索房间】功能,给户型图添加文字注释,并且快速计算各房间对应的面积。如下图所示:
除了上述功能外,浩辰CAD建筑还提供了百余项全新的建筑专业应用功能,包括房间屋顶设计与计算、楼梯设计、三维建模、自动生成立面剖面等,帮助设计师畅享极速设计新体验!
版权声明:我们致力于保护作者版权,注重分享,被刊用文章【怎么画学校楼房(不再当CAD小白)】因无法核实真实出处,未能及时与作者取得联系,或有版权异议的,请联系管理员,我们会立即处理! 部分文章是来自自研大数据AI进行生成,内容摘自(百度百科,百度知道,头条百科,中国民法典,刑法,牛津词典,新华词典,汉语词典,国家院校,科普平台)等数据,内容仅供学习参考,不准确地方联系删除处理!;
工作时间:8:00-18:00
客服电话
电子邮件
beimuxi@protonmail.com
扫码二维码
获取最新动态
