首页
教育资讯
学习方法
公务员考试
院校大全
知识库
首页
/
loft小户型装修案例
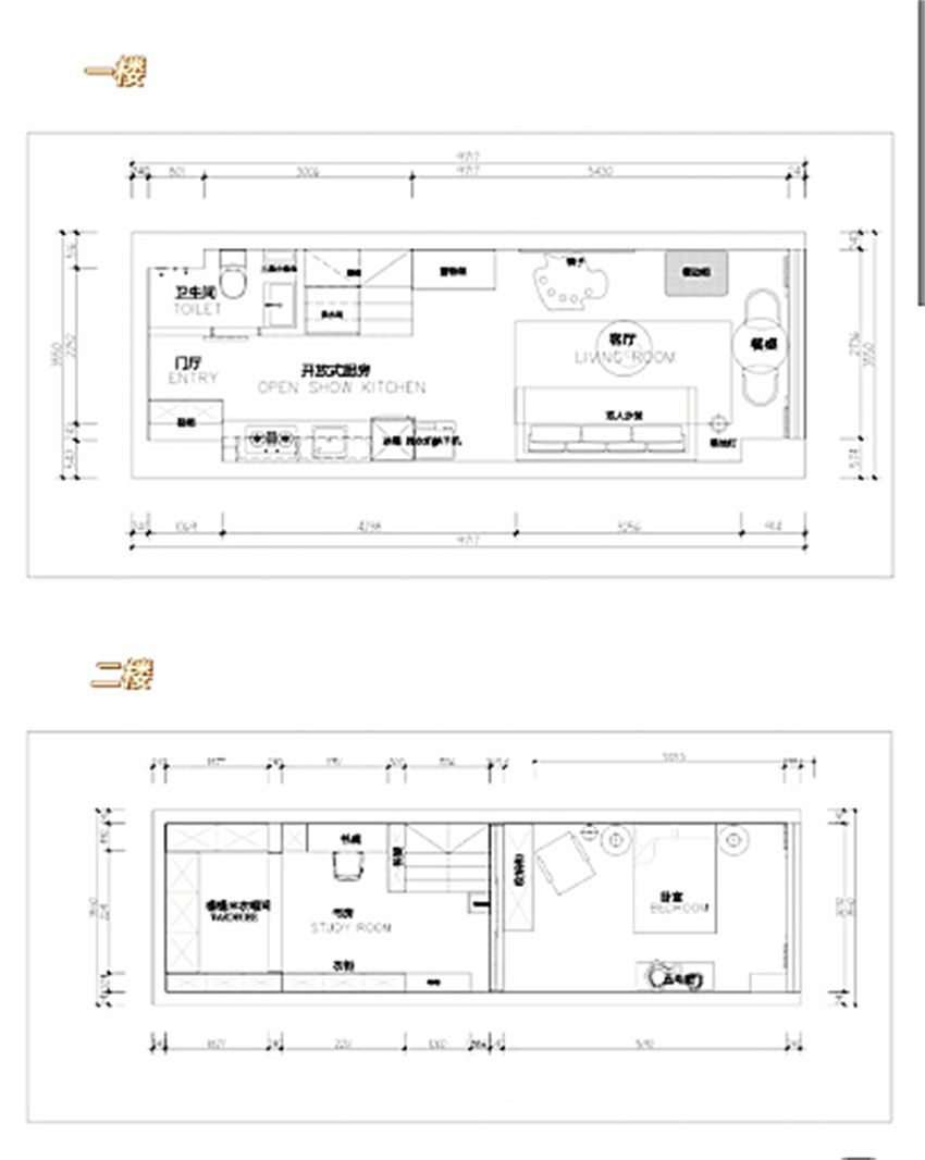
loft小户型装修案例(90后姑娘花5W装26)
姑娘花36W买26㎡loft,为省钱自己装修设计,前前后后硬装只花了5W,却让小房子变得温馨舒适,她是如何做到的?今天一起来看看。26㎡loft户型Loft总面积35.9㎡,但套内仅26㎡,层高4.5米,长条格局,户型总体看还算不错。装修前室内实景改造前室内全毛坯,无隔层,整个空间采光
时间:2025-09-04 | 阅读:584
loft小户型装修案例(她晒出自家33)
不知道各位喜不喜欢LOFT的户型呢?今儿咱要说的这个家,便是一间标准的LOFT户型,虽然我不建议大家买,但还是可以看看这个家的装修,不是嘛~这间LOFT共有33㎡面积,户型不算大,但好在层高优秀,所以便充分将层高优势利用起来,做了二楼的隔层卧室。靠窗的小客厅从玄关进入家
时间:2025-09-02 | 阅读:232
loft小户型装修案例(浙江姑娘买下37)
不知道大家喜不喜欢LOFT的户型呢?最近,我就看到一位浙江姑娘买下的LOFT户型,你还真别说,装修布置地温馨又漂亮。这间LOFT面积仅有37㎡,虽然面积不大,但利用层高的优势,将卧室设在了二层,客厅、厨房、卫生间、浴室则放在了一层区域,独居的话,空间还是蛮富裕的。这位姑
时间:2025-08-26 | 阅读:453
loft小户型装修案例(一间广州40)
你喜不喜欢LOFT的户型设计?前不久我看到一间广州的LOFT户型,真的是太漂亮了!这间LOFT的面积有40平方米,独居或者是住两个人都没问题,而其中最有特点的,当属这种“天井式”的二层隔断,真的是将层高也视野优势发挥到了最大化!虽然我个人并不是很推荐大家买LOFT,但对于这
时间:2025-08-26 | 阅读:890
loft小户型装修案例(6米层高LOFT样板间)
虽然我个人不是很推荐大家买公寓和LOFT户型,但最近看到一套LOFT户型,个人感觉装修和空间设计非常不错,希望能给大家家里装修带来一些启发。话不多说,今儿就借这个机会和大家分享一下,看看这个小房子如何吧~室内厨房和客厅▲小家里的厨房一进入家中,并没有过渡的玄关区域
时间:2025-08-12 | 阅读:806
loft小户型装修案例(姑娘独居38)
不知道你喜不喜欢LOFT户型呢?我个人应该是不会买这种户型的,但这真的不妨碍我羡慕别人那些装修得超漂亮、超温馨的LOFT。今天要说的这位姑娘,便晒出了她的LOFT小家,房间内仅有38㎡面积,但却收拾得漂漂亮亮,且功能齐全,话不多说,一起来看看~进入小家内从玄关进入这间小
时间:2025-08-11 | 阅读:953
全面的学校信息库
院校搜的目标不仅是为用户提供数据和信息,更是成为每一位学子梦想实现的桥梁。我们相信,通过准确的信息与专业的指导,每一位学子都能找到属于自己的教育之路,迈向成功的未来。助力每一个梦想,实现更美好的未来!
文章
2178095
标签
159354
浏览量
100W+
阅读排行
7580℃
1
2022年陕西交通职业技术学...
7273℃
2
2023年面向港澳台地区招收...
6876℃
3
重庆2023年开设汽车运用与...
6225℃
4
2020甘肃高考一本I段投档最...
5686℃
5
福建省二本的文科大学排名
5653℃
6
眉山药科职业学院是民办大...
5626℃
7
南京传媒学院奖助学金有哪...
5475℃
8
英语教育考研难吗?
猜你喜欢
山东华宇工学院地址(开学第一课)
开封市一高高考分数线
国家开放大学学生空间登不进去怎么办
2023上海第二工业大学在云南省录取分数线
2024年10月自学考试都考什么
遵义师范学院是几本是综合性大学吗-在贵州排名第几-揭秘重点专业怎么样?
该不该上公办大学
14212是哪个学校代码
交通管理局好考吗
广东医科大学是几本大学
2024广西考生多少分能上浙江科技大学
多少分能被阳光学院录取
热门标签
985
综合类院校
工科类院校
师范类院校
艺术类院校
财经类院校
高仿手表哪里可以买到
农业类院校
清华大学校花
中国传媒大学校花
北京在明律师事务所
中国农业大学动物科技学院
北京在明律师事务所地址电话
中级会计考试时间
哪有健身培训学校
大学生征兵政策
民族类院校
会计案例分析
我要关灯
我要开灯
客户电话
工作时间:8:00-18:00
客服电话
电子邮件
beimuxi@protonmail.com
官方微信
扫码二维码
获取最新动态
返回顶部