屋顶花园的出现,
最早可追溯到公元前2000年左右,
生活在幼发拉底河下游地区
苏美尔人曾建造了大庙塔,
被后人称为空中花园的发源地。
屋顶花园不但降温隔热效果优良,
而且能美化环境、净化空气、
改善局部小气候,
还能丰富城市的俯仰景观,
能补偿建筑物占用的绿化地面,
大大提高了城市的绿化覆盖率,
是一种值得大力推广的屋面形式。
今天小编整理了6个不错的屋顶花园案例
和大家一起欣赏
1
Phoenix Rooftop坐落于墨尔本繁华市中心的30层楼顶上,作用壮丽的城市景观。这座位于高空中的花园是一处微缩的户外休闲空间,为穿行在城市生活与郊野风光之间的人们提供了过渡场所。
▼屋顶花园
设计师将该屋顶空间分成截然不同却又紧密相连的三个部分。其一作为站立的休闲空间,供人在此处举杯畅饮;另一就坐空间让人恣意享受日光的温暖;此外还有一处户外烧烤空间,让来访者与家人和朋友们享受举杯邀明月的美妙时光。
▼户外烧烤区
▼站立休闲区
马赛克花池里植满了芬芳四溢的花朵,除作为区域分割的围栏外,这些花池还展现出必要的遮阴和避雨功能。由绿色,白色,黄色和蓝色瓷砖点缀着的花池,也如同花朵一样装点着这里。如雕塑般的凉亭在花园顶部浮动,顺势攀爬的植物为花园和来此的休闲者遮阴避雨,将各区域营造出独特的氛围。
▼凉亭成为了植物的攀爬架
▼马赛克花池里植满了芬芳四溢的花朵
▼夜景
▼花园位于30层屋顶上的花园
▼平面图
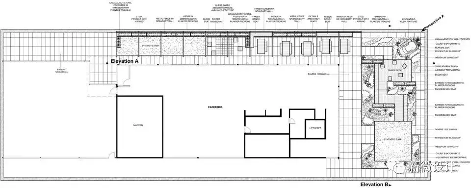
2
这个屋顶花园是由 Pentana Solutions 委托设计建造的。项目试图打造一个放松的社交空间,供员工日常休憩使用。花园位于屋顶上,为创造古怪而壮观的天台景色提供了实践机会。
▼ 屋顶公园鸟瞰
设计团队在屋顶东南角的混合种植花床上设计了开场的混合草坪,是聚会或者是集体活动的理想场所。
▼ 屋顶花园平面
▼ 东南角开场的草坪空间
在花园的东北角,一辆极具特色的老式车皮被安放在种植床上,为花园注入了乐趣和奇想的元素。一个带桌椅组合的木质平台和步道,为工作人员提供了充足的休息空间。在放松身心的同时,可以欣赏天台上美丽的植物。
▼ 休息区的木质平台和步道
屋顶的北侧设有大面积的铺装和条带形的草坪,草坪一侧是矩形种植槽中的低矮树篱。将草坪休息区划分开的是一个巨型的棋盘,艺术装置给空间带来了活泼的气氛。可伸缩的遮阳篷可以覆盖整个区域,确保在所有天气条件下空间都能被充分的利用。
▼ 北侧的带有遮阳篷的休息区
▼ 艺术装置给空间注入活泼的气氛
屋顶花园的植物材料选择了古铜色作为基调,各式各样鲜艳的自然植被,这些植物材料搭配可以随着季节更替,始终展现出令人惊艳的温暖色调和有趣纹理。
▼ 暖色调的植物材料
3
Ramathibodi Healing Garden
泰国屋顶康复疗养花园
设计单位:LANDPROCESS
坐标:泰国
项目位于Somdech Phra Debaratana医疗中心的10层。在这里,绿色公共空间的理念不仅是为了娱乐,也是作为城市绿色基础设施,也涉及到社会公共健康的提高。这个2400平方米的混凝土屋顶,曾经忽略了直升机基地,现在变成了泰国最大的疗养花园。
应用生态疗法的概念来提高治疗体验。有证据表明,在接触自然元素的情况下,身体上的疾病会得到更好的恢复。阳光,植物的香气,舒缓的绿色景观可以增加游客的身心健康的积极影响。这个疗愈花园设计通过景观设计带来一种平和、宁静和疗愈体验。
圆是整体的普遍象征。它也是没有角度,平滑和舒缓的几何。这些手势特征在我们的花园体验中被实现,使这个混凝土屋顶成为安全和治疗空间。这与现有的直升机发射台结构非常吻合。
游客可以观察到自然之美,并通过视觉和芳香植物的路径步行,它们的形式和颜色,气味和纹理提供感官上的好处,使花园成为一个愈合和灵感的地方。人们可以在紫色的藤架隧道下的阴凉处散步,这条隧道通向一片可以容纳200人的大片绿草地。
绿色屋顶上的这个康复花园的概念不仅有利于患者及其工作人员,也有利于绿色建筑的良好范例。该设计侧重于可持续性,并将太阳能电池,零废物管理,零雨水排放和热量减少纳入建筑物下方。
4
哥本哈根大学马士基塔绿色屋顶
设计单位:SLA景观设计事务所
坐标:丹麦,哥本哈根
该项目位于哥本哈根大学新的地表建筑SUND自然公园的马士基塔(Mærsk Tower)。绿色屋顶的设计以野生状态下的自然景观为基础,重建哥本哈根旧的公共草坪活动区。
除了保持野生的自然景观,种植设计也引入了大量从国外引种的植物,以满足项目兼容多元文化的要求。绿屋顶项目的植被不但可以维持公园和绿色屋顶的景观,也能使景观更加具有可持续性,对未来气候变化具有更强的适应性。
通过严谨的景观设计,总面积5000平方米的马士基塔绿色屋顶是对丹麦不同生境的复制。作为一个公共绿色屋顶项目,绿屋顶使用可以循环使用的材料,能有效削弱暴雨带来的地面径流,在密集的城市中提高建筑对气候的适应性,为公众带来公共利益。
5
位于600 W. Chicago屋顶上的开放空间,为该建筑的使用者提供了一处烧烤,篝火,娱乐和会面的休憩空间。该屋顶空间位于建筑顶层阁楼,此处坐拥俯瞰城市东侧天际线和西侧芝加哥河的绝佳美景。
该顶楼空间采用具有工业化氛围的材料如重蚁木板材,混凝土地面材料,黑钢和镀锌材料。线性布置的绿廊覆盖了所有穿行路线,均匀排布的绿植为来访者提供了必要的遮挡。绿植与绿廊将空间统一,使其形成密集又连续的空间环境。
▼拥有俯瞰城市天际线的美景
▼采用工业化的材料
▼绿廊统一了屋顶空间
▼绿植提供了必要的遮挡
▼夜景
6
香港空中花园俱乐部
空中花园是由香港新世界发展有限公司开发的大型居住项目,项目位于繁华的香港旺角。concrete事务所为大厦所有公共环境设计内装,包括街道入口,迎宾层以及顶层。
灵感来源于旺角拥挤狭窄的街道,空间受限,行人摩肩擦踵,设计师将大厦打造成逃离混乱,与人交往的舒适环境。通过打破常规的做法,将俱乐部打造成开放可变化的公共空间。
屋顶花园不同于寻常的花园
这个原本光秃秃的“荒地”
有了设计者的构思
屋顶的空间与城市就有了链接
居住空间与大自然便实现了完美融合
版权声明:我们致力于保护作者版权,注重分享,被刊用文章【屋顶花园案例(屋顶花园)】因无法核实真实出处,未能及时与作者取得联系,或有版权异议的,请联系管理员,我们会立即处理! 部分文章是来自自研大数据AI进行生成,内容摘自(百度百科,百度知道,头条百科,中国民法典,刑法,牛津词典,新华词典,汉语词典,国家院校,科普平台)等数据,内容仅供学习参考,不准确地方联系删除处理!;
工作时间:8:00-18:00
客服电话
电子邮件
beimuxi@protonmail.com
扫码二维码
获取最新动态
