本案的女主人是恬静的小文青,男主人是一名建筑结构设计师,他长期为各大地产商进行设计工作,做过了太多被约束的呆板的空间结构。在与设计师徐欣交流之初,男主人就提出过一个核心的思想,就是打破传统,让自己的家同其他人都不一样。在设计的不断交流中,设计师更加深刻的了解到业主的生活方式,或者说是生活态度。这样的小两口,他们想要的更多的是属于他们两人的生活空间。
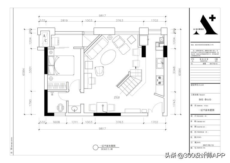
1、总共93.8㎡层不足50㎡的空间,在尊重和了解了业主的生活方式以后,把楼梯同厨房吧台以及电视墙,储藏空间做了有机的融合。
2、原始的厨房空间很小,而且只能进行单面操作,空间经过重新规划以后,把厨房空间打开,做出了开放式的厨房格局。
3、厨房对面做上了符合业主操作习惯的吧台,靠厨房的这面操作,靠客厅的这面做成吧台和简易餐台使用。
4、整个空间的闪亮之处是,把楼梯放在客厅中间的这种反传统的空间处理手法,设计师和业主在这一点上达成了高度共识。
5、将楼梯下部的空间利用起来储物。
一楼
入户
抽象的水彩挂画,给空间增添一丝艺术气息,配合清爽的墙面色彩,让晚归的主人一扫忙碌一天的倦意。
客厅
客厅的家具布置形态保证了基本的视听和会客功能,皮质、布艺与木质的融合,使空间既具有皮质的高贵,布艺的温馨,同时又不乏木质的自然。
客厅还开辟了一块手工制作区域,专为心灵手巧的女主人施展技艺所用,家里随处可见其亲手制作的手工艺品。
餐厅
本案没有刻意规划餐厅空间,而是在客厅的一隅之地摆放了几张桌椅,再配以简单造型的吊灯。从而可以看出,属于他们这一类型生活态度的年轻人,所追求的生活品质和习惯,透过设计就能感觉的到。
厨房
同一样式的木质纹理储物柜,白色的墙砖,灶台和厨具,使烹饪空间显得明亮整洁。
为了满足业主的生活习惯,在靠近厨房的位置设置了吧台,可以是厨房的操作台,也可以是简易的餐台。
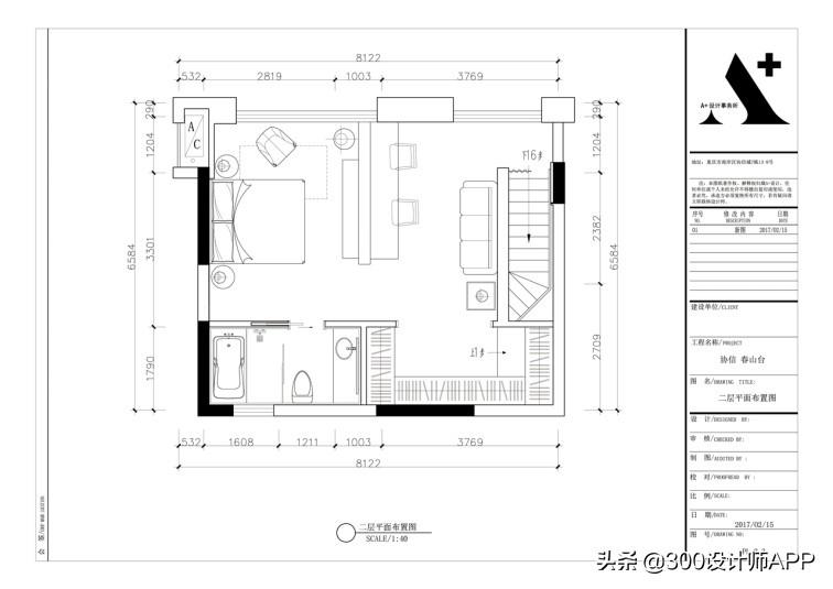
二楼
通过木质的楼梯可以达到二楼,透明的玻璃围栏,让空间显得更加通透。
在二楼上面,为了满足业主小两口的需要,将其设计成了一个大套房的空间格局,有书房、书房休憩阅读区域、有开放式的衣帽间、半独立的卧室,这些都集中在属于他们的这个私密空间里。
主卧
主卧的设计简洁明了,全白的墙体,木质的地板,书柜化的床头柜,简单的摆设,符合业主一贯的生活追求。
书房
一张俏皮的布艺沙发承载着业主的阅读时光,旁边的梳妆台让沙发上的男主人一边欣赏美文,一边忍不住偷瞄一眼女主人俏丽的妆容。墙上的植物挂画,让空间多一些清新雅致。
主卫
主卫采用黑白色系,配以少许木质元素,使冰冷的空间暗含些许暖意。
设计师:徐欣
装修费用:25万
设计风格:北欧
房屋面积:93.8㎡
房屋类型:2室2厅2卫
项目地址:重庆渝北协信春山台
300设计师APP带你认识重庆最知名的300设计师,特别欢迎重庆用户关注!
本文由300设计师APP原创,欢迎关注,带你一起长知识!
下载300设计师,了解更多
版权声明:我们致力于保护作者版权,注重分享,被刊用文章【协信春山台装修案例(徐欣作品)】因无法核实真实出处,未能及时与作者取得联系,或有版权异议的,请联系管理员,我们会立即处理! 部分文章是来自自研大数据AI进行生成,内容摘自(百度百科,百度知道,头条百科,中国民法典,刑法,牛津词典,新华词典,汉语词典,国家院校,科普平台)等数据,内容仅供学习参考,不准确地方联系删除处理!;
工作时间:8:00-18:00
客服电话
电子邮件
beimuxi@protonmail.com
扫码二维码
获取最新动态
