本期介绍的一套来自广州的现代中式风格,实际面积160㎡,四房的格局,主体颜色以酒红色系为主,营造一个十分有韵味居家氛围出来。
设计简介:
装修风格:现代中式风格
实际面积:160㎡
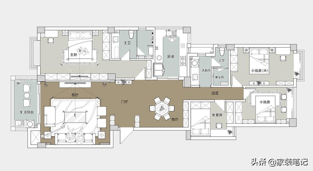
空间格局:4室2厅2卫3阳台
设计师:风云帆设计师
项目位置:广东省广州市骏辉园小区
装修造价:全包估算35.69W
原始结构是一个横向的“一”字排开户型,进来入户没有玄关,打开房门对客餐厅就是一览无遗,总共家里面原始结构里面有三个阳台,分别在客厅旁边一个、厨房里面一个,还有一个卧室里面一个。整个户型的缺点还是比较少的,结构明确,除了主卧室大一些,其它三个卧室都属于紧凑型的。
原来的结构比较好,所以平面改造大致没有变动,在原有的基础上进行了细化的设计处理。在入户的左右两边各设计一组柜子,正对面设计端景,自然地形成了入户玄关;长辈房门洞改变了地方,选择做榻榻米的形式,能够让原本不大的卧室,变得利用率更高;厨房和小孩房都把阳台包进来了,扩大其面积,所以只有一个阳台,只能做为生活阳台使用。
左右两边各做了一组350mm厚的鞋柜,为了保持入户的采光效果,左边阳光最好的地方,做隔断式的柜子,有利于把光线引入进来。正对面是端景,圆的造型里面嵌入一幅山水画,让人一进来就能感受到浓厚的中式气息。
玄关的另外一个视角,地面波导线和顶面的吊顶形成了很好的呼应,入户门颜色和柜子、门洞颜色十分统一。
沙发背景墙中间是一幅气势恢宏的中式山水画,若隐若现的图案,给了空间一种自然的气息。沙发墙旁边的圆形造型,把国潮的意趣引入家庭氛围中,顶上还有华丽的中式主灯,让人置身其中更能得到和谐的美感。
电视墙的视角,虽然视角不是很全面,但是依旧可以看得出整体的设计,中间是线路图案比较清晰的大理石,两边是护墙板,上面嵌入金属线条,角落还摆放了圆形立柜空调。
这个是家里面的唯一阳台,所以它不仅兼具了生活功能还有着休闲功能之用,平时不晒衣服的时候,可以在这里面摆放一套茶具,邀上三五好友一起喝茶、一起聊天,享受着十分惬意的生活。顶面的自动晾衣架很方便,每次需要晒衣服的时候,可以省下来,就不用那么麻烦用衣杆撑上去了。
酒红色系的中式风餐厅,有着很传统的氛围,为了让整个空间看上去不那么老气,所以在墙面嵌入了几圈金属线条,弱化一些沉闷老气感,增加一些现代的新时尚进去。
餐厅空间还是比较大的,摆放圆桌的情况下,两边还做了柜子,另外墙面还做了造型,空间依然看上去很宽敞,餐厅主灯带风扇功能,不是很热的时候,在这里吃饭都不用开空调,直接开风扇就能起到散热效果。
厨房和客餐厅的整体色系一样,让房子更加的统一协调。厨房面积不大,做“U”字形橱柜,利用率更高,操作也更加方便。
靠厨房推拉门处摆放的双开门冰箱,冰箱的侧面会有一部分裸露在外面,虽然会影响到美观,但是也不会有太大的影响。
主卧室的木制颜色和客餐厅一样,都是酒红色系,床头左右略显复杂的造型,中间墙板硬包上还嵌入了圆形的装饰画。床头并列摆放以此是梳妆台、床加两张床头柜,还有一组550mm厚的衣柜。
床尾满墙的衣柜,为了让柜子不那么单板,有层次感一些,在中间掏个洞嵌入电视机,另外靠窗边也掏了个洞做梳妆台,也可以做书桌使用。
主卫空间特别大气,因为空间宽敞,如果把瓷砖换成大理石效果会更好,只不过造型也会随之增加很多。主卫的功能布局非常到位,使用空间都特别舒服。
版权声明:我们致力于保护作者版权,注重分享,被刊用文章【新中式家装案例(广州夫妻晒自家装修火了)】因无法核实真实出处,未能及时与作者取得联系,或有版权异议的,请联系管理员,我们会立即处理! 部分文章是来自自研大数据AI进行生成,内容摘自(百度百科,百度知道,头条百科,中国民法典,刑法,牛津词典,新华词典,汉语词典,国家院校,科普平台)等数据,内容仅供学习参考,不准确地方联系删除处理!;
工作时间:8:00-18:00
客服电话
电子邮件
beimuxi@protonmail.com
扫码二维码
获取最新动态
