免责声明:本文来自建筑结构《某多层框架结构办公楼加层加固设计》作者:魏常宝,郑建军,钱铭
[提要] 结合某多层框架结构办公楼加层工程实际,通过对原结构进行计算分析,加层后原结构最大弹性层间位移角不满足规范要求,部分框架柱、部分框架梁配筋不足,底层柱部分轴压比超限。本文结合该多层框架结构办公楼加层加固工程实例,阐述后续使用50 年的框架结构加固思路和设计方法,可供同类工程参考。
[关键词] 多层; 框架结构; 加层; 加固设计
目前,钢筋混凝土框架结构加固技术可分为直接加固和间接加固两类。直接加固是根据工程的实际情况选用增大截面加固法、置换混凝土加固法、外粘型钢加固法、外粘钢板加固法、粘贴纤维复合材加固法、绕丝加固法或高强钢绞线网—聚合物砂浆面层加固法等; 间接加固法有体外加预应力加固法、增设支点加固法、增设支撑加固法、消能减震及隔震法等[1]。本文根据工程实际,经过结构计算发现,改造加层后结构不满足规范要求和设计承载要求,需要全面加固处理。本文总结了多层框架结构加固设计过程中针对不同的部位采取不同的直接加固方法,以取得最优的经济效益,确保该楼加固后的后续使用年限达到50 年之要求,可为同类型框架结构加固提供借鉴与参考。
某多层框架结构办公楼建于2014 年8 月,建筑整体呈“L”形布置,原设计为6 层局部7 层框架结构,在建造过程中业主要求增加一层,经增层后现为7 层局部8 层框架结构,建筑功能不改变。现该办公楼长34. 20m,宽27. 70m,建筑面积约为4700平方米。1、2 层层高均为4. 50m,3 ~ 7 层层高均为3. 60m,局部8 层层高为4. 20m,建筑高度27. 45m。该办公楼基础为人工挖孔灌注桩,桩径为800mm ~ 1100mm,基桩持力层为中风化砂岩层,其极限端阻力标准值为3000kPa。框架混凝土强度等级为C30,灌注桩混凝土强度等级为C35。结构建设期间增加一层后变形和承载力不满足规范要求,抗震构造不满足规范要求,需对该结构进行整体加固处理。
2. 1 上部结构计算分析
( 1) 结构计算参数
该办公楼框架抗震等级为二级,抗震设防类别为丙类,场地类别为Ⅱ类。工程抗震设防烈度为7度,设计基本地震加速度值为0. 15g,设计地震分组为第三组。特征周期取0. 45s,承载力抗震调整系数按《建筑抗震设计规范》( GB 50011-2010) [2]表5. 4. 2 取值,地面粗糙度为B 类。C 类建筑,结构加固后的后续使用年限为50 年。
( 2) 上部结构计算软件与模型建立
结构计算软件采用中国建筑科学研究院编制的PKPM 软件鉴定加固模块进行[3],根据建筑现状建立模型并进行计算,加层前模型见图1,加层后模型见图2。
( 3) 上部结构计算结果分析
经结构抗震承载力验算,该办公楼经增加一层后X 方向、Y 方向最大弹性层间位移角不满足规范要求,该办公楼底层柱轴压比超限,竖向承载力不足[4]。经结构计算,该办公楼部分框架柱配筋不足,部分框架梁配筋不足。因此,该办公楼需进行整体结构加固处理[5]。
2. 2 基桩计算
根据该工程上部结构抗震承载力计算得出加固前底层柱最大轴力NEk,再通过岩土工程勘察资料和设计图纸中灌注桩的尺寸、基桩持力层等设计,经过计算后得出设计单桩竖向承载力特征值R,计算
式中: NEk为地震作用效应和荷载效应标准组合下,基桩的最大竖向力,即为上部结构计算导出的加固前底层柱最大轴力。R 为基桩竖向承载力特征值。经计算,单桩竖向承载力特征值R 与结构加固前底层柱最大轴力NEk进行比对,见表1 所示。
表1 加固前底层柱最大轴力与基桩承载力对比表
根据计算结果分析,该办公楼基桩承载力满足结构在地震作用效应和荷载效应标准组合下的承载力要求,故基桩不需加固。
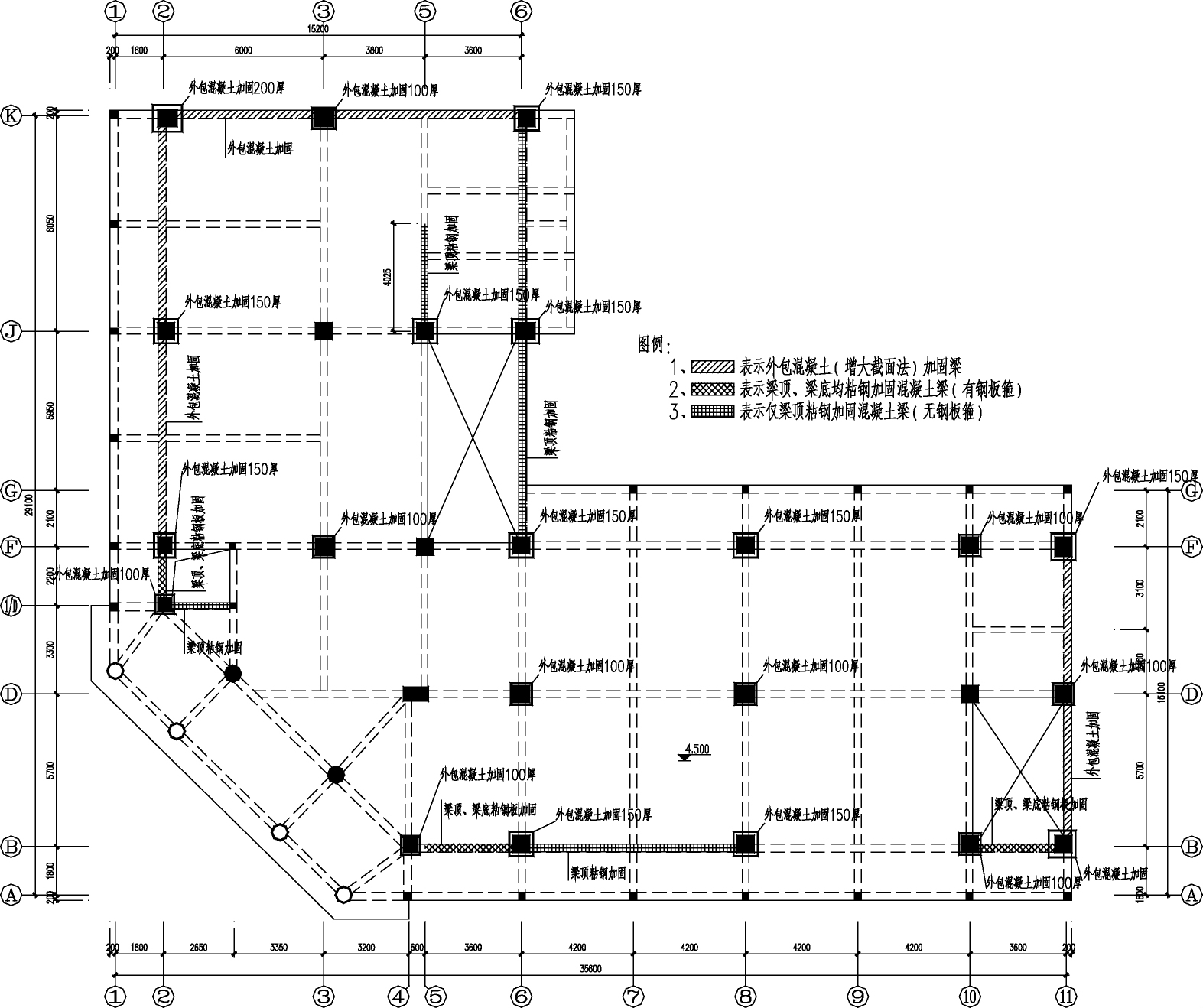
根据结构计算分析,本建筑基桩不加固,桩顶外包混凝土桩帽加固是由于外包混凝土加固框架柱钢筋生根需要。由于上部框架结构最大层间位移角、轴压比不满足《建筑抗震设计规范》要求,需要对部分框架柱进行外包混凝土增大截面法进行加固,对于配筋不足的框架柱采用外包钢法加固。根据结构调整需要,对部分框架梁进行外包混凝土增大截面法进行加固,对配筋不足的框架梁采用粘钢外包钢法进行加固[6]。结构加固平面布置详见图3。
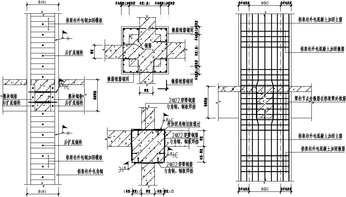
3. 1 框架柱加固
框架柱采用外包混凝土增大截面法和外包钢法进行加固[3],加固做法见图4。柱增大截面加固后,由于整个结构体系的刚度、质量均发生改变,在地震作用下,框架结构体系的内力较加固前原结构发生
图3 一层结构加固平面图
图4 框架柱加固做法详图
了改变[5]。对于外包混凝土增大截面法加固的框架柱,柱外包混凝土增大截面法加固钢筋需在灌注桩顶生根,处于桩周范围内的钢筋采用植筋锚固,处于桩周范围外的钢筋锚固与桩顶加固桩帽钢筋混凝土中,桩顶外包混凝土桩帽加固做法详见图5。框架柱加固由外包混凝土增大截面法向粘钢外包钢法过渡做法详见图6,框架柱顶加固锚固做法详见图6。
3. 2 框架梁加固
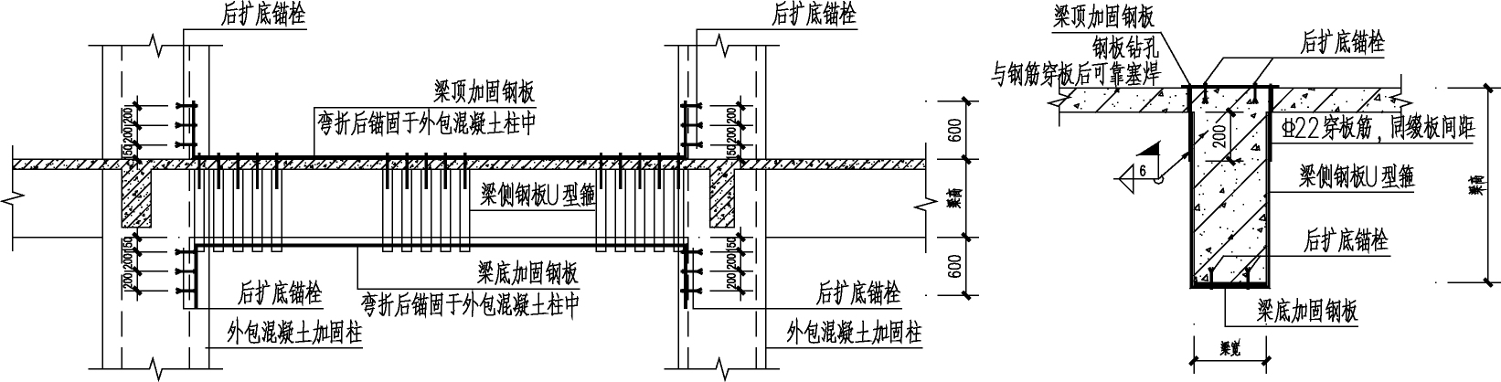
框架梁加固采用外包混凝土增大截面法和外包钢法进行加固[3]。框架梁外包混凝土增大截面法加固做法见图7,框架梁粘钢外包钢法加固做法见图8。对于外包混凝土增大截面法加固的框架梁,钢筋在框架柱范围内采用植筋锚固,在框架柱范围外的采用在加固混凝土柱的外包混凝土中锚固。粘钢外包钢法加固的框架梁,梁顶、梁底加固钢板在框架柱上采用后扩底锚栓群进行锚固,然后再用外包混凝土“包裹”。
3. 3 梁柱节点区加固
梁柱节点区的加固采用外包混凝土增大截面法
图5 桩顶加固详图
图6 框架柱粘钢外包钢在外包混凝土、框架柱顶加固做法
图7 外包混凝土加固框架梁做法
和粘钢外包钢法进行加固,通过节点区的加固,增强框架结构加固的效果,达到“强节点”的加固设计目标。节点区外包混凝土增大截面和粘钢外包钢加固做法见图9。
图8 粘钢外包钢加固框架梁做法
图9 外包混凝土增大截面和粘钢外包钢加固梁柱节点区做法
该办公楼结构经全面结构加固后,X 方向、Y方向最大弹性层间位移角满足规范要求,框架柱、框架梁承载力满足设计承载要求,底层柱轴压比满足规范要求,因此该结构加固合理有效,达到了加固目标,符合加固后使用50 年的设计要求。
4. 1 结构加固前后周期对比
结构经加固后,周期减小[7],周期比降低,结构动力特性改善[8],数据对比详见表2。
4. 2 结构加固前后最大层间位移角、位移比对比
结构经加固后,最大层间位移满足《建筑抗震设计规范》要求,最大层间位移比满足《高层建筑混凝土结构技术规》要求,结构的变形满足规范要求[9]。结构加固前后最大位移角、位移比对比详见表3、表4。
4. 3 结构加固前后底层柱轴压比对比
结构经加固后,底层柱轴压比降低[7],全部满足《建筑抗震设计规范》轴压比限值0. 75 的要求,加固前后的底层柱轴压比对比及相应柱加固做法详见表5。
通过对该办公楼加层后的结构承载力鉴定验算、结构加固计算分析与加固设计的工程实践,工程加固后结构的动力特性明显改善[3],结构的变形满足规范要求,结构整体的承载力满足设计承载要求,能够达到后续使用50 年的设计要求。外包钢法加固混凝土构件采用粘钢胶进行粘接,由于后续使用年限为50 年,因此粘钢胶需采用《工程结构加固材料安全性鉴定技术规范》( GB 50728-2011) 要求设计使用年限为50 年的结构胶。框架结构采用外包混凝土增大截面法、外包钢法的加固方法可行有效,对其他类似的钢筋混凝土框架结构的加固设计也有一定借鉴意义[4]。
[1 ] 刘逸敏,刘海波,等. 某电厂主厂房抗震加固设计[J]. 武汉大学学报( 工学版) , 2008, 41( S) : 28 ~ 31
[2 ] GB 50011-2010,建筑抗震设计规范[S]
[3 ] 李成,郑七振. 某地下车库安全性检测与加固设计
[J]. 工程抗震与加固改造, 2015, 37( 3) : 102 ~ 107
[4 ] 万红宇,施宇,等. 公主坟商业大厦加固改造与加层设计[J]. 建筑结构, 2010, 40( 5) : 59 ~ 63
[5 ] 田飞,李慧民,等. 钢筋混凝土框架结构抗震加固方法应用研究[J]. 工程抗震与加固改造, 2015, 37( 2) :126 ~ 130
[6 ] 康晓菊,朱萱,等. 大路坡文体活动中心加固改造与加层设计[J]. 建筑结构, 2012, 42( 7) : 103 ~ 105
[7 ] 陈道政,和池和,等. 防屈曲耗能支撑在房屋加固中的应用[J]. 工业建筑, 2015, 45( 2) : 165 ~ 169
[8 ] 陈道政,罗志远,等. 某门诊楼加层加固工程的设计[J]. 工程抗震与加固改造, 2015, 37( 2) : 136 ~ 141
[9 ] 武大伟,董建曦,等. 某历史建筑抗震加固方法应用研究[J]. 工程抗震与加固改造, 2015, 37( 2) : 131 ~ 135
免责声明:本文来自建筑结构《某多层框架结构办公楼加层加固设计》作者:魏常宝,郑建军,钱铭,版权归原作者所有,本次仅用于学习分享,如涉及侵权,请联系删除!
版权声明:我们致力于保护作者版权,注重分享,被刊用文章【办公室改善案例(某多层框架结构办公楼加层加固设计)】因无法核实真实出处,未能及时与作者取得联系,或有版权异议的,请联系管理员,我们会立即处理! 部分文章是来自自研大数据AI进行生成,内容摘自(百度百科,百度知道,头条百科,中国民法典,刑法,牛津词典,新华词典,汉语词典,国家院校,科普平台)等数据,内容仅供学习参考,不准确地方联系删除处理!;
工作时间:8:00-18:00
客服电话
电子邮件
beimuxi@protonmail.com
扫码二维码
获取最新动态
