涌金府一期项目1#-5#、7#-15#
楼基坑支护专项方案
编制:
审核:
审批:
江西省鸿厦建筑工程有限公司阳新分公司
涌金府工程项目部
2020年4月
目录
第一章、方案优选及工程概况 1
第二章、基坑支护方案设计 4
第三章、施工总体布署 7
第四章、基坑支护工程 9
第五章、质量保证措施 12
第六章、安全生产与文明施工 15
第七章、应急救援预案.............................16
第八章、雨期施工措施 22
一、基坑围护方案优选 合理安排好地下室工程的施工,优选基坑围护方案,对降低工程造价,保证基坑稳定,促进安全生产、文明施工,至关重要。因此,基坑围护方案的优选主要考虑以下因素: (1)造价因素。项目强调低成本,必须降低支护结构的材料、人工、机械设备费用,合理调配基坑土方的开挖、运输、堆放、回填、弃土,渣土处置等费用。 (2)环境因素。按照JGJ59—2011的要求,要做好安全生产、文明施工,施工过程中尽可能减少对周围环境的影响。 (3)工期。不同的围护形式,工程的工期也各不相同。该工程的特点是时间紧,任务重,工期越短,效益越好。 (4)社会效益。该项目实行“标化”管理,要求工程质量确保优良。 (5)不可预见因素。施工过程中,要综合考虑雨、雪等各种不可预见因素。
由于基本原理不同,目前基坑边坡的支护形式分为支挡型和加固型。 (1)支挡型。可以分为悬臂式和斜梁支撑式。后者造价相对较高。 ①排桩支挡结构。稀疏排桩、连续排桩、双排桩、组合式排桩(与挡板组合、与水泥土拱组合、与水泥土防渗墙组合)。②地下连续墙。对周围环境影响小,对地层条件适应性强,对墙体长度可以任意调节,可用于任何深度的基坑,同时可以作为主体结构的一部分。 (2)加固型。通过对基坑四周土体的加固,利用其自身重力挡墙原理,可满足主动土压力要求,其特点是造价低,施工方法简单。主要形式有:①水泥搅拌桩加固法,施工时无环境污染(噪声、振动、污物排放),造价低,防渗性能好;②高压旋喷桩加固法,当场地地质条件差、土质松散、地下障碍物多时采用此法;③注浆加固法。适用于土质松散,地下障碍物多的地质条件;④网状树根桩加固法;⑤插筋补强法;⑥土钉加固法,其特点是:经济、可靠、施工快捷、应用范围广、施工方法灵活、施工时对环境干扰少、对场地土层的适应性强。 基坑支护涉及到土力学中强度和稳定问题,基坑维护方案的设计应根据工程实际情况进行方案的筛选和优选,选择的出发点是安全、经济。所有的方案,在保证安全的前提下必须达到最大的经济效益。设计不仅要保证边坡的稳定,而且要满足变形控制的要求,以确保基坑周围建筑物、构筑物、管线、道路的安全。
本工程从经济可靠的角度出发,采用挂网喷射混凝土法进行支护。
拟建场地属丘陵岗地地貌单元,原为空地,地面标高黄海高程23.59~34.64m,场地整平后,基坑开挖深度在1.90~5.50m(超过5m处在基坑开挖前整体降土至开挖深度4.5m以内)。
场地岩土工程地质分层、埋深、岩性特征及空间分布详见表1“岩土工程地质分层表”及工程地质剖面图。
岩土工程地质分层表 表1
(二)工程水文情况
场地地下水类型主要为上层滞水。上层滞水赋存于(1)层素填土中,主要接受大气降水及地表水体的补给,无统一自由水位,水量与周边排泄条件关系密切。
(2)、(3)层为相对隔水层,根据渗透试验的经验值,粘性土水平向渗透系数一般在0.01~0.02m/d之间,为极微透水。
(4)、(5)层裂隙不甚发育,为裂隙弱含水。
根据建设单位提供的勘察报告资料地下水埋深在1.30~1.60m;平均水埋深为1.44m,属(1)层素填土上层滞水水位。水位年变化幅度在0.60~1.60m。地下水的补给来源为大气降水和地表水,其主要流向自南西向北东方向迳流。
地下水主要是上层滞水,未测到岩石裂隙水,上层滞水对基槽开挖影响甚微。
本工程先进行场地土方平整至设计室外标高,再根据测量放线位置开挖主楼、地库土方,并按1:1.15(土层为粉质粘土及粘土层楼栋)和1:0.6(土层为强风化及中风化砂岩楼栋)放坡系数放坡。
查看地勘报告本工程1#(南侧、东侧基坑)、5#(西侧基坑)、7#(东侧基坑)、10#楼(西侧基坑)、11#(北侧、东侧基坑)12-13#楼(北侧基坑)及周边地库基坑开挖深度范围内有4至5左右粉质粘土,3#楼(北侧、东侧)及2#楼(北侧、西侧)毗邻6#楼售楼部,基础施工临近雨季,为确保边坡安全,基坑需放坡挂网喷浆支护(Φ4@200X200),其余楼栋基坑边坡视现场土质及开挖深度而定(三方现场确认)。
喷浆挂网具体位置详附件1:
工程地质参数据该场地勘察报告,粘性土层主要物理力学指标平均值详见下表:
3)具体施工措施
坡面采用钢筋插筋 20mm﹫1000*1000mm、L=3000mm,挂钢板网(1)并喷射砼,其喷射压力为0.3~0.5mPa(砼标号为C20,细石砼配比为1:2:2),厚为60-80 mm,细石不大于15 mm。
①坡顶钉Ф18@1500,长度30cm。钢筋采用锤击式击入坡顶土中,Ф18钢筋一端加工呈锥状,便于击入土中。以便增加钢筋网片的稳定性。
②钢筋网片铺设
钢筋网片采用人工顺坡面铺制,坡面上用Φ18(长度30CM)钢筋间距1.5m将钢筋网片固定于土面上,在喷射砼时钢筋网片不可晃动。
③排水管
在喷射混凝土坡面层设置直径为Ф50mm的PVC排水管泄水孔,安装间距为2000mm*2000mm,先用钻机成孔,泄水孔埋设的端头用棉纱或废纸塞堵后安装入孔内,入土长度300mm,结构面外露100mm,埋设角度5-8度,然后注浆固定。
一、施工组织机构及人员配置
整个项目的施工由企业保障系统监督实施,同时接受建设管理部门、业主、监理的指导,并在公司工程部领导下成立该工程的项目指挥部,项目指挥部设专项项目经理和以下的管理班组,统筹管理和技术配合,以实现本工程的各项施工目标。具体的组织机构如下:
用220挖机修整基坑边坡以利于进行挂网喷浆支护施工。
土方:用挖土机开挖土方到设计标高,土方随挖随用人工进行清理,并挖掉浮土。
施工准备
测量放线
地下室施工
基础验收回填土
土方清运施工
基坑挂网喷浆支护施工
实行规范化管理,保证工程在管理、质量、文明施工上创出一流水平。
施工准备在基础工程施工前,专门召开施工准备会议,落实各项施工准备工作计划,内容如下:
技术准备:熟悉、审查施工图纸和施工方案。技术交底:组织工人学习方案,对关键部位进行指导把关。劳动组织准备:组织劳动力进场,做好施工人员入场教育等工作。材料、机械准备:根据相关的设计图纸和施工方案,编制详细的材料、机械设备需要量计划;组织材料和机械设备按计划进场。施工场外协调:对外协调交通、环卫、市容的关系。各项资源需要量计划劳动力需要量计划:喷射砼支护工程施工的特点是边开挖边支护,分层开挖,分层支护,开挖完成既支护完成,开挖过程和喷射砼支护施工形式成流水作业。
工艺流程第一层砼喷射
锚入Φ18钢筋
基壁修整
基坑开挖
定位放线
第二层砼喷射
进入下层土方开挖、喷射砼施工
钢筋网片铺设
①放线定位,周边基坑分层开挖,修整边壁;
②钢筋制作,定位、打入;
③铺设钢筋网片;
④施工喷射砼,厚10㎝;
⑤进入下一层土方开挖;
施工方法边坡修整:采用挖机清理修整,为确保喷射砼面层的平整,此工序必须挂线定位。对于土层含水量较大的边坡,可在支护面层背部插入长度为500mm,直径不小于50mm的水平排水管包滤网,其外端伸出支护面层,间距为2m,以便将喷混凝土面层后的积水排走。
定位放线:按设计间距由测量人员放出每个钢筋的位置用于固定钢筋网片。
钢筋网片安装:(1)钢筋网采用4@200200mm钢筋板网片,双向间距均为200mm。
(2) 根据作业面层分层、分段铺设钢筋网,钢筋网之间的连接可采用搭接,搭接时上下左右一根对一根搭接绑扎,搭接长度应大于30cm,并随壁面随坡就势铺设,钢筋网片用插入土中的钢筋固定。钢筋网片借助于井字架与Φ18钢筋外端绑扎成一个整体。
喷射砼:(1)喷射砼顺序可根据地层情况“先锚后喷”,土质条件不好时采取“先喷后锚”,喷射作业时,空压机风量不宜小于9m3/min,气压0.20.5MPa,喷头水压不应小于0.15 MPa,喷射距离控制在0.61.0m,通过外加速凝剂控制砼初凝和终凝时间在510 min。
(2)喷射混凝土采用P.C32.5级普通硅酸盐水泥,砂子采用中砂,且砂的含水率宜控制在5%-7%,石子应用坚硬、耐久的碎石,其最大粒径不应大于10mm。
(3) 喷射混凝土的面层强度C20,配合比一般采用水泥:砂:碎石重量比为1:2:2,水灰比为0.40-0.50,厚度100mm。
养护:采取浇水养护。
基坑开挖过程中遇到的水源一是来自坑壁外的土层滞水和施工用水,二是来自坑底以下的潜水,本工程主要水源来自坑壁外土层滞水和施工用水。
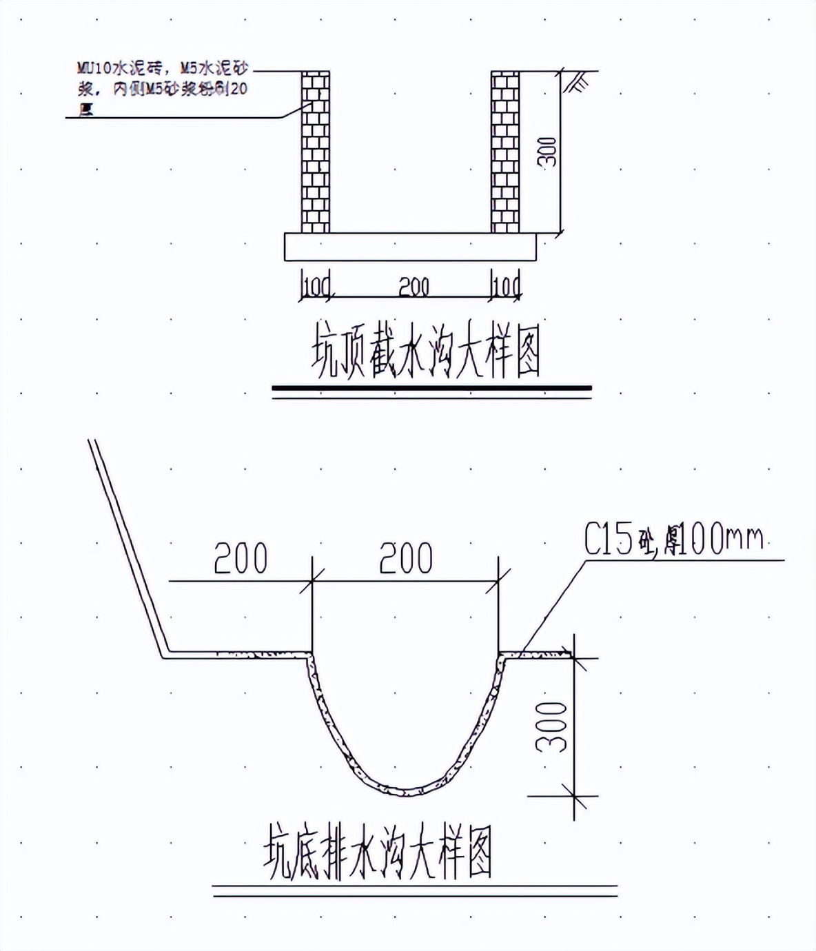
①基坑采用明排水,基坑四周设置300×200排水沟(详见附图),并设置两个集水井,比沟底深0.4m,井径0.6m,采用水泥泥砖砌筑。
② 基坑顶四周设置300×200截水沟(详见附图),尽量减少来自基坑以外的水,进入基坑。
基础施工阶段建立由项目经理、执行经理、技术负责人领导,质量总监中间控制,责任工程师负责的三级管理系统。
项目经理
项目技术负责人
质量员
施工员
施工员
土方施工
基坑支护施工
执行经理
基本要素质量 工作质量
人员:基本要素质量
执行岗位责任制
人员素质保证
材料:原材检测
技术资料保证
原材质量保证
操作:按工艺标准
熟悉方案
操作过程保证
机具:检测合格使用
周检维修保养
机具保证
方案:经审批可实施
实施中优化总结
方案保证
原材质量保证
产品
质量
保证
采用信息化施工,确保基坑开挖过程中的安全, 必须对基坑进行监测,方案如下:
观测点的布置:在坡顶上每隔15m布置一个点。
观测精度要求:满足国家三级水准测量精度要求;水平误差控制<6.00mm;垂直误差控制<0.5mm。
观测时间的确定:基坑开挖每一步都应作基坑变形观测.观测时间间隔每天一次, 必要时连续观测, 基坑开挖完7天后, 可由每天一次到3天一次, 15天后每周观测一次。场地查勘与记录:施工前对原场地进行全面调查, 查清有无原始裂缝和异常并作记录, 照相存档。每次观测结果详细记入汇总表并绘制沉降与位移曲线。本基坑工程按二级基坑观测,根据基坑周边环境条件,监控内容包括:
(1)支护结构水平位移观测。
(2)基坑东侧活动板房沉降观测。
根据《建筑变形测量规程》(JGJ/T8-97)中的有关规定,选择安全监测仪器及施测方法。
(1)基坑侧壁的水平位移采用精度不低于DJ2级全站仪观测,按视准线法施测。
(2)建筑物的沉降监测采用精度不低于DS2级水准仪观测,按测微法施测。
根据实际监测数据对基坑工程作出险情预报,是一个极其严肃的技术问题,必须根据工程的具体情况,综合考虑各种实际因素,在实测数据的基础上及时做出判断。
允许变形标准有两种指标,其一是变形容许值(累计变形),其二是变化速率。这两种指标中任何一种达到警戒限值都应及时做出判断,形成决策。
(1)基坑变形的监控值
根据《建筑地基基础工程施工质量验收规范》GB50202-2018中第7.1.7条规定,基坑边坡及周边地面允许变形值应符合下表:
基坑变形的监控值 表 5.3.1-1
(2)水平位移速率控制
连续3日水平位移速率达到2mm/d;应预报警。
建筑物允许变形值 表5.3.1-2
(2)沉降速率控制
在基坑开挖期间,每天监测次数一次为宜,当位移出现发展趋势或接近预警值时,应加大监测的频率,连续3日沉降速率达到1mm/d ,或肉眼发现建筑物裂缝急剧扩张,应预报警。
(六)注意事项
每次观测应用相同的观测方法和观测线路。观测其间使用一种仪器,一个人操作,不能更换。加强对基坑各侧沉降,变形观测,特别对有地下管线地的各边坡可进行重点观测。如发生质量问题,立即上报监理,并在4小时内递交有关质量问题的书面详细报告,包括时间、部位、细节描述、产生原因、处理的措施等。
土方开挖过程中,若基坑变形突然加大,应立即停止开挖,并及时回填,也可以在其背后进行挖土卸荷,以保证基坑的稳定。开挖过程中,若局部存水,可以采用明排集中,用潜水泵抽到地面排水系统。基础施工过程中及时收集、整理各种原始资料和记录,并上报监理。按照国家有关标准和要求,完成技术资料的分类、归档工作。
项目经理
项目技术负责人
质量员
施工员
施工员
土方施工
基坑支护施工
执行经理
第七章 、 应急救援预案
在施工中坚持以先进的措施保证施工顺利进行,保证质量目标和整体施工部署的实现。面对土方和支护施工工期紧张和地质条件复杂的形势,我公司各级领导本着思想重视、预防为主、部署到位、运行有效的指导思想,认真组织每个分部工程的施工工作,杜绝在施工过程中和±0.00以下结构土方回填前土方和支护施工的质量、消防、环保、卫生和安全等方面的事故发生。为防患于未然,对于在土方和支护过程中可能出现的险情准备好针对性强的应急预案。当突发事件发生时,应采取紧急补救措施,迅速组织施工人员撤离现场,及时将突发事件的实际情况上报总包方及监理方,严禁私自处理。
为了保护从业人员及相关人员身体健康和生命安全,保证发生生产安全事故时,能够及时进行应急救援,最大限度地降低生产安全事故给从业人员和相关人员造成的伤害和经济损失,为此特成立本项目应急救援小组,明确:救援职责﹑报告程序﹑救援程序﹑救援准备。
1、应急救援组织机构:应急救援小组
由组长(项目经理)、副组长(技术负责人、生产经理)、成员(土方抢救队、支护抢救对)组成。
2、应急救援小组职责:
组长——主持全面工作,领导组织检查预案的落实情况,突发事件发生后,负责组织应急救援协调指挥工作,负责组织、指挥、安排人员调查分析、处理,组织总结制定预防改进措施。
副组长——配合组长全面负责协调检查各项工作的落实情况及突发事件的组织指挥,调查、分析、处理善后事宜,参与总结制定预防改进措施。
成员职责——各部门的职责参与施工过程中的管理。突发事件发生后,参与配合上级各部门对事故的调查,分析、处理、总结制定预防改进措施。
1)报警:及时准确报清事故发生的地点、时间、伤亡者姓名、性别、年龄及具体情况,向上级有关领导及部门报告。
2)抢救:及时拨打急救电话120或999(火警119),并安排急救车辆,在车辆到来前根据伤者情况和本人所学的自救知识,采取必要的应急自救措施,以最快的速度抢救伤员。
3)现场保护:妥善保护现场,标明伤害者位置,严禁无关人员进入,必要时组织人员进行围挡,以便事故调查组查明事故原因和责任。
4)联络家属、疏导人群:对企业内外有关人员进行联络,通知家属。对施工现场的重点部位、办公区、救援车辆和人员疏散通道,用相应的安全色, 明显标识,并确保现场畅通。
3、安全生产事故报告程序
1)事故发现人员发现事故后,马上报告施工现场应急救援值班室及施工总包方,并同时拨打120急救电话;
2)现场应急救援人员立即组织抢救,并立即报告安全事故应急救援小组和企业安检部,同时启动本预案;
3)若事故重大,应立即上报所在区建设委员会﹑劳动部门﹑公安部门﹑人民检察院﹑工会,并逐级上报九江市建委。
安全生产事故应急救援程序
1)事故发现人应立即报告现场应急救援办公室,并拨打120急救电话。
2)由应急救援小组,组织抢救工作,并报告安全事故应急救援小组和企业主管领导。
3)现场急救主要包括救护、现场保护、疏导人员。并准备车辆,以便及时、快速送往医院。情况严重时要立即通知家属。
4)了解伤亡情况,通知企业领导,公安局和市建委。
1.土方施工队、基坑支护队和总包方共同签定施工配合协议书,明确责任及要求。
2.项目部必须对所有施工现场人员进行生产安全事故应急救援预案交底,以熟悉应急状态后的行动方案。
3.配备钢筋剪等切割设备。
4.电闸箱﹑电缆﹑水泵﹑灯具等照明﹑排水设备。
5.钢管﹑扣件﹑脚手板﹑编织袋﹑大锤﹑铁铣等清土工具及挡墙材料。
6.配备急救药品﹑消毒品﹑夹板﹑绷带等物品。
根据本项目施工的特点,以及对施工现场危害因素的识别,针对基坑支护工程等易发生重大生产安全事故的部位、环节制定以下安全控制措施。
1)工程技术处要认真了解施工现场周围和地下各种管线情况。根据国家及行业规程﹑规范﹑标准,编制和制定具备安全技术措施的施工组织设计和施工方案。
2)总工办要严格审查施工组织设计和施工方案, 并提出决定性意见。
3)项目部依椐施工组织设计和施工方案,精心组织施工,现场施工人员必须进行安全生产教育﹑施工技术﹑应急预案交底,并办理相关手序。
4)项目部必须建立安全生产值班制度。做到只要有人作业,就必须要有领导值班和安全管理人员在现场。
5)现场施工材料必须具有国家规定的生产单位﹑材质证明及合格证明等资料,并经法定的检测单位进行检测,确认合格后方准使用。
6) 必须遵循分层开挖,分层支护的原则,对滞水层地段渗水较严重的部位应采取分层﹑分段开挖,分层﹑分段支护,坚决杜绝超挖现象。
7) 下一步土方开挖距上一层面层砼完成不应少于24小时。
8) 施工中修坡作业要从上至下,严禁从下部掏采挖土,严格检查放坡系数﹑网片固定﹑面层等工序,必须符合国家质量验收标准。
9) 施工中如遇障碍物﹑或特殊情况无法按照施工方案施工时,需报请技术人员办理技术洽商后,按照书面技术变更方案实施。
10) 施工中严格执行各工种自检﹑互检﹑技术人员专检制度,合格后认真填写工程检验批质量验收记录表,报请监理部门验收,合格后方准下道工序施工。
11) 施工中如出现明显垮塌迹象,应立即停止施工,疏散相关人员,挖掘机应立即进行土方回填,稳住边坡。
12) 当地面出现较大沉降时,可采取跟踪注浆方法,沿沉降区边缘打注浆孔,孔深根据土层压缩变形﹑下降位置确定。孔径100~120mm,孔间距约2~3m。然后向孔内注入一定配比的水泥浆。
13) 当边坡出现较大裂缝时,可沿坡脚及坡壁垂直或斜向打入Φ48mm的一排超前钢管微型桩进行加固或者其他的支护加固处理。
14) 坑边周围2.00m范围内严禁堆物﹑堆料,严禁车辆行走﹑停留。
15) 项目部安全员要随时对边坡进行巡视监查,当第一步支护完闭后,应及时按规定设制边坡监控点,位移观测点平均间距15m,由技术人员利用水准仪和经纬仪进行边坡观测。
16) 在开挖过程中,每3天观测一次;如发现较大或突变时,应在上﹑下午各观测1次;支护完成后视边坡土体变形情况适当延长观测周期。
17) 监控点责任人和当班人员,必须严格按照检查周期,进行认真的巡回检查,严格监控,并形成详细的原始记录,以供检查考核。
18) 监控检查中发现问题,正确地进行技术分析,查清原因,采取防止缺陷扩大的安全技术措施,并将缺陷内容、发生时间、处理情况书面反馈安全部门。
19) 对存在的重大隐患,采取果断措施,立即停止施工﹑疏散相关人员﹑立即调用挖掘机进行土方回填,稳住边坡并将作业区加以封闭,及时报告有关领导或总工程师,研究整改方案,进行整改。
20) 每月对各监控点进行一次全面的安全检查,并作出科学性的综合分析论证。
在岩土工程中遇到实际地层及地下水情况与勘察报告不符是正常现象,为及时掌握地层情况,应通过挖探坑的形式预先探明深部地层情况,并结合沉降及位移观测数据决定下部开挖深度和宽度,并根据地层变化,对基坑支护的参数作相应的调整。
1、如遇到砂层等不稳定地层,应减小开挖深度,并采取跳仓式挖法,每一个流水段不大于5.00m,等到已施工完的部位有一定强度之后,方可将所留土墩挖除并进行支护。
2、密切注意周围管线的动向,防止变形给管线带来不必要的损坏,对于基坑坡壁的滞水现象,应在混凝土面层形成之后安装排水管将渗水引入坑内,禁止将水封在混凝土面层之内。
3、局部坍塌
在砂层中开挖时,如果裸露时间较长,极易失去水分,受到扰动会使砂层成片剥落。为减少对砂层扰动机会,缩短清坡到支护时间,将开挖分段长度减到3~5m一段,并改变施工工序,清坡后,立即编网并喷射混凝土。对于土质较差的地段,如果不能按照原定方案施工,可以在开挖前,打入竖向钢筋或钢管,防止局部土体塌落,然后继续下挖进行支护(亦即采用超前支护)。
4、地表裂缝
在整个施工开挖过程中,应连续观察邻近地表、地物的开裂、变形情况。一般情况下,地表发生细小裂缝和紧靠基坑的一般建筑物出现装修层的轻微开裂可以视作正常,但必须密切追踪发展趋势并及时采取特殊处理措施。当裂缝出现不断加速发展并延伸时,必须停止原定施工过程,修改支护参数并及时加固。当基坑顶部的侧向位移与当时开挖深度之比超过4‰时,应密切加强观察并及时对支护采取加固措施,必要时增用其它支护方法。
6、在土方开挖过程中,如出现滑坡迹象(如大裂缝、滑动等)时,应立即采取下列措施:
1)暂停施工,必要时,所有人员和机械撤至安全地点。
2)通知现场管理人员,迅速采取处理措施,如用挖掘机在坡脚迅速回填等。
因土方开挖与护坡分层高度不尽相等,因此土方开挖要与护坡密切配合,严禁超挖给基坑支护带来安全隐患。发现异常情况,土方施工队应无条件地服从指挥,以保证基坑及周边建筑物的安全。
3)根据滑动迹象在危险部位增设置观测点,观测滑坡体平面位移和沉降变化,并做好记录。
7、临时线路的安全控制措施:
施工用电线路的铺设要严格按照操作规程施工,由持有特种作业操作资格证书的电工安装临时线路及设备,其他任何施工人员不得随意在线路上私拉乱接线路及用电设施,临时用电的电闸箱非正式电工不得随意拆改箱内的线路。
临时线路的架设高度应符合要求,要求工程施工期间的各种机械的线路不得有破损,线路的接头应符合要求,不得使用损坏的插头。施工期间本项目部电工操作人员要每天对线路和电闸箱进行巡视和检查。
8、易燃﹑易爆物品的安全控制措施
易燃﹑易爆物品,必须有严格的防火措施,操作人员必须持证上岗,必须严格遵守安全操作规程,施工时配备灭火器材,确保施工安全。施工现场严禁吸烟,生活区严禁使用大功率电器,严禁工程中明火保温施工及宿舍内明火取暖。
9、对违反劳动纪律的控制措施
违反劳动纪律表现在违反操作规程及不配带或不正确配带、使用安全帽、安全带;特种作业人员不穿、不戴必要的防护用品等,象这些违反劳动纪律的现象,要通过经常的检查及时纠正违章现象。再通过处罚、办班、清退等手段,以达到现场施工人员严格遵守各项安全规章制度,杜绝违章、违纪的目的。
⑴ 公司成立抢险救援指挥部,现场成立应急指挥领导小组,要保证24小时有人值班,有事故、险情时及时报告应急抢险组织机构。
⑵ 抢险救援车辆、物资、设备要保证完好、齐全。
⑶ 保证抢险救援人员通讯畅通,随叫随到。
坡顶做不小于200mm宽散水、挡水墙,四周做砼路面。基坑内,沿四周挖砌排水沟、设集水井,泵抽至市政排水系统。排水沟布置在基础轮廓线以外,排水沟边缘应离开坡脚0.2m,沟底比基坑底低0.3m,坡度0.1%;集水井设置在基坑脚上,安置俩个集水井,井径0.6m,井壁用水泥砖砂浆砌后抹光,集水井底比排水沟低0.4m。排水设备采用大扬程的潜水泵,雨期抽出的积水应排至基坑以外地面排水系统,防止乱排产生回渗。保证施工现场水流畅通,不集水,四邻地区不倒灌。
做好生活区的下水管道和雨水井,用水应有固定排放途径,保证雨后不陷、不滑、不泥泞、不存水,避免浸泡边坡。土方施工中,基坑内临时道路上铺渣土或砂石,保证雨后通行不陷。已暴露还未喷射的桩间土工作面防止雨水直接冲刷,遇雨时覆盖塑料布。工作面出来后应立即浇筑好砼垫层,防止雨水泡槽。现场存储的钢材做好防雨水锈蚀的准备。机电设备要经常检查接零、接地保护,所有机械棚要塔设严密,防止漏雨,随时检查漏电装置功能是否灵敏有效。喷射砼前,要随时掌握天气预报,尽量避开大雨,现场要准备大量苫布,以备喷射时遇雨进行覆盖。9、现场要有4台左右的备用潜水泵,遇雨时及时抽水。
附件1:
版权声明:我们致力于保护作者版权,注重分享,被刊用文章【建筑地基基础工程施工质量验收规范(基坑支护专项方案)】因无法核实真实出处,未能及时与作者取得联系,或有版权异议的,请联系管理员,我们会立即处理! 部分文章是来自自研大数据AI进行生成,内容摘自(百度百科,百度知道,头条百科,中国民法典,刑法,牛津词典,新华词典,汉语词典,国家院校,科普平台)等数据,内容仅供学习参考,不准确地方联系删除处理!;
工作时间:8:00-18:00
客服电话
电子邮件
beimuxi@protonmail.com
扫码二维码
获取最新动态
