▲ 点击“火柴设计联盟”,关注设计互动平台 每天更新,喜欢的可以点赞关注转发哦!
滑到文章底部获取免费资料
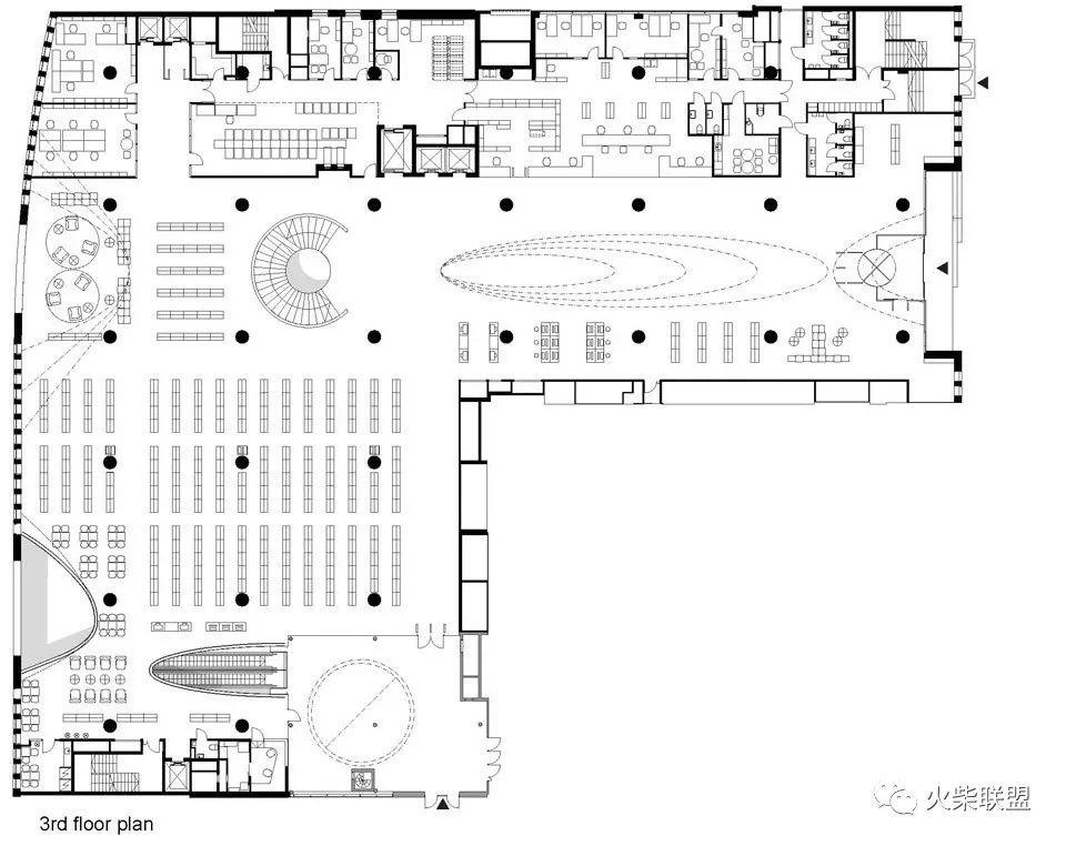
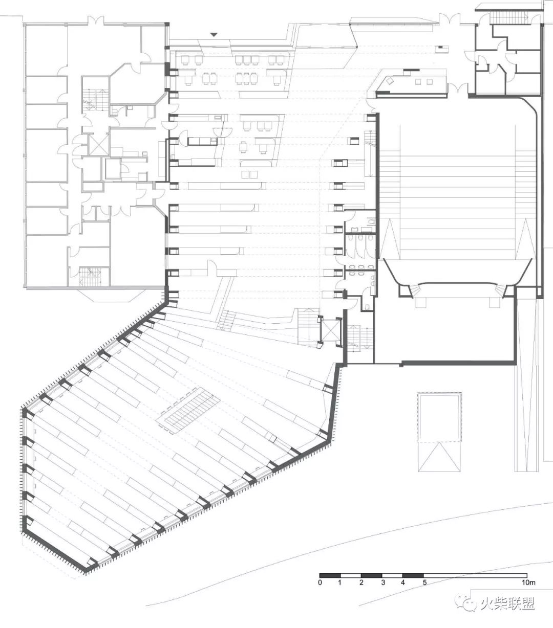
《图书馆合集》┆『精选52套图书馆案例参考案例作品集』高清官方摄影图片52套┃图书馆参考案例┃包含CAD施工图、效果图,设计方案(部分)┃JPG高清┃547MB〖火柴设计联盟〗第1983期
此合集内容为图书馆案例设计
高清官方摄影图片(700张)
包含CAD施工图、效果图,设计方案(部分)等丰富资料
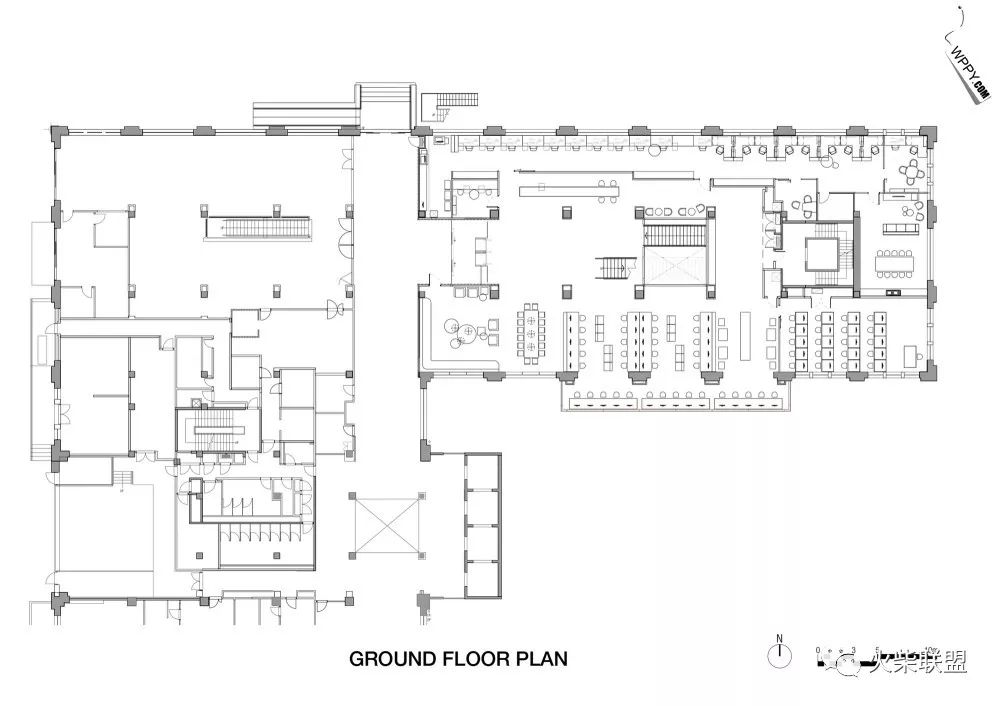
丹麦奥尔胡斯市的Dokk1图书馆
澳大利亚菲兹罗的天主教大学图书馆
芬兰塞伊奈约基市立图书馆
法国La Madeleine媒体图书馆
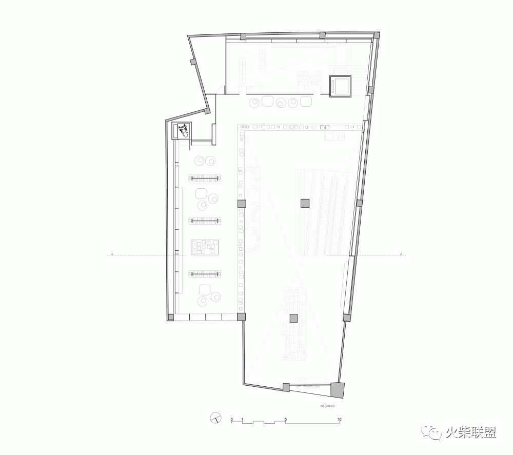
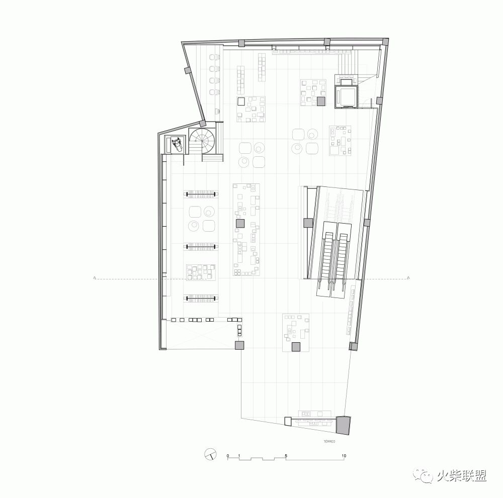
Saraiva Bookstore
图书馆 vennesla
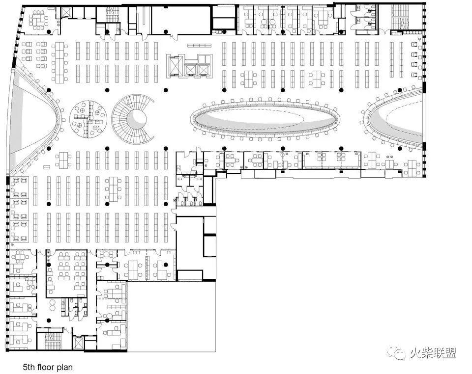
图书馆 Helsinki University Main Library 芬兰 赫尔辛基
【免费获取方式】
关注转发加评论后私信“1983” 即可获取此套完整版资料
免责声明:
以上图片及资料内容来源于网络,由我方整理,版权归原作者及其公司所有;
本资料仅供学习研究之用,不得用作于商业用途,若此图库侵犯到您的权益,请与我们联系删除;
本文章版权归本头条号所有,未经同意不得随意转载 ,若恶意侵权将追究其法律责任
版权声明:我们致力于保护作者版权,注重分享,被刊用文章【图书馆案例分析(精选52套图书馆案例参考案例作品集)】因无法核实真实出处,未能及时与作者取得联系,或有版权异议的,请联系管理员,我们会立即处理! 部分文章是来自自研大数据AI进行生成,内容摘自(百度百科,百度知道,头条百科,中国民法典,刑法,牛津词典,新华词典,汉语词典,国家院校,科普平台)等数据,内容仅供学习参考,不准确地方联系删除处理!;
工作时间:8:00-18:00
客服电话
电子邮件
beimuxi@protonmail.com
扫码二维码
获取最新动态
