一、【案例背景】
2021年6月25日,河南省柘城县远襄镇北街村739号(村民陈某自建房)柘城县震兴国际搏击俱乐部(震兴武馆)发生重大火灾事故,造成18人死亡、11人受伤,直接经济损失2153.7万元。
6月24日晚,震兴武馆内共住有39人,其中34名学员住在临街门面房二层学员集体宿舍,陈母、陈妻及其3个孩子住在一层各自住室。23时43分许,陈母在其住室阁楼下层点燃盘式蚊香后,到阁楼上层休息。6月25日1时58分许,陈母住室东侧卷帘门上部缝隙有烟气向外飘出。3时4分许,陈母被热醒,发现阁楼下层着火,到门外呼喊学员及陈妻。3时8分许,陈妻及其3个孩子被叫醒,随后与到场群众一起采取抛绳索、铺垫子等方式救人。先后有16名学员通过室内楼梯以及滑绳、跳楼等方式逃生。处置过程中,陈母、陈妻均未拨打报警电话。
6月25日3时13分,当地消防救援大队119指挥中心接到报警。大队迅速调派5辆消防车、30名指战员赶往现场。3时36分,救援力量赶到现场,起火建筑已处于猛烈燃烧状态。消防救援人员进入起火建筑内部强攻搜救被困人员,并同步实施灭火,先后搜救出18人。4时25分许,明火被扑灭。4时55分许,建筑内部残火清理完毕,灭火救援行动结束。
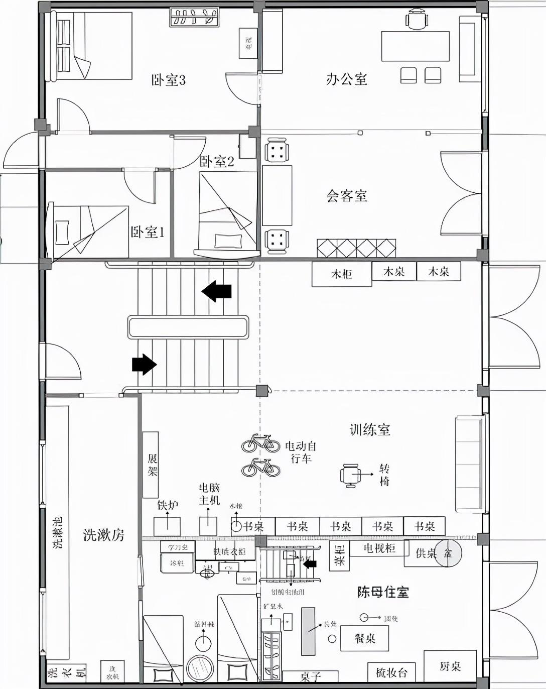
图1 临街门面房一层平面图
图2 临街门面房二层平面图
此起火灾过火建筑为震兴武馆东部2层临街门面房。该建筑高度9.4米,地上2层(如上图,一、二层平面图),建筑面积403.2㎡。其中共5跨间,先后进行2次建设和3次改建(含装修),一层南侧第一跨间与第二跨间之间采用聚苯乙烯夹芯彩钢板分隔,二层西外墙4个窗户上加装了防盗网。
二、【案例分析】
本次事故起火原因是陈母使用蚊香不慎引燃纸箱、衣物等可燃物所致。
1.建筑内未形成有效的防火分隔。起火房间(陈母住室)与训练室之间的隔墙采用易燃的聚苯乙烯夹芯彩钢板,二层部分隔墙为钢龙骨双面石膏板墙,隔墙耐火等级低,一、二层之间的楼梯为敞开式楼梯,起不到有效的防火防烟分隔作用。
2.起火房间火灾荷载较大。起火房间使用夹芯彩钢板作为隔墙,放有家具、床上用品、衣物和大量杂物,着火后产生大量高温有毒烟气。高温有毒烟气经敞开式楼梯快速蔓延至二层学员集体宿舍,导致火势扩大。
3.火情发现晚。6月25日1时58分,陈母住室东侧卷帘门上部缝隙已经有烟气向外飘出。3时4分,陈母才发现着火。
4.初期处置不力。陈母发现火情后,没有立即进行扑救,打开房门后,新鲜空气涌入,火势迅速扩大。周围群众使用盆、桶泼水和灭火器灭火,收效甚微。
1.着火物产生大量高温有毒烟气。夹芯彩钢板和床上用品、衣物等着火物,燃烧后产生大量高温有毒烟气,造成人员因一氧化碳中毒、呼吸道热灼伤、创伤性休克伤亡。
2.违规集中住宿学员。震兴武馆在不具备安全条件的情况下,在临街门面房二层设置学员集体宿舍。
3.逃生通道不符合要求。震兴武馆一、二层之间仅有一部敞开式楼梯,火灾发生后,楼梯间迅速充满高温有毒烟气,二层住宿的学员难以通过楼梯逃生。二层西侧学员集体宿舍4个外窗均安装有防盗网,学员无法通过西侧外窗逃生。
震兴武馆的经营管理人员消防安全意识淡薄,未落实消防安全主体责任,培训场所不符合消防安全要求,未开展防火检查巡查、灭火和应急疏散演练,对有关部门和单位检查指出的火灾隐患没有及时整改。火灾发生后,没有及时报警,组织学员疏散和扑救火灾不力。
陈某、陈妻、陈母均因涉嫌教育设施重大安全事故罪先被柘城县公安局刑事拘留,后移送检察机关。
三、相关知识点
火灾发生的常见原因:电气使用不慎、吸烟不慎、生活用火不慎、生产作业不慎、玩火、放火、雷击等。
近年来,采用聚苯乙烯、聚氨酯作为芯材的金属夹芯板材的建筑火灾多发,短时间内即造成大面积蔓延,产生大量有毒烟气,导致金属夹芯板材的垮塌和掉落,不仅影响人员安全疏散,不利于灭火救援,而且造成了使用人员及消防救援人员的伤亡。为了吸取火灾事故教训,在《建筑设计防火规范》修订中提高了金属夹芯板材芯材燃烧性能的要求,即对于按规范允许采用的难燃性和可燃性非承重外墙、房间隔墙及屋面板,当采用金属夹芯板材时,要采用不燃夹芯材料。
对于非承重外墙、房间隔墙,当建筑的耐火等级为一、二级时,按本规范要求,其燃烧性能为不燃,且耐火极限分别为不低于0.75h和0.50h,因此也不宜采用金属夹芯板材。当确需采用时,夹芯材料应为A级,且要符合规范对相应构件的耐火极限要求;当建筑的耐火等级为三、四级时,金属夹芯板材的芯材也要A级,并符合规范对相应构件的耐火极限要求。
对于多层建筑,在我国华东、华南和西南部分地区,采用敞开式外廊的集体宿舍、教学、办公等建筑,当其中与敞开式外廊相连通的楼梯间,由于具有较好的防止烟气进入的条件,可以不设置封闭楼梯间。该起事故的建筑明显应采用封闭楼梯间。
根据《建筑设计防火规范》GB50016-2014(2018年版),公共建筑内每个防火分区或一个防火分区的每个楼层,其安全出口的数量应经计算确定,且不应少于2个。设置1个安全出口或1部疏散楼梯的公共建筑应符合下列条件之一:
1除托儿所、幼儿园外,建筑面积不大于200m²且人数不超过50人的单层公共建筑或多层公共建筑的首层;
2除医疗建筑,老年人照料设施,托儿所、幼儿园的儿童用房,儿童游乐厅等儿童活动场所和歌舞娱乐放映游艺场所等外,符合表5.5.8规定的公共建筑。
按照民用建筑灭火器配置场所的危险等级,学生住宿床位在100张以下的学校集体宿舍属于中危险级。
火灾发生时,消防控制室的值班人员按照下列应急程序处置火灾:
1)接到火灾警报后,值班人员立即以最快方式确认火灾。
2)火灾确认后,值班人员立即确认火灾报警联动控制开关处于自动控制状态,同时拨打“119”报警电话准确报警;报警时需要说明着火单位地点、起火部位、着火物种类、火势大小、报警人姓名和联系电话等。
3)值班人员立即启动单位灭火和应急疏散预案,同时报告单位消防安全负责人。
根据《中华人民共和国消防法》第十六条 机关、团体、企业、事业单位应当履行下列消防安全职责:
1)落实消防安全责任制,制定本单位的消防安全制度、消防安全操作规程,制定灭火和应急疏散预案;
2)按照国家标准、行业标准配置消防设施、器材,设置消防安全标志,并定期组织检验、维修,确保完好有效;
3)对建筑消防设施每年至少进行一次全面检测,确保完好有效,检测记录应当完整准确,存档备查;
4)保障疏散通道、安全出口、消防车通道畅通,保证防火防烟分区、防火间距符合消防技术标准;
5)组织防火检查,及时消除火灾隐患;
6)组织进行有针对性的消防演练;
7)法律、法规规定的其他消防安全职责。单位的主要负责人是本单位的消防安全责任人。
根据《中华人民共和国消防法》第二十八条 人员密集场所的门窗不得设置影响逃生和灭火救援的障碍物。
根据《机关、团体、企业、事业单位消防安全管理规定》第二十五条规定,医院、养老院、寄宿制的学校、托儿所、幼儿园应当加强夜间防火巡查,并确定巡查的人员、内容、部位和频次。
机关、团体、事业单位应当至少每季度进行一次防火检查,其他单位应当至少每月进行一次防火检查。
消防安全重点单位应当按照灭火和应急疏散预案,至少每半年进行一次演练,并结合实际,不断完善预案。其他单位应当结合本单位实际,参照制定相应的应急方案,至少每年组织一次演练。
根据《中华人民共和国刑法》第一百三十八条规定,教育设施重大安全事故罪,是指明知校舍或者其他教育设施有危险,而不采取措施或者不及时报告,致发生重大伤亡安全事故的行为。对直接责任人员,处三年以下有期徒刑或者拘役;后果特别严重的,处三年以上七年以下有期徒刑。
教育设施重大安全事故罪与工程重大安全事故罪,两者都是过失犯罪,都以发生严重后果,作为构成犯罪的必要条件。但两者的区别在于:
1)犯罪主体不同。教育设施重大安全罪主体只能是对校舍或者教育教学设施负有采取安全负责的主管人员和其他直接责任人员;工程重大安全事故罪是单位犯罪,其犯罪主体是建设单位、设计单位、施工及工程监理单位。
2)造成严重事故的原因不同。教育设施重大安全事故罪中重大伤亡事故的发生是由于行为人对自己明知的或教育教学设施存在的危险,不采取措施或者不及时报告,以致贻误时机,致使发生严重事故;工程重大安全事故罪中的重大安全事故发生的原因是建设单位、设计单位、施工单位、工程监理单位,降低工程质量标准造成的。
版权声明:我们致力于保护作者版权,注重分享,被刊用文章【火灾的真实案例(火灾真实案例)】因无法核实真实出处,未能及时与作者取得联系,或有版权异议的,请联系管理员,我们会立即处理! 部分文章是来自自研大数据AI进行生成,内容摘自(百度百科,百度知道,头条百科,中国民法典,刑法,牛津词典,新华词典,汉语词典,国家院校,科普平台)等数据,内容仅供学习参考,不准确地方联系删除处理!;
工作时间:8:00-18:00
客服电话
电子邮件
beimuxi@protonmail.com
扫码二维码
获取最新动态
