总想放下一切,去和大自然亲近。但又没有勇气,放下一切说走就走。而本期,分享的这套装修案例的主人,便奇思妙想的将自然搬进了家门。
这是一对小情侣的居所,因为平时工作忙,放不下手头上的事去感受自然,因此,他们选择了自然简约原木风的装修。如果你也想呼吸自然,拥抱绿色,不妨参考下这套装修案例吧!在克制中寻找平衡,让你重回呼吸之野。
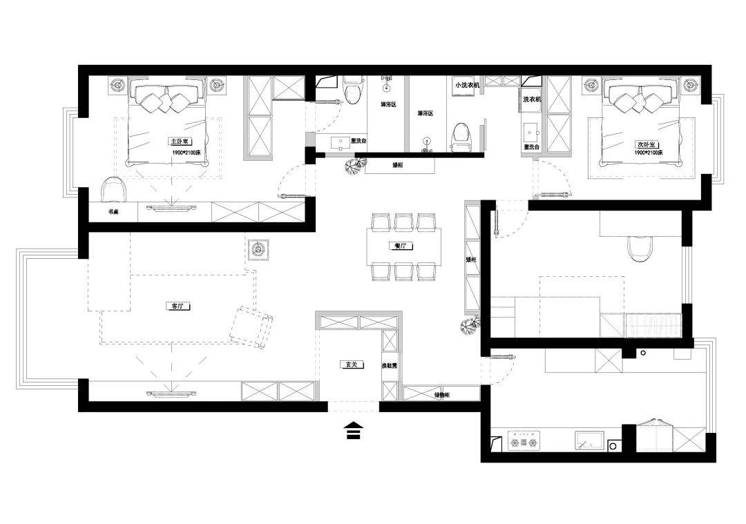
这是一套140㎡的三居室,整体以简约自然的原木风格为主调,在灰色调的空间里,营造出舒适清闲的惬意氛围,这样的氛围也正是年轻人所热衷的舒适生活空间感。
首先,我们进门后,一眼便看到的就是玄关,灰色仿古砖被铺在地面,洁白的收纳柜挂在正前方墙上,右侧同样为白色的鞋柜底部还保留了两层鞋架,方便日常用鞋摆放。
换鞋凳后方装了一个室内窗,让生活阳台的光线可以透过厨房进入到玄关,使得整体空间更加明亮舒适,并且这玄关原木风和白色的碰撞,让人一进门便轻松起来。
整个客厅简约大方,东西摆放不多,简单的沙发,茶几,绿植便组成了整个客厅的格局。
客厅电视墙以木质定制柜体+灰色大理石墙面背景,在自然风中混入了一点点复古元素,淳朴大气。电视墙左侧的木质柜体中嵌入深色的开放格架,呼应了右边的定制柜与大理石的风格
灰色布艺沙发,加上一旁的大盆栽再加上沙发墙挂上挂着简约风的装饰画,呈现出年轻时尚活泼的气息。顶上的导轨灯与一旁的臂杆灯,也为客厅提供了舒适实用的照明。
我们可以看到,餐厅的顶部又不美观的横梁,所以设计师选择用木质的假梁来装饰隐藏,这种吊顶方法,大家可以学习起来,这样既美化了餐厅顶部,又融入了整体。同时,餐厅墙面用大理石镶嵌,放上一张简约画,与客厅做出了呼应,实则精妙。
另一侧的过道上是装了个白色的收纳柜,简洁优雅的搭配让家更加温馨气质。
厨房铺上了大块的六边形地板,生活阳台直接打通成为厨房的一部分,巨大的落地窗给足了厨房光线,整体空间显得明亮优雅大方。
卧室床头墙以原木为背景,再用颜色稍深的木质床与床头柜突出层次的丰富。巨大的落地窗将室内采光做到了极致,搭配暖灰色床单,整体简单素雅,而床头两端的吊灯光线温和不刺眼。在晚上有看书习惯的女主人尽享惬意。
卫生间以不同纹理的六边砖拼接地面以达到空间层次感,搭配木质洗手盆柜与侧边白色的收纳柜,洗衣机嵌入到洗手盆旁边的台面下,小小的空间也充满文艺自然的氛围感。
淋浴区是复古调的灰色砖墙面,让空间还带着一丝丝的怀旧质感。
这样的装修风格,需要房子主人极具想象的思考和设计师超强的专业知识和审美共同搭配才能打造出来的。拥抱自然,回归质朴,本就是大多数人所向往的,只有当人们真正置身在自然中的时候,才能体会到广袤天地带给你的无限遐想,体会到天地给予你的爱与拥抱。我们需要慢下来,感受自然,呼吸自然。
图片如有侵权,删
想了解更多精彩内容,请关注@FUN姐生活家
版权声明:我们致力于保护作者版权,注重分享,被刊用文章【装修案例分享(在克制中寻平衡)】因无法核实真实出处,未能及时与作者取得联系,或有版权异议的,请联系管理员,我们会立即处理! 部分文章是来自自研大数据AI进行生成,内容摘自(百度百科,百度知道,头条百科,中国民法典,刑法,牛津词典,新华词典,汉语词典,国家院校,科普平台)等数据,内容仅供学习参考,不准确地方联系删除处理!;
工作时间:8:00-18:00
客服电话
电子邮件
beimuxi@protonmail.com
扫码二维码
获取最新动态
