不少人对家的想法就是“简单大气”。尤其是很多年轻的业主,只能说出自己想要的感觉,但却对自己真正要的风格很难表达清楚。但室内设计的最大魅力是挖掘出房屋的价值,将其改造成适合不同人群居住的理想型住宅。在我眼里,一套优秀的装修案例不在于装修档次的攀比,而是可以解决掉房屋本身的缺陷,做到“化腐朽为神奇”。
客餐厅
好比今天带领大家走进这套上海小夫妻婚房便是如此,设计师在全屋都是混凝土哪里都动不了情况下,将户型的问题位置进行优化。采用卡座+榻榻米+隐蔽式储物间组合形式,增加更多的收纳空间。把空间利用到极致,处处都值得学习,我们一起进屋看看吧!
这是一套140㎡的三居室,纵观全局,空间分布很完美,不存在浪费的面积,与屋主的诉求完美匹配。女主特别在意是全屋的储物空间,希望给将来宝宝的东西留有充足的地方。
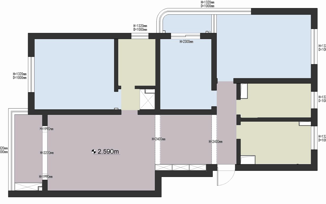
原始户型图
户型存在的问题有以下几点:
1、没有玄关区域,也就没有地方可以换鞋,所以女主特别想要功能强大的鞋柜;
2、右侧厨房门洞小,公共走廊过于狭长,导致厨房进光不足,显得空间很压抑;
3、屋主希望保留房间和两个卫生间,在不改变结构墙下,增加更多的储物空间。
平面设计图
结合屋主的诉求和生活方式,针对户型本身的缺点位置进行优化,在不动任何承重墙下,做了如下改造:
①餐厅通过“卡座+两边储物柜”组合设计,把餐厅中心向客厅移动825公分,给玄关增加一个鞋柜同时,也给餐厅增加一个餐边柜;
②餐厅延长后和客厅形成的空间,做一个隐蔽式储物间,可以存放很多杂物;
③两个卫生间根据功能不同,主卫放置女主人喜欢的浴缸,次卫做成淋浴房;
④将北阳台纳入到书房,做成榻榻米增加储物空间;
⑤厨房拆掉墙体做玻璃隔断,增加餐厅区域的采光。
玄关
入户大门处,左侧拆掉墙体做玻璃隔断的明厨房,光线可以延伸至餐厅,让门厅和餐厅变得宽敞明亮。同时餐厅靠门一侧打造到顶的鞋柜,虽然看似没有明显区域划分,但该有的收纳保证了门厅处的整洁。
餐厅
餐厅是以卡座+双储物柜组合形式,拉长了餐厅面宽,同时中心向内移,保证了足够宽敞的过道。白色与原木色搭配,极简式设计,完全符合年轻人审美。
卡座兼顾储物柜
餐厅的卡座设计,实用又不失高级感,靠墙形成类似背景墙效果,节省了空间,也增加更多的储物空间。两侧收纳柜,木色在里,白色在外,营造出一种视觉的扩张力,凸显出餐厅的社交功能重要性。
极简吊灯
餐厅的吊灯弧面造型设计,流畅的线条极具现代感,提升了档次,尤其是这种暖光,很适合餐厅的环境,避免了眼睛直射灯光问题。想象一下,用餐时,灯光照射下来,营造出的温馨氛围,是不是很有情调,连餐厅灰色背景墙都显得更加高级深邃。
隐蔽式储物间
餐厅的边柜延伸至客厅当中,形成了一个深度1.5米、宽度0.8米的隐蔽式储物空间,可以容纳更大的清洁空间以及宝宝的婴儿车。虽然看似损失一点面积,但丝毫不影响背景墙和沙发的比例。橙色皮质沙发和木饰面柜门相呼应,而白色柜体响应着装饰画,处处都是精心安排
客厅
客厅的沙发背景墙是深蓝色,营造出纯净、静谧之美的画面。这副高1.8米,宽1.2米的装饰画成为空间点睛之笔,好像给墙开了一扇窗。灵动又充满艺术气息,而且不会破坏整体感。
电视背景墙
客餐厅的全貌,电视机白色背景墙过渡到餐厅,变成灰色的黑板漆,形成一个视觉划分效果。胡桃木的电视柜、茶几与餐桌相呼应,进一步提升空间的档次。同时也与冷色达成冷暖的平衡。
(此处已添加小程序,请到今日头条客户端查看)U型橱柜
过道另一边是厨房,U型橱柜设计,增加操作台的使用面积。狭小的一面可以放置榨汁机、咖啡机和烧水壶等。最为实用的便是地面的灰色瓷砖,耐脏好打理,与木色橱柜门搭配,显得非常高级。
书房
书桌+榻榻米+储物柜
餐厅的背面是书房,里面是常规的榻榻米+衣柜+书桌组合,延续了整体的设计风格,开放式展示架放满了女主喜欢的盲盒。值得注意是衣柜门抬高10公分设计,避免榻榻米上放过厚的软垫和被褥产生打不开问题。
主卧
主卧
主卧是业主想要的简单大气,深蓝色背景墙与橙色窗帘搭配,保证了色调的统一,体现出“简约不简单”的设计理念。床头两侧是女主最爱的线条吊灯和胡桃木的床头柜,丝毫感受不到累赘,尽显高级。
次卧
次卧的更加简单,蓝色的窗帘表达想要的存在感,而胡桃木的床和床头柜马不停蹄的跟随,用行动表达它们的重要地位。
主卧过道
左边是卫生间门,右侧是主卧的门,中间这块做嵌入式收纳柜,兼顾卫生间和主卧的收纳。用来存放一些囤积的物品,比如毛巾、浴巾都很实用,储物空间没人嫌弃过多。
主卫
主卫是整体采用白色瓷砖,提升空间明亮度,局部搭配黑色与地面上几何图案瓷砖,丰富视觉层次,营造一个高级感十足的卫浴空间。
次卫
次卫
公共卫生间的马赛克铺贴费工又费力,但装修完的效果非常的惊艳,而蓝色系为主的空间格调符合整体的设计风格。
版权声明:我们致力于保护作者版权,注重分享,被刊用文章【户型改造案例(她家140)】因无法核实真实出处,未能及时与作者取得联系,或有版权异议的,请联系管理员,我们会立即处理! 部分文章是来自自研大数据AI进行生成,内容摘自(百度百科,百度知道,头条百科,中国民法典,刑法,牛津词典,新华词典,汉语词典,国家院校,科普平台)等数据,内容仅供学习参考,不准确地方联系删除处理!;
工作时间:8:00-18:00
客服电话
电子邮件
beimuxi@protonmail.com
扫码二维码
获取最新动态
