这是一套厦门的房子,原户型60㎡两室一厅一厨一卫。业主是一对年轻夫妇。虽然户型不大,但业主对新家的期望很高。既要在现有空间的基础上实现三室两厅两卫的功能,又要保持一定的空间感,希望空间没有拥挤感。所以在空间布局上,也做了比较大的结构调整。
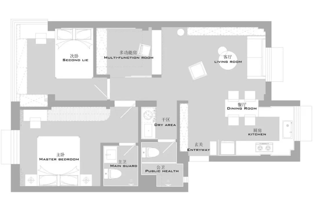
平面图
结合业主夫妻的需求,空间布局改造如下
厨房采用开放式设计,与餐厅和客厅形成一体的空间结构。卫生间延伸到客厅,可以将干区容纳下洗衣机,解决家庭的收纳需求。重新调整主卧的入口方向,规划一个主卫生间,实现双卫生间的功能。将南阳台纳入次卧,分成两部分,规划一个多功能房间。空间结构改造时,入口处也有独立玄关。地面铺设浅色水磨石地砖,延伸至厨房,既与室内有明显的空间划分,又保证了入口区域的整洁。侧面利用卫生间的面积设计了一个全面储物柜,保证了日常的收纳需求。
对于小户型来说,最重要的是合理释放空间。
所以,开放式的厨房,不仅让整个空间融为一体,还延伸了一个用餐区。同时,橱柜的面积也有所扩大。在配色上,选择了白色的柜门,无拉手的按压式设计也让空间变得整洁,减少了杂乱。
餐厅看客厅的视角,餐厅用鱼骨拼铺木地板,既提高了空间的温度,又突出了一抹节奏感。吧台形式的餐桌设计也有一定的休闲性,使空间具有互动性。
沙发侧面设计了整面墙的储物柜,储物柜以悬挂的方式安装,将隐藏与显露完美结合,方便扫地机器人清理卫生。在家具配置上,在保证使用舒适度的前提下,刻意选择小体量的蓝色直排沙发,给空间带来了一丝俏皮。
放弃传统的电视墙设计,将投影幕隐藏在顶部,既避免了复杂,又保留了视听功能。隔墙上部是玻璃,隔墙下部是开放式书架(透光又实用)。即使后期有孩子,也可以方便存放,为亲子区的功能性打下基础。
利用次卧的空间规划出来的功能房。虽然内部缺乏采光,但在两侧玻璃隔断的情况下,也算是打破了空间边界,创造了一种自由多变的空间结构。放下窗帘,保证内部有足够的私密性。
目前房间的功能是以书房的功能为主,但是隐藏式折叠床的配置也有客房的功能。
来到主卧,空间以干净的白色调为主,既扩大了空间,又突出了明亮窗户的简约之美,从而使睡眠的氛围更加安静和放松。浅灰色的窗帘,以及藤条和黑木元素的运用,也呈现出温柔的基调。
由于主卧规划了卫生间,衣柜设计在电视墙处,旁边增加了梳妆台功能,既实用又有超强收纳能力。
南阳台被纳入室内后,巧妙地弥补了空间被分割成两部分后面积不足的问题。整体基调延续了主卧的处理,简单却又清新简约。靠窗设计的书桌,内置衣柜,充分保证收纳和学习需求。
卫生间的设计很实用。整个卫生间扩大到客厅后,不仅实现了干湿分离,还容纳了干区的洗衣机功能。毕竟对于小户型来说,独立阳台的存在本身就很豪华,配置洗烘一体机解决日常生活需求,可以最大限度的利用阳台面积。
本次的家访到此结束。还想看更多,给我点个关注!如果你也想要这样一个温暖的家,点击下面蓝字报名。
▼▼▼
全国500位业主_申请免费设计名额
-END-
免责声明:文章部分文字、图片、视频等内容包括但不限于以上所提及来源于网络,如有侵权,请联系删除,版权归原作者所有。
往期文章推荐
89㎡治愈系日式原木风,轻生活空间,处处充满生活的仪式感
93㎡日式原木风私宅,一入户清新扑面而来,自然而又灵性
夏日悠悠日式风,60㎡原木温情,简单却又精致的格调家
发现一位女主的小家,大白墙搭配原木风好治愈,让人超羡慕
版权声明:我们致力于保护作者版权,注重分享,被刊用文章【三室两厅两卫装修案例(60)】因无法核实真实出处,未能及时与作者取得联系,或有版权异议的,请联系管理员,我们会立即处理! 部分文章是来自自研大数据AI进行生成,内容摘自(百度百科,百度知道,头条百科,中国民法典,刑法,牛津词典,新华词典,汉语词典,国家院校,科普平台)等数据,内容仅供学习参考,不准确地方联系删除处理!;
工作时间:8:00-18:00
客服电话
电子邮件
beimuxi@protonmail.com
扫码二维码
获取最新动态
