大家好,我是这篇案例的设计师朗观设计的吴磊,也是这篇文章的作者。今天给大家带来的这套作品是我去年完成的一套复式结构的住宅,风格定位为简约美式。业主是四口之家,男女主人大约在35岁左右,有一对5岁左右的双胞胎女儿,平时老人偶尔过来住住。别看这套房子实际使用面积有160多平,房屋的功能设计看起来并不是很重要,其实不然。我对于家的功能性设计理解,其中有一条是“小房子要考虑功能,大房子也一样要考虑功能设计”。
想想这个家,平时4个人,衣物、玩具、书籍,有两个娃的父母自行脑补,还有偶尔来看看孩子的父母,6个人住160平的房子,其实显得也不怎么大了。其次,业主夫妻俩还希望两个小朋友能有足够的活动空间,所以这套房子在风格之前,我更注重功能设计。
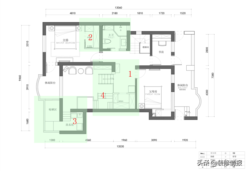
由于这是一套老房子翻新案子,当时去测量的时候第一个感觉房子的绝对面积还是可以的,一家四口,老人偶尔住住,房间是足够了。但是原来的房子,很多地方都没有利用起来,存在面积浪费的问题。例如下图中“1”进门右手边空旷的区域,和“2”厨房和餐厅之间的一块地方。
采光方面由于是顶楼的复式,所以楼上楼下还是比较明亮的,但是上家装修地板的颜色过深(接近黑色)客厅和餐厅过渡的位置还是会显得暗了一点。下图是我在量房时拍摄的一楼客餐厅照片,看的出来采光不是很好。而楼上,楼下都是南北通的结构,通风非常棒。
这里我想讲讲我自己的量房经验,不少年轻设计师量房时,只是测量房屋的尺寸,而我在测量时,习惯性地先对房屋的状态有一个基本的判断,而且会有一个先后顺序,这里我给大家列出了一个优先级,大家可以参考一下:
“满足居住 —— 空间尺度 ——采光 ——动线合理性 ——通风(完全可以实现机械通风换气,所以排到后面)”
上面这些房屋信息,在结合业主的需求,最终都会在设计方案当中呈现出来。
在讲具体设计方案时,先要讲讲业主的需求。其实,这是所有设计师做设计的基础前提,“一个不愿意聆听业主需求的设计师,绝对做不好设计”。设计师只有对业主家的情况越了解,越是能做出适合的方案。前期只需要提要求就可以了,具体怎么调整就交给设计师就可以了。
▲以上是业主夫妻俩装修前提交给我的一些基本需求
【一楼设计展现】
▲一楼原始房型图
一楼房型缺点:
1、门厅空间浪费,缺乏功能性,并且没有玄关
2、只有一个卫生间,不符合客户的要求(客户希望改成两个卫生间,其中有一个卫生间专门给两个女儿用)
3、厨房和餐厅之间的位置比较浪费
4、现在客厅挑空处做了两个洞导致一楼客厅的顶很难看,而且不能有效起到保温隔热的效果。
一楼房型优点:
采光好,南北通透,并且每个区域的面积也都够用,一楼客厅的层高也比较高。
▲改造后的一楼房型图
我的设计构思:
1、进门右手边增加储物空间,并且细化为两部分一面对着外面,可以放随手的钥匙以及包,冬天回来还可以挂两件外套。另外一部分处理成独立的储物间,收纳一楼的大件杂物,行李箱和小朋友的玩具以及清洁用品等等。(鞋柜在大门口还有个小门厅可以解决,贵重物品和衣服需要放到里面)
2、中西厨和餐厅的布局,原有厨房门口比较鸡肋的区域设计成西厨和L型吧台,增加互通性的同时也提高了厨房的储物空间和利用率,这样业主可以把不产生油烟的小家电放到外面来,使用非常方便。
3、将原有宽大的卫生间一分为二,一部分套到女儿房作为专属卫生间,只保留坐便器和面盆功能,另外一部分作为公用卫生间保留淋浴功能并且做了干湿分离,这样就大大提高了一楼卫生间的实用性,这里还有个小彩蛋,干区墙面的背面对着大门设计成玄关区域。这个区域的改造非常巧妙,当时客户看了后也非常喜欢。
▲门厅前后对比图。增加了右侧的储物空间,增设了玄关的位置,其实玄关对于每个家庭还是比较重要的,一方面要满足功能,另外一方面往往是回见第一眼看到的地方,漂亮是必须的。
▲从玄关处看向入户门的样子
▲ 客厅利用了原有层高比较高的优势,做了一个挑高吊顶的设计,这样配合着吊灯和灯槽效果会更好,并且在软装上加以提亮,整体营造大气舒适的氛围。
▲ 餐厅和厨房区域改造完后的样子。原有厨房和北阳台打通作为中式操作区,半开放式,油烟大的工作可以把移门关起来,原有走廊的位置改造成西厨+吧台的位置,既很好的利用了空间,又加强了整个家庭的沟通感,餐厅设置了餐边柜和电视机,进一步增加功能和收纳空间。
▲小孩房的设计我的个人意见是硬装不需要太花哨,颜色也不要多,因为小孩房的家具往往会做的颜色很亮,硬装设计的时候要给软装留有余地,要不然整体出来会很乱。
▲左侧是小孩房隔出来的卫生间,注意马桶是用了后排马桶直接进主管道,这是最传统的改造方法,但是施工的时候要预先定好马桶,并且市面上后排马桶选择余地比较少了,还是建议上壁挂式水箱。右侧是公共卫生间的湿区,外面还有一个干区。
一楼最大的改动是把一个卫生间成两个,我们都知道,一个卫生间只有一个排污管道,那么怎么样才能实现两个坐便器同是存在而且以后不能堵,这里有一个原则就是不能共用排污管,一个马桶还放在原位置用原来的,另外一个马桶用墙排水箱或者后排马桶直接接到总的排污管,这样互相不干扰,就不会堵了。这里给大家举个例子:
▲上图是原始图和改造后的平面图,原有马桶位置不动,新增马桶做墙排水箱接到主管道。
▲壁挂式马桶水箱施工实景图,注意排污管是直接接到主管道的,非常顺畅。
一卫改两卫对于三室一卫,或者两室一卫,并且三代同堂居住人口比较多的情况下,改造完成后简直大大提高生活质量,特别外面的卫生间在做成干湿分离的话,那两个卫生间可以同时满足三个人洗脸刷牙用卫生间,妈妈再也不用担心早上卫生间不够用了。如下图:
另外一点就是对于空间比较紧张的卫生间来说,一卫改两卫还可能存在一个门的问题,里面的空间比较小传统的开门就会容易碰到坐便器,这里再给大家一个门的解决方案。看下图,左侧外挂的移门大建应该看到的比较多了,注意右侧的内开折门,非常好用,市场上大建木门,日门建材都有这样的门可以定制,价格也不算很贵。
以上关于一卫改两卫的施工细节要点和门的解决方案都有了,希望对大家有所帮助。
▲一楼老人房改造后的实景图
【二楼设计展现】
▲二楼原始房型图
二楼房型缺点:
1、起居室平台利用的不好,原有两个镂空的位置需要重新搭建
2、北卧室开门方向不合理,动线太长
3、主卧没有衣帽间,储物空间不够
4、洗衣房动线不合理,需要经过主卧室
二楼房型优点:
空间足够大,起居室层高比较高,采光也非常充足,南阳台面积也很大
▲改造后的二楼房型图
我的设计构思:
1、北卧的门开到西侧,这样东侧区域可以全部利用起来
2、主卧开间有4.8米,增设衣帽间
3、起居室往洗衣房方向开门洞这样在公共区域就可以到洗衣房拿衣服,并且南阳台分为晾晒区和休闲区(男主人吸烟区)
4、最重要的一点调整是利用原有被浪费的走道的位置,以及错层的起居室为双胞胎女儿搭建了两个活动空间。虽然这两个“小城堡”在施工中面临各种困难,但是好在最终它还是完美的呈现出来了,既有储物空间的功能,又是一个儿童游乐场。并且我们控制了城堡的体量,起居室还预留了家长看护的空间。
▲二楼起居室错层的立面设计图
其实对于二楼的空间来看,卧室衣帽间和书房都非常好做,但是这套房子我们实在是太想给双胞胎姐妹一个惊喜了,一楼已经解决了他们的居住问题,二楼我们想给他一个游乐区。但实际面临的问题还是比较复杂,因为二楼本身还是一个错层的空间。最终经过几轮的讨论定下来利用错层空间下面比较低的部分左侧储物间,上面的部分和右边的城堡呼应变成两个错落有致的活动空间。这样既兼顾了游乐性又满足了实用性,而且以后孩子大了,右侧城堡也非常方便的调整成储物空间。
二楼还有一个设计亮点是洗衣房的规划,原本洗衣房在角落里,而且动线不合理只能经过主卧绕过去,后来在拆除的过程中我们发现二楼起居室和洗衣房之间的隔墙不是承重墙,所以我们果断地在那开了一个门洞,这样可以保证卧室的隐私性,动线也大大缩短了,所以方案实际上是一个不断进化和演变的过程,每一个细节的的改变和调整都会给业主带来更便利的生活方式。
其实原先起居室的位置,业主也不知道怎么利用,如果做成起居室和楼下有点重复,可能是作为男性设计师的我对结构有着天生的热爱,在看看他们家可爱的双胞胎女儿,那么我们干脆在这个区域搭建两个城堡吧,涂上不同的颜色,门也设计成拱形,既有储物空间,又能满足孩子的活动空间。
其实另外一个城堡下面以后如果还不不用了还可以非常方便的继续改造成储物间,加个帘子就可以了,这里真的要非常感谢公司的施工团队和木工师傅,两个城堡是我们现场设计,全部由木工师傅制作而成,真的要给他们一个大大的赞。
▲大家请注意这张图从拱形门洞看进去比较低的位置实际是有个小门的,那是楼梯下面的区域,也被充分利用起来了。两个城堡的内部墙面刷了黑板漆,不单单是玩耍,也是她们尽情施展绘画天赋的空间。
▲错层的下面结构,我们做了一间储藏室,因为对于女主人来说只有卧室里面的一个衣帽间是不够的,外面还有一个存放换季衣物和杂物的地方,这样我们就实现了一楼和二楼各有一个储物间,来应付两个娃成长过程会进到家里的各种物品,对于我来说,设计师应该不光能满足业主目前的居住需求,还要根据家庭成员、喜好、业主职业等,规划起码未来5到8年的变化。
▲主卧开辟了衣帽间的区域,作为当季衣物的收纳空间,吊顶采用了无主灯的设计,使得晚上灯光会更加柔和,主卫改完门洞位置后布局更加合理,并且主卫也有相对的储物空间。
▲晾晒区是封闭的,这样防止雨水的进入,但是休闲阳台的部分是开放的,顶上做了遮阳帘,由于是顶层的关系,视野非常好,有天、有地、有空气。
1、新买的二手房原来的装修需要全部拆除吗?
我们知道现在市面上的毛坯新房已经越来越少了,而且以后政府会希望地产商更多的建造精装修的房子。在我们实际的工作中也是一样,我们现在市区百分之九十的客户订单都是二手房订单,那么二手房势必会面临一个问题就是上家装修是否保留的问题,拆还是不拆?
这个我们会根据现场的情况做一个判断,如果之前的装修状况已经很差,或者业主对新房的格局非常不满意,需要大改的,那么我们是建议最好全部拆除。
如果之前的情况还不错,业主也对原户型很满意,只需要局部装修就可以了,那么是可以的,局部装修的话我们其实比较建议动的越少越好。
2、实木地板要保留吗?
在我们实际的工作经验中,其实大部分客户想保留的是上家留下的实木地板,这里我可以帮大家分析一下,实木地板保留的优缺点:
1)实木地板保留意味着地面没办法走线管,如果电线要全部重新更换的话,全部要从顶上或者墙上绕过去,这样一方面会增加成本,更重要的是因为多了很多转弯的地方,以后这些线几乎也是抽不动的,万一碰到检修的情况就非常麻烦。
2)实木地板保留意味着地暖也不好做,用过地暖的同学应该都知道,冬天的体验还是非常舒适的。
3)施工过程中要做好保护,特别是打孔的时候有比较多的水会流下来,要注意用一个桶接好,并且地面要及时清理干净。
4)最终完成后一般实木地板还要打磨和重新做漆,要不然地面真个看起来就会显得很旧。
所以在大部分情况下,我们都不建议保留原地板,一方面施工过程会有很多意外的风险,而且多开销的费用已经可以买到品质不错的复合地板了,另外一方面现在复合地板的工艺水平和环保等级也非常优秀,并且有着比实木地板更好看的纹路和更好的耐用性。所以这个要平衡好。
3、设计方案看的太多,眼睛都花了,如何判断一个方案是不是好方案?
在装修房子的时候客户往往会同时找几家公司去比较一下,每个设计公司为了突出自己专业优势,往往每个客户家里都会出三个方案,如果客户找四家的话,那么意味着要看12套方案,对于非专业的客户来说,十几套方案看下来应该是头晕眼花了,而且每个设计师都说自己的方案好,于是很多客户就陷入深深的纠结中......的确太为难客户了......我们也见过太多客户因为一时冲动,定了一个看起来很炫酷的方案,结果现场做了一半发生各种问题,无法继续 ,损失惨重。
那么客户怎么在这么多方案当中选出一个最适合自己的方案呢,或者说怎么样的一个方案才是好方案呢?
一般有经验的设计师其实也会建立自己的原则,做出来的方案符合自己的标准才会拿出来给客户去看。那么我就和大家分享一下我们团队是如何评判一个方案的好坏的:
1)作为住宅来说,最基本的功能是住,首先这套房子要满足居住功能,打个比方说,两室的房子要住三代同堂五口人,那么满足每个人的居住空间是第一要务。
2)居住功能满足了,要尽可能的住的更加舒适,舒适度取决于每个区域的;空间尺度、采光、通风、动线合理性 。
空间尺度:每个区域大小要适合,尽量平衡;
采光:不要有暗间,原有采光不好的区域要想办法解决;通风: 在有条件的情况下,尽量自然通风,需要的时候加装新风系统作为辅助;
动线合理性:尽量少做闭环设计,少绕路,每天都要绕十年就绕很多了。
3)储物空间
这个应该不用多说,对于一个家庭来说储物空间的最佳方案,应该是每个区域都有对应的收纳区。这样方便就近收纳,东西也不会乱。例如门厅有鞋帽柜,卧室有衣柜衣帽间,书房有书柜,卫生间有浴室柜,厨房有橱柜,除此之外,最好在公共区域还能有杂物间,放一些大件的物品,行李箱,杂物。这样的一个储物体系才算是完整的。关于展示柜的设计,有一个二八原则,就是开放柜不超过百分之20,其他设计成闭合柜。这样既满足美观和暂时要求,又非常实用。
4)细节和个性化需求
“魔鬼藏在细节中” 每个细小尺度的把握,老人夜里起夜的感应灯,孩子房间家具的去锐化处理,插座的高度,全屋信号的覆盖,有经验的设计师会把这些细节在平面上做一个简单的体现和说明,让客户觉得这个不单单是一张图纸而是以后便利舒适的生活场景。
5)风水
避免简单常规的风水问题
编辑留言:大家好,我是编辑雄大,当我收到稿件看完设计师的稿件后,我几乎没地方可以修改了。从案例和文字看的出来朗观设计师吴磊是个十分有经验的设计师了,并且从他的行业经验角度,传授了以上五个维度来分析一个优秀的方案应该具备的基本的素质。这套位于上海160平的案例,半包费用在15.8万,主材加上家具,整体装修花费了43万,还是很具有性价比的。想找朗观设计做设计的,想和吴磊设计师交流的,欢迎私信编辑,拉你进入“朗观设计《装修情报》粉丝群”。装修中遇到什么问题,可以私信编辑聊一聊,或者点击文末的[了解更多]加入社群与@我的河畔小城@雄大评装修唠一唠。
版权声明:我们致力于保护作者版权,注重分享,被刊用文章【旧房改造案例(160)】因无法核实真实出处,未能及时与作者取得联系,或有版权异议的,请联系管理员,我们会立即处理! 部分文章是来自自研大数据AI进行生成,内容摘自(百度百科,百度知道,头条百科,中国民法典,刑法,牛津词典,新华词典,汉语词典,国家院校,科普平台)等数据,内容仅供学习参考,不准确地方联系删除处理!;
工作时间:8:00-18:00
客服电话
电子邮件
beimuxi@protonmail.com
扫码二维码
获取最新动态
