施工图的正规依本人看,应该具备这样几个要点:
1。CAD画图最基本要学会图层管理,长期发展要学会专业化的布局画法,以适应大型工装 的专业绘图要求。
作为小家装的CAD施工图来讲,模型空间画图是可以满足的,但在大型工装中,你必 须接触到一项更为发达的CAD技巧,即布局画图法,因为大型工装如果你不用布局画图法, 工作起来是很困难和麻烦的,如果是一套酒店十八层,每层用一张平面布置图作为基础图来 讲,以此衍生的图有吊顶图,墙体定位图,强电图,弱电图,消防系统图,空调系统图,水 路图,索引图起码加起来有七八张之多。如果这层的唯一平面布置图改了方案,即改了墙体 的话,所有的衍生图都要改,这工程量如果你不用布局画法而是在模型空间里改的话,估计 很容易出错,而且画起来相当的麻烦,当十几层的图量累加的时候,你会吃不消。而且又累 又容易出错。所以要想做大型工装必须学会布局画图法,而布局画图法的最根本最基础的技 术就是图层管理。有些人是喜欢0层画图改色,以为这样方便好设置打印,其实这就是很不 专业的表现了。
关于图层管理,其实说简单也简单,大家就记住一个要点,图层以图的类型为前缀 起名,分粗中细即可,比如:平面-粗线,平面-中实线,平面-细实线,平面-虚线, 平面-中心线,然后记住三色或者四色法。使整个图干净清爽,打印出来又有线型 粗细层次。
我这个还是现存的没有经过进一步改进的图层管理,但色号我就三色,7号白色粗线,155 号兰灰色中实线,8号灰色细线,其它的虚线类同用8号色,这样我一看颜色就知道是粗还 是中还是细,如果你新画一个图类,比如吊顶,你就以吊顶图为前缀自行地加粗中细图层, 即可,想要什么图层就加什么图层。这样的好处是灵活,便于布局画法的图层管理。布局画 法简单理解就是把要的图层在视口里打开,其它的统统关了。这样达到叠加底图到其它图类 的目的。
2。CAD图要打印好看其实就是粗中细的调控,你就记住:粗中细三个字,未来不管是公司就 职还是个人发展,这三字经足以证明你对CAD理解的专业。
一份施工图是否打印出来好看,就看线型的粗中细管理。还有色号的简洁实用化。我一般是 用三色或者四色法,即粗中细各一种色,然后再加一种虚线或者是中心线色.就这样,象七色 法的话太花了,而且没必要,一种细线有必要分成三四种红的黄的兰的绿的来设置吗?同样是 0.010粗细的线宽,为什么要四五种不同颜色呢?是为了在电脑上好看吗?我觉得没这个必要, 除非是象电路确实要区分一下.要用彩色画出来.打印也在黑白的基础上加一种彩色表现出 来.那倒是可以.
一张图打印出来,粗细有致,层次分明,看图层感觉很清楚,而且标注和文字大小是严格按 该张图的比例的2.5--3倍设置的。这就是专业。包括文本也是这样控制大小的,有些人的 图的文字是字如斗大或者字如蚁小,引出标注也是东一拉西一堆的。师傅看到细如蚊子般大 的字他怎么不会嘲笑我们呢?图画出画打印出画难道是为了拿到工地上当摆设?连最基本 的字体标注都看不清,你叫做师傅的怎么看?怎么施工?所以这是最基本的要求。
3。索引系统和施工图排图的编排合理
我曾经分析过很多大型公司的图纸,如香港战神,如果抛开那些名气类的影响,真正以认真 客观的角度去分析他们的图纸,就会发现其实大型公司有些地方还是存在一定的漏洞的。首 先它的立面图是不带平面的。就是一个立面图就纯粹只有一个立面在那里,没有配上相应的 摆好方向的一个平面截图,通常我们平时立面带一个平面这样画图是为了让图的三视完整, 三视包括平立侧(剖),也包括了这三视上的所有相关尺寸信息,一个图只有立面,没平面, 很简单,比如一个电视柜,你只有立面,你不画平面也不配侧剖的图,你怎么知道这个电视 柜做多深?深度方向的具体尺寸是多少?这是最基本的,很可惜依然很多大型公司忽视了这 点。以致于这种图纸可被师傅视为不完整的。很多地方要来问设计师,那设计师长此以往就 会造成施工图的缺失,因为他概念里觉得配个平面不重要。甚至很多立面就只有一个立面的 尺寸,连
相对于墙面的凹凸关系的高差也没有,这样叫师傅去猜,家装还好,施工图如果不是那么正 规作为结算依据和施工依据的话,还可以哄得过去,如果工装是要以图纸为结算依据的话, 就非得标注完整不可,牵涉到结算人员要根据你这图纸来做结算的,没相关尺寸,你叫他们 猜?不被老板骂死才怪!所以专业有缺失,自然施工图就不能算是好的。
再来讲讲索引系统,有些公司索引系统的概念不强,因此排图就出现很多问题,有重复编号 的,也有该要画的没画到。很简单的一个,比如一栋楼有三层,索引的图标中一个圆圈,上 面标图号,下面应该有个楼层号,没有,只是从一楼的01立面一路排到三楼的35立面,这 样很不好,这样非常容易搞乱,如果要按层来整理图纸,师傅还得认真看二楼是从0几立面 到0几立面的,而且象有些公司,它的索引编号很复杂,而且是双重标准,既有页号又有索 引号,很复杂,找起图来很麻烦。
我觉得应该以索引号为唯一编号,页码只是一个最后全部图纸画完,来做目录的编排时再来 排的,并不是作为找图的根据。平面生立面,立面再生大样详图。这样一级一级地排过去, 最后全部立面图按索引顺序排好图后,先布平面,然后在平面下面画出对应的立面线,然后 再一步步地完善,这样一个套房如果快的话一天就可以完成20张左右的立面,另外第二天 再画一个10-15张的大样详图,这样的话速度就快了。如果是以页码来编排,我还要想这一 页排什么内容,一个卫生间的四个立面怎么排,总之这样的以页码来排图的思路比较麻烦很 多。如果我排索引号,唯一的,这页是什么立面索引号我就在图号上标什么立面索引,等我 全部图纸按索引编号画完最后再排好目录标上页码。页码只是在目录上有效,找图按唯一索 引号找,这样就清楚多了。也快多了。
画过五套以上的家装全套施工图,及五套以上的工装施工图,就应该建立起相对比较专业的 施工图概念系统,也是我上面所说的这些。应该有专业的概念,排图的概念,图层管理的概 念,施工图要为施工服务的概念。还有施工图要表达出什么样的设计语言和意图的概念。至 于一些细节的东西并不妨碍整体的完整。你如果大局没把握好就讲太多细节,反而容易迷失, 所以任何设计都一样,大局在先,细节慢慢完善,第一套施工图不好,那总结之后在第二套 施工图中去改进。改进五点是五点,就这样慢慢积累到第五套以上,已经是全局完整专业了。这时候再来做施工图的深化细节学习。大局的东西在,这施工图的水平也就不会差到哪里去, 最起码七十分是有吧?
画施工图的细节其实是很多的,举个例子来说吧:引出标注,比如立面的图上要引出一条 线,然后再进行文字标注,有些人就用墙线的色来做引出标注的线色,这样一来打印出来 绝对是不好看的. 为什么?因为那线是跨图案的,是要从立面图上一条条跨过去的,全跟 墙线一样粗!就这样粗鲁地打断了人家看立面图线条的视线,十分的难看.所以这就是细 节,如果我们把这种引出标注的线改成250号,然后在色号里面设置成默认的,那这条线 是比填充线还细,带一点灰阶,这样看起来就舒服多了!!!不破坏原图线条的完整观看,
其实画施工图系统的完善要有一个过程的,就好比说做一件事情,你要抓住最基本的.以 我的看法,施工图要达到基本满足施工要求的程度需要经历过以下几个阶段循序渐进的 训练:
1.先学会画平面图系列,比如原结构图,平面,吊顶,水电图,砌墙图,地面铺理图等等.画 这些平面系统的图你要先知道它们究竟是做什么用,每一张图要表达什么样的信息,内 容.还有规范是什么.
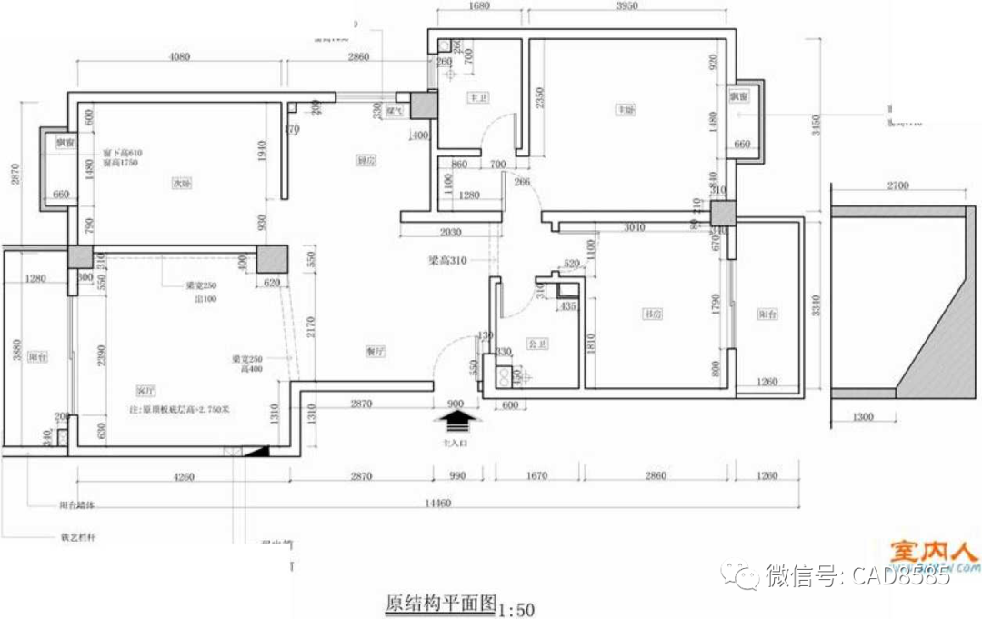
原结构图里包括了:室内的基本尺寸,每个柱角,梁的高度,层高,包括门洞尺寸,窗下高 窗高,排污口定位,包PVC下水管定位,强电箱弱电箱的位置,还有异形结构的定位,梁格 分布(利于楼梯的定位),坡屋顶的测量,这些信息都要有.
需要PPT原文档,及下面教程的同学,先点赞,然后点击我的头像,私信回复:资料,自动领取
版权声明:我们致力于保护作者版权,注重分享,被刊用文章【工作证明字体大小要求(怎么用CAD画施工图)】因无法核实真实出处,未能及时与作者取得联系,或有版权异议的,请联系管理员,我们会立即处理! 部分文章是来自自研大数据AI进行生成,内容摘自(百度百科,百度知道,头条百科,中国民法典,刑法,牛津词典,新华词典,汉语词典,国家院校,科普平台)等数据,内容仅供学习参考,不准确地方联系删除处理!;
工作时间:8:00-18:00
客服电话
电子邮件
beimuxi@protonmail.com
扫码二维码
获取最新动态
