更多室内设计学习文章,资料,教程,软件,插件,方案,施工工艺材料等可以关注私信小编,不懂的地方,欢迎大家留意交流
- 免费分享 -
以下案例为这套素材主要是——室内设计20套精品五星级知名酒店施工图资料
如果你喜欢请点赞转发让更多想成为室内设计师的新人助理设计师也能看到
谢谢!希望我们能走的更远
【福利在文章最后】 千万不要错过!!!
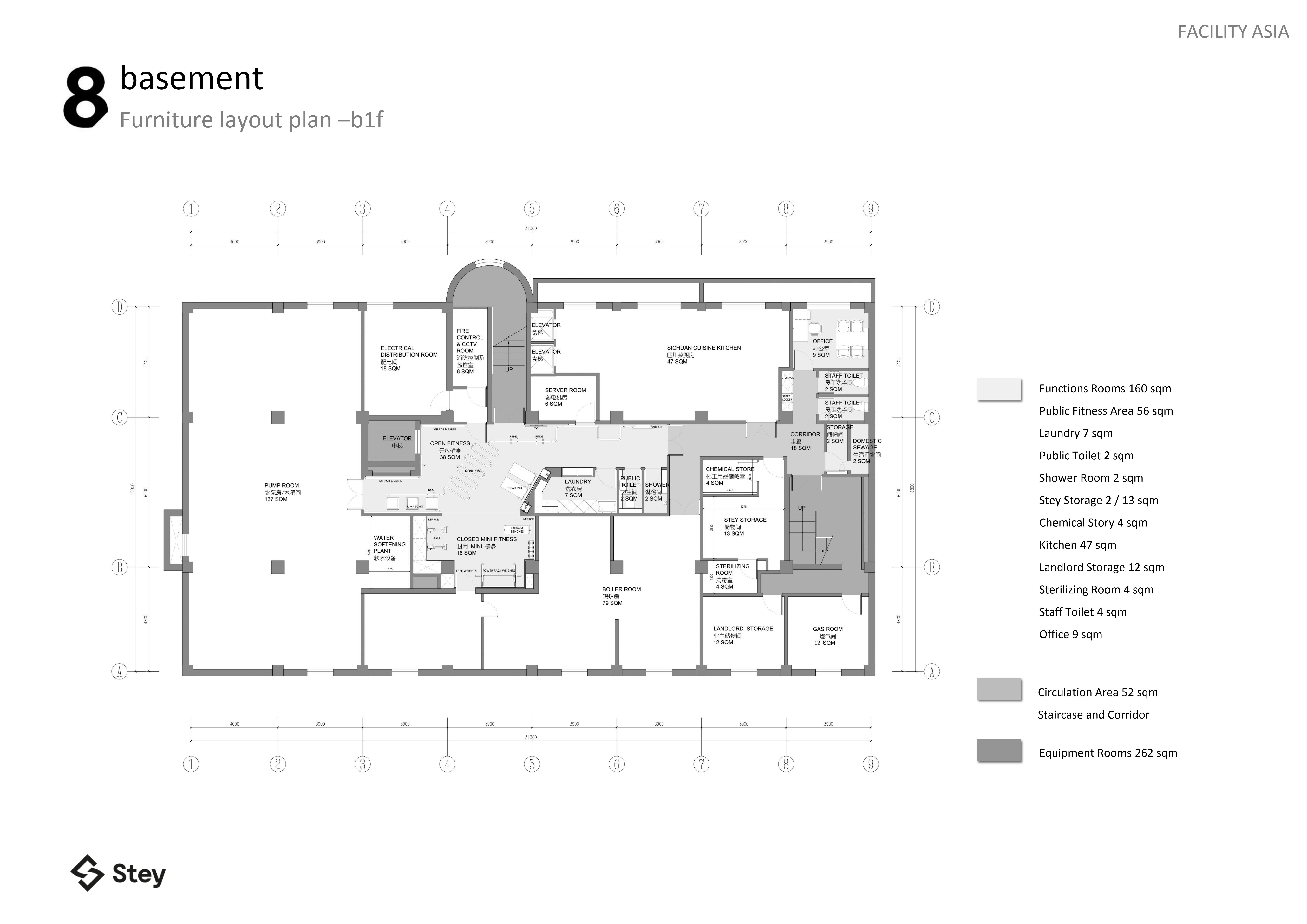
[北京]王府井Stey公寓式酒店丨效果图PPT设计方案全套施工图CAD机电物料摄影实景
平面布置图:
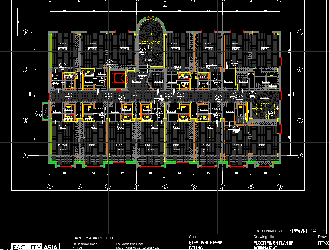
地面铺装图
版权声明:我们致力于保护作者版权,注重分享,被刊用文章【酒店案例分析ppt(室内设计)】因无法核实真实出处,未能及时与作者取得联系,或有版权异议的,请联系管理员,我们会立即处理! 部分文章是来自自研大数据AI进行生成,内容摘自(百度百科,百度知道,头条百科,中国民法典,刑法,牛津词典,新华词典,汉语词典,国家院校,科普平台)等数据,内容仅供学习参考,不准确地方联系删除处理!;
工作时间:8:00-18:00
客服电话
电子邮件
beimuxi@protonmail.com
扫码二维码
获取最新动态
