如果把设计师比喻成装修的总导演,那么一切看得见的形状、色彩、材质、以及看不见的隐蔽工程,都是其中至关重要的演员。评估这个“导演”的能力,最终还是要看对设计的把控与落地能力。
实景图VS效果图,就是买家秀与卖家秀?今天就跟小易一起来看看,这个直接从效果图走出来的家,究竟长啥样吧~
案例面积:168㎡
案例风格:简约风
所在城市:上海
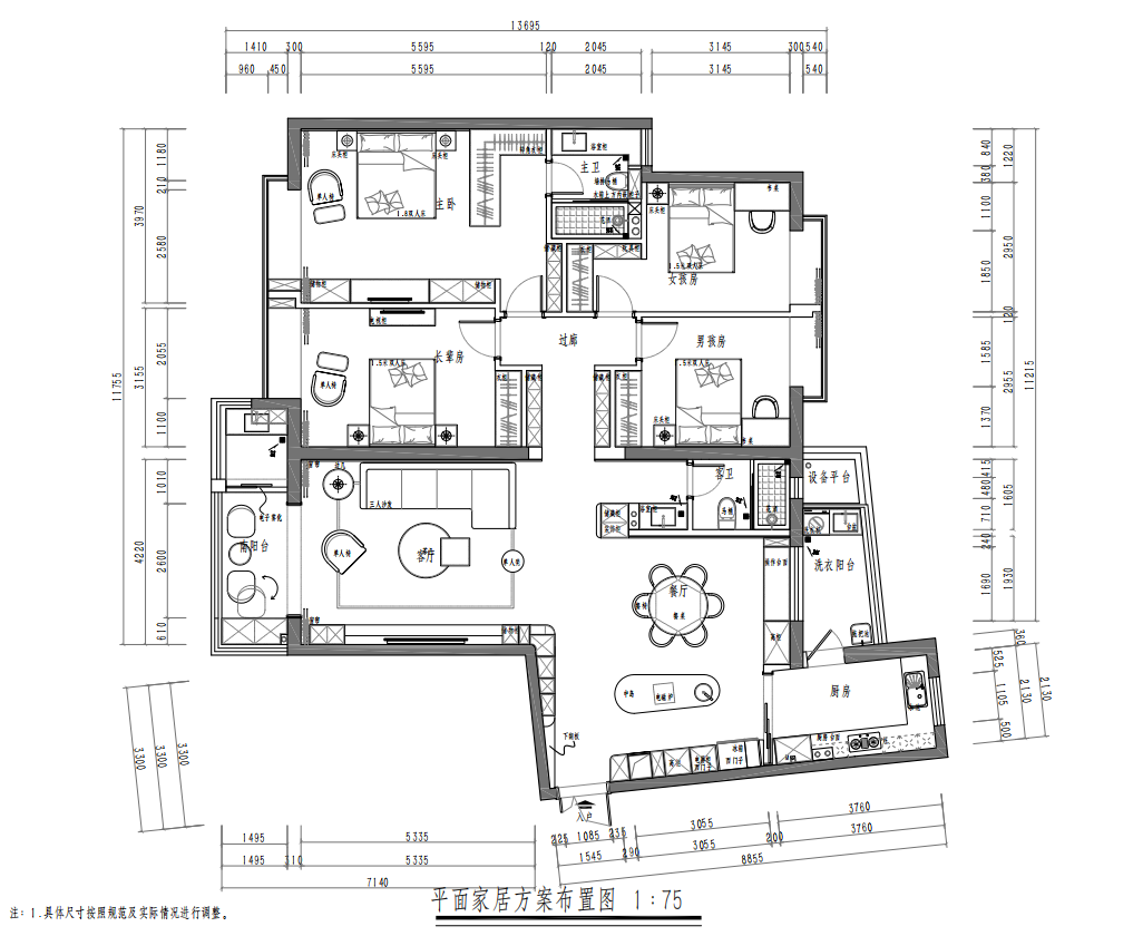
户型南北通透,动静分区明确,但存在一些墙体,妨碍动线,局部空间较为鸡肋,不能得到很好的利用。
为了盘活空间,我们将玄关与厨房的部分非承重墙拆除,为室内引来更多的自然光线;主卧套房借用了部分卫生间的面积,打造了一小块衣帽间;原始衣帽间的墙体拆除,并入长辈房,令老人居住更舒心。
原始户型有一道玄关墙,我们将其拆除,在墙面做了定制的玄关柜。由于入户处朝向有点倾斜,定制柜+下翻板的组合方式,既满足了日常进出的收纳需求,又提供了合适的装饰平台。
从玄关处摒弃风尘,不过数步便来到餐厅区域。大型圆桌搭配棕色短绒靠椅,给人极其温馨的视觉体验。
餐厅临窗处结合了户型特点,做了整面的餐边柜。常用的杯盘碗盏,还有小家电,都可以放置于此。
椭圆形中岛台拥有整洁干净的台面,再加上内嵌单槽的设计,一般的果蔬清洗、西厨烘焙都可以在这里完成。
厨房与餐厅用了一道推拉门隔开,闲置时拉开,需要时关上门,这里就变成独立的厨房。
L形操作台面顺应洗菜、切菜、烹饪这一系列的动线,为下厨之人提供极大便利。吊柜与地柜采用了暖灰色,耐看又耐脏。
客厅朝南,采光比较好。为维持空间的简约调性,客厅用色相对淡雅。采用无主灯设计,分散在四周的筒灯带来更加均匀的照明。
米色与咖色拼接的多人位珊瑚绒沙发与单人沙发、单人凳组合,充分满足一家三代的居住需求。底部统一采用了金属镶边,更显空间的清爽明亮。
电视墙整体也很干净利落,内嵌灯带的设计更显空间质感。沙发背景墙多了一点层次,石材+木格栅拼接,营造出室内的清雅与温暖。
主卧整体用色也比较柔和,除了纯净的白、温和的木色,再加上局部酷雅的黑,再无其他。
衣柜采用茶色玻璃门,既维持内部的干净明亮,又能方便检视衣物。床尾处的空间也不浪费,定制的收纳柜将观影与储物的功能集于一体,丰富了卧室的功能。
业主有一双儿女,需要各自独立的休息与学习空间。为此,朝北的两间次卧变成了两个孩子的居所。这间房采用了可爱的肉粉色,是为女儿专门准备的色彩。
在这里没用对称式的床头柜,临近飘窗处放了书桌+靠椅,顶部做了拱形开放格和封闭柜体,可以成为书籍和装饰物的存放区。
男孩房间格局与女儿房类似,地面采用人字拼,实木地板的触感温润细腻。书桌上方安装灯带,视觉上更显整洁。
保持一致的简约风格,灰白二色是最不容易出错的色彩,轻松塑造出空间的静谧与闲适。
长辈房间的氛围更加恬淡安静,为了适应老人的视力情况,卧室多了一些灯光装饰。圆形灯饰优雅大方,光线柔和不刺眼,尽可能为老人带来良好的居住体验。
这里是公有的卫生间区域,为提升空间的使用效率,方便多人共用,我们将洗手台外置出来,把干区与湿区做到了彻底的分离,日常清扫也更加方便。
版权声明:我们致力于保护作者版权,注重分享,被刊用文章【室内设计业主分析案例(效果图都是)】因无法核实真实出处,未能及时与作者取得联系,或有版权异议的,请联系管理员,我们会立即处理! 部分文章是来自自研大数据AI进行生成,内容摘自(百度百科,百度知道,头条百科,中国民法典,刑法,牛津词典,新华词典,汉语词典,国家院校,科普平台)等数据,内容仅供学习参考,不准确地方联系删除处理!;
工作时间:8:00-18:00
客服电话
电子邮件
beimuxi@protonmail.com
扫码二维码
获取最新动态
