免高支模的贝雷架转换平台施工技术
摘要:在中惠铂尔曼酒店工程商业楼建设中,采用贝雷架转换平台法进行扶梯洞口超30 m的高支模屋面施工。通过方案比选、科学计算、专家论证等多项手段,保证了此类型复杂高支模施工的简化与安全。
关键词:免高支模;贝雷架转换平台;方案比选;施工技术
1 工程概况
中惠铂尔曼酒店工程拟建1栋高层酒店及商业裙房。25层的高层酒店楼位于场地西北角,东南向布置8层裙房,局部9层。地下室3层,建筑面积约为63 786.40 m2。地上建筑面积123 251.79 m2。
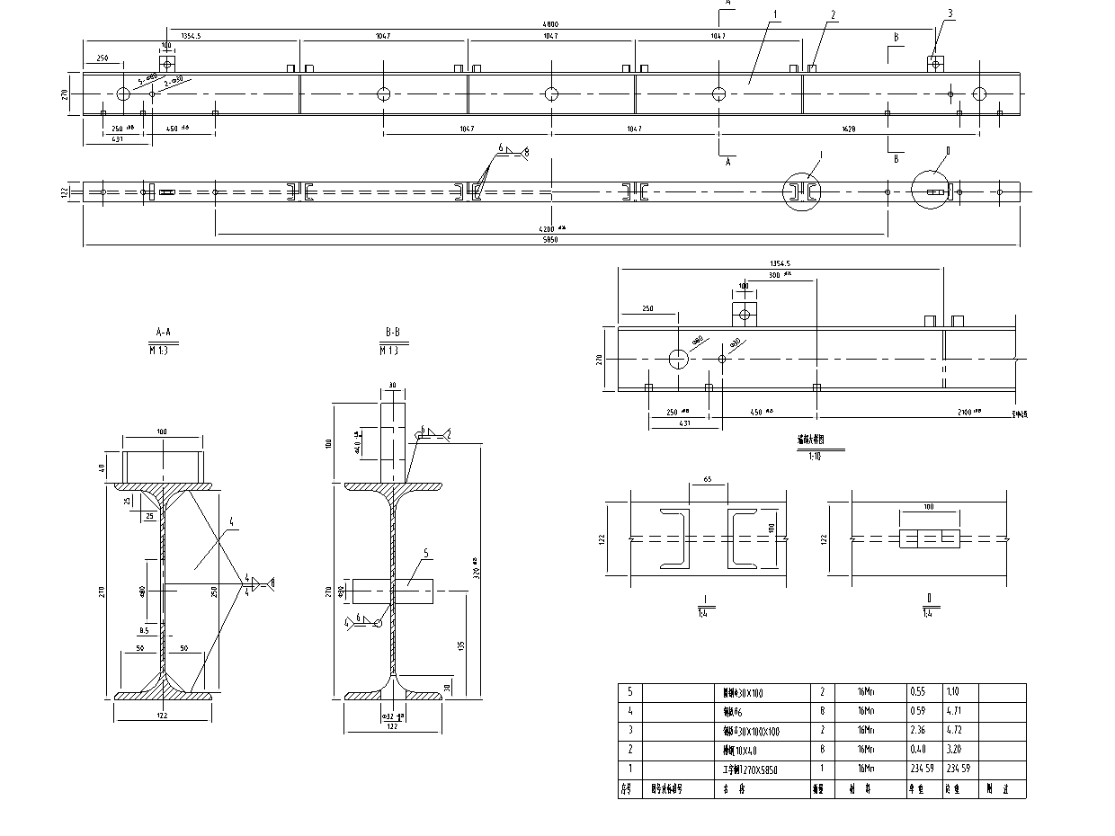
工程高支模部位在商业楼扶梯位置,共2个,一个在商业裙房北侧扶梯大支模区域18~22 轴交AA~W轴,一个在商业裙房南侧扶梯支模区域20~22轴交P ~ L 轴(图1、图2),如采用常规支模方案,则分别从地下1层楼面及顶板搭设支撑至7层屋面,支模高度分别为44.80 m和38.95 m。屋面的结构板厚为150 mm,扶梯洞口最大跨度9 m,长度27 m,又由于屋面为绿化屋面,有覆土荷载,框架梁为600 mm×1 200 mm、400 mm× 1 000 mm,尺寸较大。
2 方案比选
2.1 传统满堂架体系
2.1.1 安全系数
操作安全性差:操作人员坠落隐患大、周围安全围护
不到位、脚手架拆除危险性大。
2.1.2 支撑架垂直度
搭设高达40 m左右,垂直度控制难。
2.1.3 搭设效率
高40 m满堂脚手架,需满足高宽比,搭设速度极慢。
2.1.4 对后续工作面的影响
体系自重大,对本身结构需要加固处理,排架支撑等保留时间较长,影响后续安装工作。
2.2 贝雷架转换平台体系
2.2.1 安全系数
贝雷架体系搭设于施工层的下层操作楼面,再用槽钢
铺设于贝雷架上作为脚手架立杆立脚点,且在贝雷架底部满铺模板,达到硬隔离效果,安全性大大提高。
2.2.2 支撑架垂直度
贝雷架体系搭设于施工层下层操作楼面,仅一层的搭设高度,垂直度易控制。
2.2.3 搭设效率
根据现场的吊装条件,地面组装单元构件(2榀一个单元),贝雷架以拔杆或塔吊吊装到施工面下层楼面进行部分分段式拼装,工具化操作,功能保证,安装方便。
2.2.4 对后续工作面的影响
基本不影响后续施工,随装随拆。
3 总体施工方案
为避免传统搭设满堂支撑架作业方式的安全性低及成本高等不足,采取了搭设钢结构转换平台施工方案思路,考虑到贝雷架自身刚度强、可单元拼装组合、拆装灵活、材料可租赁、成本易控制等特点,综合分析后,采取了贝雷架转换平台的施工方法[1-2]。
A区扶梯洞口区域贝雷架单元构件不在塔吊覆盖范围,故采用贝雷架楼面拼装,平推移位的施工方法,而B区较小的洞口贝雷架单元构件在吊重范围,直接采取地面拼装后,塔吊吊装到位的施工方案(图3、图4)。立杆下东西方向铺设14#槽钢,其余空隙使用模板满铺做硬隔离,南北方向铺设贝雷架,两端固定于主梁上。
4 免高支模贝雷架转换平台特点
4.1 贝雷架转换平台的施工特点
现场贝雷架转换平台的吊装,相对于平台下方满堂支撑架的搭设及楼面加固,贝雷架平台构件采用模块化吊装更加便捷灵活。
将原需采用高支模的部位利用贝雷架转换平台,相比从底部开始搭设满堂支撑架,仅搭设1层高度,避免了危险
性较大的支模方式的实施,更加安全可靠,既节约了搭设工期,同时又节约了高支模搭设及底部楼面加固费用。钢结构平台采用贝雷片形式无须加工,市场租赁即可,成本上得到更好的控制。
A区屋面施工时,塔吊把单榀最小贝雷架吊至楼面上,在楼面洞口短边方向现场拼装整跨单元架体后,再由液压平移车把整跨单体运至规定放线处;B区跨度小,塔吊起吊整跨在地面组装好的单元架体至规定处,洞口满铺后形成一个整体平台后进行搭设支撑架等下一道工序。
贝雷架作为模板支撑体系的平台,较传统散拼钢结构转换层,其结构更加轻便,可单元片组装的特点更便于安拆,周转利用率更高。
4.2 贝雷架转换平台的结构特点
贝雷架转换平台将高支模简化施工,将超高复杂高支模的搭设简化搭设至1层高度,安全风险降低。
钢结构平台采用贝雷片形式,由于为桁架片形式,自身平面内抗弯、抗剪强度高、刚度高,相较于洞口较宽的工况,可满足不设支撑杆件或上拉杆件即能保证各项强度及变形指标的要求。
贝雷架转换平台主要考虑平面外稳定及排列方式,通过在每2榀单元之间加设水平系杆和斜撑形成一个单元构件,每个单元按照洞口尺寸跨度计算间距,根据楼层结构尺寸在楼面进行排列,通过贝雷架平台表面通长立杆底部槽钢的铺设形成整体作为转换平台[3-5]。
结合洞口跨度的尺寸,将最小单元为1.5 m×3.0 m的贝雷片有效组合,搁置在楼面洞口位置,并在转换平台底部主梁位置搁置垫板,形成从贝雷架平台传至楼面主梁再到柱子的传力体系。同时对楼面主梁进行复核,不满足承载要求时可通过加大梁截面尺寸及配筋或在梁下保留支撑的形式加固。
5 免高支模贝雷架转换平台施工的现场应用
5.1 工艺流程
以中惠铂尔曼项目为例来说明高支模贝雷架转换平台的工艺流程:根据梁板荷载受力分析,确定楼面贝雷架排布间距→根据吊装条件选择贝雷架组装方式→单榀贝雷架楼面或地面组装完成后,进行单元构件的组装→在楼面下层洞口位置形成单元构件进行吊装或选择平推就位→铺设贝雷架上部支撑底槽钢并调平→搭设支撑架及模板体系→混凝土浇筑完成后,待达到拆模强度拆除贝雷架[6-8]。
5.2 操作要点
5.2.1 确定贝雷架的排布间距
根据上部支撑体系的确定和贝雷架的排布情况,确定传至搁置在洞口边梁的荷载,再提交设计院复核,因受力较大,故增加了搁置主梁配筋。另外,由于顶部主框架梁的荷载较大,在柱子两侧的贝雷架两端需采用双贝雷片承受端部弯矩和剪力。每2榀贝雷架作为1个单元(2片9 m标准间距的贝雷架及之间的连接片),根据贝雷架上部支架及施工活荷载对贝雷架受力进行计算,得出每个单元的布置间距(图5)。每种不同颜色代表一个贝雷架的最小单元。
5.2.2 贝雷架吊装
本工程B区完全在塔吊半径覆盖范围,且B区洞口跨度仅4.5 m,只需2节贝雷架组装后即可满足,质量轻,经塔吊吊装性能分析,满足贝雷架单元的吊装要求,故B区采用地面组装单元,直接吊至楼面洞口就位的方式(图6)。
A区不完全在塔吊半径覆盖范围,且位于塔吊尾端,洞口跨度9 m,需4节贝雷架组装后才能满足,单元组装质量较大,塔吊无法满足吊装要求,故将A区单榀最小构架吊装至楼面,在跨端组装单元,采用液压车平移就位的方式(图7)。
5.2.3 贝雷梁顶部槽钢铺设及排架搭设
在施工安装贝雷梁完成以后,以横向及竖向2个方向焊定位挡块及压板,在贝雷梁上部铺设14#槽钢,槽钢间距与上部模板支撑立杆间距相同,贝雷梁间固定方式采用φ16 mm的U形螺栓,按单个节点设置1套螺栓固定。铺设
槽钢后,由于楼面的平整度的误差,需要在槽钢底部用木楔子调平,再进行槽钢和贝雷梁的固定,采用电焊方式固定,防止滑动。待固定后进行排架的搭设(图8)。由于主梁位置荷载较大,贝雷梁紧靠柱子表面,需提前浇筑平台高度范围内柱子,否则后期无法支模浇筑。
5.2.4 贝雷架平台的拆除
贝雷架平台的拆除要遵循先装后拆的施工方法,采用在7层屋面底部放置预埋板或吊环的方式用于配合手拉葫芦拆除,并及时将其运走。最初方案中,楼面上的卷扬机把架体的1节拉到楼面边拆解后,用预埋的吊环配合手拉葫芦把剩余的几节架体整体从空洞里吊至地面后再拆解。从安全性等方面考虑,更新的拆除步骤如下:
1)拆除梁板模板支架、木方、模板,再拆除贝雷架底弦安全平网,最后拆除枕木后,拆除9 m跨贝雷架梁。
2)将贝雷架上部的槽钢拆除。通过在混凝土梁板上预留倒链吊钩,将9 m贝雷架吊移至楼面上的液压车后再平移至卸料平台附近。操作人员就地分解架体至1.5 m×3.0 m的贝雷片后运至卸料平台,最后由塔吊吊至地面(图9、图10)。
6 效益分析
6.1 社会效益
项目采用了贝雷架作为模板支撑体系的平台,在达到施工要求的同时,极大地提高了操作安全性,经济和时间上也都获得了节约,保证了施工进度,同时,具有可周转性,避免了传统采用钢梁作为转换平台时,需要加设拉杆或底部斜撑的工序,对类似工程有较好的参考指导意义。
由此可见:贝雷架转换平台的经济效益较好。
参考文献:
[1] 左建江,杜思访.贝雷架在高支模排架支撑系统中的应用[J].科技创新与应用,2012(6Z):40-41.
[2] 刘辉.浅谈贝雷片在房建高支模施工中的应用[J].江西建材,2013(6):61-62.
[3] 吕飞虎,尹超辉,章燕清,等.贝雷架在房建工程中的应用[J].中国房地产业,2016(19):119-120.
[4] 黄爱锋,杨叶红.贝雷架在高空大跨度房屋建筑中的运用[J].施工技术,2009,38(S1):575-577.
[5] 舒宝庭,张记生,徐世明.贝雷架在高空大跨度房屋建筑中的运用[J].建筑技术开发,2010,37(5):29-30.
[6] 马伟良.贝雷架在高空大跨度房屋建筑工程中的应用[J].城市建筑,2013(16):206,221.
[7] 黄伟锋.贝雷架在建筑施工中的应用与浅析[J].建设监理,2015(12):74-76.
[8] 唐帆.贝雷架在建筑模板工程中的应用[D].厦门:厦门大学,2016.
贝雷架在房建项目高空大跨及超长悬挑结构施工中的应用
摘要:结合武汉梦时代广场工程实例,介绍了贝雷架在高空大跨结构及超长悬挑结构施工中的应用,提出了简支式、悬挑式贝雷架支模平台的构造及施工工艺。该措施规避了超危大高支模,在保证施工安全的基础上,显著提高了施工效率,降低了施工成本,具有良好的社会和经济效益。
关键词:贝雷架;房建;高空;悬挑;施工
1 应用背景
随着经济社会的发展,商业综合体呈现体量更庞大、功能更齐全、造型更复杂、结构更多样的发展趋势。同时为满足建筑造型需求,高空大跨及超长悬挑结构层出不穷[1]。武汉梦时代广场是集商业、餐饮、室内乐园、冰雪乐园为一体的特大型商业综合体,建筑高度85.43 m,总建筑面积约80万 m2,体量巨大,造型复杂(图1)。
在4—8层存在大量中庭洞口、扶梯洞口的封板,洞口跨度最大21 m,封板支模高度达42.05 m;在商场主入口存在最大外挑跨度达5.63 m、最大梁截面尺寸400 mm×2 670 mm、悬空高度43.15 m的现浇混凝土结构。需选择一种兼顾安全、经济、高效的支模体系来施工该类高空大跨及超长悬挑结构。
2 方案比选
2.1 落地脚手架支撑方案
落地脚手架支撑方案,即以地面为基底向上搭设钢管支撑架,该方案较传统、常规。如采用该方案,架体搭设高度最高达43.15 m,远超相关规定的模板超危大工程的8 m高度,其垂直度、稳定性极难控制,安全隐患极大,且存在架料用量多、搭拆工期长、占用底部施工场地、地面楼板需额外加固、经济性低等弊端,在本工程中不宜采用。
2.2 型钢支撑方案
型钢支撑方案,即在高支模区域下层搭设简支型钢或悬挑型钢,再以型钢为基底搭设钢管支撑架形成封板或挑板的支撑体系。该方案理论上可行,但本工程中洞口跨度极大、高度极高、悬挑长度较长且存在大梁等重荷载情况,为保证施工安全,经计算,型钢至少需40#工字钢或其他等强型钢,且排布间距小,该类大尺寸型钢市场上较少见,需定制,且每米长度的质量大,存在搭拆难度大、安全隐患多、周转困难、经济性低等缺点,不适合采用。
2.3 贝雷架支撑方案
贝雷架支撑方案,即在型钢支撑方案的基础上,将型钢替换成贝雷架。因贝雷架的强度、刚度、稳定性均优于常规型钢,故其排布间距较大。且贝雷架可分拆成片,具有搭拆方便、安全性好、工期进度快、周转便利、经济性高等优点,适合本工程高空大跨及超长悬挑结构的施工。
3 关键施工技术
3.1 总体思路
在高空大跨封板下部搭设简支贝雷架或在超长悬挑楼板下部搭设悬挑贝雷架,其上布置花纹钢板、小尺寸工字钢形成基底平台,再在基底平台上搭设常规钢管扣件式支撑架形成高空结构的模板支撑体系。
3.2 简支贝雷架支模平台关键技术
采用简支贝雷架支模平台施工中庭洞口、扶梯洞口处的高支模封板。
3.2.1 应用示例
以某区域中庭洞口封板为例,1层为地下室室内顶板,标高-0.10 m;2—7层为椭圆形洞口,洞径为21 m;8层为普通梁板,标高41.95 m。支模高达42.05 m(图2、图3)。
3.2.2 简支贝雷架支模平台组成
简支贝雷架支模平台由贝雷架、花纹钢板、分配工字钢、扣件式钢管支撑架、安全防护设施组成(图4)。
3.2.3 简支贝雷架支模平台传力途径
简支贝雷架支模平台传力途径:现浇钢筋混凝土及施工荷载→模板方木→扣件式钢管支撑架→分配工字钢→简支贝雷架→已施工主体结构。
3.2.4 简支贝雷架支模平台设计
1)贝雷架选型。贝雷架作为支模平台主要受力构件,需根据上部荷载及控制变形要求进行选型。首先对扣件式钢管支撑架进行设计计算,得出立杆支承点反力,该立杆支承点反力作用在分配工字钢上,由此计算分配工字钢支座反力,再根据工字钢支座反力进行贝雷架承载力计算及选型。贝雷架按照是否加设加强弦杆,分为加强型、非加强型,按照组合形式分为单排单层、双排单层、三排单层、双排双层、三排双层。不同的类型其几何特性、容许内力不同。
2)花纹钢板选型。花纹钢板主要起防护作用,避免搭设过程中扣件等构件掉落造成坠物伤人事故。选型时需根据贝雷片间距来选择花纹钢板厚度,以满足施工需求。
3)分配工字钢选型。分配工字钢以贝雷片为支座,直接承担上部扣件式钢管支撑架的荷载。工字钢选型时需进行强度、刚度、稳定性计算。
4)预拱度设计。贝雷架受载后存在变形,该变形主要包含贝雷销接间隙产生的非弹性变形(错孔挠度)和贝雷架受力后产生的弹性变形(受载挠度)。在设计时需对变形进行计算,并据此设定预拱度以满足施工需求,预拱度的调整通过调整支撑架顶托来控制。
① 错孔挠度:贝雷片间采用销接,由于销与孔间存在设计间隙Δ,贝雷架受载后两者间的相对位移会引起结构的错孔挠度。孔与销间的设计间隙国产贝雷片为0.5 mm,贝雷架悬挑端节数设为n。对于简支式偶数节,错孔挠度fm=0.5n^2 mm;对于简支式奇数节,fm=0.5(n^2-1) mm。
② 受载挠度:考虑将上部荷载简化为均布荷载,则中部最大挠度fz=5ql^ 4/(384EI)。
③ 梁板设计或规范起拱:现浇钢筋混凝土梁、板,当跨度大于4 m时,模板应起拱。当设计无具体要求时,起拱高度fg宜为全跨长度的1/1 000~3/1 000。
④ 悬挑贝雷架预拱度f=fm+fz+fg。
5)主体结构复核与加固。荷载最终传递至主体结构,需对主体结构进行承载力复核。复核可采用Midas Gen等软件进行计算,如承载力不满足,需对主体结构进行必要的加固,可采用增大截面、增加配筋等方式。该工作需在支座层主体结构施工前完成,以便加固的实施。
3.2.5 简支贝雷架支模平台施工工艺流程
施工准备→支座层主体混凝土浇筑及养护→贝雷架拼装安装就位→花纹钢板铺设→分配工字钢布设→扣件式钢管支撑架搭设、起拱→预压、精调→封板高支模结构施工及养护→扣件式钢管支撑架拆除→简支贝雷架拆除→完工
3.3 悬挑贝雷架支模平台关键技术
3.3.1 应用示例
以主入口处挑板为例,1层为地下室室外顶板,标高-1.20 m;2—7层结构内收;8层结构外挑,最大外挑跨度达5.63 m,最大梁截面尺寸400 mm×2 670 mm,标高41.95 m,支模高度达43.15 m(图5、图6)。
3.3.2 悬挑贝雷架支模平台组成
悬挑贝雷架支模平台由贝雷架、花纹钢板、斜拉钢丝绳、分配工字钢、扣件式钢管支撑架、预埋U形螺栓、扣件式钢管反顶架、安全防护设施组成(图7)。
3.3.3 悬挑贝雷架支模平台传力途径
悬挑贝雷架支模平台传力途径:现浇钢筋混凝土及施工荷载→模板方木→扣件式钢管支撑架→分配工字钢→悬挑贝雷架→预埋U形螺栓及已施工主体结构。其中斜拉钢丝绳在贝雷架悬挑端吊拉卸荷、扣件式钢管反顶架在贝雷架固定端反顶卸荷,两者均作为保险措施,不参与受力计算。
3.3.4 悬挑贝雷架支模平台设计
悬挑贝雷架支模平台设计包括悬挑贝雷架中贝雷架、花纹钢板、分配工字钢选型,主体结构复核加固同简支贝雷架支模平台,不同点在于U形螺栓及预拱度设置。
1)U形螺栓选型及预埋。U形螺栓包含2种,一种为固定前端起定位作用的,一种为固定后端起锚固作用的。主要针对固定后端起锚固作用的U形螺栓进行设计计算,保证其抗拔力满足要求,同时留存一定富余(图8)。U形螺栓需布置在主次梁位置,以避免主体结构受损。U形螺栓与主体钢筋绑扎存在交叉作业,需根据现场钢筋实际情况合理安排穿插作业,避免U形螺栓无法安装。安装完成后对U形螺栓的数量、定位、主体加固进行检查,避免后期贝雷架无法安装。
2)预拱度设计。
① 错孔挠度:根据虚功原理,悬挑式错孔挠度fm=n(n+1) mm。
② 受载挠度:考虑将上部荷载简化为均布荷载,则悬挑梁末端挠度fz=ql ^4/(8EI)。
③ 悬挑贝雷架预拱度f=fm+fz+fg。
3.3.5 悬挑贝雷架支模平台施工工艺流程
施工准备→悬挑层主体钢筋绑扎及U形螺栓预埋→悬挑层主体混凝土浇筑及养护→贝雷架拼装安装就位→固定端扣件式钢管反顶架搭设→中间层主体结构施工及斜拉点预埋→斜拉钢丝绳拉结→花纹钢板铺设→分配工字钢布设→扣件式钢管支撑架搭设、起拱→预压、精调→大跨外挑结构施工及养护→扣件式钢管支撑架拆除→悬挑贝雷架拆除→完工
3.4 贝雷架安装与拆除
实际施工中,受空间、吊重等因素限制,不同区域贝雷架需采用不同的安装与拆除方式。
3.4.1 贝雷架安装
本工程贝雷架安装方式分整体安装法、分段安装法、平移安装法3种。
1)整体安装法。在空间、吊重满足要求的情况下,将贝雷架构件在拼装点拼装成片后,使用塔吊等起重设备整体吊装至安装点。
2)分段安装法。在吊重不允许整体吊装的情况下,先安装洞口跨度区段的贝雷架,再在其两端接长成整体。
3)平移安装法。在拼装点全段拼装好,再在两端使用叉车等设备将贝雷架同步平移至安装点。
3.4.2 贝雷架拆除
1)平移拆除法。为平移安装法的逆过程,采用叉车等设备将贝雷架同步挪位至附近楼板上后,再拆除成零星构件。
2)牵引拆除法。在施工时预留吊洞,拆除贝雷架时利用吊洞及牵引机将贝雷架挪位至楼板上拆除分解。拆除流程为:在贝雷架上方封板预留吊洞处安装好钢丝绳,钢丝绳一端连接卷扬机(卷扬机1、卷扬机2),另一端连接跨中拆分点,以保证贝雷架拆分成2段后贝雷架的稳定。人系安全带行走至跨中对拆分点处插销进行拆分。完成拆分后,使用另一台卷扬机(卷扬机3)将拆分段拖拽至楼板上,然后分解成片外运退场或周转使用。
4 结语
通过方案比选及实践摸索,本工程创新性地采用贝雷架作为高空大跨及超长悬挑结构的支模平台,并提出了预拱度公式,显著提高了超危高支模的施工安全性,有效缩短了工期,创造了较好的环保、经济和社会效益,得到了业主、设计和监理单位的一致好评。贝雷架在本房建项目高空大跨及超长悬挑高支模施工中的创新运用和成功实践,给超危高支模体系设计提供了一种新的思路。
参考文献:
[1] 陈静波,吴志杰,程凯.免高支模的贝雷架转换平台施工技术[J].建筑施工,2018,40(11):1953-1956.
(好的文章,大家记得“关注+点赞、转发”就是对作者最大的肯定!贝雷架在房建项目中的应用截止目前已分享完毕。)
注:以上内容收集于网络,仅用于学习分享,如涉及侵权,请联系删除!
(贝雷架文献pdf、cad图纸及计算手册获取途径(非免费):私信我获取!)
版权声明:我们致力于保护作者版权,注重分享,被刊用文章【工程项目案例(贝雷架在房建项目应用案例及计算手册)】因无法核实真实出处,未能及时与作者取得联系,或有版权异议的,请联系管理员,我们会立即处理! 部分文章是来自自研大数据AI进行生成,内容摘自(百度百科,百度知道,头条百科,中国民法典,刑法,牛津词典,新华词典,汉语词典,国家院校,科普平台)等数据,内容仅供学习参考,不准确地方联系删除处理!;
工作时间:8:00-18:00
客服电话
电子邮件
beimuxi@protonmail.com
扫码二维码
获取最新动态
