秋天的美是成熟的,它不像春那么羞涩、夏那么坦露、冬那么内敛。
这间拥有着40年屋龄的老屋,在翻新后仿佛有着秋之美,无论翻腾于空气,还是流溢在光中,都像是拥有与生俱来之美感。喜爱怀旧物件的屋主夫妻,正像是有如灵魂伴侣般之默契,以恰似蒙太奇艺术手法,共同激荡出美感能量。
女主人非常喜欢古物老件,对于手工刻凿痕迹深深着迷,在规划设计时,倾心剖析她喜爱的调性,即便在遇上原有物件,受到货源调配不及改动之下,已经描摹出她所期望的情境与氛围,一旦物件确立后,复古欧式即景便成为迷人家景。
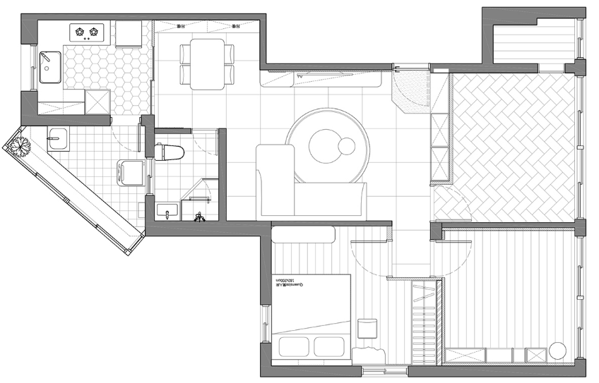
套内面积66㎡,在重新梳理原屋格局后,规划出3房2厅1卫,除了格局配置外,注入怀旧情调,使得家缓荡出暖意与生活感。
为围塑一处落尘区,刻意藉由高低差,以及水泥面与地砖相异材质,形塑区域感,并以木纹板材于门侧柱角边,打造穿鞋凳。
由木格栅作为墙面缀饰,悬挂一根斑驳树枝,为满室秋日风情,与淡黄色柜面蕴生秋天温暖感,为复古格调带来唯美开端。
在鞋柜下方,将宠物狗小窝设置于此,透过多角度线条勾勒小天地,当毛孩窝居在此时,家又是另一种可爱风景。
主墙像是一纸静谧优美图幅,悄然从玄关大门侧序展开,为了突显重量感,在满屋淡奶黄漆面下,形塑一道以格栅线条收边的主墙,借这道厚度,划定家景分际。
因不装设电视机,电视墙上方隐藏设计投影幕布,灵活设计实用且带来干净利落的空间感。下方则以无缝感缔连两道电器柜,流动漫缓质地,再摆放一盏欧式大理石灯台,十分雅致。
悬浮于地面上,在圆弧收边之际,与格栅线条迸发无缝美感,再错落一道小边柜于左上侧,刻意横越格栅线板,形构交错画面,打造上下层次柜体,目的是给予毛孩子另一小角落窝着。
为了隐藏空调内机和修饰低矮横梁,天花以下降包覆柔化,藉由一曲饱和木质调,与柔润弧线掩映,不仅不显压迫,更成为视线聚焦主题。
于此悬挂一盏复古大灯泡餐吊灯,当灯绽亮时,光便晕染全室,暖黄色彩流露秋日饱满感。
墙面延续天花肌理,以实木贴皮,形塑几何倒置层架,一反常见一字形层架,透过弧状造型,与吊柜交叠,错落独特美感,创造收纳与绿意摆饰用途。
进入厨房前,推开与餐厅天花相似的弧面门框后,会发现在开与阖之间,正流动不同弯弧曲线,为厨房开启了不同想像。
由于最初讨论风格定调时,以北欧风为主轴,但因老物件添入,使公领域有了更具特色的调性。为了注入起初心中蓝图,将相较清新之北欧质感,保留在厨房。
地面舍弃小碎花样式,选用花卉图案鲜明的大花砖。将碎形马赛克砖,拼贴于烹饪区墙面,同时也重塑厨房格局。
从一字形改置为ㄇ字形,扩大了空间使用率。简单勾勒窗扇浅台,摆置小盆栽时,又添几分小清新。
当目光沿着入门过道,可见屋主吊挂一盏复古灯饰,于主卧床头,闪耀流光溢彩,优雅端景揭开主卧木质设计。
选择纹理鲜明木质调,构筑床头背板与简约书桌,反而显现纤美细致度,书桌台面以波弧状延伸流动感,与侧边一列浅灰色衣橱对映,仔细一看,还缀饰皮革手把,有着温润质感。
此空间为女主人专属休憩与瑜珈练习区域,以干燥玫瑰粉涂覆半高墙面,与柚木人字拼贴地板,叙写女性气质与柔美。
打造系统柜体,为室内收纳功能扩充之延伸,同样也以跳色序列,成为男主人专属独拥空间。
为了契合地面尺寸,采取干湿分离,以斜面为分野,为推升两区之高度使用效能,淋浴区铺叙深色不规则造型花砖,以跳色手法,从地面沿墙面而上,勾勒折角造型,放大了视觉感受。
每一幅家景看似彼此独立,却蕴生相同氛围,比如从客厅缓步到用餐区,所使用的墙面元素,并不纯然一致,每一区域都有独立材质、用色、线条,但却随着目光浅移,整体画面却跃然为立体化。
从平面升华美感,与老件相辅相成,成为独特设计,一如蒙太奇影像的构成思维,成为艺术双人家居之引入巧思。
版权声明:我们致力于保护作者版权,注重分享,被刊用文章【装修空间利用设计案例(发现一对夫妻66)】因无法核实真实出处,未能及时与作者取得联系,或有版权异议的,请联系管理员,我们会立即处理! 部分文章是来自自研大数据AI进行生成,内容摘自(百度百科,百度知道,头条百科,中国民法典,刑法,牛津词典,新华词典,汉语词典,国家院校,科普平台)等数据,内容仅供学习参考,不准确地方联系删除处理!;
工作时间:8:00-18:00
客服电话
电子邮件
beimuxi@protonmail.com
扫码二维码
获取最新动态
