每天花三分之一时间相处的办公室,你曾期望它会是什么模样?
除了功能齐全、环境舒适,吸引眼球的装修设计及整体氛围,
是否会让你更有动力工作?
原本环境显得老旧、幽暗的办公室,在身为设计师的新业主承接之后大刀阔斧进行装修;先借着舍去过多隔断、吊顶等繁复设计,让原有的优势重现,再赋予现代简约风格元素及布局,二手办公室焕然一新,不仅让人难以联想是同一个办公室,充满高质量的环境氛围,也能让工作更带劲!
1. 解决整体采光较差问题
2. 体现建筑优势关系
3. 调整消防主干管的位置
面对这些问题,设计师及团队将空间重新规划为几个区域,并以”化繁为简”为基调,在新旧融合时模糊了交界,并延伸至空间的设计,再结合自然光、开放式空间等巧思,让使用者感受现代简约风格的时尚体验。现在,一起看看隐上设计的改造成果吧!
改造前
这个案例,属于传统的OA办公空间,原本的布局不仅让整体采光较差,而且轻钢架集成天花也让层高仅剩2.8米,未能体现建筑优势关系,加上原有的消防主干管位置非常尴尬,整体环境的舒适度、功能性都显得不足。
改造后
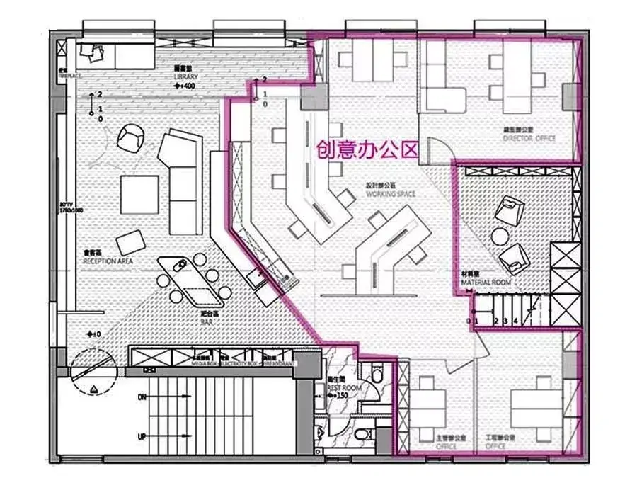
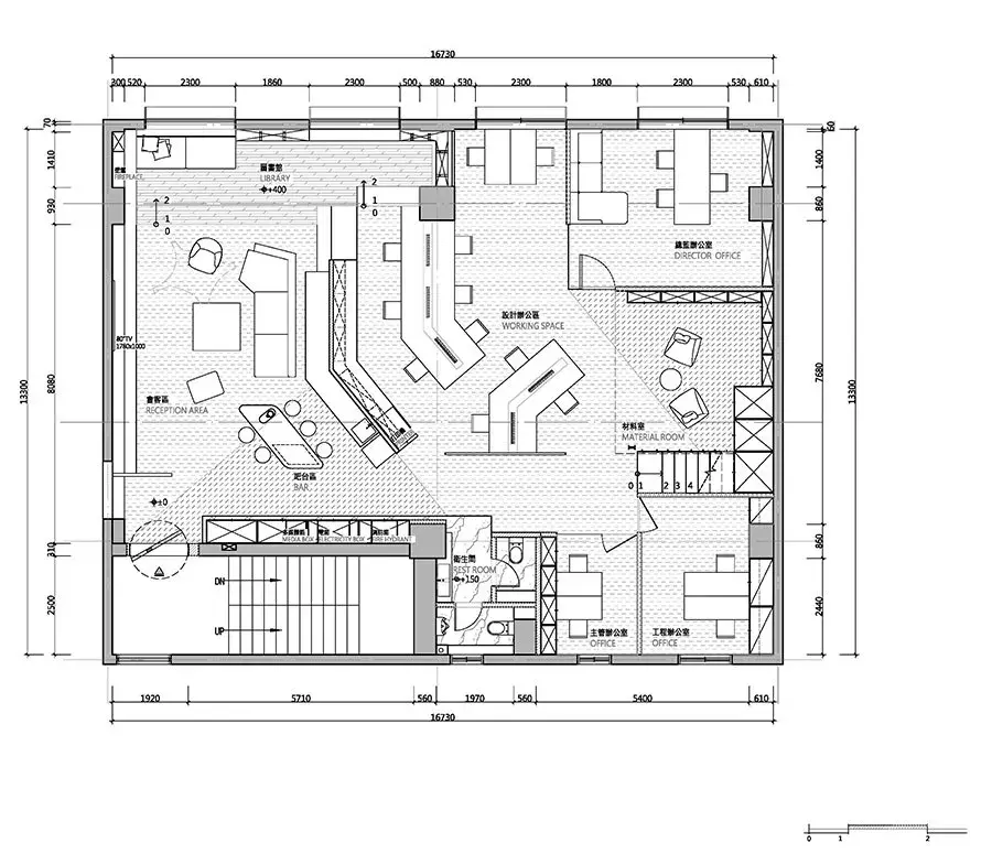
释放4.8米层高优势,并将原本相对封闭的空间改采开放式布局,重新规划出接待休闲区、图书馆区、创意办公区及卫生间,并运用部分高度空间打造跃层,下方作为物料区,上方则是会议室;最后,再运用低饱和度的中性色彩及暖色灯光,以及透过与材质的碰撞,勾勒出高质量的整体氛围。
▲ 一层户型图
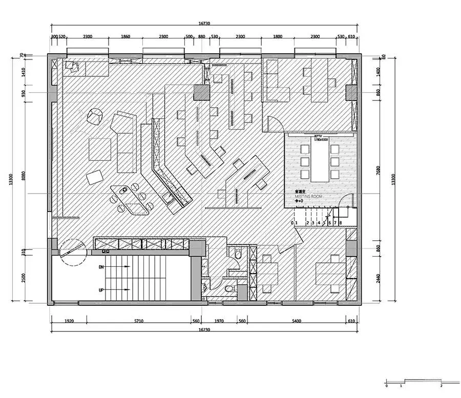
▲ 二层户型图
改造后各空间会呈现什么新样貌?我们继续往下看!
改造前的大门,为一扇对开的玻璃门,从门外即可直视内部空间;改造后,除了换掉大门样式,并在科学风水的考虑下,设置半透视玄关墙体,一方面界定玄关、创造空间转换的缓冲区,也避免室内景致被门外陌生人一览无遗。
▲ 玄关区
穿越玄关来到接待休闲区,设计师解构原本单调的墙面,将上半部打造为银灰色不锈钢墙体,下半部则规划黑色锈铁墙及台面,形成稳定的空间关系,也营造沉稳的氛围。
接待休闲区的另一端墙面,则采130度折角设计的整面盘多磨墙体,与光亮的不锈钢柱吧台桌,共构出空间亮点;而且这样巧思,不仅具备区分空间关系的作用,钢柱设计也解决了消防主管的问题。
另外,针对黑白灰的空间,藉由设置橡木柜平添温润气息,同时提升收纳功能;而重新设计的天花,部分采用裸露设计,一来赋予空间个性,二则拉大高度,营造相对开阔、舒适的环境。
窗边处利用高台设计,规划为图书馆区;由于邻窗的优势,设计师顺势以大窗作为设计思路,让阳光洒入沙发与书柜的间隙,既营造温暖的阅读环境,也借着充沛的日光,明亮室内空间。
其次,以木质建材铺设台面及阶梯,加上角落的不锈钢火炉,都为这处空间带来温暖。另外,藉由延伸台面的作法,不仅提供更宽敞的阅读空间,并且串连接待区及办公区,有助于提升各场域之间的互动性。
延伸130度的设计,将最大空间范围保留给办公区;当中除了工作区,并涵盖总监办公室、主管办公室及工程办公室等,满足工作使用需求。
设计细节上,大量采用玻璃隔断,让来自户外的自然光线得以在室内自由流动,同时赋予空间现代利落感;而天花设计则采用建筑视角,以长方形体定义区域感,与原始天花产生融合。
至于桌面,则以白色石纹铺设,并特别定制白色灯具及灰白两色编织毯,让整体氛围更具一致性。
▲ 总监办公室
位于总监办公室旁,此区空间采用H型钢构楼板结合冲孔网天花的设计打造跃层;下方作为物料区,并沿着墙面规划壁柜,提升收纳容量。值得一提的是,白色柜体采取悬空设计并安装嵌灯,除了纾缓压迫、注入轻盈感,也有空间界定及增添质感的效果。
跃层上方为会议室;会议室采用电子玻璃,在虚实之间变化,兼具遮蔽的作用。其次,避免层高不足而导致压迫感,天花不封顶,以维持基本的舒适高度。至于连结一、二层的楼梯,则采开放式设计,利于视线穿透,也有间接延伸视觉空间的效果。
抬高的走道串连2间卫生间,这样设计除了解决管道改造问题,并增加空间中的体量关系。另地面选用白色石纹铺设,为纯白空间平添层次变化。
隐上设计来自于台北扎根于上海,”质感讲究”为始终如一的设计原则。从精致体验、品味收藏、风格重塑、形象策划四大面向,打造客制化的舒适私宅,更深度地经营企业品牌与消费者的关系,创造最大化的品牌价值。
集团由首席顾问黄士华Mac为核心,带领台北、上海等地热爱生活的创意团队成员,并依空间的属性配置专属的精英小组,二岸四地七部门协力提供全方位的设计解决方案。
原本,显得环境老旧、幽暗的办公空间,在舍去过多隔断、吊顶等繁复设计后,让原有的优势重现,再赋予简约风格设计,旧型办公室焕然一新,完全无法与之前的模样联想在一起,令人惊艳!
在家好环境,办公高效率!客厅、餐厅、卧室这样搞,上班好快乐
"暂存储物柜",家务减量最新招!日本主妇用它做收纳,方便好实用
#办公室# #装修效果案例# #室内设计# #装修那些事#
版权声明:我们致力于保护作者版权,注重分享,被刊用文章【办公空间设计案例整套(别人的办公室太棒)】因无法核实真实出处,未能及时与作者取得联系,或有版权异议的,请联系管理员,我们会立即处理! 部分文章是来自自研大数据AI进行生成,内容摘自(百度百科,百度知道,头条百科,中国民法典,刑法,牛津词典,新华词典,汉语词典,国家院校,科普平台)等数据,内容仅供学习参考,不准确地方联系删除处理!;
工作时间:8:00-18:00
客服电话
电子邮件
beimuxi@protonmail.com
扫码二维码
获取最新动态
