对在北京生活的人来说,驱车北上,只需一个多小时,便能摆脱林立的高楼,步入山野的气息里。
在燕山脚密云区的张家庄村,一座随着城市发展而日益“空心化”的村庄迎来它的复兴。
这里原始村落的风貌和建筑保留得相对完整,村民的生活悠闲从容。
这对渴望《瓦尔登湖》式自然栖居氛围的繁忙都市人,提供了向往的空间。
对建筑师来说,原生态的乡野是一片充满希望的沃土,这足以重组人、建筑与自然的关系,并将传统与当下的在地文化进行内化赋形,使其变为可观、可感的形体与符号,渗透到生活中去。
▼老院子
▼后门全貌
村中两处最小的宅基地成了建筑师的试验田,以居住、经营两种方式融入村落的复兴之潮。
两个小院间隔50米左右,各自成章又彼此呼应,形成示范效应,为实现以点带面的村落空间整体进化开启新的可能。
▼张家庄村总轴测图
作为城市近郊的乡村民宿,它需要为久居城市的人提供一种完全不同的生活型态,又能满足当代生活的功能诉求。
这种对乡村文化的保留与尊重和新经营模式的置入,正在引领一种文化与经济结构的转变,塑造一种独属于东方的生活时尚。
▼红果树下看客厅
建筑师在对农舍进行改造时,充分尊重了乡村所赋予的精神,保留了原有院落围合的空间及建筑外观。
院中,一棵“二十多岁”的红果树被悉心保留,围树而坐的场景,唤醒了人们对自然与故土的记忆,共享农庄的这处院落亦唤作“红果树”。
▼“红果树”立面图
进入村庄,在夹道绿树的指引下,便能看到山脚下的小院,远远望去建筑物并不显山露水,谦逊地陪伴着临近农舍。
▼进村便能看到房子
设影壁以“挡煞”、“聚气”的中国传统院落的布局,在共享农庄中得以复原,而影壁的存在既有记忆载体的属性,又使外面行人对院中所藏,充满想象。
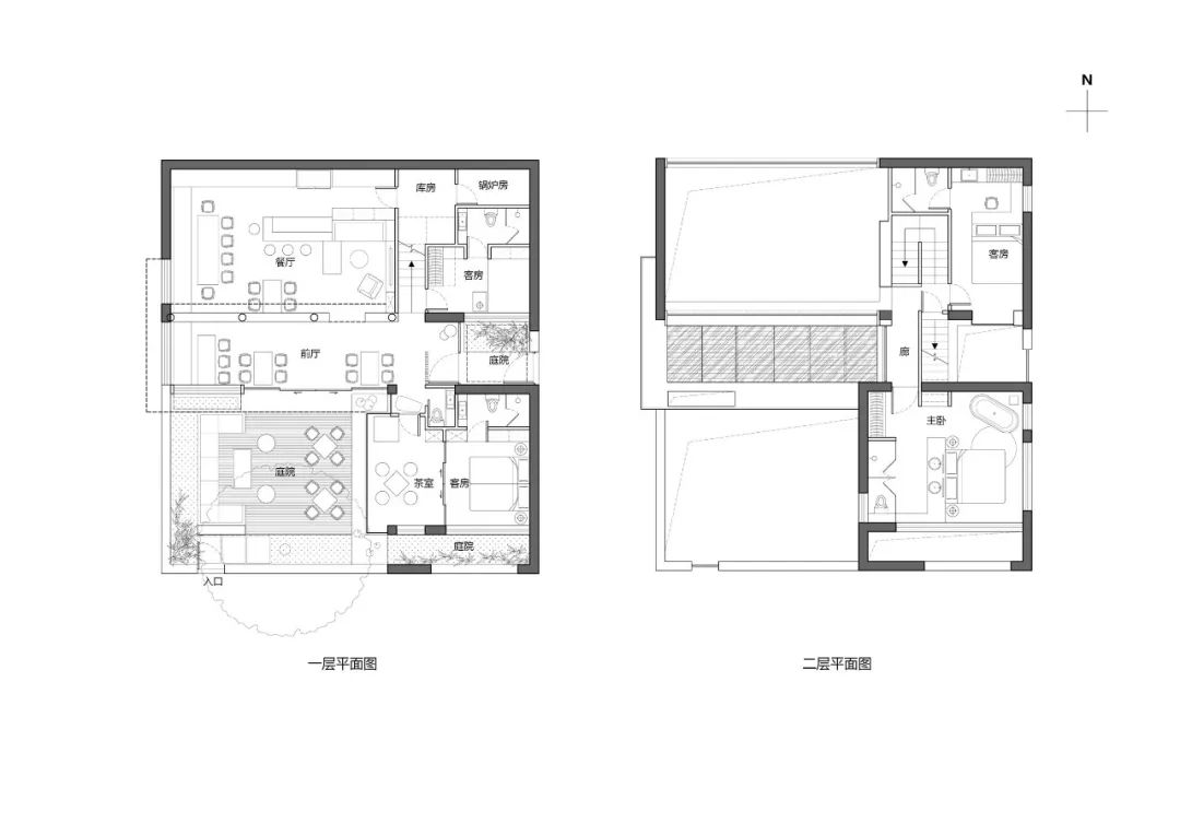
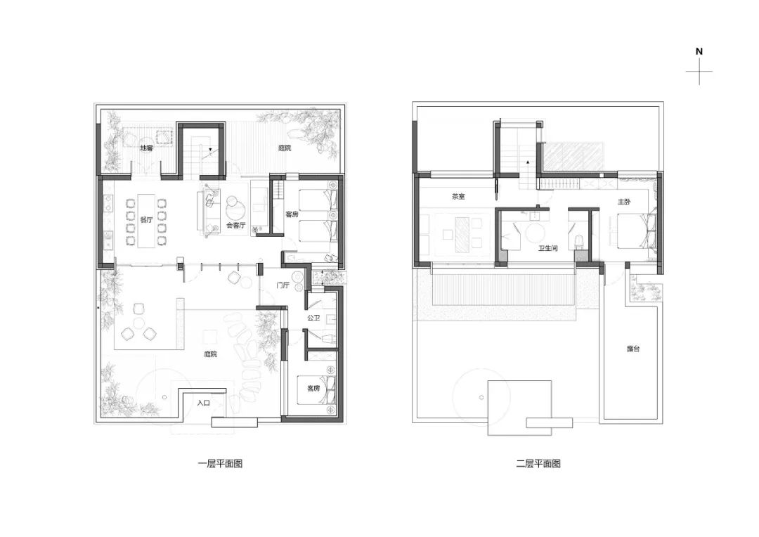
建筑设上下两层,第一层为公共空间与客房,二层则是完整的主卧空间,拥有一间茶室和一个室外大露台,这为相对私密的空间置入了亲近自然的生活情致。
▼屋前的院子
▼雨后的院子
▼傍晚的院子
原建筑为木结构屋架,低矮破旧、保温不佳。
为满足居住所需,建筑师拆除了屋顶和部分墙体,以混凝土搭建新的骨架。
由于有严格预算要求,拆除后的瓦、木椽、木屋架都得到了再次利用。
▼傍晚看向室内
▼客厅餐厅全景
▼从餐厅望向庭院
▼紧邻餐厅的烧烤台
为实现庭院视觉穿透性和连贯性,建筑师以大面积玻璃作为首层南北立面的主要材料,置身室内,可观春华秋实、晨昏雾霭,听雨打石板地的清脆声响,让自然风光成为生活风景。
这种开放又与院外相隔,充分保障了居住空间的私密性,这也是对传统民居内向性审美的延续。
▼廊下的门厅入口
▼客厅里看院子
为保障户外活动无惧阴雨和暴晒,建筑在南向设置了玻璃雨棚,并以木格栅形成光线过滤。
同时,灰空间是对传统建筑“风雨连廊”的追忆,兼具功能和情感价值。
▼屋顶露台
▼玻璃雨棚
室内以白色为主调,原木和水泥等室外材料延伸进来,整体景致与庭院相得益彰。
家具、摆件,每一处细节都保留着材质的原始纹理和质感,更藏有手工艺精雕细琢的细腻与温度,精致而不失野趣。
▼阁楼上的茶室
▼阁楼上的主卧室
▼后门夜景
在张家庄村,全村没有一家饭店,想要用餐只能到3公里以外的另一个村。
“小酒馆”基于餐饮需求而诞生。同样尊重场地文脉,二分半宅基地的面积,进行旧农宅改造,“小酒馆”比“红果树”更具公共属性。
▼小酒馆立面图
临街院墙由砖石砌筑,与建筑墙体的素混凝土形成风格迥异的肌理,建立了最直观的吸引力。
建筑所在地除北侧外并无相邻建筑体,利用如此优势,建筑师将建筑视作“观看的机器”,在立面最佳观景位置设置开窗,让远近景致悉数“入画”。
▼小酒馆外观实景图
▼小酒馆还原效果图-酷家乐金牌导师青木
为了满足商业空间应有的尺度感与使用灵活性, 建筑师将坐北朝南的主体建筑加高至两层并做了通高处理,容纳室内就餐。
“廊下空间”由“红果树”延续至此,满足半室外就餐的需求。
庭院之中,暖色编织质感的沙发椅,围合出欢聚的氛围,水泥花坛里野蛮生长的绿植与竹子、石墙面为近景;矮山与蓝天为远景,让就餐的氛围更加“原生态”。
▼酒馆的院子
▼雨蓬下延伸出来的餐厅
▼雨蓬下老房子的墙和柱
▼餐厅全貌
▼老房子改成的餐厅
▼风口安排在原建筑增高的部位
建筑原有的木屋架被更符合结构、功能的混凝土取而代之,拆除下来的老料被用以修复保留下来的建筑部位。
梁柱、檩条、老墙都还原成为最初的形态,唤醒记忆。
▼从餐厅望向庭院
▼修葺一新的老墙和柱子
▼吧台和休息区
▼餐厅休息区
服务于餐饮的配套功能同样必不可少,与普通餐厅不同,乡野之味可能需要停留细品。
于是,除了餐饮主体空间外还设有三间小客房和一间主卧室,每一个房间都拥有朝向庭院的开窗,于竹影间起居坐卧。
希望城市的居民能够为一道佳肴、一段风光、一种生活欣然至此,享受休憩后再出发。
▼卧室里的休息区
▼二层卧室
“红果树”与“小酒馆”,两个二分半小院,两种经营可能。
在吸引外来客、带动新经济之余,这两座当地文化积酿而成的小院,对当地居民而言,如同一面照见自我的镜子,潜移默化地启迪他们重新认知自己的属地价值与文化价值,为职业选择、生活空间营造提供了一种新的选择。
而自然生态的保护、传统文化与民艺的延续正有赖于这种朝向乡野的新运动。
▼总平面图
▼“红果树”平面图
▼“红果树”剖面图
▼“小酒馆”平面图
▼“小酒馆”剖面图
本文转载于:酷家乐设计助手,如有侵权,请联系小编处理!
读万卷书,行万里路。读道文旅很荣幸和您分享这篇文章!不落地,不创意,如果您有好的素材案例,也欢迎下方留言分享~
版权声明:我们致力于保护作者版权,注重分享,被刊用文章【民宿改造案例(这个乡村旧房改造的民宿)】因无法核实真实出处,未能及时与作者取得联系,或有版权异议的,请联系管理员,我们会立即处理! 部分文章是来自自研大数据AI进行生成,内容摘自(百度百科,百度知道,头条百科,中国民法典,刑法,牛津词典,新华词典,汉语词典,国家院校,科普平台)等数据,内容仅供学习参考,不准确地方联系删除处理!;
工作时间:8:00-18:00
客服电话
电子邮件
beimuxi@protonmail.com
扫码二维码
获取最新动态
