这个项目是中央美术学院燕郊校区的老图书馆,前身是中央美院附中的图书馆,06年中央美院正式入驻,教师和学生的数量逐渐增多,因此图书馆经年累月的的问题也逐渐显露。
比如入口隐蔽,两层不能互通,天花地面多年失修,照明不足,总之图书馆经过这么多年的风吹雨打,已经老态龙钟了,因此校方十分希望能够将图书馆进行一次系统性、全面性的改造以满足新时期学校和学生对现代图书馆的期望。
藏:收藏,藏书。展:展示,展览。阅:阅读。享:分享。
有了这个大方向,图书馆在2018年的秋天便动工了。
经过对图书馆建筑的重新梳理,塑造了图书馆的新入口,橙色的地面让图书馆入口位置更加的醒目。
新入口的外观简洁、明快,门头和新加的冲孔铝板引墙,与老建筑一起形成了几何化的体块组合。
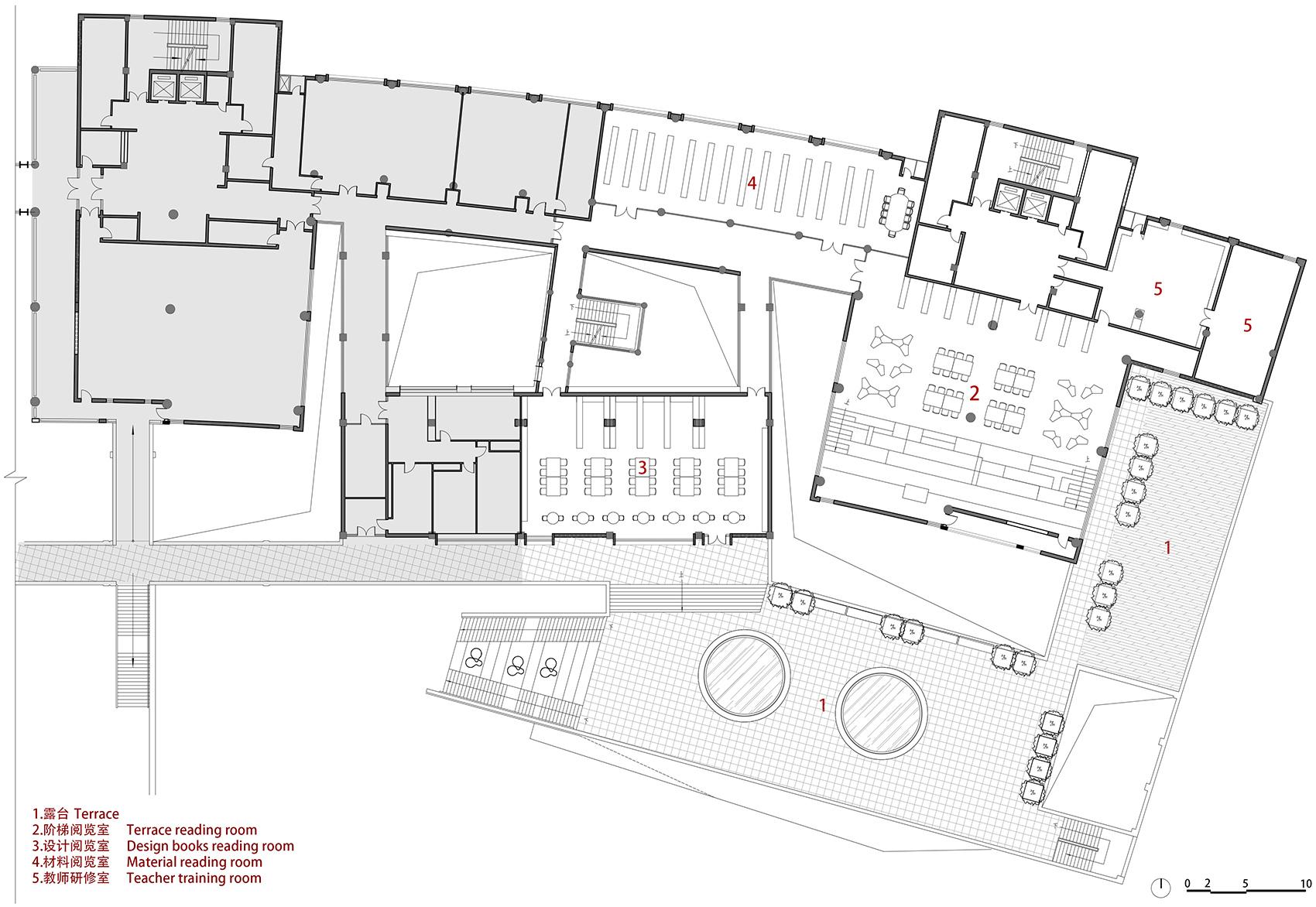
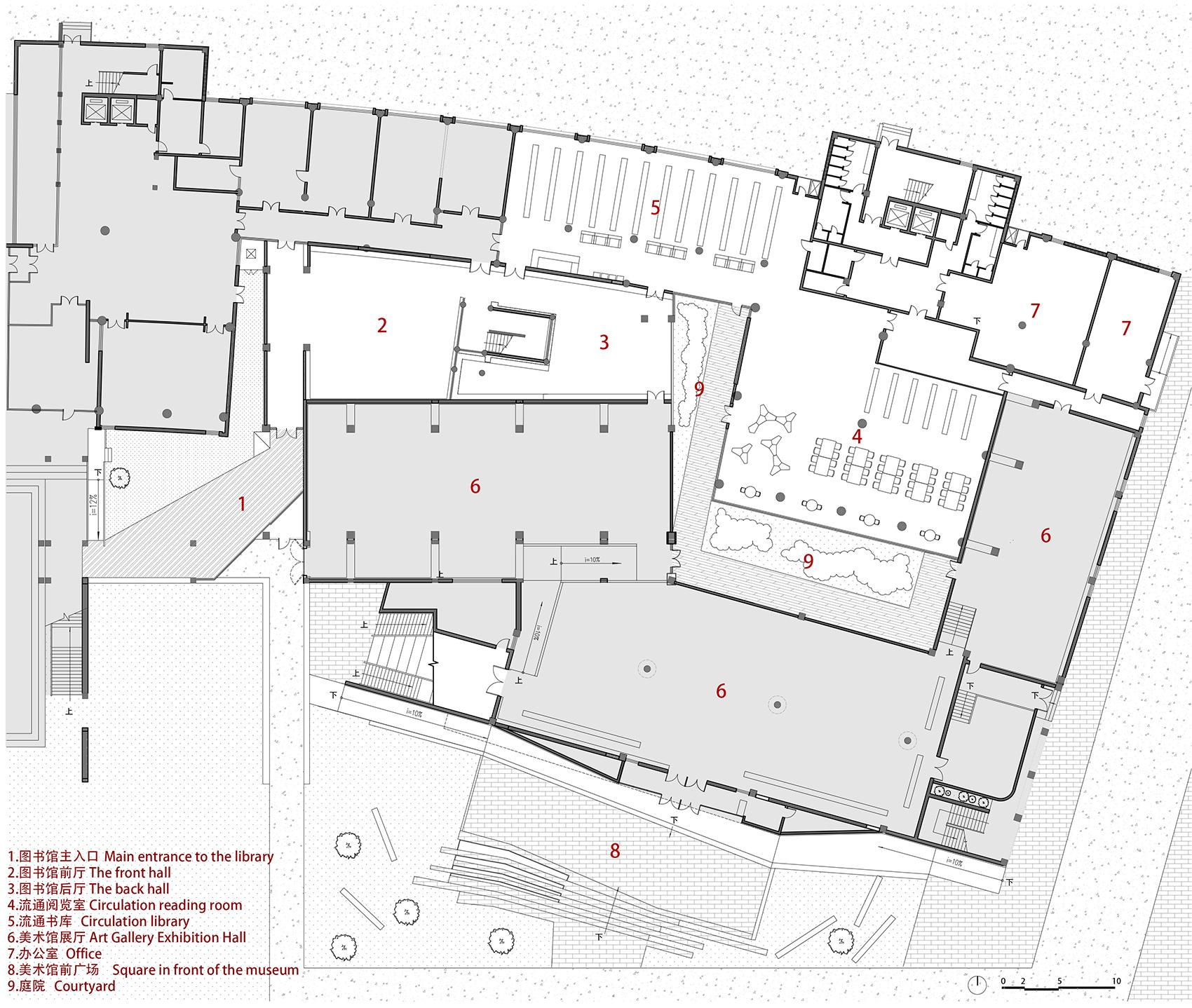
大厅由原建筑闲置的空间改造而成。此处原有一个疏散楼梯间,并集中有8根结构柱,对于空间和视觉感受影响很大。由于楼梯间和柱子都必须保留,因此建筑师因势利导的将大厅在此处分为前厅和后厅两个部分,将疏散楼梯和结构柱巧妙的隐藏在隔墙之间。
屋顶是整个空间最为活跃的地方,建筑师使用了泰森多边形算法(Voronoi diagram)来生成高格栅的形态。高格栅采用了白色亚克力材料,在保证日照的前提下,泰森多边形高格栅除了自身的视觉丰富性外,阳光通过它的折射和反射,形成的多变光影效果也为大厅空间平添了“变数”。在一天的不同时间段内,阳光和阴影以一种“不可预计”的方式撒入大厅空间内,影响着空间的气氛,使人对空间的感受不断变换,一直保持新鲜感。
图书馆的阅览室是读者停留时间最长的地方,充分利用原建筑的空间属性,创造丰富、轻松的阅读体验。
设计公司:三文建筑/何崴工作室
材料:木材 金属 金属面板 穿孔板 金属线网 涂料 合成材料 亚克力 led
分类:图书馆 文化建筑
版权声明:我们致力于保护作者版权,注重分享,被刊用文章【图书馆设计案例(建筑案例欣赏)】因无法核实真实出处,未能及时与作者取得联系,或有版权异议的,请联系管理员,我们会立即处理! 部分文章是来自自研大数据AI进行生成,内容摘自(百度百科,百度知道,头条百科,中国民法典,刑法,牛津词典,新华词典,汉语词典,国家院校,科普平台)等数据,内容仅供学习参考,不准确地方联系删除处理!;
工作时间:8:00-18:00
客服电话
电子邮件
beimuxi@protonmail.com
扫码二维码
获取最新动态
