本内容来源于@什么值得买APP,观点仅代表作者本人 |作者:一杯敬远方
哈喽艾瑞巴迪,我是一杯敬远方
一杯的老粉们知道,我之前给自己家、父母家的老破小都进行了重装改造,并且在ZDM发文分享经验。
因为这些改造经验,一杯在朋友中也“一战成名”。这不,去年闺蜜“斥巨资”在市区入手一个老破小单室套,在装修前就用一顿大餐进行贿赂,请我当“项目经理”。
房子位于市中心,有绝摆的地理位置和不错的学区。但是原来是单位的自建房,户型设计简直辣鸡,面积也只有40㎡。
室内一看就是很多年前的装修了。
厨房和就餐区连在一起,连移门隔断都没有:
唯一的卧室相对总体面积来说占地算很大了,但采光很不好。
跟阳台相连是一堵实墙,还打上了橱柜,光线只能靠阳台门漏进来一点:
我们的诉求:
1、要把这个单室套改成两居,供一家三口居住。
2、尽力增加收纳功能,容纳下三口之家的衣食住行。
3、尽量改善老房屋普遍采光不好的问题。
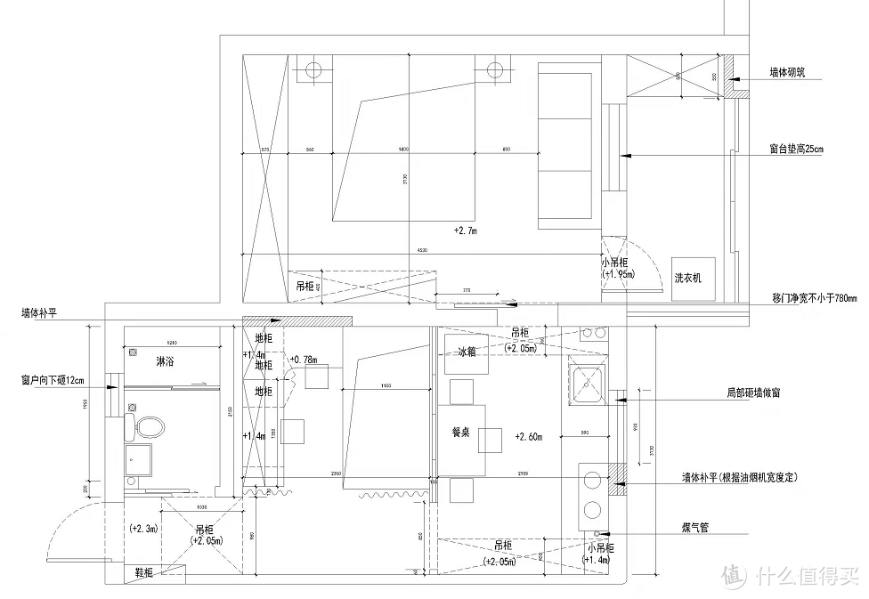
先上两张对比图,看看改造前后的差距——
老厨房改成了厨房+次卧两个独立区域:
主卧凿窗改善了采光,并且增加了休闲功能:
房屋的改造设计由我俩自己负责,省了一笔设计费。施工也没有请装饰公司,而是找了熟悉的包工头带队。虽然因此需要自己辛苦点经常去现场盯着,但是费用却能省下不老少。
把钱花到刀刃儿上,买好一些的建材、家具才是王道。
红色框是砸墙的部分,绿色框是砌墙的部分。
施工图我请会CAD的朋友对照着手稿简单搞了一下,装修师傅能看懂就行的程度。
设计完成,开始一杯最喜欢的——“抡大锤”。
一杯自己家2个老房装修时,也同样对墙体做了很大改动,让老房子能满足现代人的生活需求。
但是这一次除了一杯擅长的砸墙“减法”外,我们还做了一个“加法”。
就在原先的厨房区域隔出一块空间,把这个单室套改造成两居室。
原本的厨房带有就餐区,整体是一个正方形,相对比较宽敞。
我们就在厨房中轴线位置做了隔墙,规整出一个次卧兼书房。
这面隔墙我们选用木龙骨加木工板制作,外贴木饰面和金属嵌条。可能有人会问——
一来,木隔墙厚度比砖墙薄,能尽量省出空间来;
二来,木料轻便便宜,施工简单费用低。
这样的考量还是为了次卧的采光考虑。
墙体上方做磨砂玻璃窗取代实墙,既有私密性,又不挡光线。
因为次卧狭窄,小床只能靠墙放置,如果再加窗帘就会占用到床上方的空间。
本身小床就很窄了,再被窗帘遮挡,躺在床上的人就很容易有空间压迫感。我们真的连方方面面小细节都考虑进去了。
窗子的4个单扇都是可以随意互换位置的,以满足入住后实际生活中的便捷需求。
照片也能看出来,这个小卧室实在是非常小,大约4㎡左右。
为了尽可能地多留出活动空间,卧室跟走廊之间我们甚至连木质隔墙都放弃了,而是采用遮光落地帘隔开。
因为首先墙体本身就要占掉15-20cm的厚度,这样房间就会更小了;
再者,如果这里加上墙,那入户就是一整条狭长的过道,视觉感受上会更加阴暗、逼仄,入住的舒适感降低很多。
安装完感受一下。进入房间后关上窗户、拉上门帘,安全感还是很不错的。
窗帘是网购的,自己量长度和高度就可以定制,比装饰城要便宜很多。轨道安装很方便,请装修师傅顺带弄一下就好了。家里有电钻的话,自己就可以安装。
次卧书柜是采用了最省空间的上下橱+转角书桌的组合。
考虑到全家人的使用需求,书桌桌面设计成了长条L型,这样2个人同时坐下一点不拥挤,三个人也勉强可以接受。
爸爸妈妈坐电脑桌这头工作,孩子坐转角那头做作业,中间还相隔了一点距离,互相不影响。
书橱设计上也竭尽可能地增加储物空间,连桌面下转角的地方都做上了隔板,真是一点也不能浪费啊!
因为房间的长度不够,小床只能让木工师傅现打。1.2*1.9m的特殊尺寸,采用的榉木料,总费用1K。
床脚做得比较高,这样床下的空间还可以收纳一些杂物。
床垫选择了麒麟床垫,是一杯推荐给朋友的,我装修了几次都一直是买这个。大蓝鲸的本土老品牌,质量可靠,睡很多年也不变形。
刚好有1.9m长的哟,非常完美。是对儿童比较友好的薄型护脊垫,椰棕+海绵主料,躺上去支撑感很好,不容易睡驼背。
并且它还是正反两面硬度不同的,将来孩子大了可以翻面睡更加软和的一面,也不用再另买了。
既然这里讲到橱柜了,下面我先介绍下我们对全屋进行的储物升级规划吧。
储物功能升级小户型最大的需求是什么?当然是收纳!
尤其像咱们这种40㎡迷你户型,还要收纳一家三口的饮食起居用品,实在是要好好动一动脑子才行。
因此在规划之初,我们就定下来“收纳第一”的设计方向,能打柜子的地方全部打上柜子,能掏空的墙体尽量掏空收纳,实在地方不够做落地柜的,也得弄上一排吊柜才行!
图片里红色线条是砸墙或者加吊顶做的内置橱柜,绿色线条是靠墙打的大面积橱柜,黑色框是带收纳功能的家具。
几乎所有能利用的空间,我们都利用起来了。
设计好整体方案后,就得找师傅来具体做橱柜设计了。一杯在上次装修自己家时,选择了尚品宅配,体验很不错,这次就继续推荐给朋友家了。
设计师会上门沟通了解需求,然后按要求定制设计图。出图后会再次沟通细节、选择材料、确认预算,双方确定后就可以签约制作了。整个设计+安装过程大约1个多月时间,还是比较顺利的。
除去厨房另算,家里其他所有的柜子、柜门,加上门套,一共花费2w。
入户因为户型并不是南北通透的,门外是一条公用的过道,为了增加通风,一杯选择了带窗的防盗门。
这样春秋季节可以打开通风,室内的空气流通会好很多。
门后的墙体凿墙内置了鞋柜。
鞋柜上的开关是控制门头上的入户灯,因为门口的自然光线不太够。
过道这一块天花板也不能浪费!我们做了一个吊顶,并且做了加固,设计成了收纳柜,又多出1㎡的空间来。
考虑到家里换季需要空间存放大尺寸的电器,比如落地电风扇、暖气等等,因此这个柜子就没有再做隔层,整个是一体的,专放大物件。
长宽都1米有余,非常有容量。
入户门的右手边就是洗手间。
洗手间的平开门改成了移门,简洁又省地儿。
因为要做吊顶安装浴霸,洗手间的层高往下降了一点,因此窗户的位置也进行了改动,下移12cm。
为了美观,所有的管道最后都包进了墙体里。
地方虽然比较小,但干湿分离是必须要做的,这能节省日后打扫的麻烦。
考虑洗手间窗户太小,而且窗外又是不太通风的走廊,那么必然会带来湿度大的问题。
因此洗手间内我们放弃了收纳功能,只有简洁的五金挂架。
连台盆都是选择了最简单的、不带柜体的款式,以免放置物品受潮发霉带来健康问题。
台盆下有横杆,可以挂擦手巾。
浴霸是奥普家的A8cn,恒温控制,广角送风,两档风力。
可以通过APP远程控制,下班路上打开,回家就可以热乎乎地洗澡了。
一杯已经体验过了,加热很快,现在南京十度左右的天气,可以即开即洗。
光靠浴霸的照明亮度不太够,照顾不到台盆区域,所以我们又另加了一盏灯。
热水器选择了AO史密斯的60L的。关于用水产品,如果你实在不知道买什么好,那就选史密斯,肯定不会错。
但前提是这块的预算要高一点儿~~他们家是比其他品牌要贵一些的,但是耐用度和口碑也是业内公认。
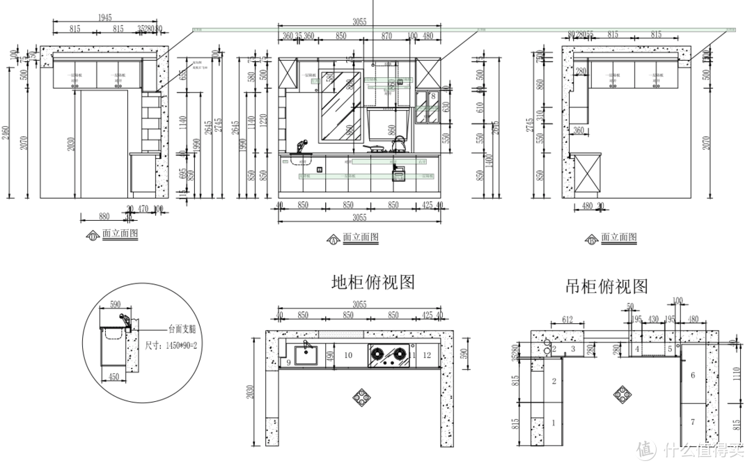
厨房再来参观下厨房。
厨房是收纳重地,因此一杯设计了很多橱柜。
除了整排的吊柜地柜外,侧墙天花板上的空间也不能浪费,吊柜全部安排上。
吊柜和墙面的缝隙里也不能放过,做个小玻璃门的展示柜,放放茶具、酒杯,美观又整齐。
油烟机上方的橱柜,一杯做了比较细心的设计,把两边都打上了小隔板。
这可是我多次装修的经验积累啊~一定要充分利用可收纳的空间,不能浪费一分一毫。对于厨房来说,需要收纳很多瓶瓶罐罐小包装,小隔间一定是比大通铺装得多的。
厨房橱柜+柜门的总费用大约8K搞定。
详细图纸是这样的:
冰箱和餐桌还没到位,一杯就拉个框框示意一下位置。
没有单独的餐厅,餐桌还是只能放在厨房内,但可以买折叠式的,减少占地。一杯家小房子用的就是这种,收起来厚度只有30+cm,贴墙放一点不碍事。
为了尽量让小厨房看起来不拥挤,油烟机我选择了侧吸式的。这样视觉效果上更贴边,让厨房整体能宽敞些。
油烟机是华帝21风量大吸力自变速的,不用人工调节,可以自行测量烟雾量匹配合适风力。
而且可以挥手即开。这个功能一杯觉得还蛮使用的,如果在弄菜手上不干净,就不会把油烟机按键也摸脏了。
燃气灶也是华帝的,1级能效,4.5kw火力,爆炒起来会很爽。
跟油烟机不同,燃气灶一杯选择了不锈钢面板而非黑色镜面的,主要是考虑到清洁问题。黑色镜面上滴了菜汤油渍会非常明显,反而难打理。
为了留下多一些空白台面使用,水槽我选择了九牧家的单槽。
横向比较短,节省台面,但宽度很宽,使用起来完全足够了。
一杯认为,其实单槽比双槽实用很多。双槽的两个槽都不够大,刷起大锅来很碍事。
倒不如一个大单槽,洗洗涮涮水都不会溅出来。
墙面已经安装了 一些不锈钢置物架,还留有不少空间。
这样等入住后看具体的使用情况,可以继续按实际需求来增加合适的收纳配件。如果一开始就毫无头绪地装满整墙,最后又不实用那就鸡肋了。
也有朋友会问,墙上可以考虑装洞洞板啊,这样后面使用可以随意调整很方便。
但是因为我们厨房空间太小,水槽和炉灶非常近,洞洞眼上了油烟之后,清洗实在是太麻烦啦!咱们中式厨房一定要多考虑清洁问题。
从厨房穿过这道门,就来到主卧了。
这道门我们依然选择了移门。关于要不要把墙凿空,把门收进墙内隐藏,我们颇为纠结了一阵,但最终还是放弃了。
主要是考虑以后经年使用的问题。时间长了,有可能会出现移动不顺滑、需要调整轨道或者更换配件,如果做“隐藏款”,维修将是一个浩大的砸墙工程啊。
考虑再三,我们还是选择了实用第一。
装修嘛,肯定做不到毫无遗憾的,总会出现各种各样意料之外的情况。这种时候,我建议大家一定要默念三遍“实用第一”。入住后多年的使用体验,比颜值要重要得多。
来看看衣柜设计。
中间是电视墙,周围是“顶天立地”式,全部打满,侧墙位置不够做落地橱了,就在上方打上一排吊柜。
图纸po上来,给需要的宝宝们做个参考:
由于朋友不想在卧室里挂镜子,理由是害怕起夜时把自己吓死哈哈~
于是我们淘宝买了内置穿衣镜,安在衣橱柜门里头。
角度可以90°翻转,使用便捷又不占地方,非常适合小户型家庭。
前面说到过,主卧面积是整个房屋里比较宽敞的一块了。
因此我们在对面靠墙放了一组沙发,正对着电视。不用鸡娃的时候,老父亲老母亲盘坐上沙发上嗑嗑瓜子追追剧,啊~~想想就很感人啊(老泪纵横)!
连沙发也是选了带收纳功能的,一杯确实是一个收纳狂人哈哈~
沙发背后的这堵墙,算是主卧最大的改动之处了。
原先这是一堵实墙,还打上了橱柜,完全没有采光。我们把橱柜拆除,墙上开了窗,整个主卧都亮堂起来啦!
主卧的家具都是新中式风格,床、床头柜跟沙发完全统一。
来自林氏木业,也是一杯自己家买过多次的品牌,用料实在,稳稳当当,价格实惠,比家具城便宜了一半。
我们是趁着618活动入手的,实木床再加一个床头柜,一共才2K,可以说超划算了。
因为疫情装修期延长,不得已几次要求客服推迟发货时间,好在对方很配合,顺利地就解决了。
在他们仓库摆了快大半年,直到后来客服哭着说“姐,仓库实在不能再放了~~”哈哈哈~
床边我们只配了一个床头柜,另一边放一个小型衣帽架。
冬天穿了一次的外套、夏天的遮阳帽,就都有地方挂了。
电视买的是海信50E3F-PRO,50寸虽然不大,但是卧室用也足够。
4k HDR画质,还可以接入AI语音控制,相当于多了一个智能音箱。平时问问时间、问问天气,就不用掏手机百度了。
阳台沙发后面,就是长条形小阳台了。
空间虽小,也得好好利用起来。
阳台门上方把墙掏空,做个隐藏小吊柜。晾晒区不大,那就横头多加一根晾衣杆,碰上阴雨天也好应付。
门边墙上加了一排不锈钢挂钩,挂挂各种日杂很不错。
阳台的另一侧,原先是有一扇窗户的。
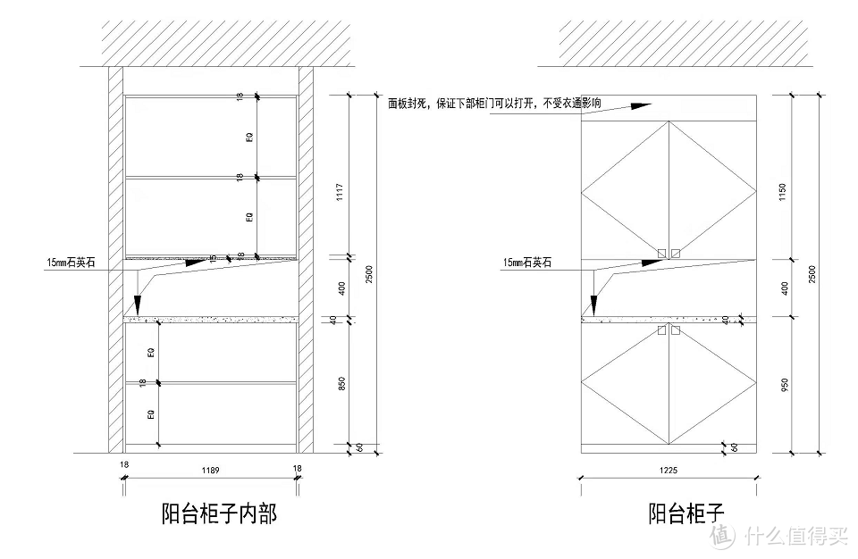
我们绞尽脑汁增加储物空间,决定把窗拆除填实,又加砌了侧墙,这才有地方打出下面这个橱柜来。
橱柜里面除了隔板外,还安装了一根横杆,是专门用来挂晾衣架、晾衣篮用的。
阳台橱柜的设计图也po上来:
跟卧室共用的墙体也掏空了,加了一个开放式的矮柜。
我们设想着可以放一些花花草草装点阳台,或者摆个篮子收收杂物都很不错。
洗衣机就放在这个角落里,进出不妨碍,挺好。
洗衣机选的是松下8kg波轮的,三口之家够用了。
看中这款起因是它的PCM彩钢机身,这种材料不怕日晒,适合放在阳台。研究后发现,它的洗净比、噪音控制、节水方面的数据也都很不错。再加上活动价格,果断下手。
而且因为不做台下式,波轮反而节省空间,售价也比滚筒更便宜。
阳台灯是公牛的,便宜够用。
这次全屋的灯具都是选了公牛。简洁的吸顶灯,没有多余装饰,适合小户型家庭。
除此以外,开关、插座面板也都同样是他们家的,老品牌电气产品质量信得过。
写到这里,这次装修心得就基本分享完成啦。
如果兄弟姐妹们有任何疑问,或者对装修有什么经验愿意分享,都欢迎评论区留言探讨。
攒文不易,请动动手指,给一杯点赞/收藏/评论/关注支持吧!
作者声明本文无利益相关,欢迎值友理性交流,和谐讨论~
版权声明:我们致力于保护作者版权,注重分享,被刊用文章【一居变两居装修案例(40)】因无法核实真实出处,未能及时与作者取得联系,或有版权异议的,请联系管理员,我们会立即处理! 部分文章是来自自研大数据AI进行生成,内容摘自(百度百科,百度知道,头条百科,中国民法典,刑法,牛津词典,新华词典,汉语词典,国家院校,科普平台)等数据,内容仅供学习参考,不准确地方联系删除处理!;
工作时间:8:00-18:00
客服电话
电子邮件
beimuxi@protonmail.com
扫码二维码
获取最新动态
