号外!号外!你们心心念念的福利来了~
更多室内设计学习文章,资料,教程,软件,插件,方案,施工工艺材料等可以关注私信小编,不懂的地方,欢迎大家留意交流
- 免费分享 -
以下案例为这套素材主要是——[成都]领地希尔顿嘉悦里酒店丨手稿+方案+效果图+施工蓝图+机电+摄影+建筑动画丨2.67G
如果你喜欢请点赞转发让更多想成为室内设计师的新人助理设计师也能看到
谢谢!希望我们能走的更远
【福利在文章最后】 千万不要不要错过!!!
资料内容包括:全套CAD施工图(图纸目录,施工图设计说明,平面图,立面图,节点大样,电气,暖通,能源计量系统,冷热源系统原理图等全部客房图纸)材料表,灯具清单,物料表,灯具清单,建筑效果图,动画视频,设计手稿,彩平图,设计方案PPT,施工实景,考察实景等
到达大堂——飞檐翘角,古景再现
希尔顿嘉悦里深谙当地文化个性,同时兼顾现代设计美学,致力于将每一座酒店都打造成其所在城市的完美缩影。成都领地希尔顿嘉悦里酒店当然也不例外。它的设计灵感便来源于成都旧时皇城、贡院和如今邻里街巷的日常生活;而每一个设计元素都源自对当地文化特色的精心提炼,包括市场、茶文化、川剧、辛辣美食和石板小巷等。从踏入酒店的那一刻起,旅行者就好似踏上了一场贡院科举赶考之旅,只属于成都的历史记忆与现代人文历历在目,鲜活动人。
鲜活设计人文精髓尽显
穿过城墙,进入皇城,开启赴考之旅。沿路巷子依旧,青砖灰瓦,木门铜环,飞簷翘角,挑子小贩,街角斜阳,书生朝著贡院的方向走去……
到达大堂内,我们将旧时的屋檐、贡院与现代设计感分解与重组,采用“东意西境”的方式,带你感受皇城旧址的魅力。
高悬的透明屋檐,与嘉悦里的品牌名Canopy相呼应,我们称之为:“你出行,我关“罩”。电梯厅悬挂的书生椅,则是以现代的艺术手法对古时贡院的场景重现。
大堂吧 30层平面图家具布置图
1F大厅平面图:
1F一层大堂大样图
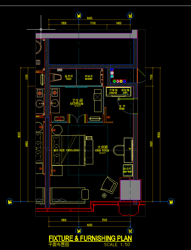
D2房型平面布置图:
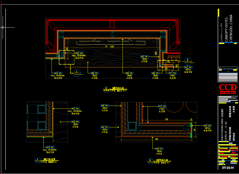
D2房型立面图
D2房型立面图
GM套房平面布置图
H无障碍房平面布置图
K2房型平面布置图
K5房型平面布置图
S1房型平面布置图
部分方案设计:
成都Canopy酒店方案设计一层平面图
成都Canopy酒店方案设计30层公共空间
30层大堂家具灯具选项
30层大堂家具灯具选项
版权声明:我们致力于保护作者版权,注重分享,被刊用文章【室内设计ppt案例(室内设计)】因无法核实真实出处,未能及时与作者取得联系,或有版权异议的,请联系管理员,我们会立即处理! 部分文章是来自自研大数据AI进行生成,内容摘自(百度百科,百度知道,头条百科,中国民法典,刑法,牛津词典,新华词典,汉语词典,国家院校,科普平台)等数据,内容仅供学习参考,不准确地方联系删除处理!;
工作时间:8:00-18:00
客服电话
电子邮件
beimuxi@protonmail.com
扫码二维码
获取最新动态
