项目名称 | 绍兴办公设计
项目面积 | 1000平方米
项目位置 | 浙江 · 绍兴
设计风格 | 现代+新中式
·
本次的案例主要打造一个高端的高端的洽谈型办公空间,主要用于大客户接待、企业产品展示以及日常办公等三大功能,整体风格围绕新中式风设计,旨意通过高端的空间展现专业和强大的企业形象。
BACKGROUND
项目背景
项目现场▽
甲方是一家设备产品销售公司,目标群体都是一些中大型企业公司,因为产品的原因,平均一次成交额就高达上百万的数目,但是这样百万级别的合作并不容易,合作前一般买方都要上门考察公司的各项指标。
根据洽谈习惯,每次客户团队上门时甲方都需要先宴请接待,然后再带客户参观了解企业和产品,所以办公室需要满足宴请和产品展示的需求。除此之外,公司的所有员工也需有相对应的办公场地,因此办公室的设计需要满足展示、办公、宴请三种功能。
项目现场△
现场的情况相对简单,结构上也比较宽敞,在平面布局上可以有很大的发挥空间。应甲方的要求,我们需要把空间的形象打造出高端、大气、上档次的高级感,最好是能通过办公室的形象展示企业的实力,让到访的客户眼前一亮。
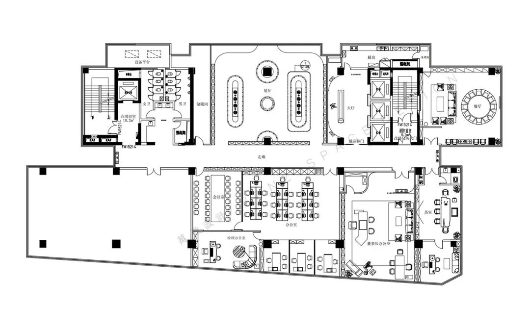
PLAN DESIGN
平面布置图
整个功能平面都使用了封闭式的布局手法,这样的手法虽然牺牲了空间的宽敞度,让办公压抑感明显,但是可以让每个独立的区域拥有相对安静的氛围,这样的布局主要是为避免客户到访时发出的噪音影响到整个办公室的办公氛围。
DECORATION MATERIAL
装修材质
地面采用了灰色花纹的大理石地砖,高级又耐脏,墙面选用了桃木墙柜和护墙板来连接整个空间,同时用白色裂纹的大理石来过渡空间,凸显空间大气美观的视觉。软装 上 结合了现代风格和中式风格两种类型的家具,通过古典与商务二者的融合,彰显空间蓬勃、高端的气息。
▽
DESIGN EFFECT
最终效果
设计总结 summary
多种使用属性的空间,可以根据不同使用的属性来划分空间的结构,但是要考虑功能之间存在的意义,即使是不同的属性的功能区域,只要是组合在一起就能发挥某些价值,那就根据价值体现来划分布局结构。
版权声明:我们致力于保护作者版权,注重分享,被刊用文章【展示空间设计案例(1000)】因无法核实真实出处,未能及时与作者取得联系,或有版权异议的,请联系管理员,我们会立即处理! 部分文章是来自自研大数据AI进行生成,内容摘自(百度百科,百度知道,头条百科,中国民法典,刑法,牛津词典,新华词典,汉语词典,国家院校,科普平台)等数据,内容仅供学习参考,不准确地方联系删除处理!;
工作时间:8:00-18:00
客服电话
电子邮件
beimuxi@protonmail.com
扫码二维码
获取最新动态
