家里的房子住了快20年,爸爸年纪大了,我想重新装修一下,一来解决老房子可能存在的水管电线老旧等潜在问题,另外也好住的舒服点。
一直以来就很喜欢日式简约的装修风格,大爱MUJI,希望这次装修改造可以顺利打造出属于我的木の家。
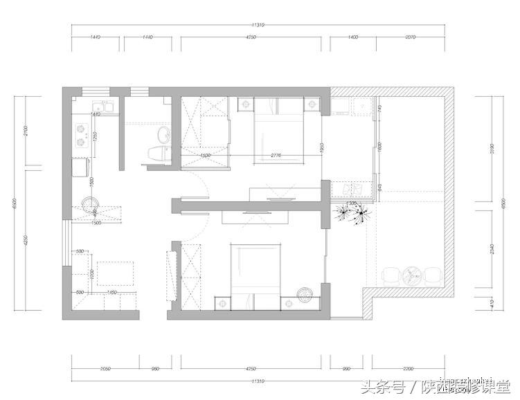
房型:两室一厅
建筑面积:67平方米(一楼的房子,有一个天井)
从准备到开工的这段时间一直纠结不断,好几次我都觉得实在太麻烦算了要么不装修了,还好我一开始准备装修的时候就告诉了几个好朋友,每当我准备“退缩”的时候就找她们聊天,让她们说服我不能放弃,还是继续我装修的漫漫长路。 【原始房型结构图】
[平面设计布局图]
最终确定的设计方案还是基本和我一开始的设想比较一致。这次重新装修几个比较大的改造地方主要是厨房、卧室和阳台。
厨房
老房型厨房和卫生间本来就比较小,还好我家本来就不太开火做饭,再加上我大爱的日式简约风格,所以厨房做成了开放式的,这样视觉上感觉好点不会太局促。
卧室和阳台
其实我们家2个房间的大小基本是一样的,只是主卧连接到了天井。原来的天井里主要是种了一些花花草草,还有就是堆放了很多杂物。
我有很多衣服鞋子(原来有2个大柜子加上好几个整)所以这次在卧室里从头到尾我都坚持要有一个衣帽间足够大到放下我所有的这些东西,考虑到空间性最终把2楼阳台下面的天井部分封到卧室一起。
装到门上了哦~~~
除了墙面,原来天花板的吊顶上也要先用水泥把钉子补平,板子之间的缝也都贴起来了,来张对比,左边是没有补平贴过的吊顶,右边是贴好以后的,批好墙以后就看不到这个样子了~~~
先是进门的鞋柜,半嵌在墙面里,以后弱电箱也会装在最右边那格。
然后是客厅的矮柜,这个矮柜准备两用,除了储物的功能之外,准备在上面定做软垫,所以高度也是做的60CM应该坐着正好,侧边也特意请袁师傅多留了10CM,这样软垫放上去就不会从边上掉下来了拍手无法显示
再来是衣帽间,这么看基本就是一个小储物间了
装完以后的效果还不错,天气不好拍出来的照片比较暗(厨房的光源还没安装)
照片里下面一张是自然光下的效果,上面一张是客厅里开了黄色灯光的效果
台面来的时候已经开好孔了,微调一下,七七八八的也从9点忙到中午1点多,还好事先付钱预定了台面包管,要是等今天到了现场让工人包都没有材料
钱师傅活做的挺仔细的,门板和门框上面一条也都帮我刷了油漆,摸起来不会毛毛的了~~~据钱师傅说后面还要最后上一遍面漆,到时候干透了颜色会更自然一些
松下的吸顶灯,装上去以后和我想要的效果一样,而且灯光很亮,开心
这个是在晚上开了吧台黄色光源下的效果
灯具2——客厅的吧台灯
吧台还没装,先把灯装上去了。左边是白天从卧室角度看到的样子,右边是晚上开灯以后的效果 ~~~
一样是松下的,白色边框和我家厨房吊顶正好配套~~~
灯具4——次卧吸顶灯
和客厅一个系列的松下吸顶灯,效果也是一样的喜欢~~~
主卧的灯其实纠结了很久,因为有个衣帽间的关系主卧的面积小的不少,所以不能和客厅还有次卧装一个系列的大的方形吸顶灯,然后还要和我以后会运来的床架什么的搭配,最终纠结了半天选了一个宜家的吊顶(其实还不是我最想要的感觉),选的理由主要是因为宜家的灯罩都一样,以后可以根据我想要的不太效果再来更换,先买了一个深色的~~~
灯具5——主卧吊顶(二)(晚上打开的效果)
灯具6——衣帽间吸顶灯
OPPLE的这个小圆灯超级亮,完全出乎我的意料,找知道这样我就不用额外在麻烦粱队给我搞一个夹在衣柜上的壁灯了~~~
同样是OPPLE的小吸顶灯,方形的一样“亮”是最大特点
这个漏拍了,回头和卫生间的卫浴五金一起补上,先上一张周师傅帮我装这个灯的工作照吧~~
这个就是让我之前纠结了很久的挂杆,装在煤气灶台右边的上柜下面,准备挂3层挂篮(暂时还没拆出来),主要用来放一些平时经常用的小瓶的调味品
水槽在窗台前面,右边是煤气表的箱子,没什么空间可以利用,我在窗台边上装了4个挂钩,至于有什么用,^_^,有些小得意的等毕业以后上图揭晓~~~
这个是帝朗卫浴五金里的一件,装卫生间里觉得用处不大,所以挪到厨房来了~~~
礼拜六忙活了不少事,最主要的是铺地板,从早上10点半开始,成堆的地板被一片片铺到我家原来的实木地板上,一直铺到下午,颜色是我想要的浅色,铺完以后效果还不错,就是有点滑,保洁好以后不知道还会不会这样。
厨房的大件基本完工了,后面要去买点小的置物篮、刀叉盘什么的放在橱柜和抽屉里~~~~
之前几天橱柜面板也都装好了,显示阳台洗衣区的大吊柜,网店买的洗衣池周师傅也帮我安装好了,就差吧洗衣机搬来了
客厅里的鞋柜和矮柜的门板也装好了,门板的颜色和我家房门还有门套的颜色差不多
L型矮柜上面定做了软垫,纯色棉麻质地,礼拜六就可以去拿了~~~
我坚持要的水曲柳、原木色、平板房门+不锈钢门锁
同样的水曲柳、原木色的窗套
没开灯墙砖和地砖的颜色和布纹不明显~~~
最早买的高仪的花洒和龙头,搬回家以后可以天天用了口水无法显示
周师傅说半柱盆很难装,他装了一个下午,换成其他的立柱盆他好装好4,5个了
台盆上面装的最简单的平面的镜子+可以旋转的直管造型镜前灯,整体组合起来就是我想要的效果。
这样看就可以看到半柱盆好的地方了,下面的空间可以放东西而且很方便打扫
白盆边上是科勒的马桶,地方小,只能挤一挤了~~~
以后准备装卫洗丽,所以先留带防水盒的插座
浴巾架装在了镜子右边、马桶的上面~~~
本来不打算黄转角蓝的,套餐里有,加上大小正好合适,所以也装上去了~~~
卫生间太小,单杆的毛巾杆最终只能装在台盆对面的墙上了,保洁的时候没擦干净上面还是一层灰,回头自己要好好擦一下~~~
浴霸也装好了,反正地方小就装了最简单的灯暖~~~
再补一张之前还没装好的微波炉架,装在了上柜下面靠墙的地方
水槽也装好了,一个简单的单槽,用起来顺手就好~~~
床垫还没来,先凑合着看看~
不用自己安装的床头柜,全木结构的,包括抽屉,虽然很简单
晚上拍不出实际的感觉,等下次阳光好点了再拍~
版权声明:我们致力于保护作者版权,注重分享,被刊用文章【一楼天井装修案例(一楼60平房子带天井)】因无法核实真实出处,未能及时与作者取得联系,或有版权异议的,请联系管理员,我们会立即处理! 部分文章是来自自研大数据AI进行生成,内容摘自(百度百科,百度知道,头条百科,中国民法典,刑法,牛津词典,新华词典,汉语词典,国家院校,科普平台)等数据,内容仅供学习参考,不准确地方联系删除处理!;
工作时间:8:00-18:00
客服电话
电子邮件
beimuxi@protonmail.com
扫码二维码
获取最新动态
