作为家居主编,我第一时间想到的就是当地各种又贵又逼仄的小房子。
说真的,我还是挺佩服香港的设计师的。因为设计小户型不像大户型那般只需做加法即可,小户型的设计,一方面需要面对紧凑、逼仄的空间格局,一方面又要满足业主很多“贪心”的需求,真的需要强大的思维能力,和充分的耐心~
这期要给大家分享的,就是一套来自香港的56㎡小宅,别看面积小,屋主一家人的需求可真不少:
“要住五口人(屋主夫妻,两个孩子,一个住家保姆),要充足的收纳空间,要独立的书房,要独立的玄关,要两个孩子+保姆姐姐都有独立的卧室,要相对宽敞的厨房,要具备宽敞的玩耍空间”
什么!五口之家挤进56㎡,还有这么多需求?也太贪心了吧!
▲原始户型图
其实,屋主一家人的“贪心”是可以理解的,因为当地楼价很贵,光是买下这样一套小房,就让一家人倾尽了所有,10年内或更久是不打算换房子的,所以就不得不把一切希望寄托在了设计师身上~
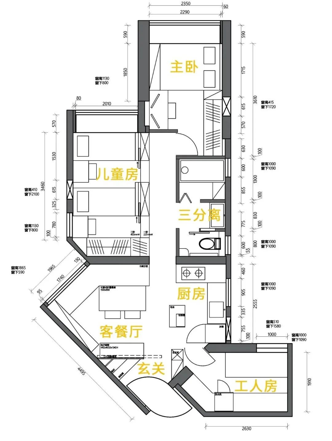
▲改造设计图
好在设计师也不负众望,恨不得把1㎡的空间拆成好几瓣用,帮助他们实现了所有“居住梦想”,入住后一家人的日子过得也是简单又幸福,太让人感动了~
下面就跟随我的脚步一起看看,相信这套小户型的设计,相信也能打动到你~
玄关柜+换鞋凳一体式的设计,尤为巧妙。
▲入户玄关(进屋第一视角)
定制的换鞋凳下方有双层镂空,常穿的鞋子尽数收纳,取用方便一目了然。换鞋凳上方则是匹配房型的三角玄关柜。为了确保采光不受阻挡,上半部分设置了百叶隔断,既能引入充足的光线,又能起到一定的遮挡作用。
▲玄关柜
玄关柜上方除了可以摆放装饰品之外,也可以收纳进出门常用的钥匙等小物件,搭配小巧的聚光灯,别有一番温馨气息。
▲全身镜
左侧靠墙还有全身镜,可谓是把空间利用到了极致。透过镜子,也能看到左边的备用鞋柜。如此,整个玄关的独立性、储物性、装饰性,都得到了保证。
▲正对玄关视角
白色的柜体从视觉上可以和白色的墙面更好融合,离远看也不会觉得特别拥挤凌乱,反倒是格外显得轻松、干净。
▲厨房(由餐厅改造而来)
原本的厨房面积改造成了工人房(保姆房)。
而现在的厨房则是由原来的餐厅改造而成,比较而言,现在的厨房面积比之前扩大了一倍,完美满足了屋主需要大厨房的需求:沿整个空间设置了L型大面积橱柜,并在中间设置了迷你岛台,厨房的功能得到了最大化提升。
▲烹饪区
由于是开放式厨房,所以特地配置了大吸力的油烟机,考虑到安全性所以改用了电磁炉代替传统燃气灶。下方空间也不浪费,嵌入式的烤箱、洗碗机应有尽有。
甚至转角区域都充分利用了起来,嵌入一台灵活的收纳小推车,存放常用的厨房工具,便于拖动到任何一处区域使用,非常方便顺手。
▲迷你岛台收纳区
岛台下方的空间也不放过,小型的零碎餐厨用具,就尽数收纳在这里,小巧的抽屉打开后,所有物品一目了然,取用方便。
▲水槽收纳区
经常沾水的锅具、厨具则收纳到水槽下方,连门背后都设置了整洁的挂钩区。不得不说,充足的、科学的收纳设计,才是解决小户型凌乱的根本。
▲客厅
“1㎡拆成了好几瓣用”,这样的形容真的不夸张。
镜头右转来到客厅,这里简直是“空间利用到极致”的真实体现。
像上图标注的这组小吊顶里,其实是藏着投影幕布的,可以遥控控制升降,随时开启影院模式。下方则摆放了钢琴,为大宝设置了专属的练琴区。
▲餐桌是折叠式可抽拉的
钢琴右侧富余的空间,设置了充足的吊柜+地柜,极简无拉手的柜门也降低了视觉上的突兀感,既满足的收纳,又满足了极简的颜值。
右侧便是定制的卡座式沙发,相比传统的成品沙发,这种是由下方的储物箱体,加上方定做的坐垫、靠垫打造的。不仅减少了卫生死角,定制化也能匹配房型格局更加美观,关键地步还能储存孩子们的不少玩具。
餐桌是折叠式的,打开后可以满足6人同时用餐。而一旁地柜的台面,则恰好充当了餐边台面的作用,一些生活的装饰品,常用的小电器都可以摆放于此,轻松取用。
小结:这其实就是典型的“去客厅化”设计,对小户型而言,抛弃传统客厅,设置多功能区会非常实用。
▲走廊过道柜子3D设计图
五口人居住的房子,杂物一定少不了。不想家里杂物无处安放全部堆在外面,那就一定要多装柜子。
▲走廊过道实景图
这套案例的柜子可以用“见缝插针”的布局来形容。瞧瞧,一个小小的过道都要装满柜子,打通了原来房间的墙体,直接用柜体来代替水泥墙体,这样就可以把储物空间发挥到极致了。
代替墙体的柜体朝外开门,过道自然就变成了一个备用的超大储物间。内部的房间整体抬高,设置成代台式,这样就不需要床架了,直接铺设床垫就能睡人。
而地台的侧面则设置成了抽屉,有能存放不少杂物。
▲过道柜体的收纳细节
有了这些柜子,各种生活用品,清洁工具,都可以合理有序地收纳到位。设计师甚至还特地为屋主打造了扫地机器人的充电专属收纳位,太贴心了。
不仅柜子多,柜子内部的收纳布局也要利用到极致,搭配一些实用的储物盒,能让储物性能再提升一倍不止。
▲儿童房3D设计图
▲儿童房
走进儿童房内部,可以看到除开前面提到的地台抽屉之外,内部地台区域全部采用了上翻盖的榻榻米设计,加上侧面一整面墙的顶天立地大衣柜,真是完全不必担心储物空间不够用了。
▲可以直接开启休闲、阅读模式
这个超大儿童房是由原来的客房和储物间打通后改造而成。
至于睡觉,直接在榻榻米地台上铺上床垫即可,这样孩子们不仅有充足的玩耍空间,也能拥有相对独立的睡眠区域,共处一室又各占一边互不干扰。
儿童房的采光很不错,偶尔过节日的时候,这个空间也可以用来办临时的家庭part,比如圣诞节的时候~
而为了方便进出,儿童房保留了双门洞的设计,门扇采用了嵌入式隐藏折叠门,两扇门中间的结构就是门扇隐藏的位置,不仅更加节约空间。而且这个区域还可以装上洞洞板,用来收纳一些孩子们的文具,不仅实用而且好看。
▲主卧,阳光之下慵懒温馨
延续了和儿童房一样的设计理念。不过相对于儿童房,没有整个房间都设置地台,而是设置了窗台区域的位置。作为备用收纳区的同时,也可以作为一个休闲的飘窗。
飘窗柜下面就是卧床区了,为了节约空间舍弃了传统成品床架,直接定制了非常厚实的床垫,并在床尾设置了合理尺寸的床头柜,以满足屋主睡觉前喜欢看看电视的习惯。
▲床下是满满的储物空间
▲电视柜小细节
除了摆放电视,也可以是摆件、生活用品的置放区,太实用啦~
▲办公区、衣柜区
男主需要的“独立书房”也实现了,就在主卧的入口处,虽然不是严格意义上的全封闭式空间,但起码是一个专属的办公区域,凳子收纳起立时也不会影响背后的过道,这空间利用可以说是淋漓尽致了,超大的衣柜也在左侧安装到位了。
▲卫生间3D设计图
▲洗漱区
家里原本虽然有两个卫生间,但都十分的狭小逼仄,所以干脆就两个打通后,改造成了一个更大的日式三分离卫浴。
三分离卫浴的好处在于,洗漱区、洗澡去、如厕区域,都可以完全分开使用,这样家庭成员之间互不干扰,节约时间也提供空间利用率。
▲沐浴区
▲马桶区
▲全屋3D模型图
由于房子面积是在太小,相机实拍很难排到全景图,如果对户型格局还是不了解的读者,可以参考以上这张全屋3D模型图,就能一目了然了。
保姆房由于屋主没有提供图片,就遗憾不能展示了。具体位置在上图箭头标注处。(原来厨房的位置改造而成)
房子虽然不大,但依靠良好的设计规划,一样能满足各种功能需求,兼备充足储物收纳,也难怪一家人的日子能过得简单又幸福。看完本文后,你们觉得这篇案例改造怎么样呢?欢迎在评论区发表你的看法,感谢阅读!
版权声明:我们致力于保护作者版权,注重分享,被刊用文章【独立式住宅案例(香港一家5口挤进56)】因无法核实真实出处,未能及时与作者取得联系,或有版权异议的,请联系管理员,我们会立即处理! 部分文章是来自自研大数据AI进行生成,内容摘自(百度百科,百度知道,头条百科,中国民法典,刑法,牛津词典,新华词典,汉语词典,国家院校,科普平台)等数据,内容仅供学习参考,不准确地方联系删除处理!;
工作时间:8:00-18:00
客服电话
电子邮件
beimuxi@protonmail.com
扫码二维码
获取最新动态
