我是云栖建筑小编,每日分享乡村建房精美案例,点击上方“关注”,每日获取最新精美案例呦~
项目名称丨北京平谷赵家现代民宿
项目位置丨北京平谷
建筑尺寸丨14.28*22.16m
占地面积丨194.33㎡
建筑面积丨194.33㎡
建筑风格丨现代
结构形式丨砖混结构
——
你是不是也有一个这样的田园梦,走遍人生的山山水水,最美的仍是心中那一片诗酒田园。
场地现状
该项目位于北京平谷,建筑现状为一层毛坯房,客户租过来计划改造成现代民宿。
场地位于一处山地中, 周边基本都是被绿植覆盖,西侧是山体,北侧基本和场地齐平,东侧和南侧都要低于场地标高,进入场地的主入口是南侧,南侧是自家场地,计划做露营基地。
东南侧人视图
东侧人视图
遵从目前房屋主体进行改造,利用原屋顶挑檐增加层次,形成进退有序的立面层次。
建筑主色调为白色,檐口部分采用深咖,通过材质区分加强形体构成。整体建筑保持极简流畅的线条感,进一步提升空间的自然与纯粹。
门窗和栏杆大部分采用木色,为整体氛围增加温暖质感。
庭院局部人视图
梳理布局功能时,围绕山地的地域属性,主房用作民宿居住,大落地玻璃在建筑中起到了连接室内外的功能,让室外景色映入空间,空间与自然进一步融合,满足了人们对自然纯粹的向往。
辅房用作客餐厅及卫生间,满足南侧露营基地的需要,也满足了客户对于民宿经营的需求。
庭院局部人视图
庭院做了下沉式卡座与火炉结合,在比例平衡的构造中感受空间的极简美,冬季可烤火,夏季可乘凉。
西侧围绕弧形护坡墙,做了台阶设计,上到护坡的平台, 在通过钢楼梯可到达南房的屋顶,整个打造成共享露台,丰富活动空间,同时提供良好的观景视野。
庭院局部人视图
东南侧鸟瞰图
庭院部分利用现有的三棵树造景,一处和台阶结合, 一处和户外休闲长桌搭配,还有一处位于硬质铺地中, 做树池处理,填充灰色鹅卵石。
东侧的围墙做递增式设计,由南向北逐级增高。正对庭院和卧室窗户的位置采用斜向木格栅,增加通透感。
客厅效果图
建筑的南侧是民宿的多功能区,增设了客餐厅、棋牌室等多样化的公共空间,让朋友们在田园里尽享相聚时光;
客房效果图1
客房效果图2
情侣房效果图
在客房设计中,每栋房都有不同的设计主题,让住客在这里能够体验到不同的生活场景。
计师从民宿运营角度出发,针对不同功能需求与场地元素做结合,空间的意义不再因为距离而变得局限。
卫生间效果图
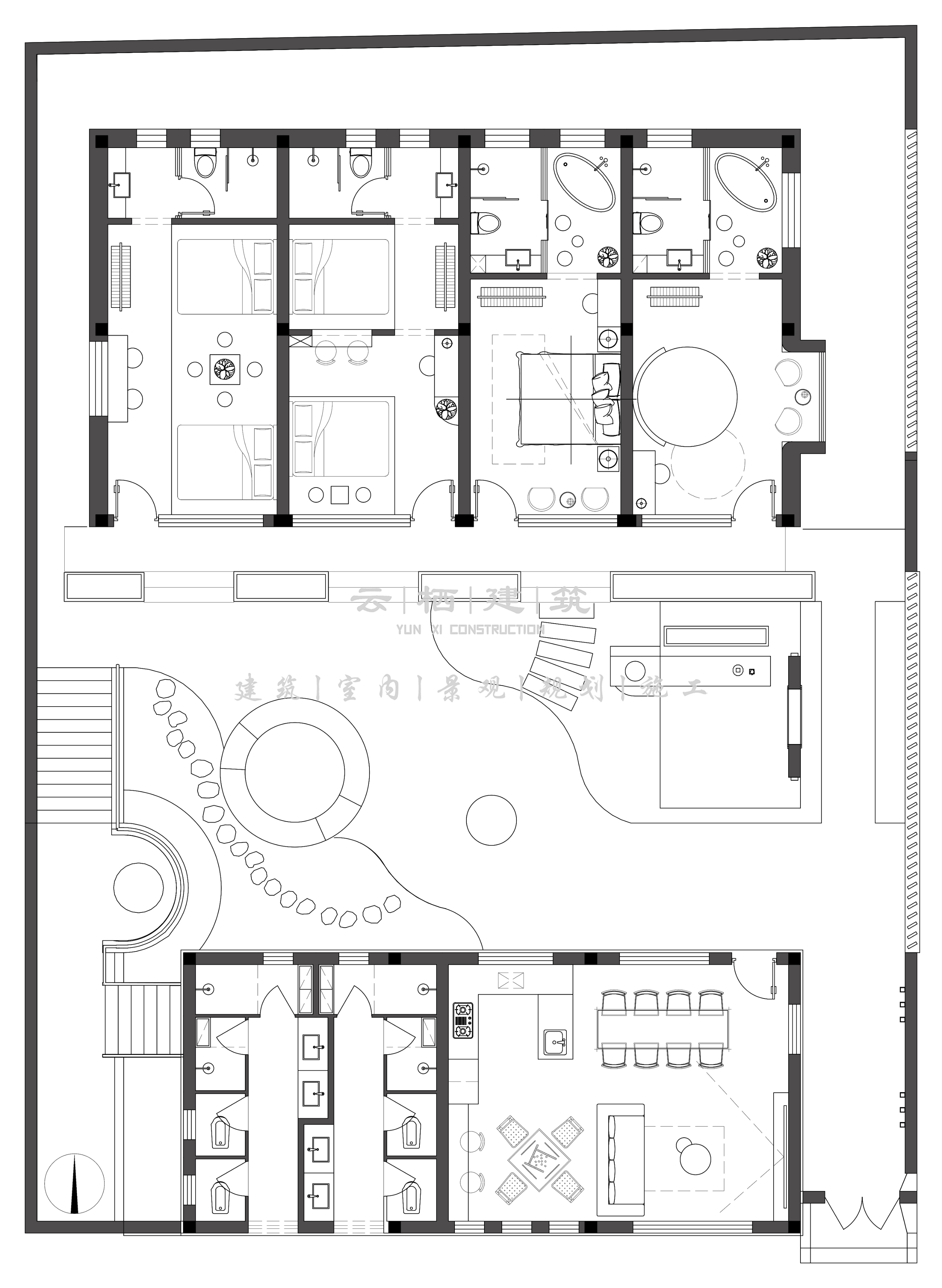
一层平面图
在功能性的设计上,设计师加入了许多考量,以现代化的生活视角,增设棋牌、剧本杀、厨房等空间,进一步融入美好的度假体验。
在小溪边,鸟鸣中,阳光下,喝一杯茶茶或现磨咖啡,吃几块糕点,和朋友聊一聊往事,亦或是读一本书,或者只是单纯的发发呆,都是繁忙都市里难有的惬意享受。
愿我们每个人心有所属,奋斗有标
盖房子是大事,一生只一次
我们建的不仅是房子,更是生活
云栖建筑
设计改变生活、让一切从美好出发
建筑丨室内丨景观丨规划
版权声明:我们致力于保护作者版权,注重分享,被刊用文章【乡村规划设计案例(北京平谷丨一层民宿改造项目)】因无法核实真实出处,未能及时与作者取得联系,或有版权异议的,请联系管理员,我们会立即处理! 部分文章是来自自研大数据AI进行生成,内容摘自(百度百科,百度知道,头条百科,中国民法典,刑法,牛津词典,新华词典,汉语词典,国家院校,科普平台)等数据,内容仅供学习参考,不准确地方联系删除处理!;
工作时间:8:00-18:00
客服电话
电子邮件
beimuxi@protonmail.com
扫码二维码
获取最新动态
