大家好~!这里是魔都小房弟团队
买房记得找小房弟哦,以下是正文:
松江,五大新城规划中唯一一个承载百万人口的新城。板块依靠大学城、特色文旅、战略文创以及G60科创走廊等多线发展,使得其发展稳坐五大新城前列。
板块内,目前通车的9号线,更是因为直通市区几个重要商圈,沿线的几个板块成为刚需上车的集中地。
这次小房弟团队带大家盘点下松江区今年入市的各个新房项目,尤其是一些热门板块和新房。
九亭,松江区最接近市区的板块,与闵行区相连接,板块内轨交9号线东西贯穿。板块内,整体界面一般,商业体内实际人流量并不高,商业内部关店率较高。
由于板块供应量大,且新房价格不高,造成二手价格一直上不去。板块内,新房受限价影响,开发商整体出售意愿普遍不高,部分楼盘甚至有加装包以及各类你懂的费用。
贝尚湾:就是让你买不着
项目位于松江九亭沪亭北路,距离地铁站约1公里。周边配套还算齐全,商业、交通都还算方便。
作为九亭板块的老社区,项目体量非常大,且已经开了好几期。有几个粉丝和同事都有在该小区置业。
这次的翰庭位于整个项目的南侧,共9栋高层住宅,均价4.8w。本次出售的是项目最后的4栋约200套住宅,户型约104-175平3-4房。
注意要点:项目本身位置,和小区品质,基本可以说是目前九亭最好的。此外,几乎现房交付,价格理性,都是项目优势,但是项目具体开盘时间未知,项目似乎并不急于开盘出售。
洋江唐顿公馆:非常规买法才能买到
项目位于九亭九新公路,距离九亭医院非常近,且步行到地铁站距离为1.3公里。
项目参数上,为准现房、高绿化率(68%)、全人车分流(车位比1:1.2)、全变电站入地、3.15米室内层高、容积率1.8。整体定位偏向于品质上车+改善。
户型方面,有95平的两房一卫,135㎡3房2卫。
注意要点:项目几乎承袭了九亭限价后的传统,要不进不了售楼处,要不找不到销售。
唐顿公馆之前有过开盘,反正想买的粉丝懂得都懂,超低的认筹率不是没人要,是根本要不到。
奥林匹克花园:
奥园的资金链务必关注
项目位于九亭镇涞亭北路,靠近贝尚湾,位置上介于9号线九亭和中春路站之间。北侧就是松江九亭第三小学。
三期由10栋小高层组成,其中有1栋是回迁房,产品大致为建面约80-150㎡,规划套数约490户,车位约588个。
注意要点:项目无论是户型还是价位总体都还算是相当不错的,目前最大问题在于开发商奥园的负债情况。
在当下大量暴雷的大背景下,期房有风险务必每个购房人需要注意。
泗泾,作为这个松江的刚需上车的集中地,素有“上下班高峰,能把人挤到流产”的说法。当然这也侧面印证了泗泾,有着大量的刚需自住人群。
板块内,商业主要在地铁站周边,不过能级并不高,以9#线为界,北侧以商品房为主,而南侧虽然配套较多,但是也存在大量动迁房,且城市界面较乱。
泗泾格力项目:
户型奇特的塔楼项目
泗泾格力项目位于泗泾祥严路横港公路,周边配套齐全。交通上,项目步行至9号线泗泾站约800米。
根据规划,项目将建造成一个高层、少量多层和小高层的混合小区,另有带一幢商业楼。共10幢住宅。预计推出建面约54-105㎡1-3房。
注意事项:项目作为塔楼,在当下市场中户型设计本身并不讨巧。就是大家平时说的不够正气。
位置上,有了两个之前买的火热的几个邻居,招商9号公馆、泗水和鸣、融创泗泾壹号公馆。由于其面积小,上车门槛低,预计项目分数至少达到60。
泗泾绿中海:
当泗泾没有地铁,会卖的好吗?
项目位于松江泗泾鼓浪路上,距离地铁站约2公里。做地铁从九亭至泗泾时,可以看到项目高高立在那里。泗泾绿中海是由台湾宝路集团开发,小区9栋16-30层的新中式住宅组成。
外立面采用的是天然石材和真石漆,屋顶采用四面斜坡设计。楼盘共分为南北两个地块,以社区内部商业街为分界线。北地块已交付入住,南侧是即将开售的商品房,共1249户。
户型上,户型建面卫87-133平的2-3房,约3.1米层高、约81%得房率。
注意要点:绿中海,坐地铁前往泗泾站时,就能看到这个盘。泗泾置业,总体上以两部分人群为主。
一是刚需上车,这一类人群,到地铁站的位置、周边的商业配套非常重要;而对于另一类改善型人群,类似之前金地西郊风华之类大尺度大面积的别墅项目。
而绿中海是两样都不沾边的存在,类似于去年开盘的同济晶萃。小区类似塔楼的户型通透性不佳,楼层密度大,产品力不强。
如果后期定价再高,那这个盘也就主要适合分数较低的购买人群。
松江新城作为五大新城中发展较早的板块之一,依托于松江河姆渡文旅以及大学城吸引了一大波人口的入住。
此外,还斥资了120亿打造的松江EBD,将整个板块的居住属性抬高至一个新的高度。板块内,无论医院学校、绿地、商场、交通均有很好的配套,加上板块内本身就有一定体量的产业配套,自住属性较强。
价格上,松江不同于其他,并没有按照环线进行价格分布,而是走出自己的独立价格体系。新城的价格要高于靠近市区的泗泾九亭。
金地丰盛道:
新城的最大体量拿地项目
项目位于松江新城茸凯路长水街。距离最近的商业体松江万达步行1.7公里,作为松江最大体量项目,项目总户数达到了1880户。
小区风格偏现代,以玻璃外立面为主,搭配金属装饰。
本次三期主推面积90-99平的3房。
注意要点:不同于其他板块有较强的新房二手倒挂的巨大差价,金地丰盛道与周边二手并没有太大的倒挂差价。项目周边学区小学较为一般,但是初中对口的云间相当不错。
5.1万/平的单价相比于印象城周边的地块性价比优势明显,当然两边的项目在环境上差别很大,金地丰盛道周边环境安静整洁,更适合于低分改善人群、投资上只能说相对一般。
中骏璟荟:贵,但也不亏
项目位于松江大学城区域广富林路顺康路,距离地铁站步行距离约2公里,不过边上不远就是松江印象城店。
这里这一说的是,项目对口松江华政附属概率较高,算是个有不错学区概念的新房项目。
项目分南北两个地块,南地块打造为3幢高端商务楼与松江新城共建科创策源地;北地块为10幢住宅,共约517席。
两个地块中间是配套商业内街。小区产品为洋房+小高层,洋房一梯两户,高层两梯四户。
项目将首推建面约89-125㎡3-4房,主力户型分别为建面约89㎡3房1卫、约99㎡3房2卫、约125㎡4房2卫。
其中,小高层得房率约77-78%左右,洋房得房率约82-83%左右,超高的得房率搭配约3米的层高
注意事项:项目位于松江新城印象城一侧。作为松江最火商业体,这周末商场周边的停车情况就能发现项目未来一定会十分热闹。
项目5.8万/平的均价真心很贵,所以开发商中骏在交付配置上也是做足功夫。项目在学校上对口华政系附属,在松江本区内有一定好评。
总之,5.8万这个价格很贵,但是不亏。
首创禧瑞云庭:
北京国资委,应该算比较稳了
项目同样位于松江大学城板块,就在首创的隔壁。配套上,几乎可以说和中骏璟荟一样。
21年6月,首创以总价213495万元竞得的松江区广富林街道SJC10004单元2街区24-01号地块,房地联动房价:5.8万元/平。
户型上,项目主打87-115的3房。
注意要点:项目就在中骏璟荟隔壁,相比璟荟,唯一担心的是开发商前期资金踩到红线。但好在首创隶属北京国资委,有国资背景相对稳妥。
目前交付品质未知,小房弟团队会后期继续更进。
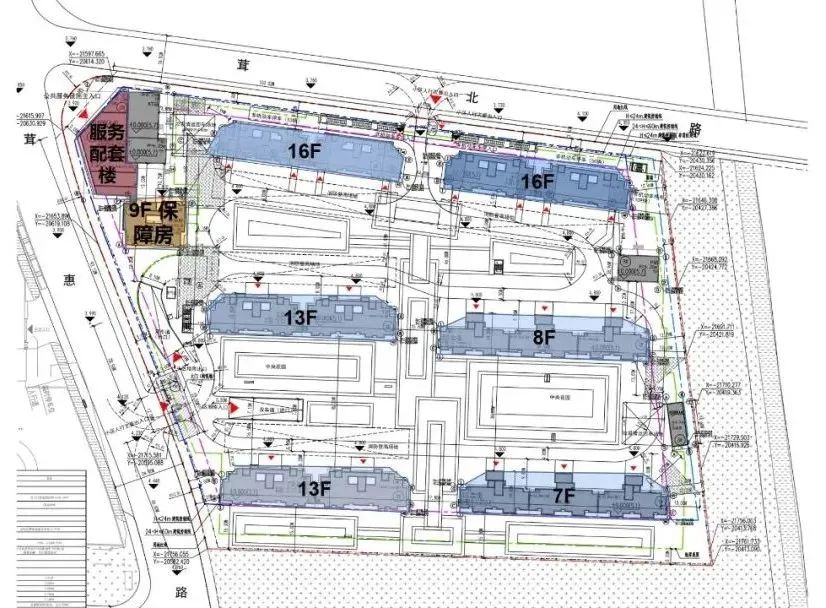
松江恒都中山街道地块
项目位于茸北路、茸树路,距离9号线松江新城地铁站2.5公里,距离G60松江东出口较近。商业方面,距离万达商圈距离约3公里。此外,3公里内还有松江第一人民医院等配套。
2021年11月,上海恒都以11.22亿竞得松江区中山街道SJC10010单元40-01号地块,成交楼板价25390元/㎡,溢价率8.97%,房地联动价4.71万/㎡。
由6栋7-16F的住宅+1栋9F的保障房+部分配套用房组成。
其中,1#为7F层的洋房、2#4#为13层的小高层,3#为8层小高层、5#6#为16层小高层,7#为9层的保障房+社区配套用房。
金地新乐里:
那是一个上海人都不怎么会去的地方
位于车墩板块,距离车墩站直线距离约1.1公里。坐车3站直达上海南站,无缝换乘1号线后3站可达徐家汇,更可在上海南站换乘15号线,去往普陀、长宁等金融商圈。
项目规划总户数1471户,其中保障房154户、商品房1317户。项目产品含盖高层、洋房、别墅。
产品方面,主力户型为建面约91㎡的3房2厅1卫、建面约98㎡的3房2厅2卫、建面约102-135㎡叠加别墅。
注意要点:讲实话,车墩这个地方我也就小时候春游去过,位置很偏。如果不是当地上班人群,务必谨慎考虑。
说这盘好的大V们,你们要是信他们的话,那我无话可说,买就完事了。
佘山望:低预算的别墅
项目位于松江佘山板块沈砖公路,隔壁就是去年开盘的国贸佘山原墅。项目周边环境较好,但其他配套目前并不多,只有一个学校规划。
2021年6月,雅居乐以总价25.61亿,竞得松江佘山镇G7SJ0002单元11-07、14-01号地块,成交楼面价25180元/平。
项目即将推出建面约90-168㎡叠加、联排。
注意要点:喷他的粉丝,我想说其实没有大家想的那么差。毕竟,类似预算段,低分客户能买的别墅,除了这里其他选择也不多了。
说他好的粉丝,如果要买,我也建议再三考虑。毕竟松江别墅,如果是投资人群,未来流动性未必有想的那么好。
就算边上有学校规划,但是周边配套没起来还是肉眼可见。相对适合,低积分的改善型购房人群。
香港兴业国际松江洞泾地块
2021年11月,香港兴业国际以8.3亿元竞得松江区洞泾镇SJS30003单元02-04号地块。
项目信息:
四至范围:东至培沟溇支河,南至蔡家浜路,西至培沟溇,北至培沟溇支河
土地用途:居住用地
出让面积:29571.5㎡
起始总价:76443万元
容积率:1.1
成交总价:83040万元
成交楼板价:25528.2元/㎡
溢价率:8.63%
竞得人:香港兴业国际
房地联动价:50600元/㎡
如果你有感兴趣的楼盘,可以随时找小房弟聊聊,欢迎大家咨询,有优惠哦!
版权声明:我们致力于保护作者版权,注重分享,被刊用文章【松江大学城附近房价(2022年松江新房指南)】因无法核实真实出处,未能及时与作者取得联系,或有版权异议的,请联系管理员,我们会立即处理! 部分文章是来自自研大数据AI进行生成,内容摘自(百度百科,百度知道,头条百科,中国民法典,刑法,牛津词典,新华词典,汉语词典,国家院校,科普平台)等数据,内容仅供学习参考,不准确地方联系删除处理!;
工作时间:8:00-18:00
客服电话
电子邮件
beimuxi@protonmail.com
扫码二维码
获取最新动态
