The Kids Museum of Glass 2.0
玻璃主题博物馆 2.0
考迪迅建筑设计作品
▲ Art & design museum for kids ©协调亚洲
儿童玻璃博物馆 2.0 是为年轻观众打造的当代艺术与设计博物馆,由玻璃工作车间改造而成,占地 2,320 平米。为儿童设计的内容结合探索性的参观体验,鼓励孩子们独立自主的学习。对比强烈的黑白色调主宰博物馆空间,凸显展品、屏幕与装置上缤纷绚烂的色彩。黑色的金属阶梯、平台以及定制的玻璃砖墙被嵌入开放空间中,与原本的木造结构和裸露砖墙形成一场关于“旧与新”的对话。大胆抢眼的平面设计与定制的柔软地板将观众们包围在独特的沉浸式环境中。
▲前台欢迎处 Welcome counter©协调亚洲
博物馆展览在多个层面吸引观众互动,所有展品由一个寻宝游戏串联,邀请观众们在空间中寻找线索。互动性十足的博物馆让孩子们主导参观体验,探索更多他们感兴趣的主题,并积极主动学习关于玻璃、环境、科学、科技、艺术、设计与人类文明的知识。多媒体与数字内容在展览设计中扮演着重要的角色,包含一个镜子迷宫、声音装置、一个追踪动态的互动展项以探讨与玻璃相关的各种主题视频。
儿童玻璃博物馆还设有大型工作坊空间,带有烧制玻璃的窑炉与灯工工作台。灵活的空间能够用来举办临时展览和活动,也能容纳大型的学校团体。
▲大量使用颜色对比 Colour contrast
©协调亚洲
▲可用作小讲堂的大阶梯 Staircase for lectures
©协调亚洲
▲儿童友戏空间 Kids-Friendly play room
©协调亚洲
原玻璃工作车间的木结构天花以及外露的砖墙都被保留下来,保存原本空间的韵味。在12米高的原有屋顶下,黑色金属的平台与阶梯被嵌入到开放式空间中,为空间创造了层次感。定制玻璃砖构成的透光墙面让自然光充满整个空间,而玻璃砖上的纹理模拟旧工厂里金属板上的纹路。这些微妙的细节都是建筑记忆的印记,开启一场关于“旧与新”的对话。
对比强烈的黑白色调主宰博物馆空间,凸显展品、屏幕与装置上缤纷绚烂的色彩。动态灯光装置贯穿博物馆,营造出充满活力的气氛。大胆抢眼的墙面平面设计以及带有博物馆吉祥物图案的定制柔软地面,让观众沉浸在一个独特的环境之中。在选择材质的时候,孩子们的行为模式都被纳入考虑,例如展柜上的强化玻璃让孩子们能够站立、行走其上,甚至蹦蹦跳跳。
儿童玻璃博物馆 2.0 提供了一个环境,在此孩子们玩乐的向往与家长希望孩子学习的愿望都得以满足。博物馆的设计展现打造一座当代文化与教育目的地的愿景,提供年轻的都市人以及家庭一个参与艺文生活方式活动、共同欣赏艺术文化的平台。
▲Black steel staircase inserts ©协调亚洲
▲Light through glass brick wall ©协调亚洲
▲Connecting lights ©协调亚洲
▲Artistic installation ©协调亚洲
▲Exhibit Island ©协调亚洲
▲Layers in space ©协调亚洲
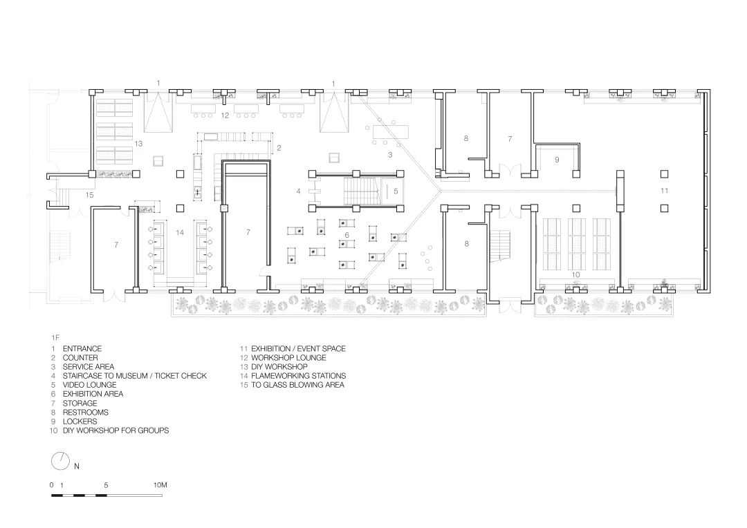
▲一层平面图 FLOORPLAN1 ©考迪迅
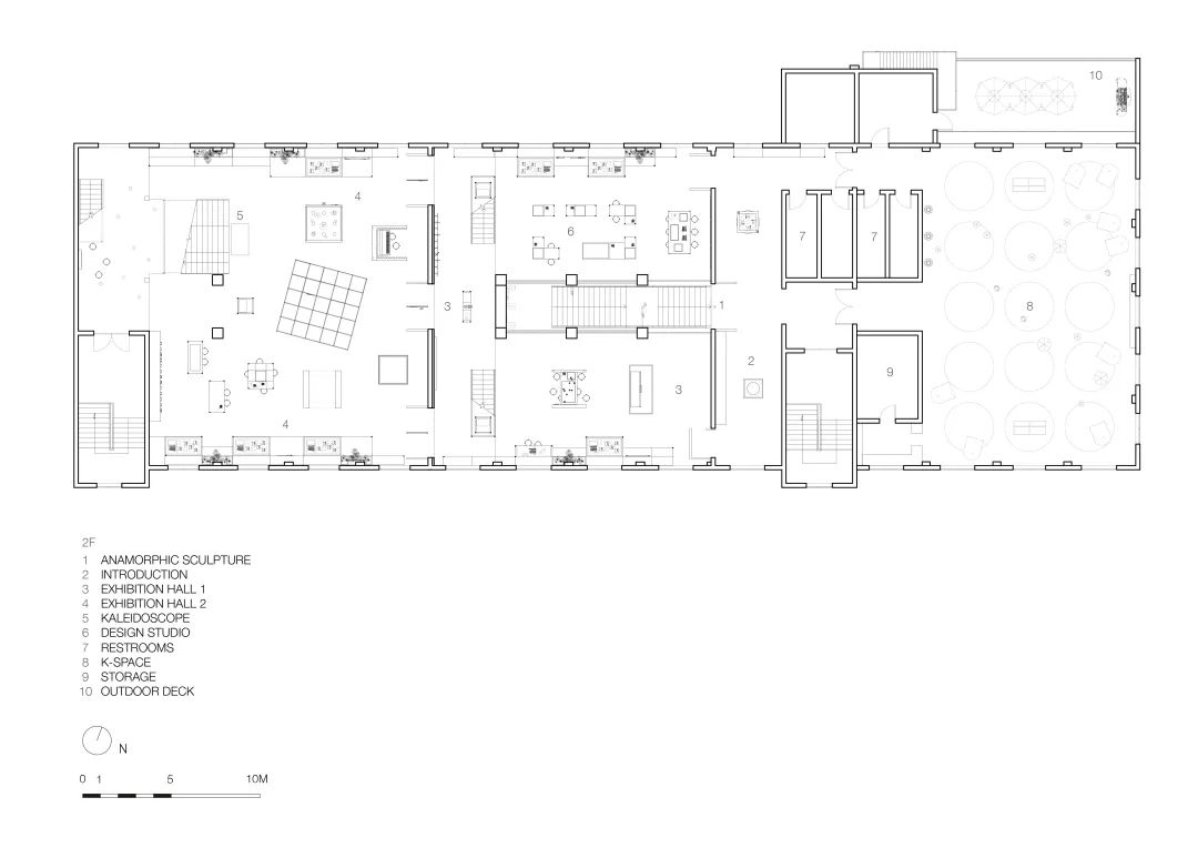
▲二层平面图 FLOORPLAN2 ©考迪迅
▲轴测图 Isometric ©考迪迅
/
项目名称:儿童玻璃博物馆 2.0
设计方公司名称:考迪迅(上海)建筑设计咨询有限公司
主创及设计团队:迪尔曼·图蒙、殷琦洛·戴维、玛珐、陈怡君、文思宁
设计和完成的年份:2019年~2021年
项目所在地点:上海
建筑面积:2320平方米
业主:上海集佳文化创意发展有限公司
摄影:协调亚洲
/
设计说明部分撰文 |考迪迅建筑设计
编辑 | 《城市 环境 设计(UED)》新媒体部
版权声明:我们致力于保护作者版权,注重分享,被刊用文章【学校设计说明(儿童玻璃博物馆2)】因无法核实真实出处,未能及时与作者取得联系,或有版权异议的,请联系管理员,我们会立即处理! 部分文章是来自自研大数据AI进行生成,内容摘自(百度百科,百度知道,头条百科,中国民法典,刑法,牛津词典,新华词典,汉语词典,国家院校,科普平台)等数据,内容仅供学习参考,不准确地方联系删除处理!;
工作时间:8:00-18:00
客服电话
电子邮件
beimuxi@protonmail.com
扫码二维码
获取最新动态
