转载自建筑结构《某超限结构及连体钢桁架性能化设计》作者:周伟星, 孙文波, 郭成志
[摘要] 某科研大楼为超限高层建筑,建筑结构平面呈U 字形,顶部两层通过跨度约30m 的钢桁架结构连接成封闭的口字形,为局部连体结构。介绍了该结构整体的抗震设计性能化分析历程,重点阐述了连体钢桁架的结构性能化分析要点和方法,从力学基本概念和工程应用实践出发,提出了将连体钢桁架视为一个整体构件进行性能化设计的方法,取得了良好的效果。
[关键词] 超限高层建筑; 连体钢桁架; 性能化设计
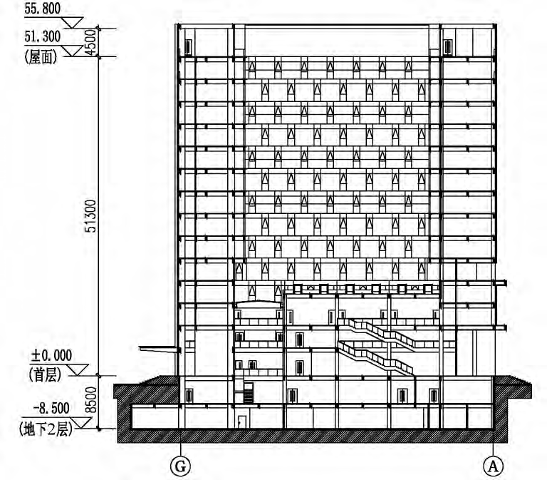
某科研大楼位于山西省长治县,总建筑面积约26 200m2,地下2 层,地上15 层,建筑总高度55. 80m,结构高度H = 51. 30m。建筑效果图、剖面图及连体结构平面布置图如图1~3 所示。
工程的抗震设防烈度为7 度,设计基本地震加速度为0. 10g,设计地震分组为第二组,建筑场地类别为Ⅲ类,特征周期为0. 55s。建筑抗震设防类别为丙类。结构的设计使用年限为50 年,建筑结构安全等级为二级,结构重要性系数γ0 = 1. 0[1]。
图1 建筑效果图
图2 建筑剖面图
工程主体结构采用钢筋混凝土框架-抗震墙结构+顶部钢桁架连体结构。结构整体计算模型如图4 所示,标准层结构平面布置图如图5 所示。利用角部的楼梯间及其邻近一跨布置钢筋混凝土抗震墙,其余部位根据建筑平面布置钢筋混凝土框架,形成框架-抗震墙结构抵抗水平荷载; 顶部采用钢结构桁架将开敞的顶部结构连成封闭的整体。钢结构桁
图3 连体结构平面布置图
图4 结构整体计算模型
图5 标准层结构平面布置图
架连接两端的混凝土结构并承受竖向荷载,桁架固定在两端混凝土墙柱之上。
本工程抗震墙厚度为250~400mm,主要框架柱截面为700×1 200,600×900,600×600,主要框架梁截面为400×800,350×700。墙柱混凝土强度等级由下至上为C50~ C35,梁板混凝土强度等级为C35 ~C30。钢结构桁架的主要弦杆截面为H600 × 400 ×26×35,腹杆截面为H500 × 400 × 30 × 35,钢材为Q345B。
工程主要的超限不规则项有: 1) 扭转不规则;2) 结构平面凹凸不规则; 3) 构件间断———顶部钢桁架连体; 4) 承载力突变———顶部钢桁架连体处承载力突变[2]。
针对本工程的超限不规则项,采用了以下应对措施[2]:
( 1) 针对扭转不规则,采用空间结构计算模型,考虑结构的不规则性并计入扭转影响,考虑偶然偏心和双向地震作用。
( 2) 针对结构平面凹凸不规则和楼板开大洞,采用PMSAP 对楼板进行分析验算,并采取楼板双层双向配筋、楼板局部加厚并提高配筋率等措施。
( 3) 针对由顶部钢桁架连体引起的承载力突变,采用空间结构计算模型,薄弱层的地震剪力乘以不小于1. 25 的增大系数,并进行罕遇地震作用下的弹塑性变形分析。对顶部钢桁架及其下部支承构件采取更高的性能目标。
( 4) 采用两个不同的软件对结构进行分析计算; 采用时程分析法进行多遇地震下的补充计算; 同时采用静力弹塑性分析方法和弹塑性时程分析法进行罕遇地震作用下薄弱层的弹塑性变形计算。
根据项目的实际条件,本工程抗震性能目标确定为C 级,关键构件包括抗震墙和结构顶部连体钢桁架,耗能构件主要为抗震墙连梁。结构顶部的连体钢桁架为大跨度结构,其上下弦杆、腹杆、杆件间节点以及与主体结构连接的节点均为关键构件[3]。连体钢桁架在多遇地震、设防烈度地震及罕遇地震作用下的振型分解反应谱法( CQC 法) 分析中均已考虑了竖向地震作用的影响。主要结构构件的性能目标如表1 所示。
经过分析和验算,表1 中所有构件的验算结果都满足相应的性能目标的控制要求。设计中采用时程分析进行多遇地震下的补充计算,共选用了7 组地震波( GM1~ GM7) ,其中5 组天然波和2 组人工波。分析表明,每组地震波计算所得结构底部剪力均大于CQC 法计算结果的65%,且7 组地震波计算所得结构底部剪力平均值大于CQC 法计算结果的80%。7 组地震波的平均地震影响系数曲线与CQC法所采用的地震影响系数曲线在对应于结构主要振型的周期点上相差不大于20%,即满足统计意义上相符[1,3]。多遇地震时程分析与CQC 法计算的楼层剪力结果如图6 所示。
图6 多遇地震时程分析与CQC 法楼层剪力对比
结果显示,所选地震波合适,结构内力曲线比较均匀,无突变,且时程法计算结果的平均值小于CQC 法,所以可以采用CQC 法的计算结果作为设计依据。
采用静力弹塑性分析方法和弹塑性时程分析法进行罕遇地震作用下薄弱层的弹塑性变形计算,其中静力弹塑性分析得到层间弹塑性层间位移角为X向1 /303,Y 向1 /458,远小于规范限值1 /100。采用弹塑性时程分析得到的楼层层间位移角计算结果如图7 所示,亦满足规范要求。
图7 弹塑性时程分析结构层间位移角
本项目于2013 年6 月进行超限审查,经广泛深入的质疑、答辩与论证,专家的主要意见为结构整体抗侧刚度偏大,需对结构中的抗震墙尺寸进一步优化,以减小结构的扭转效应。由于建筑形体效果需要,结构仅在一侧顶层设置连体钢桁架,导致标准层结构刚心和质心有较明显的偏心,经与专家沟通,通过抗震墙尺寸优化和墙体门洞的设置,尽量减少结构刚心和质心的偏心,提高结构抗扭刚度。调整修改后项目通过超限审查[4]。
以下将重点介绍基于现行规范规定的要求对连体钢桁架进行抗震性能化判别的方法。
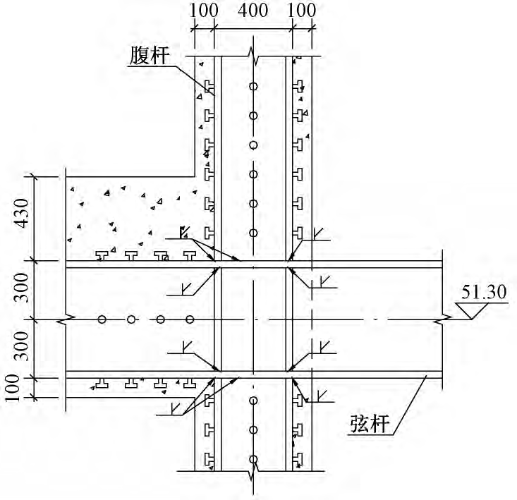
本工程顶部采用大跨度连体钢桁架,钢桁架结构轴测图见图8,立面图见图9( 图中虚线表示与钢桁架连接的混凝土结构) 。标高51. 300m 处桁架弦杆与混凝土构件的连接为刚接,标高47. 700m 和44. 100m 处钢结构与混凝土结构的连接为铰接。为了加强刚接连接节点的刚度,对钢梁采用贯通处理,即埋入混凝土抗震墙结构,并设置栓钉加强锚固,刚接支座节点图见图10。
图8 钢桁架轴测图
图9 钢桁架立面图
图10 钢桁架刚接支座节点图
现行《高层建筑混凝土结构技术规程》( JGJ 3—2010) [3]( 简称《高规》) 第3. 11 小节对不同抗震性能水准的结构构件的设计方法作出了详细规定,具体做法就是针对各种构件的正截面承载力和受剪承载力的不同性能水准需求,给出了明确的验算公式。
《高规》中非常明确地列出了框架柱、框架梁、抗震墙和钢-混凝土组合抗震墙等常规构件的截面验算公式,但对本工程涉及的高位连体钢桁架,却没有明确的条文规定,因此,在结构性能化计算完成后,如何判别其性能目标成为亟待解决的问题。
近年来,国内对带连体钢桁架和转换层的高层建筑结构进行很多研究。文献[5]采用有限元计算分析和模型振动台试验相结合的方法,通过试验结果更明确地揭示结构的薄弱环节出现在钢桁架转换层的上下楼层,并表明在与钢桁架相邻的竖向混凝土构件中加入型钢可以提高结构的延性。文献[6-8]均采用有限元计算分析的方法对连体桁架和转换桁架进行了各种情况下的分析,通过控制钢桁架的构件应力比保证整体安全度。
基于力学的基本原理,本文尝试从整体受力的角度出发,探讨连体钢桁架在抗震设计中的性能化判别方法。以下将详细论述钢桁架在罕遇地震作用下的性能化分析思路,设防地震作用下的思路相同,不再累述。
众所周知,桁架的作用与梁柱是相似的,即可以认为是掏空了腹部的梁柱。作为拉( 压) 弯构件,弦杆主要以承受轴向力的方式来分担整体桁架的轴力和弯矩,腹杆以承受轴向力的方式分担整体桁架的剪力。因此,对于桁架的抗震性能判别而言,仅仅单独判别其弦杆或腹杆构件是没有意义的,必须将钢桁架视为工程的一个整体受力的关键构件,在罕遇地震作用下其整体“截面”需满足受弯不屈服和受剪弹性的性能目标。由此推理,桁架“截面”要满足受弯不屈服时,桁架上下弦杆需满足《高规》中对应性能水准下的截面承载力要求; 桁架“截面”要满足受剪弹性时,桁架腹杆需满足《高规》中对应性能水准下的截面承载力要求。同时,连体桁架与混凝土结构的连接节点是关键受力部位,本工程结合《钢骨混凝土结构技术规程》( YB 9082—2006) [9]( 简称《钢骨混凝土规程》) 对该节点进行抗剪承载力验算。结合本工程抗震性能目标,钢桁架杆件的设计思路如图11 所示。
设计中选取桁架受力最不利的杆件进行罕遇地震作用下的验算。
杆件的正截面承载力和受剪承载力按《高规》规定的公式计算。其中正截面承载力不屈服按式( 1) ( 即《高规》式( 3. 11. 3-3) ) 验算,正截面承载力弹性及受剪承载力弹性按式( 2) ( 即《高规》式( 3. 11. 3- 1) ) 验算,式中各变量含义同《高规》第3. 11. 3 条。
按式( 3) 计算可得该节点的剪力设计值为Vj =5 071kN,按式( 4) 计算可得该节点的截面承载力设计值为5 620. 2kN>5 071kN,因此该节点满足抗剪不屈服的性能要求[3]。
综上所述,本项目连体钢桁架的弦杆、腹杆以及节点均能满足图11 所示的思路推演,可以判定其能够满足罕遇地震下性能目标要求。
本项目属于特别不规则的高层建筑结构,按相关规定应进行结构抗震性能设计,以确保结构安全。对于桁架这种特殊构件,从整体受力的角度出发,结合现行《高规》对不同抗震性能水准的结构构件的规定,将其与普通梁柱构件进行合理类比,将桁架整体的抗震性能目标转化为桁架弦杆、腹杆及节点的承载力性能目标,取得了良好的效果,同时也为类似的结构体系提供了一个新的抗震性能化判别思路。
[1] 建筑抗震设计规范: GB 50011—2010[S].2016 年版.北京: 中国建筑工业出版社, 2016.
[2] 超限高层建筑工程抗震设防专项审查技术要点: 建质[15]67 号[A]. 北京: 中华人民共和国住房和城市建设部, 2015.
[3] 高层建筑混凝土结构技术规程: JGJ 3—2010 [S]. 北京: 中国建筑工业出版社, 2011.
[4] 关于印发长治县经济和信息化局新建科研总部大楼一期工程超限高层建筑工程抗震设防专项审查意见的通知: 晋建质函[2013]477 号[A].太原: 山西省住房和城乡建设厅, 2013.
[5] 刘军进,裘涛,唐锦春,等. 带钢桁架转换层框架-剪力墙结构抗震性能研究[J]. 浙江大学学报( 工学版) ,2005,39( 1) : 108-113.
[6] 施澄宇,冯佳贤. 带有叠层转换桁架的高层建筑结构设计[J]. 建筑结构,2017, 47( 20) : 35-43.
[7] 温四清,吴军,邱剑,等. 湖北省图书馆新馆40m 跨高位转换桁架结构设计[J]. 建筑结构,2012,42( 7) :1-4, 44.
[8] 司建超,肖青,郑辉,等. 某超限工程结构分析与设计[J]. 建筑结构,2017, 47( S2) : 89-94.
[9] 钢骨混凝土结构技术规程: YB 9082—2006 [S].北京:冶金工业出版社, 2007.
[10] 钢结构设计标准: GB 50017—2017 [S].北京: 中国建筑工业出版社, 2018.
注:本文转载自建筑结构《某超限结构及连体钢桁架性能化设计》作者:周伟星, 孙文波, 郭成志,仅用于学习分享,如涉及侵权,请联系删除。
版权声明:我们致力于保护作者版权,注重分享,被刊用文章【浙江大学学报工学版(某超限结构及连体钢桁架性能化设计)】因无法核实真实出处,未能及时与作者取得联系,或有版权异议的,请联系管理员,我们会立即处理! 部分文章是来自自研大数据AI进行生成,内容摘自(百度百科,百度知道,头条百科,中国民法典,刑法,牛津词典,新华词典,汉语词典,国家院校,科普平台)等数据,内容仅供学习参考,不准确地方联系删除处理!;
工作时间:8:00-18:00
客服电话
电子邮件
beimuxi@protonmail.com
扫码二维码
获取最新动态
