武汉江边一家就算洪水来了
也能看展的艺术书店
有一种信念,
无关艺术,
一如花信,
滴落心头。
有一种期许,
透过夜色,
凝视火流星斗。
既自我寻觅,
又心心相守,
烙下印记,
还有对先贤的回眸。
—— 胡乾午
“厢式防水墙廊”是长江沿线防洪系统的最后一道关卡,其内部进深8m左右的长条形空间,被鼓励用做各类商业经营门面。然而,在我们印象中,这里更多的是会所、高端餐厅和茶室、豪车4S店,它们与江滩公园上奔跑放风筝、跳广场舞、遛狗散步的人们,形成了巨大的反差。
这次的书店改造,兼具咖啡与展览,是该段落第一家真正打开大门,欢迎人们自由出入的日常空间。而另一方面,作为武汉建筑师,在江堤上做项目显得格外有意义,毕竟98年的洪水是我们最重要的童年记忆。
起坡 SLOPE
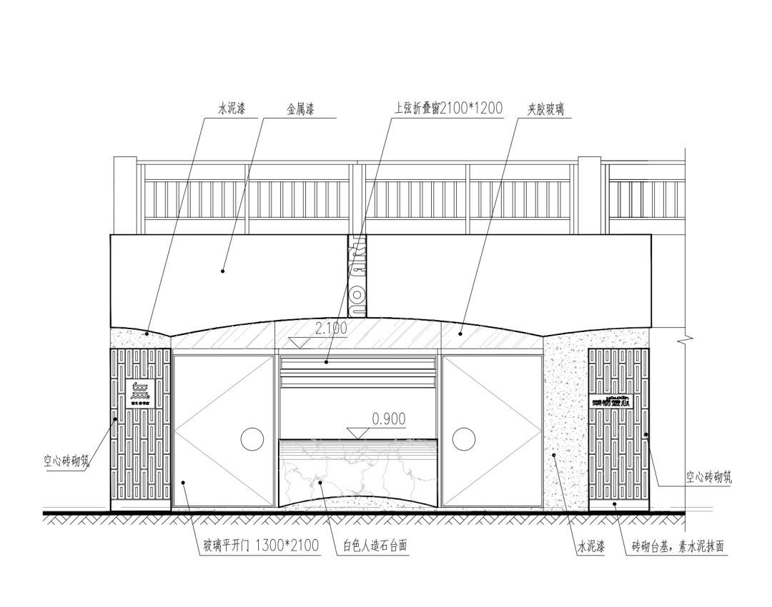
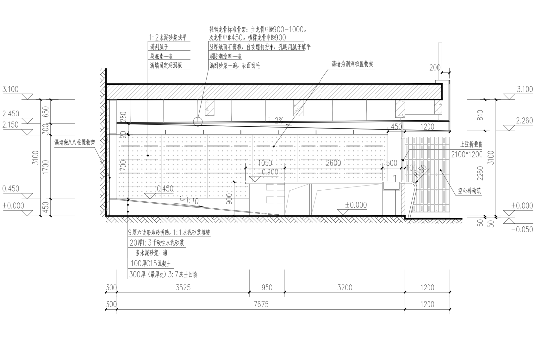
首要的问题是,作为防洪基础设施的一部分,这里每年汛期仍有被淹没的风险,因此我们的第一个决定就是室内地面以残疾人坡道的标准,整体按1:12的斜率找坡,方便淹水后,迅速排出。而这一脚下突发的变化,也试图起到调整注意力、拉长体验的效果,让人不至于觉得这小小的空间3秒钟就能够逛完。此外,以600mm为界,其上采用看上去“精贵”的材料,其下采用粗糙耐久的材料,可以泡在水里,我们甚至期待办一场打赤脚淌水进去看的“水上艺术展”。
身体 BODY
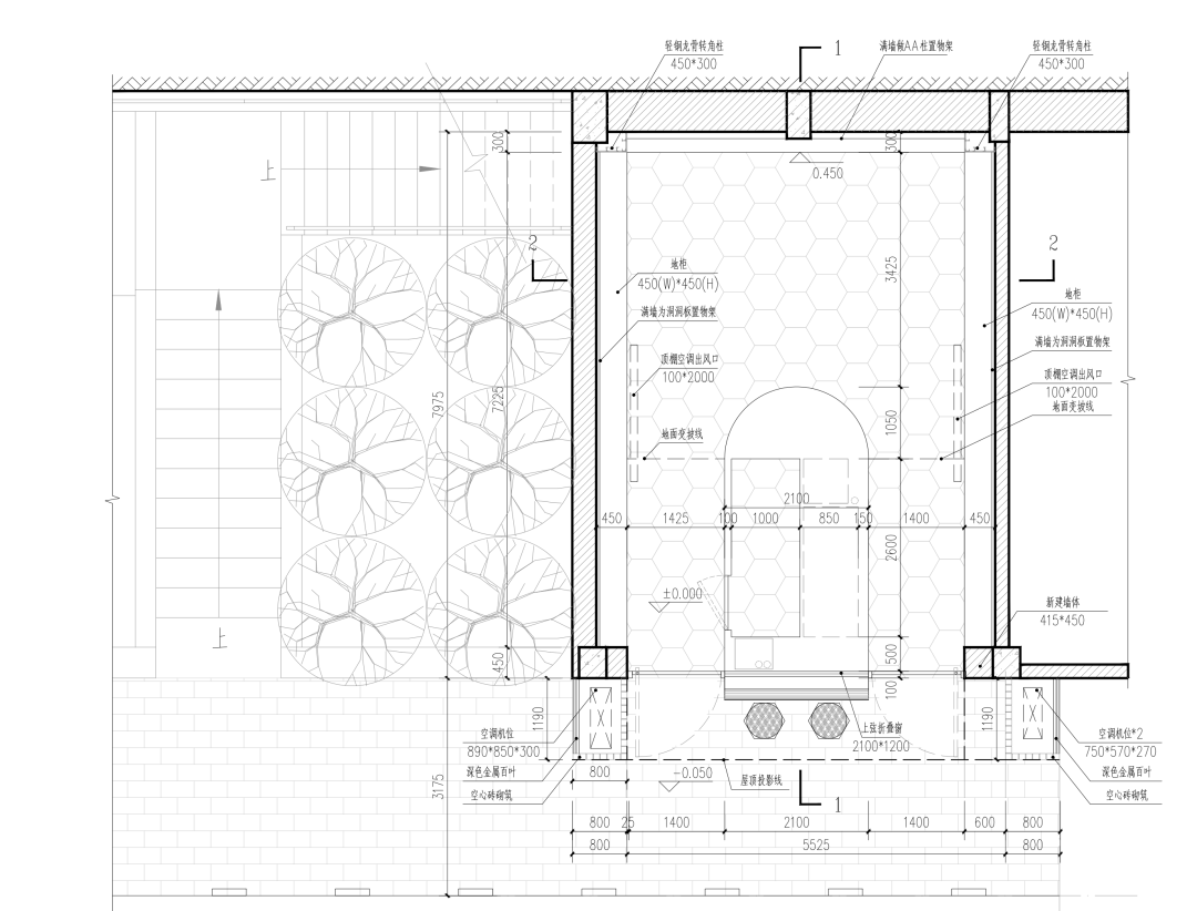
按最初的设计,我们打算让居中的咖啡岛台延伸至外部,并顺势落下成为一个高背椅,与对面的长廊形成呼应,充分的整合周边环境要素,为书店未来的公共活动提供拓展的空间。但江滩物业叫停了这一“占道”行为,我们需要当场修改方案,便画了个曲线,让已挑出的部分又落回到红线之内。而这一偶得的、身体般柔软的“突出部”,却在运营过程中显得十分讨喜,来往的人都忍不住去摸一摸、靠一靠。
轴线 AXIS
我们热切的期望用最小的代价,给予这个迷你书店与艺术馆一种意料之外的“体面”。因此决定采用一种端庄的、古典的“正面性”与“一点透视”构图。但这个空间有一处先天不足,其正立面上的两个柱子(现被空心砖包裹,内为空调机位),与室内空间不对称。为了调和室内外错位的两跟轴线,我们做了一个连续拱的门头与室内吊顶。试图让内部一点透视的空间,从外面看,不至于歪在一边,无论看外面、还是被看,好像都是对称的。门头的连续拱,同时也是对“街坊们”的一种尊重:虽然自己希望能做出变化,但在交接处还是回到了和大家统一的高度上。“no art”的招牌被刻意地竖放,让门头很“自然”的被分成了两截儿,以便使用两块无缝的整版门头金属板。
场地图
立面图
平面图
剖面图
项目信息
PROJECT INFO
项目名称:无艺术书店
设计单位:青·微舍(武汉)工作室
联系邮箱:contact@studio-qing.com
设计团队:胡兴、刘常明、李哲、余凯、巢文琦、孟纪宇、宋振旭
建筑技术设计:得森设计
竣工时间:2022年5月
项目地址:武汉市江岸区二七江滩
建筑面积 :45㎡
施工团队:糯米装饰
业主 :武汉在地文化旅游发展有限公司
摄影:赵奕龙,毕慧琳,SJ(壹阁&HeyWeGo)
RECOMMENDED
| 内 容 精 选 |
创新店舖研究所 | 新旅居 | 在这儿办公
新商业建筑 | 食空制造 | 环球展览设计
快闪商业精选 | 创意视觉营销设计
未来零售派 | 未来食空制造
场景唤醒实验 · 论坛 · 工坊
版权声明:我们致力于保护作者版权,注重分享,被刊用文章【武汉室内设计培训(武汉江边一家就算洪水来了也能看展的艺术书店)】因无法核实真实出处,未能及时与作者取得联系,或有版权异议的,请联系管理员,我们会立即处理! 部分文章是来自自研大数据AI进行生成,内容摘自(百度百科,百度知道,头条百科,中国民法典,刑法,牛津词典,新华词典,汉语词典,国家院校,科普平台)等数据,内容仅供学习参考,不准确地方联系删除处理!;
工作时间:8:00-18:00
客服电话
电子邮件
beimuxi@protonmail.com
扫码二维码
获取最新动态
