简约精致,自由随性,构筑了简美风格独特的气质;简洁的墙面线条做轮廓勾勒,继承了美式风格的优雅;摒弃了传统美式的臃肿,搭配淡雅的色系,表达空间的情绪,营造富有生命力的家居生活氛围。
本案屋主是一家三口,为了改善生活居住环境购置本套房子,但改造前整体房间布局有些不合理,家居配色也很过时,所以业主计划重新装修。业主对于生活有着自己的见解,喜欢美式风格,但又希望简约一点;进门空间要通透,需要一个书房,更需要较多的收纳空间。设计师重新规划布局后,让每个空间充足发挥功能性,在足够收纳的情况下又更显清爽宽敞。
/改造前户型
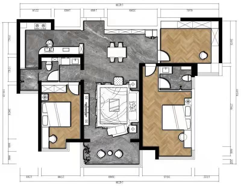
/优化后户型
三室两厅户型,我们在原有的户型上进行优化,减少空间的浪费。
房屋信息
◆ 坐 标:郑州金水区金水路英协路
◆ 户 型:三室一厅
◆ 面 积:140㎡二手房
◆ 设 计:美兮设计
01
- 玄 关 -
改造后
入户玄关利用整面墙做玄关柜,凝练了简美空间的精髓,象牙白的质感辅以简约式的线条造型,更显优雅高端。整体不张扬也不沉寂,通顶的设计最大化扩充了收纳空间,方便实用的功能让平淡的生活一丝不苟。
02
- 客 厅 -
改造前
改造中
改造后
进入客厅第一感觉就是大气,背景墙采用更有质感的壁布,无复杂装饰的背景墙让人感觉整个空间简洁舒适,通铺木地板又让家里多了几分温暖。客厅选择了黑色的美式皮质沙发,既大气又有着高级的质感,让这个空间显得十分稳重,搭配复古的吊灯将美式风格表现得淋漓尽致,增加了房间的层次感。
改造后
客厅阳台放洗衣机+烘干机做内嵌式,台面可以挂烫衣物,旁边柜子空间还能收纳,使用起来非常方便。
03
- 餐 厅 -
改造后
改造后
餐厅位置位于客厅、卧室中间,后期放一套实用的木质餐桌,搭配整屋设计,简约又大气。
04
- 厨 房 -
改造前
改造后
改造后
厨房改造前有很大的空间浪费,将之前闲置的空间让给卫生间,采用玻璃做隔断,保证厨房的采光。橱柜采用简洁自然的深空灰门板橱柜,以统一、规整的L型的布局,最大限度地实现厨房空间的利用率。
05
- 卫 生 间 -
改造前
改造前
改造后
改造后
卫生间利用厨房的面积,实现干湿3分区,互不干扰,使用起来更方便。
06
- 父 母 房 -
改造前
改造后
改造后
父母房定制通顶柜子,整屋采用奶黄色背景墙,洋溢着年轻的朝气活力以及对生活品味的追求,创造了一个自然舒适的睡眠氛围。
07
- 女 儿 房 -
改造前
改造后
女儿房的黑色简美风铁艺床,搭配柔和的轻纱,整体现代简约优雅大方。
改造前
改造后
改造后
改造后
女儿房的卫生间将台盆外移后,不仅保留卫生间的基本使用功能,洗澡也更方便。
09
- 书 房 -
改造前
改造后
改造后
书房运用整面墙做了L型柜子,收纳功能强大。墙面色调选了比较柔和的浅黄色,地面选用木地板,让整个书房显得更宁静!
重新改造后吊顶以简单的线条勾勒出层次感,全屋背景墙采用了壁布,看起来更有质感;搭配白色的通顶定制家具,满足全家人的收纳需求;整屋搭配复古的灯具将美式风格表现得淋漓尽致;利用空间的色彩、纹理、家具、配饰、光线等表达空间的情绪,营造富有生命力的家居生活氛围。
- 对比鉴赏 -
版权声明:我们致力于保护作者版权,注重分享,被刊用文章【郑州学校装修(郑州金水区金水路英协路)】因无法核实真实出处,未能及时与作者取得联系,或有版权异议的,请联系管理员,我们会立即处理! 部分文章是来自自研大数据AI进行生成,内容摘自(百度百科,百度知道,头条百科,中国民法典,刑法,牛津词典,新华词典,汉语词典,国家院校,科普平台)等数据,内容仅供学习参考,不准确地方联系删除处理!;
工作时间:8:00-18:00
客服电话
电子邮件
beimuxi@protonmail.com
扫码二维码
获取最新动态
