大城市虽然好,但是给我们农村孩子真正的亲切感,快节奏的生活方式,压力巨增转过头来看到农村老家的建设真的很不错了,一栋栋漂亮的小房子盖了起来围上一处小院,种菜养花这样的生活惬意又舒适这不就是人们向往的生活吗。本期分享给大家伙们三款简约好看小别墅设计,简单时尚造价低更多人建房的选择!
占地面积:13.16m*13.04m,158.5平方米;
建筑层高:二层;
建筑高度:10.01米(含屋顶);
别墅效果图
设计功能:
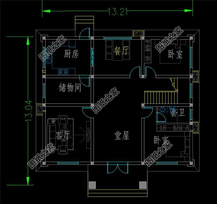
一层户型图
一层户型:堂屋、客厅、厨房、餐厅、储藏间、卧室(带卫生间)、卧室;
二层户型图
二层户型:客厅、卧室(带卫生间)、茶室、卧室x4、卫生间、阳台;
占地面积:11.8m*14.02m,144.25平方米左右;
建筑层高:二层;
建筑高度:9.712米(含屋顶);
别墅效果图
设计功能:
一层户型图
一层户型:客厅、厨房、餐厅、卧室(带卫生间)、卫生间;
0
二层户型图
二层户型:起居室、卧室(带卫生间)、卧室x2、卫生间、露台;
占地面积:12.76m*13.16m,154.17平方米左右;建筑层高:二层;建筑高度:9.5米(含屋顶);
别墅效果图
设计功能:
一层户型图
一层户型:玄关、客厅、厨房、餐厅、卧室(带卫生间)、卧室、卫生间;
二层户型图
二层户型:客厅、卧室(带卫生间)、卧室x3、卫生间、阳台;
以上就是本期小编带给大家的全部内容了感兴趣的小伙伴们别忘了要收藏关注呦~!我会继续带给大家不一样的建房知识,希望大家都能够喜欢!
版权声明:我们致力于保护作者版权,注重分享,被刊用文章【小型建筑设计案例(三款简约好看的小别墅推荐)】因无法核实真实出处,未能及时与作者取得联系,或有版权异议的,请联系管理员,我们会立即处理! 部分文章是来自自研大数据AI进行生成,内容摘自(百度百科,百度知道,头条百科,中国民法典,刑法,牛津词典,新华词典,汉语词典,国家院校,科普平台)等数据,内容仅供学习参考,不准确地方联系删除处理!;
工作时间:8:00-18:00
客服电话
电子邮件
beimuxi@protonmail.com
扫码二维码
获取最新动态
