我是云栖建筑小编,每日分享乡村建房精美案例,点击上方“关注”,每日获取最新精美案例呦~
项目名称丨广东梅州张家现代别墅
项目位置丨广东梅州
建筑尺寸丨11.00*8.64m
占地面积丨95.04㎡
建筑面积丨192.44㎡
建筑风格丨现代
结构形式丨砖混结构
东侧人视图
该项目位于广东梅州,主体为二层现代别墅。场地的东侧是稻田,采光视野极好,出门就是好风景。西侧是山地, 南侧北侧均为竹林。业主要求空间开阔,通透明亮。立面上要求简洁纯粹,时尚高级。
东北侧人视图
东南侧人视图
建筑整体采用白色真石漆,结合门窗和挑檐做横向线条装饰立面形体,再通过阳台的悬挑和材质的区别,形成了体块的悬浮感,让立面充满现代感和设计感。
虽然看似简洁却营造了先锋的时尚气息,让建筑从整体环境之中脱颖而出。
庭院局部人视图
东庭院沿围墙边砌筑了户外休闲区,在这样的家里就像在度假。围墙部分做格栅设计,形成了一面立体绿化墙,为室内提供了绿意冉冉的空间环境,也成为了那条街最靓丽的一道风景。
在增加庭院的通透性的同时与实墙形成虚实对比,丰富细节和层次。
东北侧鸟瞰图
东南侧鸟瞰图
建筑立面通过体块的悬挑和高低错落,赋予建筑丰富的层次感,再通过颜色的碰撞营造了极具冲击力的视觉感。
恰到好处的线性灯、射灯点缀,使得建筑在夜晚时分更具吸引力。
一层平面图
一层布置了客厅、餐厅、厨房、公共活动厅、老人房及客房。玄关处整个墙面做衣柜设计,增加收纳和储物功能,通过流线转换进入客厅,为北方的冬季营造良好的室内环境。
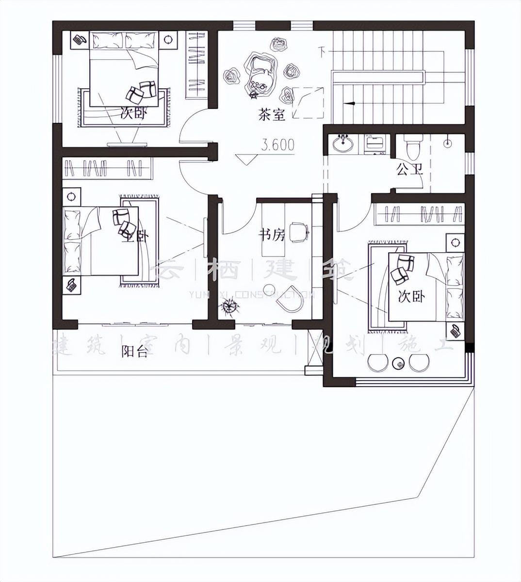
二层平面图
二层主要以居住为主,共设计了三间卧室,满足业主一家人的居住需求。还有茶室、书房等功能空间,小面积实现大惊喜。
宅基地虽小,在这为您量身定制舒适家!
愿我们每个人心有所属,奋斗有标
盖房子是大事,一生只一次
我们建的不仅是房子,更是生活
云栖建筑
设计改变生活、让一切从美好出发
建筑丨室内丨景观丨规划
版权声明:我们致力于保护作者版权,注重分享,被刊用文章【小型建筑设计案例(广东梅州丨小地块别墅该如何设计)】因无法核实真实出处,未能及时与作者取得联系,或有版权异议的,请联系管理员,我们会立即处理! 部分文章是来自自研大数据AI进行生成,内容摘自(百度百科,百度知道,头条百科,中国民法典,刑法,牛津词典,新华词典,汉语词典,国家院校,科普平台)等数据,内容仅供学习参考,不准确地方联系删除处理!;
工作时间:8:00-18:00
客服电话
电子邮件
beimuxi@protonmail.com
扫码二维码
获取最新动态
